Doppelhaushälfte Neubau KfW 40 Erstbezug
1.740 €
Kaltmiete (netto)
129 m²
Wohnfläche
5
Zimmer
immobilien.de Nr.: 9455368
Objektnummer: 427213
Mietpreis & Nebenkosten
| Kaltmiete (netto) | 1.740 € |
| Nebenkosten | Keine Angabe |
Wohnfläche, Grundstück & Bausubstanz
| Wohnfläche | 129 m² |
| Grundstücksfläche | 400 m² |
| Zimmer | 5 |
| Verfügbar ab | 01.04.2026 |
| Zustand | Erstbezug |
Energie
| Energieträger/Befeuerung | Luft-Wärme-Pumpe |
Beschreibung der Immobilie
Moin,
wir vermieten zwei Neubau Doppelhaushälften (ca. 129 qm) KfW 40 in 25866 Mildstedt ab dem 01. April 2026. Das Haus verfügt über eine moderne Einbauküche, Fußbodenheizung und eine Luftwärmepumpe. Zu jeder Haushälfte gehört eine sonnige Terrasse, Gartenanteil (ca. 400 qm) und ein begehbarer Dachboden. Ein Carport mit Abstellraum sowie ein Stellplatz stehen optional zur Verfügung. Der Garten wird angelegt.
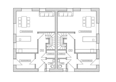
Das Erdgeschoss bietet als Highlight einen großzügigen Aufenthaltsbereich mit offener Küche zum Wohnbereich. Weiterhin verfügt es über einen Hauswirtschaftsraum und ein Gäste-WC sowie einen kleinen Abstellraum.
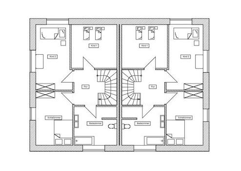
Das Obergeschoss besteht aus 3 Schlafzimmern und einem Bad mit Badewanne und Dusche.
Der Dachboden ist ebenfalls großzügig.
Das Haus verfügt über eine PV-Anlage sowie ein Speichersystem und bietet die Möglichkeit eines elektrischen Ladeanschlusses.
Ausstattung:
- Carport und Stellplatz sind vor der Tür vorhanden
- Badezimmer mit Badewanne, zusätzliches Gäste-WC
- Terrasse (Südlage), mit eigenem Garten
- Abstellraum für Fahrräder
- Erdgeschoss: Wohnbereich mit offener Küche, Gäste-WC, HWR
- Obergeschoss: drei Zimmer, Bad
- Dachgeschoss: Stauraum
wir vermieten zwei Neubau Doppelhaushälften (ca. 129 qm) KfW 40 in 25866 Mildstedt ab dem 01. April 2026. Das Haus verfügt über eine moderne Einbauküche, Fußbodenheizung und eine Luftwärmepumpe. Zu jeder Haushälfte gehört eine sonnige Terrasse, Gartenanteil (ca. 400 qm) und ein begehbarer Dachboden. Ein Carport mit Abstellraum sowie ein Stellplatz stehen optional zur Verfügung. Der Garten wird angelegt.
Das Erdgeschoss bietet als Highlight einen großzügigen Aufenthaltsbereich mit offener Küche zum Wohnbereich. Weiterhin verfügt es über einen Hauswirtschaftsraum und ein Gäste-WC sowie einen kleinen Abstellraum.
Das Obergeschoss besteht aus 3 Schlafzimmern und einem Bad mit Badewanne und Dusche.
Der Dachboden ist ebenfalls großzügig.
Das Haus verfügt über eine PV-Anlage sowie ein Speichersystem und bietet die Möglichkeit eines elektrischen Ladeanschlusses.
Ausstattung:
- Carport und Stellplatz sind vor der Tür vorhanden
- Badezimmer mit Badewanne, zusätzliches Gäste-WC
- Terrasse (Südlage), mit eigenem Garten
- Abstellraum für Fahrräder
- Erdgeschoss: Wohnbereich mit offener Küche, Gäste-WC, HWR
- Obergeschoss: drei Zimmer, Bad
- Dachgeschoss: Stauraum
Ausstattungsmerkmale
| Küche | Einbauküche |
| Bad | Wanne |
| Balkone | 0 |
| Garten | |
| Terrassen | 1 |
Terrasse, Garten, Vollbad, Einbauküche
Sonstige Informationen
Energieträger: Luft-/Wasserwärme
- Haustiere nicht erwünscht
- Nebenkosten ca. 100 €/Monat
Wir bitten um eine Selbstauskunft im Rahmen einer Anfrage.
Makleranfragen nicht erwünscht. Nach § 7 UWG sind unaufgeforderte Kontaktaufnahmen durch Makler ohne ausdrückliche Einwilligung des Empfängers verboten!
ohne-makler (OM) ist weder Anbieter noch Vermittler der Immobilie. OM betreibt eine Plattform für Immobilieneigentümer, die unter anderem die gleichzeitige Veröffentlichung einzelner Inserate auf mehreren Immobilienportalen ermöglicht. Die Inhalte dieser Inserate werden ausschließlich von Dritten verantwortet. Für die Richtigkeit, Vollständigkeit oder Rechtmäßigkeit der Angaben übernimmt OM keine Haftung. Hinweise auf mögliche Rechtsverstöße können jederzeit gemeldet werden und werden nach Prüfung umgehend bearbeitet.
- Haustiere nicht erwünscht
- Nebenkosten ca. 100 €/Monat
Wir bitten um eine Selbstauskunft im Rahmen einer Anfrage.
Makleranfragen nicht erwünscht. Nach § 7 UWG sind unaufgeforderte Kontaktaufnahmen durch Makler ohne ausdrückliche Einwilligung des Empfängers verboten!
ohne-makler (OM) ist weder Anbieter noch Vermittler der Immobilie. OM betreibt eine Plattform für Immobilieneigentümer, die unter anderem die gleichzeitige Veröffentlichung einzelner Inserate auf mehreren Immobilienportalen ermöglicht. Die Inhalte dieser Inserate werden ausschließlich von Dritten verantwortet. Für die Richtigkeit, Vollständigkeit oder Rechtmäßigkeit der Angaben übernimmt OM keine Haftung. Hinweise auf mögliche Rechtsverstöße können jederzeit gemeldet werden und werden nach Prüfung umgehend bearbeitet.
Karte wird geladen...
Objektstandort
25866 Mildstedt
- Schleswig-Holstein
Lage & Infrastruktur
Objektstandort
25866 Mildstedt
- Schleswig-Holstein
Die Wohnlage zeichnet sich durch eine ruhige Lage am Ende der Straße aus, jedoch zentral in Mildstedt angesiedelt.
Eine schnelle Auto und Fahrradanbindung an Husum ist über den nahen Radweg gegeben. Mildstedt bietet eine ausgezeichnete Schule (Grund- und Gemeinschaftsschule) und alle Einrichtungen des täglichen Bedarfs. Ärzte, Apotheke und Einkaufs- sowie gastronomische Einrichtungen sind fußläufig in weniger als 5 Minuten erreichbar. Andere weiterführende Schulen sowie das Stadtzentrum von Husum sind binnen 15 Minuten mit dem Fahrrad erreichbar. Die nächste ÖPNV Haltestelle ist ca. 200m entfernt. Mildstedt besitzt ein ausgeprägtes Gemein- und Vereinswesen und gilt überregional als ausgesprochen attraktiver Wohnort.
Ebenso sind die meisten Mittelzentrumseinrichtungen der Kreisstadt Husum (z.B. Schwimmbad) sehr gut zu erreichen (ca. 15 Minuten mit dem Fahrrad). Bade- und Surfstellen an der Nordsee sind in ca. 15 Minuten mit dem Auto und ca. 30 Minuten mit dem Fahrrad erreichbar. Weiterhin sind weitere Bademöglichkeiten im Freibad in Rantrum und die Treene in Schwabstedt mit dem Fahrrad gut zu erreichen.
Mildstedt liegt zentral zwischen Sankt-Peter-Ording und Sylt sowie den nordfriesischen Inseln und ist ein optimaler Ausgangspunkt für Tagesausflüge zu diesen Orten. Der Husumer Bahnhof befindet sich ebenfalls in ca. 10 minütiger Fahrradreichweite vom Haus.
Infrastruktur (im Umkreis von 5 km):
Apotheke, Lebensmittel-Discount, Allgemeinmediziner, Kindergarten, Grundschule, Hauptschule, Realschule, Gymnasium, Gesamtschule, Öffentliche Verkehrsmittel
Eine schnelle Auto und Fahrradanbindung an Husum ist über den nahen Radweg gegeben. Mildstedt bietet eine ausgezeichnete Schule (Grund- und Gemeinschaftsschule) und alle Einrichtungen des täglichen Bedarfs. Ärzte, Apotheke und Einkaufs- sowie gastronomische Einrichtungen sind fußläufig in weniger als 5 Minuten erreichbar. Andere weiterführende Schulen sowie das Stadtzentrum von Husum sind binnen 15 Minuten mit dem Fahrrad erreichbar. Die nächste ÖPNV Haltestelle ist ca. 200m entfernt. Mildstedt besitzt ein ausgeprägtes Gemein- und Vereinswesen und gilt überregional als ausgesprochen attraktiver Wohnort.
Ebenso sind die meisten Mittelzentrumseinrichtungen der Kreisstadt Husum (z.B. Schwimmbad) sehr gut zu erreichen (ca. 15 Minuten mit dem Fahrrad). Bade- und Surfstellen an der Nordsee sind in ca. 15 Minuten mit dem Auto und ca. 30 Minuten mit dem Fahrrad erreichbar. Weiterhin sind weitere Bademöglichkeiten im Freibad in Rantrum und die Treene in Schwabstedt mit dem Fahrrad gut zu erreichen.
Mildstedt liegt zentral zwischen Sankt-Peter-Ording und Sylt sowie den nordfriesischen Inseln und ist ein optimaler Ausgangspunkt für Tagesausflüge zu diesen Orten. Der Husumer Bahnhof befindet sich ebenfalls in ca. 10 minütiger Fahrradreichweite vom Haus.
Infrastruktur (im Umkreis von 5 km):
Apotheke, Lebensmittel-Discount, Allgemeinmediziner, Kindergarten, Grundschule, Hauptschule, Realschule, Gymnasium, Gesamtschule, Öffentliche Verkehrsmittel