Baugrundstück mit Altbestand

595.000 €
Kaufpreis
100 m²
Wohnfläche
6
Zimmer
immobilien.de Nr.: 9455206 Objektnummer: 25-9404
Ansicht
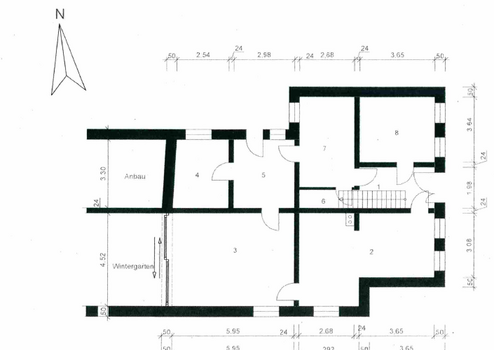
Grundriss EG
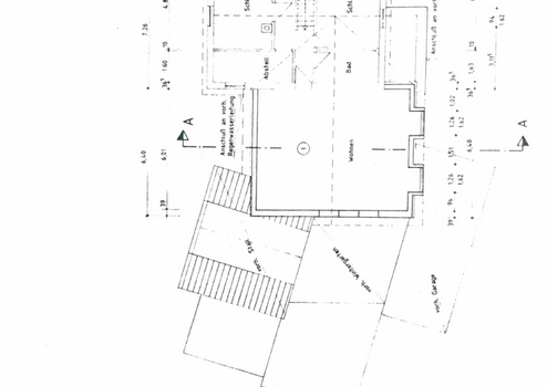
Grundriss OG

Kaufpreis

Kaufpreis 595.000 €
Maklerprovision 3,57 %

Wohnfläche, Grundstück & Bausubstanz

Wohnfläche 100 m²
Grundstücksfläche 1.576 m²
Zimmer 6
Verfügbar ab keine Angabe

Energie

Energieausweistyp Bedarfsausweis
Gültig bis 2031-08-18
Endenergiebedarf 247,00
Energieträger/Befeuerung Gas

Beschreibung der Immobilie

Das 1.576 m² große Baugrundstück mit abrissfähigem Altbestand befindet sich in der Lindenstraße von Bad Schwartau.
Maßgebend für die zukünftige Bebauung ist der B.-Plan Nr. 83 der Stadt Bad Schwartau.
Das Grundstück liegt in einem Wohngebiet. Zulässig ist die eingeschossige Bauweise.
Die GRZ beträgt 0,25 und 0,40.

Ansprechpartner für dieses Immobilienangebot sind:
Frank Hill / Katja-A. Kewitz
04531 / 508-75791 oder -75792
Mobil 0151 / 122 122 06
Karte wird geladen...
Objektstandort
23611 Bad Schwartau - Schleswig-Holstein

Lage & Infrastruktur

Bad Schwartau, die größte Stadt im Kreis Ostholstein im Bundesland Schleswig-Holstein, liegt am gleichnamigen Fluss Schwartau und ist heute ein staatlich anerkanntes Jodsole- und Moorheilbad. Die Kurstadt mit rund 22.000 Einwohnern liegt in unmittelbarer Nähe von Lübeck und der Ostsee. Hervorzuheben sind hervorragende Infrastruktur und beste Verkehrsanbindung .
Die Stadtmitte liegt in fußläufiger Entfernung. In unmittelbarer Umgebung werden viele Sport- und Freizeitmöglichkeiten angeboten.

Kontaktanfrage senden

Über den Anbieter

SIG Holstein mbH & Co. KG
Hagenstraße 19
23843 Bad Oldesloe
Kontakt
Telefon 04531 508 75791
Mobil 0151 12212206
Fax 04531 508 77714
Website www.sig-holstein.de
Ansprechpartner/in
Herr Frank Hill
Weitere Anbieterdaten