Weitere Immobilien

RESERVIERT+++AS-Immobilien.com +++ für Kapitalanleger Mehrfamilienhaus voll vermietet +++

428.000 €
Kaufpreis
245 m²
Wohnfläche
immobilien.de Nr.: 9454542 Objektnummer: 1001023611
Hausansicht Eingang
Erdgeschosswohnung renoviert 2023
EG Küche
EG Wohnen
EG Balkon
EG Bad
kleiner Garten der Hausgemeinschaft
Gartenansicht - Drohne
Ausblick von den Balkonen/Garten
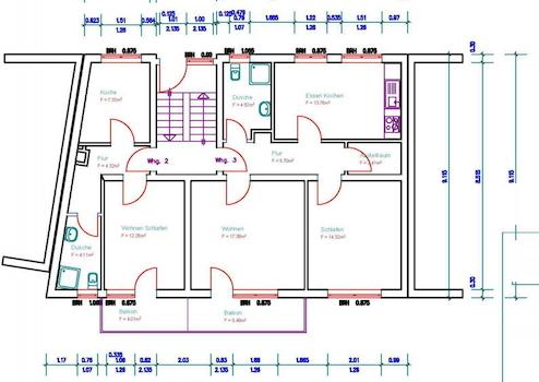
Erdgeschoss
Obergeschoss
Hofansicht
Untergeschoss
Hauansicht

Kaufpreis

Kaufpreis 428.000 €
Maklerprovision 5,95 % Käuferprovision (inkl. MWSt

Wohnfläche, Grundstück & Bausubstanz

Wohnfläche 245 m²
Gesamtfläche 282 m²
Grundstücksfläche 281 m²
Fläche Sonstiges 37 m²
Baujahr 1969
Verfügbar ab RESERVIERT

Energie

Energieträger/Befeuerung Gas

Beschreibung der Immobilie

Grundbuch statt Sparbuch ... ideal für den Kapitalanleger Dieses Mehrfamilienhaus in zentraler und praktischer Wohnlage von Bad Orb bietet 5 vermietete Wohnungen und somit vom ersten Tag an volle Mieteinnahmen.

Sonstige Informationen

Sie finden unser Büro im Herzen der Kurstadt Bad Orb in der Sauerbornstr. 7 am Kurpark / Salinenplatz im Ärztehaus Domus Medicus. GELDWÄSCHEGESETZ (GWG): Als Makler sind wir verpflichtet, den Anforderungen des Geldwäschegesetzes nachzukommen. Bitte helfen Sie uns, den gesetzlichen Verpflichtungen nachzukommen und nennen mit der Anfrage folgende Kontaktdaten: Name, Vorname, vollständige Anschrift, Telefonnummer und/oder E-Mail-Adresse. Senden Sie einfach Ihre Anfrage per E-Mail. MAKLERCOURTAGE: Für unsere Bemühungen berechnen wir an Käufer/Käuferin eine Maklercourtage in Höhe von 5,95 % des Nettoverkaufspreises inkl. MwSt. Diese ist bei Unterzeichnung des Kaufvertrages verdient und fällig und durch den Käufer/Käuferin zu zahlen. Sämtliche Angaben zum Verkaufsobjekt stammen vom Verkäufer. Für Richtigkeit und Vollständigkeit können wir deshalb keine Haftung übernehmen. Irrtum und Zwischenverkauf bleiben vorbehalten. Durch die Nutzung der nachgewiesenen Daten und Angaben, bzw. durch die Aufnahme von Verhandlungen mit uns oder mit dem Verkäufer, erkennen Sie unseren Courtageanspruch ausdrücklich und unwiderruflich an. +++ BESICHTIGUNGEN: Sind über unser Büro zu vereinbaren und gemeinsam mit uns möglich. Verhandlungen führen Sie bitte nur mit uns. Wir nehmen uns Zeit für Sie und stehen gerne für weitere Informationen und Objektbesichtigung zur Verfügung. VERBRAUCHER-WIDERRUFSBELEHRUNG Gerne werden wir sofort für Sie tätig. Bitte bestätigen Sie uns deshalb den Erhalt der Widerrufsbelehrung. +++ Sie sind Eigentümer und denken an den Verkauf Ihrer Immobilie? Sprechen wir darüber! Kostenfreie Beratung. Persönlich. Vertraulich. AS Immobilien Bad Orb, Burkhard Schmitt - Verkauf - Vermietung - Verwaltung - seit 1989 www.AS-Immobilien.com
Karte wird geladen...
Objektstandort
63619 Bad Orb

Lage & Infrastruktur

Die Wohnlage ist aufgrund der ebenen und verkehrsgünstigen Umgebung sehr beliebt. Einkaufsmöglichkeiten und Bushaltestellen sowie die Fussgängerzone sind in nur wenigen Gehminuten zu ereichen. Balkone und Garten zur Südseite bringen viel Licht in die Wohnungen.

Kontaktanfrage senden

Über den Anbieter

AS Immobilien Bad Orb
Sauerbornstr. 7
63619 Bad Orb
Kontakt
Ansprechpartner/in
AS Immobilien Inh. Burkhard Schmitt
Weitere Anbieterdaten