Gut geschnittene 3-Zimmer-Wohnung in denkmalgeschütztem Dahlemer Ensemble
560.000 €
Kaufpreis
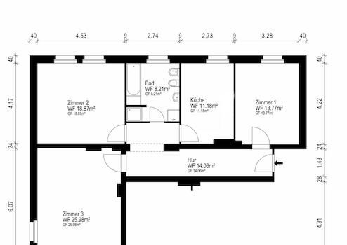
92 m²
Wohnfläche
3
Zimmer
immobilien.de Nr.: 9452886
Objektnummer: GBA1799
Kaufpreis
| Kaufpreis | 560.000 € |
| Hausgeld | 416 € |
| Maklerprovision | 3,57% des Kaufpreises inkl. MwSt. (Käuferprovision) |
Wohnfläche, Grundstück & Bausubstanz
| Wohnfläche | 92 m² |
| Gesamtfläche | 92 m² |
| Zimmer | 3 |
| Baujahr | 1922 |
| Verfügbar ab | keine Angabe |
| Zustand | Teil Vollsaniert |
Energie
| Heizungsart | Fernwärme |
| Energieträger/Befeuerung | Alternativ |
Beschreibung der Immobilie
Die unter Denkmalschutz stehende Wohnanlage "Dahlem-Palais" wurde
zwischen 1919 und 2023 errichtet. Das äußerst charmante Ensemble ist sehr gepflegt; notwendige
Modernisierungen und Instandhaltungen wurden stets durchgeführt.
Die helle und gut geschnittene Wohnung befindet sich im 1. Obergeschoss
des dreigeschossigen Gebäudes und verfügt über 3 schön geräumige
Zimmer, ein Bad und eine Küche mit Raum für einen Essplatz.
2009/10 wurde die Wohnung komplett modernisiert (gesamte Elektrik,
neue Raumaufteilung, Böden, Wände, neues Bad und neue Küche). Weitere Maßnahmen folgten und Sie können direkt einziehen!
Der weitläufige, rd. 14.000 m² große parkartige Innenhof bietet einen
herrlich freien Blick auf die schönen Gärten!
zwischen 1919 und 2023 errichtet. Das äußerst charmante Ensemble ist sehr gepflegt; notwendige
Modernisierungen und Instandhaltungen wurden stets durchgeführt.
Die helle und gut geschnittene Wohnung befindet sich im 1. Obergeschoss
des dreigeschossigen Gebäudes und verfügt über 3 schön geräumige
Zimmer, ein Bad und eine Küche mit Raum für einen Essplatz.
2009/10 wurde die Wohnung komplett modernisiert (gesamte Elektrik,
neue Raumaufteilung, Böden, Wände, neues Bad und neue Küche). Weitere Maßnahmen folgten und Sie können direkt einziehen!
Der weitläufige, rd. 14.000 m² große parkartige Innenhof bietet einen
herrlich freien Blick auf die schönen Gärten!
Ausstattungsmerkmale
| Anzahl der Etagen im Haus | 1 |
| Inserat befindet sich im Stockwerk | 1 |
| Küche | Einbauküche |
| Bad | 1 |
| Bad | Dusche, Fenster |
| Garten |
• Böden: Schwellenfrei verlegtes Eichenparkett und Terracottafliesen in Küche und Bad
• Einbauten im Flur und Wohnzimmer
• Tagesbelichtetes Duschbad (mit Platz für eine Wanne)
• Einbauküche
• Elektrischer Warmwasserspeicher
• Deckenhöhe: 2,90 m
• Sehr geräumiger Keller
• Zentralheizung über Fernwärme
• Herrlich großer, schön bepflanzter Innenhof
• Einbauten im Flur und Wohnzimmer
• Tagesbelichtetes Duschbad (mit Platz für eine Wanne)
• Einbauküche
• Elektrischer Warmwasserspeicher
• Deckenhöhe: 2,90 m
• Sehr geräumiger Keller
• Zentralheizung über Fernwärme
• Herrlich großer, schön bepflanzter Innenhof
Karte wird geladen...
Objektstandort
14195 Berlin
Lage & Infrastruktur
Die Wohnung befindet sich in einer ruhigen Wohnlage von Berlin-Dahlem; perfekt zwischen City und Natur, die gleichermaßen schnell zu erreichen sind:
In 3 Fußminuten sind Sie am U-Bhf. Breitenbachplatz (U3). Dort haben Sie auch die perfekte Nahversorgung fast vor der Haustür: Es gibt dort mehrere Restaurants, verschiedene Arzt-/ und Facharztpraxen, Bäckerei sowie Supermärkte in wenigen Fußminuten.
Wald- und Parkanlagen sind auch sehr gut zu Fuß oder mit dem Fahrrad zu erreichen: Beispielsweise der Botanische Garten (950 m) oder die beliebte Domäne Dahlem (1,8 km). Auch der Grunewald mit seiner
schönen Seenkette ist nicht weit entfernt.
In 3 Fußminuten sind Sie am U-Bhf. Breitenbachplatz (U3). Dort haben Sie auch die perfekte Nahversorgung fast vor der Haustür: Es gibt dort mehrere Restaurants, verschiedene Arzt-/ und Facharztpraxen, Bäckerei sowie Supermärkte in wenigen Fußminuten.
Wald- und Parkanlagen sind auch sehr gut zu Fuß oder mit dem Fahrrad zu erreichen: Beispielsweise der Botanische Garten (950 m) oder die beliebte Domäne Dahlem (1,8 km). Auch der Grunewald mit seiner
schönen Seenkette ist nicht weit entfernt.
Kontaktanfrage senden
Über den Anbieter
GrundBauArt Immobilien GmbH
Brümmerstr. 20a
14195 Berlin
Kontakt
| Telefon | 0049308313728 |
| Fax | 00493084109614 |
Ansprechpartner/in
Frau Anja Unkrig