Geräumige Doppelhaushälfte auf 401 m² großem Grundstück in ruhiger Lage von 85778 Haimhausen
1.100.000 €
Kaufpreis
220 m²
Wohnfläche
160 m²
Nutzfläche
7
Zimmer
immobilien.de Nr.: 9452607
Objektnummer: 06831
Kaufpreis
| Kaufpreis | 1.100.000 € |
| Maklerprovision | 2,38 % inkl. MwSt. Käuferprovision |
Wohnfläche, Grundstück & Bausubstanz
| Wohnfläche | 220 m² |
| Nutzfläche | 160 m² |
| Gesamtfläche | 380 m² |
| Grundstücksfläche | 401 m² |
| Fläche teilbar ab | 220 m² |
| Zimmer | 7 |
| Baujahr | 1977 |
| Letzte Modernisierung | 2006 |
| Verfügbar ab | nach Vereinbarung |
| Zustand | Gepflegt |
Energie
| Heizungsart | Zentralheizung, Fußbodenheizung |
| Energieträger/Befeuerung | Öl |
Beschreibung der Immobilie
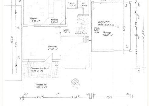
Die geräumige Doppelhaushälfte wurde im Jahr 1977 in massiver Ziegelbauweise errichtet und besticht mit einer nutzbaren Fläche von rund 380 m², davon ca. 220 m² Wohnfläche plus ca. 160 m² Nutzfläche. Die Grundfläche des Hauses von über 100 m² (9,99 m x 10,65 m) lässt eine gute Raumaufteilung mit angenehmen Raumgrößen zu.
Im Erdgeschoss befinden sich das ca. 43 m² große Wohnzimmer mit Ausgang zur Süd-Terrasse, die mit fast 10 m² angenehm geräumige Küche, daneben das knapp 14 m² große Esszimmer. Ein Gäste-WC fehlt natürlich auch nicht auf dieser Etage.
Im 1. Obergeschoss stehen 4 Zimmer zur Verfügung (22 m², 17,5 m², 14 m², 9,5 m²), sowie ein Bad mit Wanne, Dusche, 2 Waschbecken, WC, Bidet, und einem Fenster). Der Südbalkon ist vom größten Zimmer aus erreichbar.
Das Dachgeschoss ist als 'riesiges' Studio konzipiert, in dem sich aktuell eine Sauna befindet. Daneben gibt es auf dieser Etage zwei geräumige Abstellräume.
Im Untergeschoss finden sich der 24 m² große Hobby-/Partykeller, ein Vorratskeller, ein als Hobby-Werkstatt nutzbarer, 21 m² großer Raum mit mehreren Starkstrom-Steckdosen, der Heizraum und der Tankraum. Geheizt wird praktisch mit Heizöl, die Heizanlage wurde im Jahr 2006 erneuert. Zur gleichen Zeit erhielt das Haus eine Solaranlage zur Brauchwasser-Erwärmung.
Die Lage des Hauses im südöstlichen Teil von Haimhausen (dem 'alten' Haimhausen) ist recht reizvoll: zum einen steht das Haus an einer ruhigen Anwohnerstraße, zum anderen ist man in wenigen Gehminuten im Zentrum des Ortes, mit einigen Geschäften und wichtigen Einrichtungen wie Ärzten, Apotheke, Banken, usw.
In geringer Entfernung befindet sich ein großer Abenteuerspielplatz, und die Grund- und Hauptschule sowie einer der 3 Kindergärten des Ortes befinden sich ebenfalls nur wenige Gehminuten vom Haus entfernt. Ebenfalls in geringer Entfernung wird in einigen Monaten ein neuer Lebensmittelmarkt eröffnen, worauf die Einwohner Haimhausens schon lange sehnsüchtig gewartet haben. Etwa 200 m vom Haus entfernt fährt der Bus nach Unterschleißheim-Lohhof ab, der Sie in knapp 10 Minuten zur S1 bringt (nach München, Freising und/oder zum Flughafen). Zum Haus gehört eine große Garage.
Das 401 m² große Grundstück hat Süd-Ausrichtung, und ist ein perfekter Rahmen für das große Haus.
Die Freistellung des Hauses ist bereits erfolgt.
Im Erdgeschoss befinden sich das ca. 43 m² große Wohnzimmer mit Ausgang zur Süd-Terrasse, die mit fast 10 m² angenehm geräumige Küche, daneben das knapp 14 m² große Esszimmer. Ein Gäste-WC fehlt natürlich auch nicht auf dieser Etage.
Im 1. Obergeschoss stehen 4 Zimmer zur Verfügung (22 m², 17,5 m², 14 m², 9,5 m²), sowie ein Bad mit Wanne, Dusche, 2 Waschbecken, WC, Bidet, und einem Fenster). Der Südbalkon ist vom größten Zimmer aus erreichbar.
Das Dachgeschoss ist als 'riesiges' Studio konzipiert, in dem sich aktuell eine Sauna befindet. Daneben gibt es auf dieser Etage zwei geräumige Abstellräume.
Im Untergeschoss finden sich der 24 m² große Hobby-/Partykeller, ein Vorratskeller, ein als Hobby-Werkstatt nutzbarer, 21 m² großer Raum mit mehreren Starkstrom-Steckdosen, der Heizraum und der Tankraum. Geheizt wird praktisch mit Heizöl, die Heizanlage wurde im Jahr 2006 erneuert. Zur gleichen Zeit erhielt das Haus eine Solaranlage zur Brauchwasser-Erwärmung.
Die Lage des Hauses im südöstlichen Teil von Haimhausen (dem 'alten' Haimhausen) ist recht reizvoll: zum einen steht das Haus an einer ruhigen Anwohnerstraße, zum anderen ist man in wenigen Gehminuten im Zentrum des Ortes, mit einigen Geschäften und wichtigen Einrichtungen wie Ärzten, Apotheke, Banken, usw.
In geringer Entfernung befindet sich ein großer Abenteuerspielplatz, und die Grund- und Hauptschule sowie einer der 3 Kindergärten des Ortes befinden sich ebenfalls nur wenige Gehminuten vom Haus entfernt. Ebenfalls in geringer Entfernung wird in einigen Monaten ein neuer Lebensmittelmarkt eröffnen, worauf die Einwohner Haimhausens schon lange sehnsüchtig gewartet haben. Etwa 200 m vom Haus entfernt fährt der Bus nach Unterschleißheim-Lohhof ab, der Sie in knapp 10 Minuten zur S1 bringt (nach München, Freising und/oder zum Flughafen). Zum Haus gehört eine große Garage.
Das 401 m² große Grundstück hat Süd-Ausrichtung, und ist ein perfekter Rahmen für das große Haus.
Die Freistellung des Hauses ist bereits erfolgt.
Ausstattungsmerkmale
| Anzahl der Etagen im Haus | 3 |
| Küche | Einbauküche |
| Bad | Dusche, Wanne, Fenster, Bidet |
| Boden | Fliesen, Teppich, Fertigparkett |
Im Jahr 2006 erneuerte Heizanlage, betrieben mit Heizöl; ebenfalls 2006 Installierung einer Solar-Anlage auf dem Süddach, zur Brauchwasser-Erwärmung;
Fußbodenheizung plus Heizkörper im EG; Einbauküche;
Großes Bad im OG mit Wanne, Dusche, 2 Waschbecken, WC, Bidet, und einem Fenster; Gäste-WC;
Südbalkon, vom größten der 4 Zimmer im 1. OG aus erreichbar; Sauna im DG-Studio;
Große Südterrasse, hälftig überdacht;
Doppelgarage;
Gewächshaus und Gerätehaus im östlichen Gartenbereich;
Großer Hobbykeller für Fitness, Feiern, Home-Entertainment.
Fußbodenheizung plus Heizkörper im EG; Einbauküche;
Großes Bad im OG mit Wanne, Dusche, 2 Waschbecken, WC, Bidet, und einem Fenster; Gäste-WC;
Südbalkon, vom größten der 4 Zimmer im 1. OG aus erreichbar; Sauna im DG-Studio;
Große Südterrasse, hälftig überdacht;
Doppelgarage;
Gewächshaus und Gerätehaus im östlichen Gartenbereich;
Großer Hobbykeller für Fitness, Feiern, Home-Entertainment.
Sonstige Informationen
Der Kaufpreis beträgt EUR 1.100.000,- inkl. Garage und EBK.
Beim Abschluss des notariellen Kaufvertrages stellen wir dem Käufer eine Nachweis- und/oder Vermittlungsprovision in Höhe von 2,38 % inkl. ges. MwSt. in Rechnung.
Wir haben einen provisionspflichtigen Maklervertrag mit dem Verkäufer in gleicher Höhe geschlossen.
Beim Abschluss des notariellen Kaufvertrages stellen wir dem Käufer eine Nachweis- und/oder Vermittlungsprovision in Höhe von 2,38 % inkl. ges. MwSt. in Rechnung.
Wir haben einen provisionspflichtigen Maklervertrag mit dem Verkäufer in gleicher Höhe geschlossen.
Karte wird geladen...
Objektstandort
85778 Haimhausen
Lage & Infrastruktur
Objektstandort
85778 Haimhausen
Haimhausen ist ein charmanter Ort im nördlichen Münchner Umland, der sich einerseits seine Eigenständigkeit und die beschauliche Lage an den Amper-Auen bewahren konnte, andererseits durch die Nähe zur Großstadt München, dem Flughafen und den großen Fernstraßen ein attraktiver Wohnort geworden ist.
In Haimhausen gibt es 3 Kindergärten, Grund- und Hauptschule befinden sich im Ort, und die Bavarian International School, kurz B.I.S., hat sich im edlen Schloss zu Haimhausen seit den 1990er Jahren adäquat eingerichtet.
Die S-Bahnstation 'Lohhof' ist nur ein paar Autominuten entfernt, wobei auch ein geregelter Busbetrieb besteht. Zahlreiche Einkaufsmöglichkeiten, Kindergärten, Schule, Ärzte, Apotheke, Banken, befinden sich im Radius von wenigen Gehminuten zum Haus.
Diese Fülle an Annehmlichkeiten bei gleichzeitig dörflich-ländlichem Charakter macht den Reiz Haimhausens aus.
In Haimhausen gibt es 3 Kindergärten, Grund- und Hauptschule befinden sich im Ort, und die Bavarian International School, kurz B.I.S., hat sich im edlen Schloss zu Haimhausen seit den 1990er Jahren adäquat eingerichtet.
Die S-Bahnstation 'Lohhof' ist nur ein paar Autominuten entfernt, wobei auch ein geregelter Busbetrieb besteht. Zahlreiche Einkaufsmöglichkeiten, Kindergärten, Schule, Ärzte, Apotheke, Banken, befinden sich im Radius von wenigen Gehminuten zum Haus.
Diese Fülle an Annehmlichkeiten bei gleichzeitig dörflich-ländlichem Charakter macht den Reiz Haimhausens aus.
Kontaktanfrage senden
Über den Anbieter
tell Immobilien e.K.
Am Pfanderling 54
85778 Haimhausen
Kontakt
| Telefon | +49 8133 444210 |
| Mobil | +49 172 8460088 |
| Fax | +49 8133 4442129 |
| Website | www.tell-immobilien.de |
Ansprechpartner/in
Herr Bernhard Umstädter