Geräumige 2 Zimmerwohnung in ruhiger Wohnsiedlung nahe Dahlen mit Stellplatz- Einziehen & Wohlfühlen
39.000 €
Kaufpreis
63,2 m²
Wohnfläche
84 m²
Nutzfläche
2
Zimmer
immobilien.de Nr.: 9451878
Objektnummer: 1934
Kaufpreis
| Kaufpreis | 39.000 € |
| Hausgeld | 401 € |
| Maklerprovision | 2.500,00 € inkl. ges. MwSt. (in Höhe von derzeit 19 %) |
| Stellplatz Freiplatz Miete} | 0 € |
Wohnfläche, Grundstück & Bausubstanz
| Wohnfläche | 63,2 m² |
| Nutzfläche | 84 m² |
| Zimmer | 2 |
| Baujahr | 1995 |
| Verfügbar ab | keine Angabe |
| Zustand | Gepflegt |
Energie
| Energieausweistyp | Verbrauch |
| Gültig bis | 2034-03-28 |
| Baujahr (laut Energieausweis) | 1995 |
| Energieeffizienzklasse | E |
| Energieverbrauchkennwert | 130.90 kWh/(m²*a) |
| Heizungsart | Zentralheizung |
| Wesentlicher Energieträger | Oel |
| Energieträger/Befeuerung | Öl |
Beschreibung der Immobilie
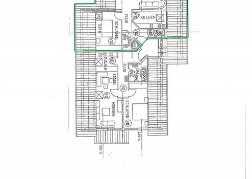
Verkauft wird eine große 2 Zimmer Dachgeschoss Wohnung im ruhigen Ortsteil Großböhla.
Die Wohnsiedlung befindet sich in einer ruhigen Gegend und ist perfekt für Familien geeignet.
Die 2-Raum Wohnung befindet sich am ruhigen Ortsrand von Großböhla, einen Ortsteil von der Stadt Dahlen. Die Wohnung ist Teil eines Mehrfamilienhauses welches aus 3 Etagen besteht und 1995 erbaut wurde.
Die helle und praktisch geschnittene Wohnung liegt in der 3. Etage.
Sie teilt sich in ein geräumiges, helles Wohnzimmer, Bad mit Wanne, einem seperaten WC, Küche und einem Schlafzimmer auf.
Vom Wohnzimmer aus, gelangt man auf den gemütlichen Balkon mit Blick auf angrenzende Wiesen und das kleine Dorf.
Zur Einheit gehören auch ein Kellerraum und ein direkt am Haus gelegener Stellplatz.
Ein im Haus befindlicher Hauswirtschaftsraum wird gemeinschaftlich genutzt.
Die Wohnsiedlung befindet sich in einer ruhigen Gegend und ist perfekt für Familien geeignet.
Die 2-Raum Wohnung befindet sich am ruhigen Ortsrand von Großböhla, einen Ortsteil von der Stadt Dahlen. Die Wohnung ist Teil eines Mehrfamilienhauses welches aus 3 Etagen besteht und 1995 erbaut wurde.
Die helle und praktisch geschnittene Wohnung liegt in der 3. Etage.
Sie teilt sich in ein geräumiges, helles Wohnzimmer, Bad mit Wanne, einem seperaten WC, Küche und einem Schlafzimmer auf.
Vom Wohnzimmer aus, gelangt man auf den gemütlichen Balkon mit Blick auf angrenzende Wiesen und das kleine Dorf.
Zur Einheit gehören auch ein Kellerraum und ein direkt am Haus gelegener Stellplatz.
Ein im Haus befindlicher Hauswirtschaftsraum wird gemeinschaftlich genutzt.
Ausstattungsmerkmale
| Anzahl der Etagen im Haus | 3 |
| Bad | 1 |
| Balkone | 1 |
| Haustiere | |
| Keller |
Die 2 Zimmer Wohnung mit guter Ausstattung und einer Wohnfläche von 63,4 qm und einer Grundfläche von ca.74 qm ist praktisch und großzügig geschnitten. Sie verfügt über einen Balkon und einem Kellerraum sowie einen zugewiesenen PKW Stellplatz vor dem Haus. Im Keller befindet sich zu jeder Wohneinheit ein separater Kellerabteil und ein Hauswirtschaftsraum.
Ausstattung der Wohnung :
-Bad mit Wanne
-Separat getrenntes WC
-Bodenbeläge bestehend aus Fliesen und Laminat
-Kunststofffenster Doppelisolierverglasung
-Balkon
-Stellplatz
Ausstattung der Wohnung :
-Bad mit Wanne
-Separat getrenntes WC
-Bodenbeläge bestehend aus Fliesen und Laminat
-Kunststofffenster Doppelisolierverglasung
-Balkon
-Stellplatz
Sonstige Informationen
Die Wohnung war zuletzt seit Oktober 2020 vermietet und steht aktuell zur Neuvermietung. Alternativ kann die Wohnung vom Käufer auch selbst genutzt werden.
Die letzte Kaltmiete betrug monatlich 290,00 Euro zgl. 16,00 Euro für einen PKW Stellplatz
Potential an Mietanpassung ist gegeben.
Machen Sie sich ein eigenes Bild und lassen Sie sich von dem Angebot überzeugen. Kontaktieren Sie uns unter 0341/1247815.
Weitere ausführliche Details besprechen wir gern persönlich und vereinbaren einen Besichtigungstermin mit Ihnen.
Die letzte Kaltmiete betrug monatlich 290,00 Euro zgl. 16,00 Euro für einen PKW Stellplatz
Potential an Mietanpassung ist gegeben.
Machen Sie sich ein eigenes Bild und lassen Sie sich von dem Angebot überzeugen. Kontaktieren Sie uns unter 0341/1247815.
Weitere ausführliche Details besprechen wir gern persönlich und vereinbaren einen Besichtigungstermin mit Ihnen.
Karte wird geladen...
Objektstandort
04774 Dahlen / Großböhla
Lage & Infrastruktur
Objektstandort
04774 Dahlen / Großböhla
Seit 1994 sind die Orte Großböhla, Kleinböhla und Neuböhla Stadtteile von der Heidestadt Dahlen. Jeder der drei Stadtteile hat seine kleine Geschichte und so manche Sehenswürdigkeit, die es zu entdecken gibt.
Mit seinen vielen Teichen, seinen verschlungenen Wegen, seiner interessanten Flora und Fauna bietet er Raum für Erholung und Genuss. Besonders interessant ist ein kleines Baudenkmal im Großböhlaer Park. Eine mehr als hundertjährige Begräbnisstätte der einstigen Herren auf Großböhla.Die nahe liegenden Städte Dahlen, Oschatz und Torgau sind schnell und gut zu erreichen.
Mit seinen vielen Teichen, seinen verschlungenen Wegen, seiner interessanten Flora und Fauna bietet er Raum für Erholung und Genuss. Besonders interessant ist ein kleines Baudenkmal im Großböhlaer Park. Eine mehr als hundertjährige Begräbnisstätte der einstigen Herren auf Großböhla.Die nahe liegenden Städte Dahlen, Oschatz und Torgau sind schnell und gut zu erreichen.
Kontaktanfrage senden
Über den Anbieter
Immobilien Kompetenz Mitteldeutschland eG
An der Alten Mühle 1
04356 Leipzig
Kontakt
| Telefon | 00493411247815 |
| Fax | 00493411247823 |
Ansprechpartner/in
Frau Jenny Fengler
Weitere Angebote des Anbieters
10
Helle Zweizimmerwohnung in ruhiger Lage mit Balkon ...
Wohnung
04315 Leipzig / Volkmarsdorf
Praktisch geschnittene, renovierte Wohnung sucht neuen Mieter ab März 2026. Die Zweizimmerwohnung befindet sich im 2. Obergeschoss, in einer ruhigen Gegend des Leipziger Stadtteils Volkmarsdorf.
450 €
Kaltmiete
58,9 m²
Wohnfläche
2
Zimmer
11
Top Kapitalanlage mit Stellplatz - Eigentumswohnung ...
Wohnung
06862 Dessau-Roßlau
Die helle und ruhige 2-Zimmer-Wohnung befindet sich im Erdgeschoss eines 1978 erbauten Mehrfamilienhauses. Die Miete beträgt 219,78 € kalt zuzüglich Nebenkosten. Hinzu kommen noch Strom und Internet. An das Wohnzimmer ...
38.900 €
Kaufpreis
56,56 m²
Wohnfläche
2
Zimmer
6
Mehrfamilienhaus mit Potenzial
Haus
08209 Auerbach
Zum Verkauf steht ein massiv gebautes Mehrfamilienhaus mit drei Etagen, das auf einem soliden Fundament ruht und durch seinen Charakter besticht. Die gesamte Wohnfläche erstreckt sich auf ca. 360 m², verteilt über drei ...
98.000 €
Kaufpreis
360 m²
Wohnfläche
15
Zimmer
8
Top Kapitalanlage: gepflegte 3 Zimmer Wohnung mit ...
Wohnung
06729 Elsteraue
Willkommen zu Ihrem neuen Zuhause oder Ihrer nächsten Kapitalanlage in Elsteraue – einer charmanten, sanierten Erdgeschosswohnung, die im Jahr 1939 erbaut und 2019/2020 umfassend modernisiert wurde. Diese attraktive ...
69.000 €
Kaufpreis
66 m²
Wohnfläche
3
Zimmer
3
Einziehen & Wohlfühlen -Einfamilienhaus -frisch ...
Haus
04509 Schönwölkau
Entdecken Sie dieses beeindruckende, renovierte Einfamilienhaus in Schönwölkau, das Ihnen und Ihrer Familie ein modernes und komfortables Zuhause bietet. Erbaut im Jahr 2006 in solider Massivbauweise, vereint diese ...
465.000 €
Kaufpreis
188 m²
Wohnfläche
6
Zimmer