Tolles Einfamilienhaus mit Einliegerwohnung sucht Familie!
516.880 €
Kaufpreis
167,94 m²
Wohnfläche
167 m²
Nutzfläche
5
Zimmer
immobilien.de Nr.: 9451416
Objektnummer: KT-042-033-LEH
Kaufpreis
| Kaufpreis | 516.880 € |
Wohnfläche, Grundstück & Bausubstanz
| Wohnfläche | 167,94 m² |
| Nutzfläche | 167 m² |
| Grundstücksfläche | 496 m² |
| Zimmer | 5 |
| Verfügbar ab | keine Angabe |
| Zustand | Projektiert |
Energie
| Energietyp | KfW-40 |
| Energieträger/Befeuerung | Luft-Wärme-Pumpe |
Beschreibung der Immobilie
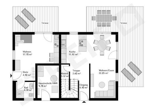
Das Einfamilienhaus mit Einliegerwohnung ist in der Architektur klassisch mit einem
Satteldach geplant worden. Die Einliegerwohnung ist zum Vermieten, für ein
Familienmitglied oder auch für eine Selbstständigkeit geeignet. Die "Hauptwohnung" bietet
im Erdgeschoss einen behaglichen Wohn-/Ess- und Kochbereich, der über 4 Terrassentüren
und 3 Fenster von drei Seiten mit viel Tageslicht versorgt wird. Die 4 Terrassentüren sind
übereck angeordnet, sodass sich beim Essbereich "Wintergartenfeeling" verbreitet. Im
Dachgeschoss des Hauses finden zwei große Kinderzimmer Platz, sowie ein Elternbereich
mit Ankleide, ein großes Familienbad und einen Abstellraum. Insgesamt bietet das Haus
eine Netto-Raumfläche von 169,1 m².
Satteldach geplant worden. Die Einliegerwohnung ist zum Vermieten, für ein
Familienmitglied oder auch für eine Selbstständigkeit geeignet. Die "Hauptwohnung" bietet
im Erdgeschoss einen behaglichen Wohn-/Ess- und Kochbereich, der über 4 Terrassentüren
und 3 Fenster von drei Seiten mit viel Tageslicht versorgt wird. Die 4 Terrassentüren sind
übereck angeordnet, sodass sich beim Essbereich "Wintergartenfeeling" verbreitet. Im
Dachgeschoss des Hauses finden zwei große Kinderzimmer Platz, sowie ein Elternbereich
mit Ankleide, ein großes Familienbad und einen Abstellraum. Insgesamt bietet das Haus
eine Netto-Raumfläche von 169,1 m².
Ausstattungsmerkmale
| Anzahl der Etagen im Haus | 2 |
| Küche | Offene Küche |
| Bad | 1 |
| Bad | Dusche, Wanne, Fenster |
Die Ausstattung Ihres neuen Zuhauses lässt keine Wünsche offen. Mit einer gehobenen Ausstattung und dem Einsatz einer umweltfreundlichen Wärmepumpe setzen wir auf Nachhaltigkeit und Energieeffizienz. Das Haus erfüllt den KFW40 Standard, was nicht nur Ihrem Geldbeutel zugutekommt, sondern auch einen Beitrag zum Klimaschutz leistet. Die sorgfältig ausgewählten Materialien und die moderne Technik garantieren höchsten Wohnkomfort und Langlebigkeit.
Sonstige Informationen
Bei STREIF haben Sie die Wahl zwischen verschiedenen Ausbaustufen, um Ihr Haus ganz nach Ihren Vorstellungen zu gestalten. Unser Projekt umfasst die Ausbaustufe 'FastFertigPlus', bei der Sie aktiv an Ihrem Bauvorhaben mitwirken können und gleichzeitig alle haustechnischen Gewerke von Fachbetrieben erledigt werden. Diese Option ist ideal für all jene, die Eigenleistung einbringen möchten - bekannt als Muskelhypothek -, um so Kosten zu sparen. Der Preis für unser Beispielobjekt beginnt bei 344.375 EUR. Zudem bieten wir umfassende Beratungsgespräche an, um sicherzustellen, dass Ihr Haus genau Ihren Wünschen entspricht.
Karte wird geladen...
Objektstandort
14797 Kloster Lehnin
Lage & Infrastruktur
Objektstandort
14797 Kloster Lehnin
Das Haus befindet sich in der idyllischen Gemeinde Kloster Lehnin. Diese Lage bietet eine perfekte Balance zwischen ruhigem Wohnen und guter Erreichbarkeit der städtischen Annehmlichkeiten. Genießen Sie die Naturnähe und profitieren Sie von einer gut ausgebauten Infrastruktur mit Schulen, Einkaufsmöglichkeiten und Freizeitangeboten in unmittelbarer Nähe.
Kontaktanfrage senden
Über den Anbieter
STREIF Haus GmbH
Josef-Streif-Straße 1
54595 Weinsheim
Kontakt
| Telefon | +49 3327 6679010 |
| Mobil | +49 179 5093906 |
| Website | www.streif.de |
Ansprechpartner/in
Herr Kai Günther Trapp (IHK Zertifiziert)