Baugrundstück perfekt für Ihr Traumhaus
478.666 €
Kaufpreis
106 m²
Wohnfläche
6
Zimmer
immobilien.de Nr.: 9451331
Objektnummer: 195135
Kaufpreis
| Kaufpreis | 478.666 € |
Wohnfläche, Grundstück & Bausubstanz
| Wohnfläche | 106 m² |
| Grundstücksfläche | 1.064 m² |
| Zimmer | 6 |
| Baujahr | 2025 |
| Verfügbar ab | keine Angabe |
| Zustand | Projektiert |
Energie
| Energieausweistyp | Bedarfsausweis |
| Energieeffizienzklasse | A+ |
| Energietyp | KfW-40 |
| Endenergiebedarf | 30.00 |
| Wesentlicher Energieträger | Strom |
| Energieträger/Befeuerung | Luft-Wärme-Pumpe |
Beschreibung der Immobilie
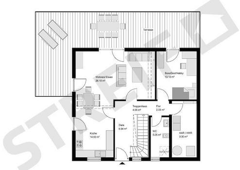
Willkommen in Ihrem zukünftigen Traumhaus in Groß Kreutz (Havel), einem idyllischen Wohngebiet, das Ihnen ein harmonisches Zusammenleben mit der Natur ermöglicht. Dieses beeindruckende Einfamilienhaus mit einer Wohnfläche von 106 m² und einem großzügigen Grundstück von 1064 m² bietet Ihnen und Ihrer Familie ausreichend Platz zum Entfalten. Auf zwei Etagen verteilt, bietet das Haus sechs Zimmer, darunter ein komfortables Schlafzimmer, ein modernes Badezimmer mit Dusche, Wanne und Fenster sowie ein zusätzliches Gäste-WC. Das durchdachte Layout garantiert Ihnen sowohl Rückzugsmöglichkeiten als auch gesellige Familienmomente. Mit der Ausbaustufe "FastFertigPlus" haben Sie die Möglichkeit, aktiv am Bau Ihres neuen Zuhauses mitzuwirken und gleichzeitig die haustechnischen Gewerke von Fachbetrieben ausführen zu lassen. Der Einstiegspreis für dieses attraktive Haus beträgt ab 344.375 EUR.
Ausstattungsmerkmale
| Anzahl der Etagen im Haus | 2 |
| Küche | Offene Küche |
| Bad | 1 |
| Bad | Dusche, Wanne, Fenster |
| Boden | Fliesen, Laminat |
Die gehobene Ausstattung dieses Einfamilienhauses wird Sie begeistern. Die eleganten Bodenbeläge aus Fliesen und Laminat vereinen Funktionalität mit Stil - Fliesen sind pflegeleicht und ideal für feuchte Räume, während Laminat eine warme, angenehme Atmosphäre schafft. Die Beheizung erfolgt über eine moderne Wärmepumpe, die nicht nur umweltfreundlich ist, sondern auch Ihre Energiekosten minimiert. Dieses Haus erfüllt zudem den KFW40 Standard, was bedeutet, dass es hohe Anforderungen an die Energieeffizienz erfüllt und Ihnen somit langfristig Kosten spart.
Sonstige Informationen
Sie haben die Wahl zwischen vier verschiedenen Ausbaustufen, die Ihnen ermöglichen, Ihr Haus ganz nach Ihren Vorstellungen zu gestalten. Die Ausbaustufe "FastFertigPlus" beinhaltet eine umfassende Sanitär-Grundausstattung. Vor dem Bau findet eine persönliche Beratung statt, in der Ihre Wünsche und Vorstellungen ermittelt werden. Anschließend erfolgt die maßgeschneiderte Planung Ihres Einfamilienhauses, die innerhalb weniger Monate umgesetzt wird. Sie können Ihr Haus schlüsselfertig oder in der von Ihnen gewünschten Ausbaustufe erhalten.
Karte wird geladen...
Objektstandort
14550 Groß Kreutz (Havel)
Lage & Infrastruktur
Objektstandort
14550 Groß Kreutz (Havel)
Groß Kreutz (Havel) bietet Ihnen eine attraktive Lage, die sowohl Ruhe als auch eine gute Anbindung an die Infrastruktur garantiert. In der Umgebung finden Sie Einkaufsmöglichkeiten, Schulen und Freizeitangebote, die das Leben für Sie und Ihre Familie angenehm gestalten. Genießen Sie die Natur und die vielfältigen Möglichkeiten zur Erholung in der Umgebung, die Ihnen zahlreiche Aktivitäten im Freien bietet.
Kontaktanfrage senden
Über den Anbieter
STREIF Haus GmbH
Josef-Streif-Straße 1
54595 Weinsheim
Kontakt
| Telefon | 06551 12 00 |
| Mobil | +49 176 63463836 |
| Website | www.streif.de |
Ansprechpartner/in
Herr Jörg Knüpfer