Letztes Haus in Eisenach in bester Lage
386.000 €
Kaufpreis
117,65 m²
Wohnfläche
117,65 m²
Nutzfläche
5
Zimmer
immobilien.de Nr.: 9451104
Objektnummer: 99810
Kaufpreis
| Kaufpreis | 386.000 € |
| Stellplatz Carport Kaufpreis | 10.000 € |
| Stellplatz Garage Kaufpreis | 15.000 € |
Wohnfläche, Grundstück & Bausubstanz
| Wohnfläche | 117,65 m² |
| Nutzfläche | 117,65 m² |
| Grundstücksfläche | 829 m² |
| Zimmer | 5 |
| Baujahr | 2025 |
| Verfügbar ab | keine Angabe |
| Zustand | Projektiert |
Energie
| Energietyp | KfW-40 |
| Energieträger/Befeuerung | Luft-Wärme-Pumpe |
Beschreibung der Immobilie
Das hier angebotene Haus hat eine Netto-Raumfläche von insgesamt ca. 125 146 177 m², Effizienzhaus-Klasse 40 plus, inkl. Photovoltaikanlage und Batteriespeicher.
Die Stadtvilla CITY- so baut man heute.
Wir planen und bauen für Sie eine Stadtvilla ganz nach Ihren Wünschen und Vorstellungen - auf kleinstem Raum mit größtmöglicher Platzausnutzung.
Sie haben für den Bau Ihrer Stadtvilla eine große Auswahl an Möglichkeiten, wie der Stil Ihres Hauses innen und außen gestaltet sein soll.
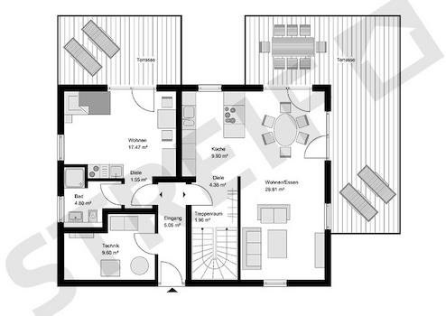
Das zweigeschossige Einfamilienhaus mit Walmdach ist modern in der Architektur und bietet einen sehr gut durchdachten Grundriss mit vielen Details.
Die abgebildeten Hausentwürfe sind Gestaltungsvorschläge. Eine Vielzahl individueller Anpassungen wie z. B. Hausgröße, Dachgeometrie, Fenstergrößen und deren Position sind möglich.
STREIF-Energiespar-Häuser sind für die Effizienzhaus-Klasse 40 plus ausgestattet. Gerne stellen wir für Ihr Haus eine Ökobilanz (KFWG) aus.
Dies bescheinigt, dass Ihr STREIF-Haus den neuen KfW-Förderrichtlinien für den Klimafreundlichen Neubau (KFN) entspricht. So sichern Sie sich bis zu 100.000,00 EUR zinsgünstiges Darlehen. Ergänzend mit der Nachhaltigkeitszertifizierung nach QNG (KFWG-Q) erhöht sich Ihr subventionierter Darlehensanspruch auf 150.000EUR.
Auch die Familienförderung mit bis zu 250.000EUR Förderdarlehen mit Zinssätzen ca. 0,8 % ist äußerst lukrativ.
Wir beraten Sie gerne beim Hauskauf! Sprechen Sie uns an: 01590-2228735
Die Stadtvilla CITY- so baut man heute.
Wir planen und bauen für Sie eine Stadtvilla ganz nach Ihren Wünschen und Vorstellungen - auf kleinstem Raum mit größtmöglicher Platzausnutzung.
Sie haben für den Bau Ihrer Stadtvilla eine große Auswahl an Möglichkeiten, wie der Stil Ihres Hauses innen und außen gestaltet sein soll.
Das zweigeschossige Einfamilienhaus mit Walmdach ist modern in der Architektur und bietet einen sehr gut durchdachten Grundriss mit vielen Details.
Die abgebildeten Hausentwürfe sind Gestaltungsvorschläge. Eine Vielzahl individueller Anpassungen wie z. B. Hausgröße, Dachgeometrie, Fenstergrößen und deren Position sind möglich.
STREIF-Energiespar-Häuser sind für die Effizienzhaus-Klasse 40 plus ausgestattet. Gerne stellen wir für Ihr Haus eine Ökobilanz (KFWG) aus.
Dies bescheinigt, dass Ihr STREIF-Haus den neuen KfW-Förderrichtlinien für den Klimafreundlichen Neubau (KFN) entspricht. So sichern Sie sich bis zu 100.000,00 EUR zinsgünstiges Darlehen. Ergänzend mit der Nachhaltigkeitszertifizierung nach QNG (KFWG-Q) erhöht sich Ihr subventionierter Darlehensanspruch auf 150.000EUR.
Auch die Familienförderung mit bis zu 250.000EUR Förderdarlehen mit Zinssätzen ca. 0,8 % ist äußerst lukrativ.
Wir beraten Sie gerne beim Hauskauf! Sprechen Sie uns an: 01590-2228735
Ausstattungsmerkmale
| Anzahl der Etagen im Haus | 1 |
| Küche | Offene Küche |
| Bad | 1 |
| Bad | Dusche, Wanne, Fenster |
| Boden | Parkett, Laminat |
| Garten | |
| Terrassen | 1 |
| Garage/Stellplätze | 1 |
| Carport | 1 |
STREIF-Häuser erfüllen bereits im Standard die Effizienzhaus-Klasse KfW40PLUS.
Die STREIF-Passiv-Haus-Wände, eine effiziente Heiztechnik mit integrierter Wohnraumlüftung und Wärmerückgewinnung garantieren einen geringen Energieverbrauch und ein fantastisches Raumklima, das insbesondere Allergiker aufatmen lässt.
STREIF Leistungen sind MEHR WERT - schon im Grundpreis enthalten!
- 16-monatige Festpreisgarantie
- inkl. individuelle Grundrissgestaltung und Raumaufteilung
- inkl. gedämmte Fundamentplatte
- inkl. Photovoltaikanlage (6,72 kWp) inkl. Batteriespeicher
- inkl. Wärmepumpen-Technologie mit integrierter Lüftungsanlage mit Wärmerückgewinnung
- inkl. Haustür von KERA und Fenster von Porta/Kömmerling
- inkl. Massivholz-Geschosstreppe aus eigener Produktion
- inkl. Sanitärobjekte von Markenherstellern
- inkl. Elektroinstallation
- inkl. Gütesiegel vom TÜV Rheinland- (schadstoffgeprüfte Materialien)
- inkl.. KfW-Berechnungen, Nachweise & Anträge
Was wir Ihnen sonst noch bieten:
Kostenlose Bauberatung inkl. Grundrissplanung
Ermittlung der Gesamt-Investition Ihres Bauvorhabens
Finanzierungs - & Fördermittelberatung
Die hohe Wertigkeit und Langlebigkeit eines STREIF-Energiespar-Hauses wird durch zahlreiche Auszeichnungen, Qualitäts- und Gütesiegel unabhängiger Institute und Verbände dokumentiert.
Der Angebotspreis ist inklusive Grundstück und bezieht sich auf die Standard-Ausbaustufe Fast-Fertig-Plus (Technikfertig inkl. Bäder). Somit wären Ihre Eigenleistungen: Malerarbeiten, Bodenbeläge und die Innentüren. Selbstverständlich können wir Ihr Haus auch schlüsselfertig / bezugsfertig errichten.
Wir beraten Sie gerne beim Hauskauf! Sprechen Sie uns an: 01590-2228735
Die STREIF-Passiv-Haus-Wände, eine effiziente Heiztechnik mit integrierter Wohnraumlüftung und Wärmerückgewinnung garantieren einen geringen Energieverbrauch und ein fantastisches Raumklima, das insbesondere Allergiker aufatmen lässt.
STREIF Leistungen sind MEHR WERT - schon im Grundpreis enthalten!
- 16-monatige Festpreisgarantie
- inkl. individuelle Grundrissgestaltung und Raumaufteilung
- inkl. gedämmte Fundamentplatte
- inkl. Photovoltaikanlage (6,72 kWp) inkl. Batteriespeicher
- inkl. Wärmepumpen-Technologie mit integrierter Lüftungsanlage mit Wärmerückgewinnung
- inkl. Haustür von KERA und Fenster von Porta/Kömmerling
- inkl. Massivholz-Geschosstreppe aus eigener Produktion
- inkl. Sanitärobjekte von Markenherstellern
- inkl. Elektroinstallation
- inkl. Gütesiegel vom TÜV Rheinland- (schadstoffgeprüfte Materialien)
- inkl.. KfW-Berechnungen, Nachweise & Anträge
Was wir Ihnen sonst noch bieten:
Kostenlose Bauberatung inkl. Grundrissplanung
Ermittlung der Gesamt-Investition Ihres Bauvorhabens
Finanzierungs - & Fördermittelberatung
Die hohe Wertigkeit und Langlebigkeit eines STREIF-Energiespar-Hauses wird durch zahlreiche Auszeichnungen, Qualitäts- und Gütesiegel unabhängiger Institute und Verbände dokumentiert.
Der Angebotspreis ist inklusive Grundstück und bezieht sich auf die Standard-Ausbaustufe Fast-Fertig-Plus (Technikfertig inkl. Bäder). Somit wären Ihre Eigenleistungen: Malerarbeiten, Bodenbeläge und die Innentüren. Selbstverständlich können wir Ihr Haus auch schlüsselfertig / bezugsfertig errichten.
Wir beraten Sie gerne beim Hauskauf! Sprechen Sie uns an: 01590-2228735
Sonstige Informationen
Sie brauchen einen kompetenten und verlässlichen Baupartner? Wir stehen Ihnen von Anfang an zur Seite & begleiten Sie auf dem Weg in Ihr Eigenheim:
Mit großem Engagement, Persönlichkeit und einer Fachfirma STREIF mit immensen Bau-Know-how, die seit 1929 auf über 85.000 realisierte Wohnträume zurückblicken kann.
Jedes Haus von STREIF wird individuell als Energiesparhaus geplant und gebaut. Eine nachhaltige, ökologische und wohngesunde Bauweise, eine zertifizierte Ausführungsqualität und eine kurze Bauzeit, dafür stehen wir.
Gerne beraten wir Sie nach Vereinbarung in unserem Musterhaus in Kassel/Fuldabrück und erstellen Ihnen ein Angebot mit einer detaillierten & realistisch ermittelten Aufstellung der Gesamt-Investition.
Wir freuen uns auf Ihren Anruf / Nachricht!
Ihr STREIF Fachberaterin, Bianca Albrecht
www.nordost.streif.team/login
Mobil: 01590-2228735
E-Mail: bianca.albrecht@streif.de
Hinweis:
Vorverkauf und Irrtümer vorbehalten.Bilder können Sonderbauteile darstellen, die im Preis nicht enthalten sind und abweichend von textlichen Inhalten sein.
zzgl. Baunebenkosten.
Der Grundstückserwerb stellt keine STREIF Leistung dar.
Hinweis zu den gesetzlichen Pflichtangaben gemäß der EnEV 2016: Bei dem hier angebotenen Haus handelt es sich um ein Neubauprojekt.
Wir weisen darauf hin, dass zu diesem projektierten Haus noch kein Energieausweis vorliegt. Der Energieausweis wird Ihnen spätestens im Rahmen der Erstellung des Objektes ausgehändigt
Mit großem Engagement, Persönlichkeit und einer Fachfirma STREIF mit immensen Bau-Know-how, die seit 1929 auf über 85.000 realisierte Wohnträume zurückblicken kann.
Jedes Haus von STREIF wird individuell als Energiesparhaus geplant und gebaut. Eine nachhaltige, ökologische und wohngesunde Bauweise, eine zertifizierte Ausführungsqualität und eine kurze Bauzeit, dafür stehen wir.
Gerne beraten wir Sie nach Vereinbarung in unserem Musterhaus in Kassel/Fuldabrück und erstellen Ihnen ein Angebot mit einer detaillierten & realistisch ermittelten Aufstellung der Gesamt-Investition.
Wir freuen uns auf Ihren Anruf / Nachricht!
Ihr STREIF Fachberaterin, Bianca Albrecht
www.nordost.streif.team/login
Mobil: 01590-2228735
E-Mail: bianca.albrecht@streif.de
Hinweis:
Vorverkauf und Irrtümer vorbehalten.Bilder können Sonderbauteile darstellen, die im Preis nicht enthalten sind und abweichend von textlichen Inhalten sein.
zzgl. Baunebenkosten.
Der Grundstückserwerb stellt keine STREIF Leistung dar.
Hinweis zu den gesetzlichen Pflichtangaben gemäß der EnEV 2016: Bei dem hier angebotenen Haus handelt es sich um ein Neubauprojekt.
Wir weisen darauf hin, dass zu diesem projektierten Haus noch kein Energieausweis vorliegt. Der Energieausweis wird Ihnen spätestens im Rahmen der Erstellung des Objektes ausgehändigt
Karte wird geladen...
Objektstandort
99817 Eisenach
Lage & Infrastruktur
Objektstandort
99817 Eisenach
Mit einer herrlichen Ausblick auf die Hörselberge lässt es sich leben.
Stockhausen ist ein Stadtteil von Eisenach, der dörfliches Flair mit nahe liegender Infrastruktur verbindet.
Wohnen und Leben Sie ruhig und angebunden. Per Stadtbus nach Eisenach-Zentrum oder auch wenige Minuten mit dem Auto. Einkaufsstraßen, Gastronomie, Kunst und Kultur und ICE-Bahnhof sowie Anschluss an die A 4 gibt es hier.
Stockhausen ist ein Stadtteil von Eisenach, der dörfliches Flair mit nahe liegender Infrastruktur verbindet.
Wohnen und Leben Sie ruhig und angebunden. Per Stadtbus nach Eisenach-Zentrum oder auch wenige Minuten mit dem Auto. Einkaufsstraßen, Gastronomie, Kunst und Kultur und ICE-Bahnhof sowie Anschluss an die A 4 gibt es hier.
Kontaktanfrage senden
Über den Anbieter
STREIF Haus GmbH
Josef-Streif-Straße 1
54595 Weinsheim
Kontakt
| Telefon | +49 159 02228735 |
| Mobil | +49 159 02228735 |
| Website | www.streif.de |
Ansprechpartner/in
Frau Bianca Albrecht