Schönes Haus und Umgebung in Schkölen
342.000 €
Kaufpreis
130 m²
Wohnfläche
130 m²
Nutzfläche
5
Zimmer
immobilien.de Nr.: 9451003
Objektnummer: 07618
Kaufpreis
| Kaufpreis | 342.000 € |
| Stellplatz Carport Kaufpreis | 10.000 € |
| Stellplatz Garage Kaufpreis | 15.000 € |
Wohnfläche, Grundstück & Bausubstanz
| Wohnfläche | 130 m² |
| Nutzfläche | 130 m² |
| Grundstücksfläche | 628 m² |
| Zimmer | 5 |
| Baujahr | 2025 |
| Verfügbar ab | keine Angabe |
| Zustand | Projektiert |
Energie
| Energietyp | KfW-40 |
| Energieträger/Befeuerung | Luft-Wärme-Pumpe |
Beschreibung der Immobilie
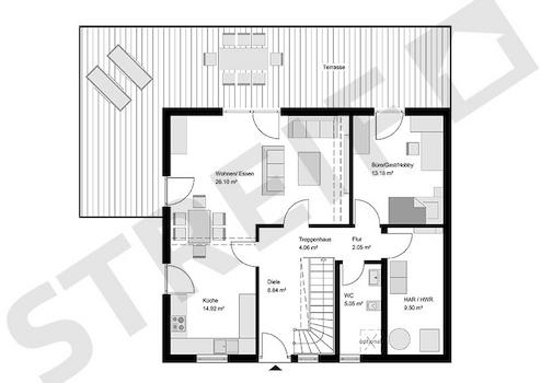
Der extravagante Entwurf der Stadtvilla im Bauhausstil sucht seinesgleichen. Ein Understatement in exklusivem Stil und vielen Details. Die Garage schmiegt sich als fließendes Element mit dem überdachten Hauseingangsbereich an das Gebäude an. Eine Wohnraumerweiterung im Wohn-/Essbereich wird als überdachte Terrasse fortgeführt. Insgesamt ergeben sich daraus spannende, und für den Bauhausstil charakteristische, Gebäudeversätze. Die Gebäudekörper sind farblich akzentuiert. Ein weiteres typisches Element des Bauhausstils ist das Flachdach, welches diesen Hausentwurf perfektioniert. Die Grundrissgestaltung überzeugt trotz eines kompakten Grundrisses mit 3 Schlafzimmern, 3 Bädern, einem zusätzlichen Raum im Erdgeschoss, mit einem großzügigen Wohn-/Ess- und Kochbereich. Über einen praktischen Nebeneingang gelangt man direkt vom Hauswirtschafts-/Haustechnikraum in die Garage. Dieser Hausentwurf ist nur ein Gestaltungsvorschlag. Individuelle Anpassungen wie z. B. in der Hausgröße, der Dachgeometrie oder den Fenstergrößen und -positionierungen sind möglich. Fragen Sie Ihren persönlichen STREIF-Bauberater.
Ausstattungsmerkmale
| Anzahl der Etagen im Haus | 1 |
| Küche | Offene Küche |
| Bad | 1 |
| Bad | Dusche, Wanne, Fenster |
| Boden | Parkett, Laminat |
| Balkone | 1 |
| Garten | |
| Garage/Stellplätze | 1 |
| Carport | 1 |
STREIF-Häuser erfüllen bereits im Standard die Effizienzhaus-Klasse KfW40PLUS.
Die STREIF-Passiv-Haus-Wände, eine effiziente Heiztechnik mit integrierter Wohnraumlüftung und Wärmerückgewinnung garantieren einen geringen Energieverbrauch und ein fantastisches Raumklima, das insbesondere Allergiker aufatmen lässt.
STREIF Leistungen sind MEHR WERT - schon im Grundpreis enthalten!
- 16-monatige Festpreisgarantie
- inkl. individuelle Grundrissgestaltung und Raumaufteilung
- inkl. gedämmte Fundamentplatte
- inkl. Photovoltaikanlage (6,72 kWp) inkl. Batteriespeicher
- inkl. Wärmepumpen-Technologie mit integrierter Lüftungsanlage mit Wärmerückgewinnung
- inkl. Haustür von KERA und Fenster von Porta/Kömmerling
- inkl. Massivholz-Geschosstreppe aus eigener Produktion
- inkl. Sanitärobjekte von Markenherstellern
- inkl. Elektroinstallation
- inkl. Gütesiegel vom TÜV Rheinland- (schadstoffgeprüfte Materialien)
- inkl.. KfW-Berechnungen, Nachweise & Anträge
Was wir Ihnen sonst noch bieten:
Kostenlose Bauberatung inkl. Grundrissplanung
Ermittlung der Gesamt-Investition Ihres Bauvorhabens
Finanzierungs - & Fördermittelberatung
Die hohe Wertigkeit und Langlebigkeit eines STREIF-Energiespar-Hauses wird durch zahlreiche Auszeichnungen, Qualitäts- und Gütesiegel unabhängiger Institute und Verbände dokumentiert.
Der Angebotspreis ist inklusive Grundstück und bezieht sich auf die Standard-Ausbaustufe Fast-Fertig-Plus (Technikfertig inkl. Bäder). Somit wären Ihre Eigenleistungen: Malerarbeiten, Bodenbeläge und die Innentüren. Selbstverständlich können wir Ihr Haus auch schlüsselfertig / bezugsfertig errichten.
Wir beraten Sie gerne beim Hauskauf! Sprechen Sie uns an: 01590-2228735
Die STREIF-Passiv-Haus-Wände, eine effiziente Heiztechnik mit integrierter Wohnraumlüftung und Wärmerückgewinnung garantieren einen geringen Energieverbrauch und ein fantastisches Raumklima, das insbesondere Allergiker aufatmen lässt.
STREIF Leistungen sind MEHR WERT - schon im Grundpreis enthalten!
- 16-monatige Festpreisgarantie
- inkl. individuelle Grundrissgestaltung und Raumaufteilung
- inkl. gedämmte Fundamentplatte
- inkl. Photovoltaikanlage (6,72 kWp) inkl. Batteriespeicher
- inkl. Wärmepumpen-Technologie mit integrierter Lüftungsanlage mit Wärmerückgewinnung
- inkl. Haustür von KERA und Fenster von Porta/Kömmerling
- inkl. Massivholz-Geschosstreppe aus eigener Produktion
- inkl. Sanitärobjekte von Markenherstellern
- inkl. Elektroinstallation
- inkl. Gütesiegel vom TÜV Rheinland- (schadstoffgeprüfte Materialien)
- inkl.. KfW-Berechnungen, Nachweise & Anträge
Was wir Ihnen sonst noch bieten:
Kostenlose Bauberatung inkl. Grundrissplanung
Ermittlung der Gesamt-Investition Ihres Bauvorhabens
Finanzierungs - & Fördermittelberatung
Die hohe Wertigkeit und Langlebigkeit eines STREIF-Energiespar-Hauses wird durch zahlreiche Auszeichnungen, Qualitäts- und Gütesiegel unabhängiger Institute und Verbände dokumentiert.
Der Angebotspreis ist inklusive Grundstück und bezieht sich auf die Standard-Ausbaustufe Fast-Fertig-Plus (Technikfertig inkl. Bäder). Somit wären Ihre Eigenleistungen: Malerarbeiten, Bodenbeläge und die Innentüren. Selbstverständlich können wir Ihr Haus auch schlüsselfertig / bezugsfertig errichten.
Wir beraten Sie gerne beim Hauskauf! Sprechen Sie uns an: 01590-2228735
Sonstige Informationen
Sie brauchen einen kompetenten und verlässlichen Baupartner? Wir stehen Ihnen von Anfang an zur Seite & begleiten Sie auf dem Weg in Ihr Eigenheim:
Mit großem Engagement, Persönlichkeit und einer Fachfirma STREIF mit immensen Bau-Know-how, die seit 1929 auf über 85.000 realisierte Wohnträume zurückblicken kann.
Jedes Haus von STREIF wird individuell als Energiesparhaus geplant und gebaut. Eine nachhaltige, ökologische und wohngesunde Bauweise, eine zertifizierte Ausführungsqualität und eine kurze Bauzeit, dafür stehen wir.
Gerne beraten wir Sie nach Vereinbarung in unserem Musterhaus in Kassel/Fuldabrück und erstellen Ihnen ein Angebot mit einer detaillierten & realistisch ermittelten Aufstellung der Gesamt-Investition.
Wir freuen uns auf Ihren Anruf / Nachricht!
Ihr STREIF Fachberaterin, Bianca Albrecht
www.nordost.streif.team/login
Mobil: 01590-2228735
E-Mail: bianca.streif@streif.de
Hinweis:
Vorverkauf und Irrtümer vorbehalten.Bilder können Sonderbauteile darstellen, die im Preis nicht enthalten sind und abweichend von textlichen Inhalten sein.
zzgl. Baunebenkosten.
Der Grundstückserwerb stellt keine STREIF Leistung dar.
Hinweis zu den gesetzlichen Pflichtangaben gemäß der EnEV 2016: Bei dem hier angebotenen Haus handelt es sich um ein Neubauprojekt.
Wir weisen darauf hin, dass zu diesem projektierten Haus noch kein Energieausweis vorliegt. Der Energieausweis wird Ihnen spätestens im Rahmen der Erstellung des Objektes ausgehändigt
Mit großem Engagement, Persönlichkeit und einer Fachfirma STREIF mit immensen Bau-Know-how, die seit 1929 auf über 85.000 realisierte Wohnträume zurückblicken kann.
Jedes Haus von STREIF wird individuell als Energiesparhaus geplant und gebaut. Eine nachhaltige, ökologische und wohngesunde Bauweise, eine zertifizierte Ausführungsqualität und eine kurze Bauzeit, dafür stehen wir.
Gerne beraten wir Sie nach Vereinbarung in unserem Musterhaus in Kassel/Fuldabrück und erstellen Ihnen ein Angebot mit einer detaillierten & realistisch ermittelten Aufstellung der Gesamt-Investition.
Wir freuen uns auf Ihren Anruf / Nachricht!
Ihr STREIF Fachberaterin, Bianca Albrecht
www.nordost.streif.team/login
Mobil: 01590-2228735
E-Mail: bianca.streif@streif.de
Hinweis:
Vorverkauf und Irrtümer vorbehalten.Bilder können Sonderbauteile darstellen, die im Preis nicht enthalten sind und abweichend von textlichen Inhalten sein.
zzgl. Baunebenkosten.
Der Grundstückserwerb stellt keine STREIF Leistung dar.
Hinweis zu den gesetzlichen Pflichtangaben gemäß der EnEV 2016: Bei dem hier angebotenen Haus handelt es sich um ein Neubauprojekt.
Wir weisen darauf hin, dass zu diesem projektierten Haus noch kein Energieausweis vorliegt. Der Energieausweis wird Ihnen spätestens im Rahmen der Erstellung des Objektes ausgehändigt
Karte wird geladen...
Objektstandort
07619 Schkölen
Lage & Infrastruktur
Objektstandort
07619 Schkölen
Schkölen ist eine Stadt im nördlichen Teil des schönen Saale-Holzland-Kreises in Thüringen. Die Einwohnerzahl von Schkölen beläuft sich auf ca. 2600.
Nicht weit entfernt ist die Schkölener Wasserburg mit einem kleinen Park zu besichtigen. Die Stadtverwaltung sowie das Festplatz Schkölen sind in nur wenigen Gehminuten erreichbar. Versorgungseinrichtungen wie Supermarkt, Ärztepraxen, Schulen und Kitas liegen im näheren Umfeld.
Nach Naumburg (Saale) beträgt es eine ca. Entfernung von 16 km, nach Jena ca.27 km und zur Autobahnauffahrt A9 ca. 10 km.
Nicht weit entfernt ist die Schkölener Wasserburg mit einem kleinen Park zu besichtigen. Die Stadtverwaltung sowie das Festplatz Schkölen sind in nur wenigen Gehminuten erreichbar. Versorgungseinrichtungen wie Supermarkt, Ärztepraxen, Schulen und Kitas liegen im näheren Umfeld.
Nach Naumburg (Saale) beträgt es eine ca. Entfernung von 16 km, nach Jena ca.27 km und zur Autobahnauffahrt A9 ca. 10 km.
Kontaktanfrage senden
Über den Anbieter
STREIF Haus GmbH
Josef-Streif-Straße 1
54595 Weinsheim
Kontakt
| Telefon | +49 159 02228735 |
| Mobil | +49 159 02228735 |
| Website | www.streif.de |
Ansprechpartner/in
Frau Bianca Albrecht