Exklusive Stadtvilla auf großzügigen Baugrundstück!
416.995 €
Kaufpreis
150 m²
Wohnfläche
150 m²
Nutzfläche
4
Zimmer
immobilien.de Nr.: 9450891
Objektnummer: 2025-008
Kaufpreis
| Kaufpreis | 416.995 € |
Wohnfläche, Grundstück & Bausubstanz
| Wohnfläche | 150 m² |
| Nutzfläche | 150 m² |
| Grundstücksfläche | 1.422 m² |
| Zimmer | 4 |
| Baujahr | 2025 |
| Verfügbar ab | 2025 |
| Zustand | Projektiert |
Energie
| Energietyp | KfW-40 |
| Energieträger/Befeuerung | Luft-Wärme-Pumpe |
Beschreibung der Immobilie
Exklusive STREIF-Villa mit modernem Design und durchdachtem Grundriss
Diese zweigeschossige STREIF-Villa 1, besticht durch ihr modernes Flachdach und eine beeindruckende Glasfront, die den gesamten Gartenbereich aufwertet. Der Baukörper ist in einem kubistischen Stil gehalten und die Architektur clever gestaltet. Ein besonderes Highlight dieser Villa ist die weitläufige XXL-Glasfront, die sich über beide Etagen erstreckt und für ein außergewöhnliches Wohngefühl sorgt.
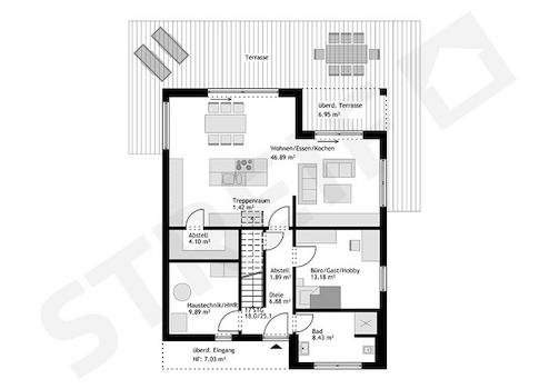
Zentraler Punkt der Villa ist die mittig platzierte Treppe, die den offenen Wohn- und Essbereich geschickt vom Kochbereich trennt. Die lichtdurchfluteten 45 m² bieten Raum zum Wohnen, Essen und Kochen und schaffen eine Atmosphäre voller Lebensfreude. Direkt neben der Küche befindet sich eine nützliche Speisekammer, während in einer separaten Nische Platz für eine Garderobe geschaffen wurde, um Jacken und Schuhe zu verstauen. Der großzügige Wohnbereich verfügt zudem über zwei Terrassentüren und bietet genügend Platz, um bei Bedarf eine zusätzliche Wand einzufügen, damit das Wohnen auf einer Ebene möglich wird - ideal für altersgerechtes Wohnen oder im Krankheitsfall. Ergänzt wird das Erdgeschoss durch ein Badezimmer sowie einen Hauswirtschaftsraum.
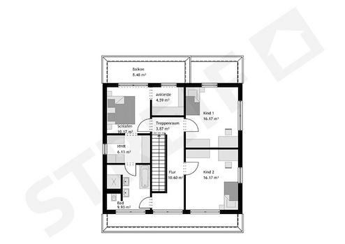
Im Obergeschoss der Villa mit Flachdach befinden sich zwei identisch große Kinderzimmer, ein geräumiges Familienbad sowie der Elternbereich, der mit einer Ankleide ausgestattet ist. Ein weiteres Highlight ist die Galerie, die dank der Glasfront einen herrlichen Ausblick ins Freie bietet. Diese 10 m² große Galerie kann vielseitig genutzt werden, sei es als Homeoffice, Spielecke oder als Rückzugsort für Erholung.
Diese Villa ist in drei verschiedenen Grundrissvarianten erhältlich, jeweils mit unterschiedlichen Größen.
STREIF-Villa 01
- Variante L: 150m² / Hausmaße 9,33 x 9,95 m
Diese zweigeschossige STREIF-Villa 1, besticht durch ihr modernes Flachdach und eine beeindruckende Glasfront, die den gesamten Gartenbereich aufwertet. Der Baukörper ist in einem kubistischen Stil gehalten und die Architektur clever gestaltet. Ein besonderes Highlight dieser Villa ist die weitläufige XXL-Glasfront, die sich über beide Etagen erstreckt und für ein außergewöhnliches Wohngefühl sorgt.
Zentraler Punkt der Villa ist die mittig platzierte Treppe, die den offenen Wohn- und Essbereich geschickt vom Kochbereich trennt. Die lichtdurchfluteten 45 m² bieten Raum zum Wohnen, Essen und Kochen und schaffen eine Atmosphäre voller Lebensfreude. Direkt neben der Küche befindet sich eine nützliche Speisekammer, während in einer separaten Nische Platz für eine Garderobe geschaffen wurde, um Jacken und Schuhe zu verstauen. Der großzügige Wohnbereich verfügt zudem über zwei Terrassentüren und bietet genügend Platz, um bei Bedarf eine zusätzliche Wand einzufügen, damit das Wohnen auf einer Ebene möglich wird - ideal für altersgerechtes Wohnen oder im Krankheitsfall. Ergänzt wird das Erdgeschoss durch ein Badezimmer sowie einen Hauswirtschaftsraum.
Im Obergeschoss der Villa mit Flachdach befinden sich zwei identisch große Kinderzimmer, ein geräumiges Familienbad sowie der Elternbereich, der mit einer Ankleide ausgestattet ist. Ein weiteres Highlight ist die Galerie, die dank der Glasfront einen herrlichen Ausblick ins Freie bietet. Diese 10 m² große Galerie kann vielseitig genutzt werden, sei es als Homeoffice, Spielecke oder als Rückzugsort für Erholung.
Diese Villa ist in drei verschiedenen Grundrissvarianten erhältlich, jeweils mit unterschiedlichen Größen.
STREIF-Villa 01
- Variante L: 150m² / Hausmaße 9,33 x 9,95 m
Ausstattungsmerkmale
| Anzahl der Etagen im Haus | 2 |
| Küche | Offene Küche |
| Bad | 1 |
| Bad | Dusche, Wanne, Fenster |
STREIF Leistungen sind MEHR WERT - schon im Grundpreis enthalten!
- PV Anlage 7,12 kWp + Speicher 7,7 kWh
- 16-monatige Festpreisgarantie
- Energieeffizienzhaus KfW 40 Plus
- Inkl. Fundamentplatte
- Inkl. STREIF-Luft-Luft-Wärmepumpe mit integrierter
Lüftungsanlage mit Wärmerückgewinnung
- Inkl. Haustür von KERA und Fenster mit Jalousien von Porta/Kömmerling
- Inkl. Massivholz-Geschosstreppe aus eigener Produktion
- Inkl. Sanitärobjekte von Markenherstellern
- Inkl. Elektroinstallation
- Inkl. Baubetreuung u.v.m.
Die hohe Wertigkeit und Langlebigkeit eines STREIF-Energiespar-Hauses wird durch zahlreiche Auszeichnungen, Qualitäts- und Gütesiegel unabhängiger Institute und Verbände dokumentiert.
Der Angebotspreis ist exklusive Grundstück und bezieht sich auf die Standard-Ausbaustufe Fast-Fertig-Plus. Ihre Eigenleistungen: Spachtel-,Tapezier- und Malerarbeiten, Bodenbeläge, Innentüren.
Baunebenkosten fallen zuzüglich an.
Der Verkauf des Grundstücks erfolgt über einen unserer Netzwerkpartner.
Bilder können evtl. Anbauteile, Carports, Balkone, Gauben usw. zeigen, die nicht im Angebotspreis enthalten sind. Änderungen und Irrtümer vorbehalten.
- PV Anlage 7,12 kWp + Speicher 7,7 kWh
- 16-monatige Festpreisgarantie
- Energieeffizienzhaus KfW 40 Plus
- Inkl. Fundamentplatte
- Inkl. STREIF-Luft-Luft-Wärmepumpe mit integrierter
Lüftungsanlage mit Wärmerückgewinnung
- Inkl. Haustür von KERA und Fenster mit Jalousien von Porta/Kömmerling
- Inkl. Massivholz-Geschosstreppe aus eigener Produktion
- Inkl. Sanitärobjekte von Markenherstellern
- Inkl. Elektroinstallation
- Inkl. Baubetreuung u.v.m.
Die hohe Wertigkeit und Langlebigkeit eines STREIF-Energiespar-Hauses wird durch zahlreiche Auszeichnungen, Qualitäts- und Gütesiegel unabhängiger Institute und Verbände dokumentiert.
Der Angebotspreis ist exklusive Grundstück und bezieht sich auf die Standard-Ausbaustufe Fast-Fertig-Plus. Ihre Eigenleistungen: Spachtel-,Tapezier- und Malerarbeiten, Bodenbeläge, Innentüren.
Baunebenkosten fallen zuzüglich an.
Der Verkauf des Grundstücks erfolgt über einen unserer Netzwerkpartner.
Bilder können evtl. Anbauteile, Carports, Balkone, Gauben usw. zeigen, die nicht im Angebotspreis enthalten sind. Änderungen und Irrtümer vorbehalten.
Sonstige Informationen
Sie brauchen einen kompetenten und verlässlichen Baupartner? Wir stehen Ihnen von Anfang an zur Seite und begleiten Sie auf dem Weg in Ihr Eigenheim.
Mit großem Engagement, Persönlichkeit und der Fachfirma STREIF mit immensen Bau-Know-how, die seit 1929 auf über 90.000 realisierte Wohnträume zurückblicken kann.
Jedes Haus von STREIF wird individuell als Energiesparhaus geplant und gebaut. Eine nachhaltige, ökologische und wohngesunde Bauweise, eine zertifizierte Ausführungsqualität und eine kurze Bauzeit, dafür stehen wir.
Gerne beraten wir Sie nach Vereinbarung im Beratungsbüro oder ganz unkompliziert bei Ihnen zu Hause und erstellen Ihnen ein Angebot mit einer realistisch ermittelten Aufstellung der Gesamt-Investition.
Wir freuen uns auf Ihren Anruf / Nachricht!
Ihre STREIF Fachberaterin
Nicole Bamberger
E-Mail: nicole.bamberger@streif.de
Mobil: 0151-10658277
Hinweis:
Der Grundstückserwerb stellt keine STREIF Leistung dar.
Hinweis zu den gesetzlichen Pflichtangaben gemäß der EnEV 2016: Bei dem hier angebotenen Haus handelt es sich um ein Neubauprojekt.
Wir weisen darauf hin, dass zu diesem projektierten Haus noch kein Energieausweis vorliegt. Der Energieausweis wird Ihnen spätestens im Rahmen der Erstellung des Objektes ausgehändigt
Mit großem Engagement, Persönlichkeit und der Fachfirma STREIF mit immensen Bau-Know-how, die seit 1929 auf über 90.000 realisierte Wohnträume zurückblicken kann.
Jedes Haus von STREIF wird individuell als Energiesparhaus geplant und gebaut. Eine nachhaltige, ökologische und wohngesunde Bauweise, eine zertifizierte Ausführungsqualität und eine kurze Bauzeit, dafür stehen wir.
Gerne beraten wir Sie nach Vereinbarung im Beratungsbüro oder ganz unkompliziert bei Ihnen zu Hause und erstellen Ihnen ein Angebot mit einer realistisch ermittelten Aufstellung der Gesamt-Investition.
Wir freuen uns auf Ihren Anruf / Nachricht!
Ihre STREIF Fachberaterin
Nicole Bamberger
E-Mail: nicole.bamberger@streif.de
Mobil: 0151-10658277
Hinweis:
Der Grundstückserwerb stellt keine STREIF Leistung dar.
Hinweis zu den gesetzlichen Pflichtangaben gemäß der EnEV 2016: Bei dem hier angebotenen Haus handelt es sich um ein Neubauprojekt.
Wir weisen darauf hin, dass zu diesem projektierten Haus noch kein Energieausweis vorliegt. Der Energieausweis wird Ihnen spätestens im Rahmen der Erstellung des Objektes ausgehändigt
Karte wird geladen...
Objektstandort
08626 Eichigt
Lage & Infrastruktur
Objektstandort
08626 Eichigt
Eichigt ist eine kleine Gemeinde im Vogtlandkreis in Sachsen, Deutschland. Sie liegt in der malerischen Region Vogtland, die für ihre sanften Hügel, Wälder und idyllischen Landschaften bekannt ist. Eichigt befindet sich etwa 10 Kilometer nordwestlich von der Stadt Plauen, die als größte Stadt im Vogtland gilt.
Die Gemeinde ist von einer ländlichen Umgebung umgeben, die zahlreiche Möglichkeiten für Outdoor-Aktivitäten wie Wandern, Radfahren und Erholung in der Natur bietet. Die Region ist reich an Traditionen und kulturellen Angeboten, die das ländliche Leben prägen.
Eichigt ist gut an das Verkehrsnetz angebunden. Die nahegelegene Bundesstraße B92 ermöglicht eine schnelle Anbindung an größere Städte und die Autobahn A72, die eine Verbindung zu anderen wichtigen Städten in Sachsen und darüber hinaus bietet. Öffentliche Verkehrsmittel sind ebenfalls verfügbar, was die Erreichbarkeit der umliegenden Orte erleichtert.
In der Gemeinde selbst finden sich grundlegende Infrastrukturen wie Einkaufsmöglichkeiten, Schulen und Freizeitangebote, die den Bewohnern ein angenehmes Leben ermöglichen. Insgesamt bietet Eichigt im Vogtland eine ruhige und naturnahe Wohnatmosphäre, die ideal für Menschen ist, die die ländliche Idylle und die Schönheit der Natur schätzen.
Die Gemeinde ist von einer ländlichen Umgebung umgeben, die zahlreiche Möglichkeiten für Outdoor-Aktivitäten wie Wandern, Radfahren und Erholung in der Natur bietet. Die Region ist reich an Traditionen und kulturellen Angeboten, die das ländliche Leben prägen.
Eichigt ist gut an das Verkehrsnetz angebunden. Die nahegelegene Bundesstraße B92 ermöglicht eine schnelle Anbindung an größere Städte und die Autobahn A72, die eine Verbindung zu anderen wichtigen Städten in Sachsen und darüber hinaus bietet. Öffentliche Verkehrsmittel sind ebenfalls verfügbar, was die Erreichbarkeit der umliegenden Orte erleichtert.
In der Gemeinde selbst finden sich grundlegende Infrastrukturen wie Einkaufsmöglichkeiten, Schulen und Freizeitangebote, die den Bewohnern ein angenehmes Leben ermöglichen. Insgesamt bietet Eichigt im Vogtland eine ruhige und naturnahe Wohnatmosphäre, die ideal für Menschen ist, die die ländliche Idylle und die Schönheit der Natur schätzen.
Kontaktanfrage senden
Über den Anbieter
STREIF Haus GmbH
Josef-Streif-Straße 1
54595 Weinsheim
Kontakt
| Telefon | 06551 12 00 |
| Mobil | +49 151 10658277 |
| Website | www.streif.de |
Ansprechpartner/in
Frau Nicole Bamberger