Ihr perfektes Familienglück im eigenen Haus! +++ mit 95 Jahre Erfahrung im Hausbau!
282.995 €
Kaufpreis
117 m²
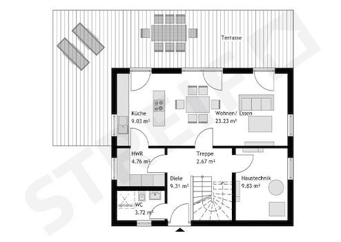
Wohnfläche
125 m²
Nutzfläche
4
Zimmer
immobilien.de Nr.: 9450890
Objektnummer: 2025-007
Kaufpreis
| Kaufpreis | 282.995 € |
Wohnfläche, Grundstück & Bausubstanz
| Wohnfläche | 117 m² |
| Nutzfläche | 125 m² |
| Grundstücksfläche | 1.422 m² |
| Zimmer | 4 |
| Baujahr | 2025 |
| Verfügbar ab | 2025 |
| Zustand | Projektiert |
Energie
| Energietyp | KfW-40 |
| Energieträger/Befeuerung | Luft-Wärme-Pumpe |
Beschreibung der Immobilie
Hier werden Ihre Wünsche wahr. Sie sagen, und wir wissen was zu tun ist, bei voller Transparenz und ohne versteckte Kosten.
Preiswerter als mieten. - Mehr Freiheit geht nicht!
Sie wollen minimalen Energieverbrauch? Dann mit Streif:
KFW 40 Energiesparhaus mit PV Anlage und Speicher + Passiv Wandaufbau + Thermo Bodenplatte + KFN Siegel im Standard.
Für Sie planen wir den Grundriss nach Ihren Wünschen ohne Zusatzkosten.
Sie möchten topaktuelle modernste Heizsysteme? Die gibt es bei uns!
Wir zeichnen uns nicht nur durch höchste Bauqualität, sondern auch durch modernes Design, welches das Bewährte mit dem Zeitlosen vereint.
Verschieden Ausbaustufen, wie z. B. Fast- Fertig -Plus oder Schlüsselfertig.
Festpreisgarantie 16 Monate bei kurzen Bauzeiten.
Auf Wunsch, QNG Siegel, und Nachhaltigkeitsklasse.
Architektenhäuser individuell für sie - schnelle Bauzeiten - Festpreisgarantie. - Streif eben.
Sie wollen Sicherheit mit Ihrem Baupartner? Auch hier sind Sie bei Streif mit 95 jähriger Firmengeschichte, 90.000 gebauten Häusern und Bonitätssiegel von der Firma Creditreform auf der sicheren Seite!
WARUM STREIF? - Weil Sie ein perfektes Zushause verdient haben!
Preiswerter als mieten. - Mehr Freiheit geht nicht!
Sie wollen minimalen Energieverbrauch? Dann mit Streif:
KFW 40 Energiesparhaus mit PV Anlage und Speicher + Passiv Wandaufbau + Thermo Bodenplatte + KFN Siegel im Standard.
Für Sie planen wir den Grundriss nach Ihren Wünschen ohne Zusatzkosten.
Sie möchten topaktuelle modernste Heizsysteme? Die gibt es bei uns!
Wir zeichnen uns nicht nur durch höchste Bauqualität, sondern auch durch modernes Design, welches das Bewährte mit dem Zeitlosen vereint.
Verschieden Ausbaustufen, wie z. B. Fast- Fertig -Plus oder Schlüsselfertig.
Festpreisgarantie 16 Monate bei kurzen Bauzeiten.
Auf Wunsch, QNG Siegel, und Nachhaltigkeitsklasse.
Architektenhäuser individuell für sie - schnelle Bauzeiten - Festpreisgarantie. - Streif eben.
Sie wollen Sicherheit mit Ihrem Baupartner? Auch hier sind Sie bei Streif mit 95 jähriger Firmengeschichte, 90.000 gebauten Häusern und Bonitätssiegel von der Firma Creditreform auf der sicheren Seite!
WARUM STREIF? - Weil Sie ein perfektes Zushause verdient haben!
Ausstattungsmerkmale
| Anzahl der Etagen im Haus | 2 |
| Küche | Offene Küche |
| Bad | 1 |
| Bad | Dusche, Wanne, Fenster |
STREIF Leistungen sind MEHR WERT - schon im Grundpreis enthalten!
- PV Anlage 7,12 kWp + Speicher 7,7 kWh
- 16-monatige Festpreisgarantie
- Energieeffizienzhaus KfW 40 Plus
- Inkl. Fundamentplatte
- Inkl. STREIF-Luft-Luft-Wärmepumpe mit integrierter
Lüftungsanlage mit Wärmerückgewinnung
- Inkl. Haustür von KERA und Fenster mit Jalousien von Porta/Kömmerling
- Inkl. Massivholz-Geschosstreppe aus eigener Produktion
- Inkl. Sanitärobjekte von Markenherstellern
- Inkl. Elektroinstallation
- Inkl. Baubetreuung u.v.m.
Die hohe Wertigkeit und Langlebigkeit eines STREIF-Energiespar-Hauses wird durch zahlreiche Auszeichnungen, Qualitäts- und Gütesiegel unabhängiger Institute und Verbände dokumentiert.
Der Angebotspreis ist exklusive Grundstück und bezieht sich auf die Standard-Ausbaustufe Fast-Fertig-Plus. Ihre Eigenleistungen: Spachtel-,Tapezier- und Malerarbeiten, Bodenbeläge, Innentüren.
Baunebenkosten fallen zuzüglich an.
Der Verkauf des Grundstücks erfolgt über einen unserer Netzwerkpartner.
Bilder können evtl. Anbauteile, Carports, Balkone, Gauben usw. zeigen, die nicht im Angebotspreis enthalten sind. Änderungen und Irrtümer vorbehalten.
- PV Anlage 7,12 kWp + Speicher 7,7 kWh
- 16-monatige Festpreisgarantie
- Energieeffizienzhaus KfW 40 Plus
- Inkl. Fundamentplatte
- Inkl. STREIF-Luft-Luft-Wärmepumpe mit integrierter
Lüftungsanlage mit Wärmerückgewinnung
- Inkl. Haustür von KERA und Fenster mit Jalousien von Porta/Kömmerling
- Inkl. Massivholz-Geschosstreppe aus eigener Produktion
- Inkl. Sanitärobjekte von Markenherstellern
- Inkl. Elektroinstallation
- Inkl. Baubetreuung u.v.m.
Die hohe Wertigkeit und Langlebigkeit eines STREIF-Energiespar-Hauses wird durch zahlreiche Auszeichnungen, Qualitäts- und Gütesiegel unabhängiger Institute und Verbände dokumentiert.
Der Angebotspreis ist exklusive Grundstück und bezieht sich auf die Standard-Ausbaustufe Fast-Fertig-Plus. Ihre Eigenleistungen: Spachtel-,Tapezier- und Malerarbeiten, Bodenbeläge, Innentüren.
Baunebenkosten fallen zuzüglich an.
Der Verkauf des Grundstücks erfolgt über einen unserer Netzwerkpartner.
Bilder können evtl. Anbauteile, Carports, Balkone, Gauben usw. zeigen, die nicht im Angebotspreis enthalten sind. Änderungen und Irrtümer vorbehalten.
Sonstige Informationen
Sie brauchen einen kompetenten und verlässlichen Baupartner? Wir stehen Ihnen von Anfang an zur Seite und begleiten Sie auf dem Weg in Ihr Eigenheim.
Mit großem Engagement, Persönlichkeit und der Fachfirma STREIF mit immensen Bau-Know-how, die seit 1929 auf über 90.000 realisierte Wohnträume zurückblicken kann.
Jedes Haus von STREIF wird individuell als Energiesparhaus geplant und gebaut. Eine nachhaltige, ökologische und wohngesunde Bauweise, eine zertifizierte Ausführungsqualität und eine kurze Bauzeit, dafür stehen wir.
Gerne beraten wir Sie nach Vereinbarung im Beratungsbüro oder ganz unkompliziert bei Ihnen zu Hause und erstellen Ihnen ein Angebot mit einer realistisch ermittelten Aufstellung der Gesamt-Investition.
Wir freuen uns auf Ihren Anruf / Nachricht!
Ihre STREIF Fachberaterin
Nicole Bamberger
E-Mail: nicole.bamberger@streif.de
Mobil: 0151-10658277
Hinweis:
Der Grundstückserwerb stellt keine STREIF Leistung dar.
Hinweis zu den gesetzlichen Pflichtangaben gemäß der EnEV 2016: Bei dem hier angebotenen Haus handelt es sich um ein Neubauprojekt.
Wir weisen darauf hin, dass zu diesem projektierten Haus noch kein Energieausweis vorliegt. Der Energieausweis wird Ihnen spätestens im Rahmen der Erstellung des Objektes ausgehändigt
Mit großem Engagement, Persönlichkeit und der Fachfirma STREIF mit immensen Bau-Know-how, die seit 1929 auf über 90.000 realisierte Wohnträume zurückblicken kann.
Jedes Haus von STREIF wird individuell als Energiesparhaus geplant und gebaut. Eine nachhaltige, ökologische und wohngesunde Bauweise, eine zertifizierte Ausführungsqualität und eine kurze Bauzeit, dafür stehen wir.
Gerne beraten wir Sie nach Vereinbarung im Beratungsbüro oder ganz unkompliziert bei Ihnen zu Hause und erstellen Ihnen ein Angebot mit einer realistisch ermittelten Aufstellung der Gesamt-Investition.
Wir freuen uns auf Ihren Anruf / Nachricht!
Ihre STREIF Fachberaterin
Nicole Bamberger
E-Mail: nicole.bamberger@streif.de
Mobil: 0151-10658277
Hinweis:
Der Grundstückserwerb stellt keine STREIF Leistung dar.
Hinweis zu den gesetzlichen Pflichtangaben gemäß der EnEV 2016: Bei dem hier angebotenen Haus handelt es sich um ein Neubauprojekt.
Wir weisen darauf hin, dass zu diesem projektierten Haus noch kein Energieausweis vorliegt. Der Energieausweis wird Ihnen spätestens im Rahmen der Erstellung des Objektes ausgehändigt
Karte wird geladen...
Objektstandort
08626 Eichigt
Lage & Infrastruktur
Objektstandort
08626 Eichigt
Eichigt ist eine kleine Gemeinde im Vogtlandkreis in Sachsen, Deutschland. Sie liegt in der malerischen Region Vogtland, die für ihre sanften Hügel, Wälder und idyllischen Landschaften bekannt ist. Eichigt befindet sich etwa 10 Kilometer nordwestlich von der Stadt Plauen, die als größte Stadt im Vogtland gilt.
Die Gemeinde ist von einer ländlichen Umgebung umgeben, die zahlreiche Möglichkeiten für Outdoor-Aktivitäten wie Wandern, Radfahren und Erholung in der Natur bietet. Die Region ist reich an Traditionen und kulturellen Angeboten, die das ländliche Leben prägen.
Eichigt ist gut an das Verkehrsnetz angebunden. Die nahegelegene Bundesstraße B92 ermöglicht eine schnelle Anbindung an größere Städte und die Autobahn A72, die eine Verbindung zu anderen wichtigen Städten in Sachsen und darüber hinaus bietet. Öffentliche Verkehrsmittel sind ebenfalls verfügbar, was die Erreichbarkeit der umliegenden Orte erleichtert.
In der Gemeinde selbst finden sich grundlegende Infrastrukturen wie Einkaufsmöglichkeiten, Schulen und Freizeitangebote, die den Bewohnern ein angenehmes Leben ermöglichen. Insgesamt bietet Eichigt im Vogtland eine ruhige und naturnahe Wohnatmosphäre, die ideal für Menschen ist, die die ländliche Idylle und die Schönheit der Natur schätzen.
Die Gemeinde ist von einer ländlichen Umgebung umgeben, die zahlreiche Möglichkeiten für Outdoor-Aktivitäten wie Wandern, Radfahren und Erholung in der Natur bietet. Die Region ist reich an Traditionen und kulturellen Angeboten, die das ländliche Leben prägen.
Eichigt ist gut an das Verkehrsnetz angebunden. Die nahegelegene Bundesstraße B92 ermöglicht eine schnelle Anbindung an größere Städte und die Autobahn A72, die eine Verbindung zu anderen wichtigen Städten in Sachsen und darüber hinaus bietet. Öffentliche Verkehrsmittel sind ebenfalls verfügbar, was die Erreichbarkeit der umliegenden Orte erleichtert.
In der Gemeinde selbst finden sich grundlegende Infrastrukturen wie Einkaufsmöglichkeiten, Schulen und Freizeitangebote, die den Bewohnern ein angenehmes Leben ermöglichen. Insgesamt bietet Eichigt im Vogtland eine ruhige und naturnahe Wohnatmosphäre, die ideal für Menschen ist, die die ländliche Idylle und die Schönheit der Natur schätzen.
Kontaktanfrage senden
Über den Anbieter
STREIF Haus GmbH
Josef-Streif-Straße 1
54595 Weinsheim
Kontakt
| Telefon | 06551 12 00 |
| Mobil | +49 151 10658277 |
| Website | www.streif.de |
Ansprechpartner/in
Frau Nicole Bamberger