Gemeinsam BAUEN - Kosten SPAREN!!! Mit einem zuverlässigen Baupartner und 95 Jahre Erfahrung!
329.999 €
Kaufpreis
143 m²
Wohnfläche
4
Zimmer
immobilien.de Nr.: 9450869
Objektnummer: 2024-082
Kaufpreis
| Kaufpreis | 329.999 € |
Wohnfläche, Grundstück & Bausubstanz
| Wohnfläche | 143 m² |
| Grundstücksfläche | 621 m² |
| Zimmer | 4 |
| Verfügbar ab | 2025 |
| Zustand | Projektiert |
Energie
| Energietyp | KfW-40 |
| Energieträger/Befeuerung | Luft-Wärme-Pumpe |
Beschreibung der Immobilie
95 Jahre STREIF-Jubiläums-Doppelhaushälfte
Die klassisch elegante Doppelhaushälfte wird von einem Walmdach geprägt. Mit einer Netto-
Raumfläche von 143 m² je Haushälfte bietet das Haus einen guten Wohnkomfort für eine
vierköpfige Familie. Aufgrund der Bauform müssen beide Haushälften gleichzeitig gebaut
werden. Im Erdgeschoss ist ein Zusatzraum geplant, der als Büro/Gäste- oder Hobbyraum
genutzt werden kann. Optional ist auch ein Bad mit Dusche im Erdgeschoss möglich, somit
wäre bei Krankheit oder im Alter auch das Wohnen auf einer Etage möglich. Der Wohn-/Ess-
/Kochbereich ist mit vier großen Terrassentüren ausgestattet und bietet auf 39 m² bzw. 37 m²
viel Platz für die Familie. Die geradläufige Treppe strahlt Struktur und Modernität aus.
Ein Haustechnik-/Hauswirtschaftsraum und eine Diele komplettieren das Raumangebot im
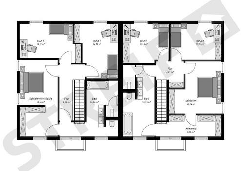
Erdgeschoss. Im Obergeschoss sind ein geräumiges Familienbad, zwei schöne
Kinderzimmer und ein Elternbereich mit Ankleide geplant.
Objektart: Doppelhaushälfte, 2-geschossig
Dachform: Walmdach
Hausmaße: 8,613 m x 9,955 m
Netto-Raumfläche: 143 m²
95-Jahre STREIF-Jubiläums-Doppelhaushälfte
Die klassisch elegante Doppelhaushälfte wird von einem Walmdach geprägt. Mit einer Netto-
Raumfläche von 143 m² je Haushälfte bietet das Haus einen guten Wohnkomfort für eine
vierköpfige Familie. Aufgrund der Bauform müssen beide Haushälften gleichzeitig gebaut
werden. Im Erdgeschoss ist ein Zusatzraum geplant, der als Büro/Gäste- oder Hobbyraum
genutzt werden kann. Optional ist auch ein Bad mit Dusche im Erdgeschoss möglich, somit
wäre bei Krankheit oder im Alter auch das Wohnen auf einer Etage möglich. Der Wohn-/Ess-
/Kochbereich ist mit vier großen Terrassentüren ausgestattet und bietet auf 39 m² bzw. 37 m²
viel Platz für die Familie. Die geradläufige Treppe strahlt Struktur und Modernität aus.
Ein Haustechnik-/Hauswirtschaftsraum und eine Diele komplettieren das Raumangebot im
Erdgeschoss. Im Obergeschoss sind ein geräumiges Familienbad, zwei schöne
Kinderzimmer und ein Elternbereich mit Ankleide geplant.
Objektart: Doppelhaushälfte, 2-geschossig
Dachform: Walmdach
Hausmaße: 8,613 m x 9,955 m
Netto-Raumfläche: 143 m²
95-Jahre STREIF-Jubiläums-Doppelhaushälfte
Ausstattungsmerkmale
| Anzahl der Etagen im Haus | 2 |
| Küche | Offene Küche |
| Bad | 1 |
| Bad | Dusche, Wanne, Fenster |
Die Preise für die limitierten Jubiläumshäuser gelten beim Hauskauf bis zum 31.03.2024.
STREIF-Energiespar-Häuser sind für die Effizienzhaus-Klasse 40 ausgestattet. Gegen Aufpreis kann eine Ökobilanz erstellt werden, die bescheinigt, dass Ihr STREIF-Haus den neuen KfW-Förderrichtlinien in der Stufe KFWG für den Klimafreundlichen Neubau (KFN) entspricht. Für das Erfüllen der Voraussetzungen zur KfW-Förderung ist eine Photovoltaikanlage mit Batteriespeicher erforderlich.
Folgende STREIF-Leistungen sind im Jubiläums-Feierpreis enthalten -
bei Ausbaustufe FASTFERTIG+:
20-monatige Fair- und Festpreisgarantie
Inklusive gedämmter Fundamentplatte
Inklusive STREIF-Luft-Luft-Wärmepumpen-Technologie, mit integrierter Lüftungsanlage mit Wärmerückgewinnung
Inklusive hochwertiger Holzhaustür von KERA
Inklusive Fenster von Porta/Kömmerling, Fenster innen und außen in Weiß
Inklusive Massivholz-Geschosstreppe aus eigener Produktion (außer Bungalow)
Inklusive Sanitärobjekten von Markenherstellern in Bad/WC
Inklusive Elektroinstallation u.v.m.
Inklusive Vorbereitung zur Installation einer Photovoltaik-Anlage
Inklusive individueller Grundrissgestaltung und Raumaufteilung | Die Position der Bäder, die Größe der Haustechnikräume und der Treppen sind bei den Jubiläumshäusern nicht veränderbar.
Die STREIF-Passiv-Außenwand und eine sparsame Heiztechnik mit integrierter Wohnraumlüftung und Wärmerückgewinnung garantieren einen geringen Energieverbrauch und ein fantastisches Raumklima, das insbesondere Allergiker aufatmen lässt.
Die hohe Wertigkeit und Langlebigkeit eines STREIF-Energiespar-Hauses werden durch zahlreiche Auszeichnungen, Qualitäts- und Gütesiegel unabhängiger Institute und Verbände dokumentiert.
Der Angebotspreis ist exklusive Grundstück und bezieht sich auf die Standard-Ausbaustufe Fast-Fertig-Plus. Ihre Eigenleistungen: Spachtel-, Tapezier- und Malerarbeiten, Bodenbeläge, Innentüren.
Baunebenkosten fallen zuzüglich an. Der Verkauf des Grundstücks erfolgt über einen unserer Netzwerkpartner. Bilder können evtl. Anbauteile, Carports, Balkone, Gauben usw. zeigen, die nicht im Angebotspreis enthalten sind. Änderungen und Irrtümer vorbehalten. Fragen Sie Ihre persönliche STREIF-Bauberatung.
STREIF-Energiespar-Häuser sind für die Effizienzhaus-Klasse 40 ausgestattet. Gegen Aufpreis kann eine Ökobilanz erstellt werden, die bescheinigt, dass Ihr STREIF-Haus den neuen KfW-Förderrichtlinien in der Stufe KFWG für den Klimafreundlichen Neubau (KFN) entspricht. Für das Erfüllen der Voraussetzungen zur KfW-Förderung ist eine Photovoltaikanlage mit Batteriespeicher erforderlich.
Folgende STREIF-Leistungen sind im Jubiläums-Feierpreis enthalten -
bei Ausbaustufe FASTFERTIG+:
20-monatige Fair- und Festpreisgarantie
Inklusive gedämmter Fundamentplatte
Inklusive STREIF-Luft-Luft-Wärmepumpen-Technologie, mit integrierter Lüftungsanlage mit Wärmerückgewinnung
Inklusive hochwertiger Holzhaustür von KERA
Inklusive Fenster von Porta/Kömmerling, Fenster innen und außen in Weiß
Inklusive Massivholz-Geschosstreppe aus eigener Produktion (außer Bungalow)
Inklusive Sanitärobjekten von Markenherstellern in Bad/WC
Inklusive Elektroinstallation u.v.m.
Inklusive Vorbereitung zur Installation einer Photovoltaik-Anlage
Inklusive individueller Grundrissgestaltung und Raumaufteilung | Die Position der Bäder, die Größe der Haustechnikräume und der Treppen sind bei den Jubiläumshäusern nicht veränderbar.
Die STREIF-Passiv-Außenwand und eine sparsame Heiztechnik mit integrierter Wohnraumlüftung und Wärmerückgewinnung garantieren einen geringen Energieverbrauch und ein fantastisches Raumklima, das insbesondere Allergiker aufatmen lässt.
Die hohe Wertigkeit und Langlebigkeit eines STREIF-Energiespar-Hauses werden durch zahlreiche Auszeichnungen, Qualitäts- und Gütesiegel unabhängiger Institute und Verbände dokumentiert.
Der Angebotspreis ist exklusive Grundstück und bezieht sich auf die Standard-Ausbaustufe Fast-Fertig-Plus. Ihre Eigenleistungen: Spachtel-, Tapezier- und Malerarbeiten, Bodenbeläge, Innentüren.
Baunebenkosten fallen zuzüglich an. Der Verkauf des Grundstücks erfolgt über einen unserer Netzwerkpartner. Bilder können evtl. Anbauteile, Carports, Balkone, Gauben usw. zeigen, die nicht im Angebotspreis enthalten sind. Änderungen und Irrtümer vorbehalten. Fragen Sie Ihre persönliche STREIF-Bauberatung.
Sonstige Informationen
Sie brauchen einen kompetenten und verlässlichen Baupartner? Wir stehen Ihnen von Anfang an zur Seite und begleiten Sie auf dem Weg in Ihr Eigenheim.
Mit großem Engagement, Persönlichkeit und der Fachfirma STREIF mit immensen Bau-Know-how, die seit 1929 auf über 90.000 realisierte Wohnträume zurückblicken kann.
Jedes Haus von STREIF wird individuell als Energiesparhaus geplant und gebaut. Eine nachhaltige, ökologische und wohngesunde Bauweise, eine zertifizierte Ausführungsqualität und eine kurze Bauzeit, dafür stehen wir.
Gerne beraten wir Sie nach Vereinbarung im Beratungsbüro Dölau bei Greiz oder ganz unkompliziert bei Ihnen zu Hause und erstellen Ihnen ein Angebot mit einer realistisch ermittelten Aufstellung der Gesamt-Investition.
Wir freuen uns auf Ihren Anruf / Nachricht!
Ihr STREIF Fachberater
Nicole Bamberger
E-Mail: nicole.bamberger@streif.de
Mobil: 0151-10658277
Hinweis:
Vorverkauf und Irrtümer vorbehalten. Bilder können Sonderbauteile darstellen, die im Preis nicht enthalten sind und abweichend von textlichen Inhalten sein.
zzgl. Baunebenkosten.
Der Grundstückserwerb stellt keine STREIF Leistung dar.
Hinweis zu den gesetzlichen Pflichtangaben gemäß der EnEV 2016: Bei dem hier angebotenen Haus handelt es sich um ein Neubauprojekt.
Wir weisen darauf hin, dass zu diesem projektierten Haus noch kein Energieausweis vorliegt. Der Energieausweis wird Ihnen spätestens im Rahmen der Erstellung des Objektes ausgehändigt
Mit großem Engagement, Persönlichkeit und der Fachfirma STREIF mit immensen Bau-Know-how, die seit 1929 auf über 90.000 realisierte Wohnträume zurückblicken kann.
Jedes Haus von STREIF wird individuell als Energiesparhaus geplant und gebaut. Eine nachhaltige, ökologische und wohngesunde Bauweise, eine zertifizierte Ausführungsqualität und eine kurze Bauzeit, dafür stehen wir.
Gerne beraten wir Sie nach Vereinbarung im Beratungsbüro Dölau bei Greiz oder ganz unkompliziert bei Ihnen zu Hause und erstellen Ihnen ein Angebot mit einer realistisch ermittelten Aufstellung der Gesamt-Investition.
Wir freuen uns auf Ihren Anruf / Nachricht!
Ihr STREIF Fachberater
Nicole Bamberger
E-Mail: nicole.bamberger@streif.de
Mobil: 0151-10658277
Hinweis:
Vorverkauf und Irrtümer vorbehalten. Bilder können Sonderbauteile darstellen, die im Preis nicht enthalten sind und abweichend von textlichen Inhalten sein.
zzgl. Baunebenkosten.
Der Grundstückserwerb stellt keine STREIF Leistung dar.
Hinweis zu den gesetzlichen Pflichtangaben gemäß der EnEV 2016: Bei dem hier angebotenen Haus handelt es sich um ein Neubauprojekt.
Wir weisen darauf hin, dass zu diesem projektierten Haus noch kein Energieausweis vorliegt. Der Energieausweis wird Ihnen spätestens im Rahmen der Erstellung des Objektes ausgehändigt
Karte wird geladen...
Objektstandort
08645 Bad Elster
Lage & Infrastruktur
Objektstandort
08645 Bad Elster
Obersohl gehört zur Gemeinde Bad Elster und liegt im Vogtlandkreis in Sachsen. Die Ortschaft befindet sich etwa 10 Kilometer südwestlich von Bad Elster und etwa 30 Kilometer südwestlich von Plauen.
Obersohl liegt in einer malerischen Landschaft, umgeben von sanften Hügeln, Wäldern und Feldern. Die Gegend ist vor allem für ihre natürliche Schönheit bekannt und lädt zu Spaziergängen, Wanderungen und Radtouren ein. Es gibt zahlreiche gut ausgeschilderte Wanderwege, die den Besuchern die Möglichkeit geben, die Umgebung zu erkunden.
Bad Elster, das nahe gelegene Kurortzentrum, bietet eine Reihe von Wellness-Einrichtungen und Aktivitäten zur Entspannung und Erholung. Hier finden Besucher Thermalbäder, Saunen und Kuranlagen, die verschiedene Formen von Therapien und Wellness-Anwendungen bieten. Es gibt auch ein breites kulturelles Angebot, wie Konzerte, Theateraufführungen und Ausstellungen.
Die Nähe zu anderen interessanten Städten und Sehenswürdigkeiten in der Region, wie Plauen mit seiner historischen Altstadt oder das UNESCO-Weltkulturerbe Göltzschtalbrücke, macht Obersohl zu einem idealen Ausgangspunkt, um die Umgebung zu erkunden.
Die Anreise nach Obersohl ist am besten mit dem Auto möglich, da die Ortschaft abseits größere Verkehrswege liegt. Es gibt jedoch auch die Möglichkeit, mit dem Zug bis nach Bad Elster zu fahren und von dort aus mit dem Bus oder Taxi nach Obersohl weiterzureisen.
Insgesamt ist Obersohl/Bad Elster ein ruhiger, idyllischer Ort inmitten einer schönen Natur, der sich ideal zum Entspannen, Erholen und Wandern eignet.
Obersohl liegt in einer malerischen Landschaft, umgeben von sanften Hügeln, Wäldern und Feldern. Die Gegend ist vor allem für ihre natürliche Schönheit bekannt und lädt zu Spaziergängen, Wanderungen und Radtouren ein. Es gibt zahlreiche gut ausgeschilderte Wanderwege, die den Besuchern die Möglichkeit geben, die Umgebung zu erkunden.
Bad Elster, das nahe gelegene Kurortzentrum, bietet eine Reihe von Wellness-Einrichtungen und Aktivitäten zur Entspannung und Erholung. Hier finden Besucher Thermalbäder, Saunen und Kuranlagen, die verschiedene Formen von Therapien und Wellness-Anwendungen bieten. Es gibt auch ein breites kulturelles Angebot, wie Konzerte, Theateraufführungen und Ausstellungen.
Die Nähe zu anderen interessanten Städten und Sehenswürdigkeiten in der Region, wie Plauen mit seiner historischen Altstadt oder das UNESCO-Weltkulturerbe Göltzschtalbrücke, macht Obersohl zu einem idealen Ausgangspunkt, um die Umgebung zu erkunden.
Die Anreise nach Obersohl ist am besten mit dem Auto möglich, da die Ortschaft abseits größere Verkehrswege liegt. Es gibt jedoch auch die Möglichkeit, mit dem Zug bis nach Bad Elster zu fahren und von dort aus mit dem Bus oder Taxi nach Obersohl weiterzureisen.
Insgesamt ist Obersohl/Bad Elster ein ruhiger, idyllischer Ort inmitten einer schönen Natur, der sich ideal zum Entspannen, Erholen und Wandern eignet.
Kontaktanfrage senden
Über den Anbieter
STREIF Haus GmbH
Josef-Streif-Straße 1
54595 Weinsheim
Kontakt
| Telefon | 06551 12 00 |
| Mobil | +49 151 10658277 |
| Website | www.streif.de |
Ansprechpartner/in
Frau Nicole Bamberger