Wohnen auf einer Ebene!
269.995 €
Kaufpreis
93 m²
Wohnfläche
3
Zimmer
immobilien.de Nr.: 9450827
Objektnummer: 2024-023
Kaufpreis
| Kaufpreis | 269.995 € |
Wohnfläche, Grundstück & Bausubstanz
| Wohnfläche | 93 m² |
| Grundstücksfläche | 900 m² |
| Zimmer | 3 |
| Verfügbar ab | 2025 |
| Zustand | Projektiert |
Energie
| Energietyp | KfW-40 |
| Energieträger/Befeuerung | Luft-Wärme-Pumpe |
Beschreibung der Immobilie
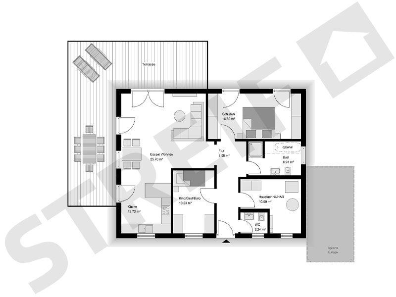
Herzlich willkommen in Zwickau! Hier haben Sie die Möglichkeit, Ihren Traum vom perfekten Bungalow zu verwirklichen. Mit einer Wohnfläche von 93,00 m² und einem großzügigen Grundstück von 900,00 m² bietet dieses Haus genügend Platz, um sich zu entfalten und Ihre individuellen Vorstellungen zu realisieren. Der Bungalow erstreckt sich über eine Ebene und verfügt über 3,0 Zimmer, darunter 2 Schlafzimmer und ein modernes Badezimmer mit Dusche, Badewanne und Fenster. Zusätzlich steht Ihnen ein Gäste-WC zur Verfügung.
Dieses projektierte Objekt bietet Ihnen die Möglichkeit, Ihr neues Zuhause nach Ihren persönlichen Wünschen zu gestalten. In der Ausbaustufe 3 - FastFertigPlus mit Sanitär-Grundausstattung haben Sie die Chance, aktiv an der Erstellung Ihres Hauses mitzuwirken, während gleichzeitig die haustechnischen Gewerke wie Heizung, Lüftung, Sanitär und Estrich von Fachbetrieben übernommen werden.
Ein besonderes Highlight ist die gehobene Ausstattung des Bungalows sowie die effiziente Befeuerungsart mittels Wärmepumpe. Diese umweltfreundliche Lösung ermöglicht nicht nur eine nachhaltige Energieversorgung, sondern trägt auch dazu bei, langfristig Kosten zu sparen. Darüber hinaus entspricht der Energietyp KFW40 Standard - für ein energieeffizientes und zukunftsorientiertes Wohnkonzept.
Bei STREIF haben Sie zudem die Wahl aus verschiedenen Möglichkeiten hinsichtlich des Bungalow-Designs: Ob mit oder ohne Keller, geradlinig oder verwinkelt, klassisches Walmdach oder modernes Flachdach - hier findet jeder seinen persönlichen Favoriten. Darüber hinaus können Sie entscheiden, ob das Haus schlüsselfertig oder in einer der 3 Ausbaustufen übergeben werden soll.
Unser erfahrenes Bauberater-Team unterstützt Sie gerne dabei, Ihren Traum vom individuellen Fertighaus-Bungalow Wirklichkeit werden zu lassen. Wir nehmen uns Zeit für eine ausführliche Beratung und planen gemeinsam mit Ihnen Ihr maßgeschneidertes Traumhaus - ganz nach Ihren Bedürfnissen und Vorstellungen.
Investieren Sie jetzt in Ihren Lebenskomfort und lassen Sie sich von den vielfältigen Möglichkeiten inspirieren! Sprechen Sie uns an und erfahren Sie mehr über Ihr persönliches Traumhaus mit STREIF.
Dieses projektierte Objekt bietet Ihnen die Möglichkeit, Ihr neues Zuhause nach Ihren persönlichen Wünschen zu gestalten. In der Ausbaustufe 3 - FastFertigPlus mit Sanitär-Grundausstattung haben Sie die Chance, aktiv an der Erstellung Ihres Hauses mitzuwirken, während gleichzeitig die haustechnischen Gewerke wie Heizung, Lüftung, Sanitär und Estrich von Fachbetrieben übernommen werden.
Ein besonderes Highlight ist die gehobene Ausstattung des Bungalows sowie die effiziente Befeuerungsart mittels Wärmepumpe. Diese umweltfreundliche Lösung ermöglicht nicht nur eine nachhaltige Energieversorgung, sondern trägt auch dazu bei, langfristig Kosten zu sparen. Darüber hinaus entspricht der Energietyp KFW40 Standard - für ein energieeffizientes und zukunftsorientiertes Wohnkonzept.
Bei STREIF haben Sie zudem die Wahl aus verschiedenen Möglichkeiten hinsichtlich des Bungalow-Designs: Ob mit oder ohne Keller, geradlinig oder verwinkelt, klassisches Walmdach oder modernes Flachdach - hier findet jeder seinen persönlichen Favoriten. Darüber hinaus können Sie entscheiden, ob das Haus schlüsselfertig oder in einer der 3 Ausbaustufen übergeben werden soll.
Unser erfahrenes Bauberater-Team unterstützt Sie gerne dabei, Ihren Traum vom individuellen Fertighaus-Bungalow Wirklichkeit werden zu lassen. Wir nehmen uns Zeit für eine ausführliche Beratung und planen gemeinsam mit Ihnen Ihr maßgeschneidertes Traumhaus - ganz nach Ihren Bedürfnissen und Vorstellungen.
Investieren Sie jetzt in Ihren Lebenskomfort und lassen Sie sich von den vielfältigen Möglichkeiten inspirieren! Sprechen Sie uns an und erfahren Sie mehr über Ihr persönliches Traumhaus mit STREIF.
Ausstattungsmerkmale
| Anzahl der Etagen im Haus | 1 |
| Küche | Offene Küche |
| Bad | 1 |
| Bad | Dusche, Wanne, Fenster |
STREIF-Energiespar-Häuser sind für die Effizienzhaus-Klasse 40 ausgestattet. Gegen Aufpreis kann eine Ökobilanz erstellt werden, die bescheinigt, dass Ihr STREIF-Haus den neuen KfW-Förderrichtlinien in der Stufe KFWG für den Klimafreundlichen Neubau (KFN) entspricht. Für das Erfüllen der Voraussetzungen zur KfW-Förderung ist eine Photovoltaikanlage mit Batteriespeicher erforderlich.
Folgende STREIF-Leistungen sind im Jubiläums-Feierpreis enthalten -
bei Ausbaustufe FASTFERTIG+:
20-monatige Fair- und Festpreisgarantie
Inklusive gedämmter Fundamentplatte
Inklusive STREIF-Luft-Luft-Wärmepumpen-Technologie, mit integrierter Lüftungsanlage mit Wärmerückgewinnung
Inklusive hochwertiger Holzhaustür von KERA
Inklusive Fenster von Porta/Kömmerling, Fenster innen und außen in Weiß
Inklusive Massivholz-Geschosstreppe aus eigener Produktion (außer Bungalow)
Inklusive Sanitärobjekten von Markenherstellern in Bad/WC
Inklusive Elektroinstallation u.v.m.
Inklusive Vorbereitung zur Installation einer Photovoltaik-Anlage
Inklusive individueller Grundrissgestaltung und Raumaufteilung | Die Position der Bäder, die Größe der Haustechnikräume und der Treppen sind bei den Jubiläumshäusern nicht veränderbar.
Die STREIF-Passiv-Außenwand und eine sparsame Heiztechnik mit integrierter Wohnraumlüftung und Wärmerückgewinnung garantieren einen geringen Energieverbrauch und ein fantastisches Raumklima, das insbesondere Allergiker aufatmen lässt.
Die hohe Wertigkeit und Langlebigkeit eines STREIF-Energiespar-Hauses werden durch zahlreiche Auszeichnungen, Qualitäts- und Gütesiegel unabhängiger Institute und Verbände dokumentiert.
Der Angebotspreis ist exklusive Grundstück und bezieht sich auf die Standard-Ausbaustufe Fast-Fertig-Plus. Ihre Eigenleistungen: Spachtel-, Tapezier- und Malerarbeiten, Bodenbeläge, Innentüren.
Baunebenkosten fallen zuzüglich an. Der Verkauf des Grundstücks erfolgt über einen unserer Netzwerkpartner. Bilder können evtl. Anbauteile, Carports, Balkone, Gauben usw. zeigen, die nicht im Angebotspreis enthalten sind. Änderungen und Irrtümer vorbehalten. Fragen Sie Ihre persönliche STREIF-Bauberatung.
Folgende STREIF-Leistungen sind im Jubiläums-Feierpreis enthalten -
bei Ausbaustufe FASTFERTIG+:
20-monatige Fair- und Festpreisgarantie
Inklusive gedämmter Fundamentplatte
Inklusive STREIF-Luft-Luft-Wärmepumpen-Technologie, mit integrierter Lüftungsanlage mit Wärmerückgewinnung
Inklusive hochwertiger Holzhaustür von KERA
Inklusive Fenster von Porta/Kömmerling, Fenster innen und außen in Weiß
Inklusive Massivholz-Geschosstreppe aus eigener Produktion (außer Bungalow)
Inklusive Sanitärobjekten von Markenherstellern in Bad/WC
Inklusive Elektroinstallation u.v.m.
Inklusive Vorbereitung zur Installation einer Photovoltaik-Anlage
Inklusive individueller Grundrissgestaltung und Raumaufteilung | Die Position der Bäder, die Größe der Haustechnikräume und der Treppen sind bei den Jubiläumshäusern nicht veränderbar.
Die STREIF-Passiv-Außenwand und eine sparsame Heiztechnik mit integrierter Wohnraumlüftung und Wärmerückgewinnung garantieren einen geringen Energieverbrauch und ein fantastisches Raumklima, das insbesondere Allergiker aufatmen lässt.
Die hohe Wertigkeit und Langlebigkeit eines STREIF-Energiespar-Hauses werden durch zahlreiche Auszeichnungen, Qualitäts- und Gütesiegel unabhängiger Institute und Verbände dokumentiert.
Der Angebotspreis ist exklusive Grundstück und bezieht sich auf die Standard-Ausbaustufe Fast-Fertig-Plus. Ihre Eigenleistungen: Spachtel-, Tapezier- und Malerarbeiten, Bodenbeläge, Innentüren.
Baunebenkosten fallen zuzüglich an. Der Verkauf des Grundstücks erfolgt über einen unserer Netzwerkpartner. Bilder können evtl. Anbauteile, Carports, Balkone, Gauben usw. zeigen, die nicht im Angebotspreis enthalten sind. Änderungen und Irrtümer vorbehalten. Fragen Sie Ihre persönliche STREIF-Bauberatung.
Sonstige Informationen
Sie brauchen einen kompetenten und verlässlichen Baupartner? Wir stehen Ihnen von Anfang an zur Seite und begleiten Sie auf dem Weg in Ihr Eigenheim.
Mit großem Engagement, Persönlichkeit und der Fachfirma STREIF mit immensen Bau-Know-how, die seit 1929 auf über 85.000 realisierte Wohnträume zurückblicken kann.
Jedes Haus von STREIF wird individuell als Energiesparhaus geplant und gebaut. Eine nachhaltige, ökologische und wohngesunde Bauweise, eine zertifizierte Ausführungsqualität und eine kurze Bauzeit, dafür stehen wir.
Gerne beraten wir Sie nach Vereinbarung im Beratungsbüro Dölau bei Greiz oder ganz unkompliziert bei Ihnen zu Hause und erstellen Ihnen ein Angebot mit einer realistisch ermittelten Aufstellung der Gesamt-Investition.
Wir freuen uns auf Ihren Anruf / Nachricht!
Ihr STREIF Fachberaterin
Nicole Bamberger
E-Mail: nicole.bamberger@streif.de
Mobil: 0151-10658277
Hinweis:
Vorverkauf und Irrtümer vorbehalten. Bilder können Sonderbauteile darstellen, die im Preis nicht enthalten sind und abweichend von textlichen Inhalten sein.
zzgl. Baunebenkosten.
Der Grundstückserwerb stellt keine STREIF Leistung dar.
Hinweis zu den gesetzlichen Pflichtangaben gemäß der EnEV 2016: Bei dem hier angebotenen Haus handelt es sich um ein Neubauprojekt.
Wir weisen darauf hin, dass zu diesem projektierten Haus noch kein Energieausweis vorliegt. Der Energieausweis wird Ihnen spätestens im Rahmen der Erstellung des Objektes ausgehändigt
Mit großem Engagement, Persönlichkeit und der Fachfirma STREIF mit immensen Bau-Know-how, die seit 1929 auf über 85.000 realisierte Wohnträume zurückblicken kann.
Jedes Haus von STREIF wird individuell als Energiesparhaus geplant und gebaut. Eine nachhaltige, ökologische und wohngesunde Bauweise, eine zertifizierte Ausführungsqualität und eine kurze Bauzeit, dafür stehen wir.
Gerne beraten wir Sie nach Vereinbarung im Beratungsbüro Dölau bei Greiz oder ganz unkompliziert bei Ihnen zu Hause und erstellen Ihnen ein Angebot mit einer realistisch ermittelten Aufstellung der Gesamt-Investition.
Wir freuen uns auf Ihren Anruf / Nachricht!
Ihr STREIF Fachberaterin
Nicole Bamberger
E-Mail: nicole.bamberger@streif.de
Mobil: 0151-10658277
Hinweis:
Vorverkauf und Irrtümer vorbehalten. Bilder können Sonderbauteile darstellen, die im Preis nicht enthalten sind und abweichend von textlichen Inhalten sein.
zzgl. Baunebenkosten.
Der Grundstückserwerb stellt keine STREIF Leistung dar.
Hinweis zu den gesetzlichen Pflichtangaben gemäß der EnEV 2016: Bei dem hier angebotenen Haus handelt es sich um ein Neubauprojekt.
Wir weisen darauf hin, dass zu diesem projektierten Haus noch kein Energieausweis vorliegt. Der Energieausweis wird Ihnen spätestens im Rahmen der Erstellung des Objektes ausgehändigt
Karte wird geladen...
Objektstandort
08064 Zwickau
Lage & Infrastruktur
Objektstandort
08064 Zwickau
Weißenborn ist ein historischer Stadtteil von Zwickau, welches sich nordwestlich vom Zwickauer Zentrum als Bindeglied zwischen Pölbitz und Marienthal befindet.
Es ist eine beliebte Wohnlage vor allem auch wegen des angrenzenden Weißenborner Waldes, dem Stadtpark.
Die Siedlung an der Grenze zu Werdau gehörte schon immer zu einem der attraktivsten Wohngegenden im Raum Zwickau.
Geprägt ist Weißenborn durch seine altbewährten Einfahmilienhäuser, neu errichteten Wohnhäusern und Stadtvillen.
Neben verschiedensten Einkaufsmöglichkeiten findet sich hier ein großes Ärztehaus, zwei Kindertagesstätten und ein Berufsschulzentrum.
Innerhalb weniger Autofahrminuten erreicht man Land- und Bundesstraßen, die benachbarten Stadtteile und das Zentrum von Zwickau.
Auch die gute Anbindung an den öffentlichen Nahverkehr ist zu erwähnen.
Die wunderbare Lage mit ihrer Nähe zur Innenstadt, als auch zu den ruhigen Orten des Stadtparkes, macht diesen Teil der Stadt zu einer der besten Wohnadressen von Zwickau.
Es ist eine beliebte Wohnlage vor allem auch wegen des angrenzenden Weißenborner Waldes, dem Stadtpark.
Die Siedlung an der Grenze zu Werdau gehörte schon immer zu einem der attraktivsten Wohngegenden im Raum Zwickau.
Geprägt ist Weißenborn durch seine altbewährten Einfahmilienhäuser, neu errichteten Wohnhäusern und Stadtvillen.
Neben verschiedensten Einkaufsmöglichkeiten findet sich hier ein großes Ärztehaus, zwei Kindertagesstätten und ein Berufsschulzentrum.
Innerhalb weniger Autofahrminuten erreicht man Land- und Bundesstraßen, die benachbarten Stadtteile und das Zentrum von Zwickau.
Auch die gute Anbindung an den öffentlichen Nahverkehr ist zu erwähnen.
Die wunderbare Lage mit ihrer Nähe zur Innenstadt, als auch zu den ruhigen Orten des Stadtparkes, macht diesen Teil der Stadt zu einer der besten Wohnadressen von Zwickau.
Kontaktanfrage senden
Über den Anbieter
STREIF Haus GmbH
Josef-Streif-Straße 1
54595 Weinsheim
Kontakt
| Telefon | 06551 12 00 |
| Mobil | +49 151 10658277 |
| Website | www.streif.de |
Ansprechpartner/in
Frau Nicole Bamberger