Zwei Familien - ein Haus! Gemeinsam Kosten sparen!
319.995 €
Kaufpreis
143 m²
Wohnfläche
5
Zimmer
immobilien.de Nr.: 9450826
Objektnummer: 2024-022
Kaufpreis
| Kaufpreis | 319.995 € |
Wohnfläche, Grundstück & Bausubstanz
| Wohnfläche | 143 m² |
| Grundstücksfläche | 900 m² |
| Zimmer | 5 |
| Verfügbar ab | 2025 |
| Zustand | Projektiert |
Energie
| Energietyp | KfW-40 |
| Heizungsart | Zentralheizung |
| Energieträger/Befeuerung | Luft-Wärme-Pumpe |
Beschreibung der Immobilie
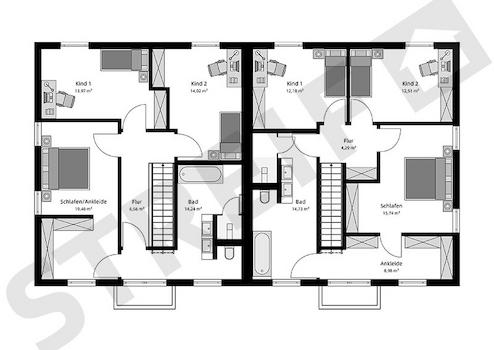
Herzlich willkommen in Zwickau! Hier haben Sie die Möglichkeit, sich den Traum vom Eigenheim in Form einer modernen Doppelhaushälfte zu erfüllen. Dieses projektierte Objekt bietet Ihnen auf einer Wohnfläche von 143,00 m² und einem großzügigen Grundstück von 900,00 m² ausreichend Platz, um sich individuell zu entfalten.
Die Doppelhaushälfte erstreckt sich über zwei Etagen und verfügt über insgesamt 5,0 Zimmer sowie 4 Schlafzimmer. Des Weiteren stehen Ihnen ein Badezimmer mit Dusche, Wanne und Fenster sowie ein zusätzliches Gäste-WC zur Verfügung. Die gehobene Ausstattung sorgt für ein komfortables Wohngefühl und lässt keine Wünsche offen.
Als Befeuerungsart kommt eine moderne Wärmepumpe zum Einsatz. Diese zeichnet sich durch ihre hohe Energieeffizienz aus und ermöglicht Ihnen eine nachhaltige und kostengünstige Beheizung Ihres neuen Zuhauses. Durch die Verwendung dieser innovativen Technologie entspricht das Haus dem KFW40 Standard, was Ihnen nicht nur ein ökologisches Bewusstsein, sondern auch finanzielle Vorteile durch staatliche Förderungen bietet.
Die Doppelhaushälfte ist Teil des STREIF-Programms und wird in der Ausbaustufe "FastFertigPlus" realisiert. Dies bedeutet, dass Sie die Möglichkeit haben, aktiv am Bau mitzuwirken, während gleichzeitig die haustechnischen Gewerke wie Heizung, Lüftung, Sanitär und Estrich von Fachbetrieben übernommen werden. Dadurch profitieren Sie von einem optimalen Preis-Leistungs-Verhältnis und können Ihr neues Zuhause ganz nach Ihren Vorstellungen gestalten.
STREIF bietet moderne Doppelhaushälften an, die es Ihnen ermöglichen, kleine Flächen effizient zu nutzen und dennoch komfortabel zu wohnen - eine ideale Lösung angesichts steigender Grundstückspreise in Stadtlagen. Die hervorragende Schallisolierung der STREIF Wandkonstruktion gewährleistet zudem ein ruhiges Zusammenleben Haus an Haus.
Ob für Paare, Familien oder mehrere Generationen - die flexiblen Hausentwürfe von STREIF bieten für jeden Bedarf die passende Lösung. Darüber hinaus sind die Doppelhaushälften und Generationenhäuser erweiterbar und variabel, sodass sie sich ideal an Ihre individuellen Anforderungen anpassen lassen.
Lassen Sie sich von der Qualität und Vielseitigkeit des geplanten Doppelhauses in Zwickau überzeugen und verwirklichen Sie gemeinsam mit STREIF Ihren Traum vom Eigenheim!
Die Doppelhaushälfte erstreckt sich über zwei Etagen und verfügt über insgesamt 5,0 Zimmer sowie 4 Schlafzimmer. Des Weiteren stehen Ihnen ein Badezimmer mit Dusche, Wanne und Fenster sowie ein zusätzliches Gäste-WC zur Verfügung. Die gehobene Ausstattung sorgt für ein komfortables Wohngefühl und lässt keine Wünsche offen.
Als Befeuerungsart kommt eine moderne Wärmepumpe zum Einsatz. Diese zeichnet sich durch ihre hohe Energieeffizienz aus und ermöglicht Ihnen eine nachhaltige und kostengünstige Beheizung Ihres neuen Zuhauses. Durch die Verwendung dieser innovativen Technologie entspricht das Haus dem KFW40 Standard, was Ihnen nicht nur ein ökologisches Bewusstsein, sondern auch finanzielle Vorteile durch staatliche Förderungen bietet.
Die Doppelhaushälfte ist Teil des STREIF-Programms und wird in der Ausbaustufe "FastFertigPlus" realisiert. Dies bedeutet, dass Sie die Möglichkeit haben, aktiv am Bau mitzuwirken, während gleichzeitig die haustechnischen Gewerke wie Heizung, Lüftung, Sanitär und Estrich von Fachbetrieben übernommen werden. Dadurch profitieren Sie von einem optimalen Preis-Leistungs-Verhältnis und können Ihr neues Zuhause ganz nach Ihren Vorstellungen gestalten.
STREIF bietet moderne Doppelhaushälften an, die es Ihnen ermöglichen, kleine Flächen effizient zu nutzen und dennoch komfortabel zu wohnen - eine ideale Lösung angesichts steigender Grundstückspreise in Stadtlagen. Die hervorragende Schallisolierung der STREIF Wandkonstruktion gewährleistet zudem ein ruhiges Zusammenleben Haus an Haus.
Ob für Paare, Familien oder mehrere Generationen - die flexiblen Hausentwürfe von STREIF bieten für jeden Bedarf die passende Lösung. Darüber hinaus sind die Doppelhaushälften und Generationenhäuser erweiterbar und variabel, sodass sie sich ideal an Ihre individuellen Anforderungen anpassen lassen.
Lassen Sie sich von der Qualität und Vielseitigkeit des geplanten Doppelhauses in Zwickau überzeugen und verwirklichen Sie gemeinsam mit STREIF Ihren Traum vom Eigenheim!
Ausstattungsmerkmale
| Anzahl der Etagen im Haus | 2 |
| Küche | Offene Küche |
| Bad | 1 |
| Bad | Dusche, Wanne, Fenster |
STREIF-Energiespar-Häuser sind für die Effizienzhaus-Klasse 40 ausgestattet. Gegen Aufpreis kann eine Ökobilanz erstellt werden, die bescheinigt, dass Ihr STREIF-Haus den neuen KfW-Förderrichtlinien in der Stufe KFWG für den klimafreundlichen Neubau (KFN) entspricht. Für das Erfüllen der Voraussetzungen zur KfW-Förderung ist eine Photovoltaikanlage mit Batteriespeicher erforderlich.
Folgende STREIF-Leistungen sind im Jubiläums-Feierpreis enthalten -
bei Ausbaustufe FASTFERTIG+:
20-monatige Fair- und Festpreisgarantie
Inklusive gedämmter Fundamentplatte
Inklusive STREIF-Luft-Luft-Wärmepumpen-Technologie, mit integrierter Lüftungsanlage mit Wärmerückgewinnung
Inklusive hochwertiger Holzhaustür von KERA
Inklusive Fenster von Porta/Kömmerling, Fenster innen und außen in Weiß
Inklusive Massivholz-Geschosstreppe aus eigener Produktion (außer Bungalow)
Inklusive Sanitärobjekten von Markenherstellern in Bad/WC
Inklusive Elektroinstallation u.v.m.
Inklusive Vorbereitung zur Installation einer Photovoltaik-Anlage
Inklusive individueller Grundrissgestaltung und Raumaufteilung | Die Position der Bäder, die Größe der Haustechnikräume und der Treppen sind bei den Jubiläumshäusern nicht veränderbar.
Die STREIF-Passiv-Außenwand und eine sparsame Heiztechnik mit integrierter Wohnraumlüftung und Wärmerückgewinnung garantieren einen geringen Energieverbrauch und ein fantastisches Raumklima, das insbesondere Allergiker aufatmen lässt.
Die hohe Wertigkeit und Langlebigkeit eines STREIF-Energiespar-Hauses werden durch zahlreiche Auszeichnungen, Qualitäts- und Gütesiegel unabhängiger Institute und Verbände dokumentiert.
Der Angebotspreis ist exklusive Grundstück und bezieht sich auf die Standard-Ausbaustufe Fast-Fertig-Plus. Ihre Eigenleistungen: Spachtel-, Tapezier- und Malerarbeiten, Bodenbeläge, Innentüren.
Baunebenkosten fallen zuzüglich an. Der Verkauf des Grundstücks erfolgt über einen unserer Netzwerkpartner. Bilder können evtl. Anbauteile, Carports, Balkone, Gauben usw. zeigen, die nicht im Angebotspreis enthalten sind. Änderungen und Irrtümer vorbehalten. Fragen Sie Ihre persönliche STREIF-Bauberatung.
Folgende STREIF-Leistungen sind im Jubiläums-Feierpreis enthalten -
bei Ausbaustufe FASTFERTIG+:
20-monatige Fair- und Festpreisgarantie
Inklusive gedämmter Fundamentplatte
Inklusive STREIF-Luft-Luft-Wärmepumpen-Technologie, mit integrierter Lüftungsanlage mit Wärmerückgewinnung
Inklusive hochwertiger Holzhaustür von KERA
Inklusive Fenster von Porta/Kömmerling, Fenster innen und außen in Weiß
Inklusive Massivholz-Geschosstreppe aus eigener Produktion (außer Bungalow)
Inklusive Sanitärobjekten von Markenherstellern in Bad/WC
Inklusive Elektroinstallation u.v.m.
Inklusive Vorbereitung zur Installation einer Photovoltaik-Anlage
Inklusive individueller Grundrissgestaltung und Raumaufteilung | Die Position der Bäder, die Größe der Haustechnikräume und der Treppen sind bei den Jubiläumshäusern nicht veränderbar.
Die STREIF-Passiv-Außenwand und eine sparsame Heiztechnik mit integrierter Wohnraumlüftung und Wärmerückgewinnung garantieren einen geringen Energieverbrauch und ein fantastisches Raumklima, das insbesondere Allergiker aufatmen lässt.
Die hohe Wertigkeit und Langlebigkeit eines STREIF-Energiespar-Hauses werden durch zahlreiche Auszeichnungen, Qualitäts- und Gütesiegel unabhängiger Institute und Verbände dokumentiert.
Der Angebotspreis ist exklusive Grundstück und bezieht sich auf die Standard-Ausbaustufe Fast-Fertig-Plus. Ihre Eigenleistungen: Spachtel-, Tapezier- und Malerarbeiten, Bodenbeläge, Innentüren.
Baunebenkosten fallen zuzüglich an. Der Verkauf des Grundstücks erfolgt über einen unserer Netzwerkpartner. Bilder können evtl. Anbauteile, Carports, Balkone, Gauben usw. zeigen, die nicht im Angebotspreis enthalten sind. Änderungen und Irrtümer vorbehalten. Fragen Sie Ihre persönliche STREIF-Bauberatung.
Sonstige Informationen
Sie brauchen einen kompetenten und verlässlichen Baupartner? Wir stehen Ihnen von Anfang an zur Seite und begleiten Sie auf dem Weg in Ihr Eigenheim.
Mit großem Engagement, Persönlichkeit und der Fachfirma STREIF mit immensen Bau-Know-how, die seit 1929 auf über 85.000 realisierte Wohnträume zurückblicken kann.
Jedes Haus von STREIF wird individuell als Energiesparhaus geplant und gebaut. Eine nachhaltige, ökologische und wohngesunde Bauweise, eine zertifizierte Ausführungsqualität und eine kurze Bauzeit, dafür stehen wir.
Gerne beraten wir Sie nach Vereinbarung im Beratungsbüro Dölau bei Greiz oder ganz unkompliziert bei Ihnen zu Hause und erstellen Ihnen ein Angebot mit einer realistisch ermittelten Aufstellung der Gesamt-Investition.
Wir freuen uns auf Ihren Anruf / Nachricht!
Ihr STREIF Fachberaterin
Nicole Bamberger
E-Mail: nicole.bamberger@streif.de
Mobil: 0151-10658277
Hinweis:
Vorverkauf und Irrtümer vorbehalten. Bilder können Sonderbauteile darstellen, die im Preis nicht enthalten sind und abweichend von textlichen Inhalten sein.
zzgl. Baunebenkosten.
Der Grundstückserwerb stellt keine STREIF Leistung dar.
Hinweis zu den gesetzlichen Pflichtangaben gemäß der EnEV 2016: Bei dem hier angebotenen Haus handelt es sich um ein Neubauprojekt.
Wir weisen darauf hin, dass zu diesem projektierten Haus noch kein Energieausweis vorliegt. Der Energieausweis wird Ihnen spätestens im Rahmen der Erstellung des Objektes ausgehändigt
Mit großem Engagement, Persönlichkeit und der Fachfirma STREIF mit immensen Bau-Know-how, die seit 1929 auf über 85.000 realisierte Wohnträume zurückblicken kann.
Jedes Haus von STREIF wird individuell als Energiesparhaus geplant und gebaut. Eine nachhaltige, ökologische und wohngesunde Bauweise, eine zertifizierte Ausführungsqualität und eine kurze Bauzeit, dafür stehen wir.
Gerne beraten wir Sie nach Vereinbarung im Beratungsbüro Dölau bei Greiz oder ganz unkompliziert bei Ihnen zu Hause und erstellen Ihnen ein Angebot mit einer realistisch ermittelten Aufstellung der Gesamt-Investition.
Wir freuen uns auf Ihren Anruf / Nachricht!
Ihr STREIF Fachberaterin
Nicole Bamberger
E-Mail: nicole.bamberger@streif.de
Mobil: 0151-10658277
Hinweis:
Vorverkauf und Irrtümer vorbehalten. Bilder können Sonderbauteile darstellen, die im Preis nicht enthalten sind und abweichend von textlichen Inhalten sein.
zzgl. Baunebenkosten.
Der Grundstückserwerb stellt keine STREIF Leistung dar.
Hinweis zu den gesetzlichen Pflichtangaben gemäß der EnEV 2016: Bei dem hier angebotenen Haus handelt es sich um ein Neubauprojekt.
Wir weisen darauf hin, dass zu diesem projektierten Haus noch kein Energieausweis vorliegt. Der Energieausweis wird Ihnen spätestens im Rahmen der Erstellung des Objektes ausgehändigt
Karte wird geladen...
Objektstandort
08064 Zwickau
Lage & Infrastruktur
Objektstandort
08064 Zwickau
Weißenborn ist ein historischer Stadtteil von Zwickau, welches sich nordwestlich vom Zwickauer Zentrum als Bindeglied zwischen Pölbitz und Marienthal befindet.
Es ist eine beliebte Wohnlage vor allem auch wegen des angrenzenden Weißenborner Waldes, dem Stadtpark.
Die Siedlung an der Grenze zu Werdau gehörte schon immer zu einem der attraktivsten Wohngegenden im Raum Zwickau.
Geprägt ist Weißenborn durch seine altbewährten Einfahmilienhäuser, neu errichteten Wohnhäusern und Stadtvillen.
Neben verschiedensten Einkaufsmöglichkeiten findet sich hier ein großes Ärztehaus, zwei Kindertagesstätten und ein Berufsschulzentrum.
Innerhalb weniger Autofahrminuten erreicht man Land- und Bundesstraßen, die benachbarten Stadtteile und das Zentrum von Zwickau.
Auch die gute Anbindung an den öffentlichen Nahverkehr ist zu erwähnen.
Die wunderbare Lage mit ihrer Nähe zur Innenstadt, als auch zu den ruhigen Orten des Stadtparkes, macht diesen Teil der Stadt zu einer der besten Wohnadressen von Zwickau.
Es ist eine beliebte Wohnlage vor allem auch wegen des angrenzenden Weißenborner Waldes, dem Stadtpark.
Die Siedlung an der Grenze zu Werdau gehörte schon immer zu einem der attraktivsten Wohngegenden im Raum Zwickau.
Geprägt ist Weißenborn durch seine altbewährten Einfahmilienhäuser, neu errichteten Wohnhäusern und Stadtvillen.
Neben verschiedensten Einkaufsmöglichkeiten findet sich hier ein großes Ärztehaus, zwei Kindertagesstätten und ein Berufsschulzentrum.
Innerhalb weniger Autofahrminuten erreicht man Land- und Bundesstraßen, die benachbarten Stadtteile und das Zentrum von Zwickau.
Auch die gute Anbindung an den öffentlichen Nahverkehr ist zu erwähnen.
Die wunderbare Lage mit ihrer Nähe zur Innenstadt, als auch zu den ruhigen Orten des Stadtparkes, macht diesen Teil der Stadt zu einer der besten Wohnadressen von Zwickau.
Kontaktanfrage senden
Über den Anbieter
STREIF Haus GmbH
Josef-Streif-Straße 1
54595 Weinsheim
Kontakt
| Telefon | 06551 12 00 |
| Mobil | +49 151 10658277 |
| Website | www.streif.de |
Ansprechpartner/in
Frau Nicole Bamberger