Gemeinsam BAUEN - Kosten SPAREN!!!
319.995 €
Kaufpreis
144 m²
Wohnfläche
5
Zimmer
immobilien.de Nr.: 9450816
Objektnummer: 2024-007
Kaufpreis
| Kaufpreis | 319.995 € |
Wohnfläche, Grundstück & Bausubstanz
| Wohnfläche | 144 m² |
| Grundstücksfläche | 7.450 m² |
| Zimmer | 5 |
| Verfügbar ab | 2025 |
| Zustand | Projektiert |
Energie
| Energietyp | KfW-40 |
| Energieträger/Befeuerung | Luft-Wärme-Pumpe |
Beschreibung der Immobilie
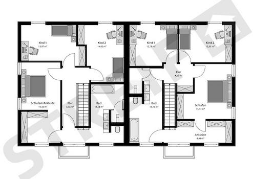
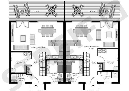
Die Doppelhaushälfte, die anlässlich des 95-jährigen Jubiläums von STREIF gebaut wurde, besticht durch ein traditionell-elegantes Walmdach. Jede Haushälfte bietet mit einer Wohnfläche von 143 m² einen komfortablen Wohnraum für eine vierköpfige Familie. Aufgrund der Bauweise müssen beide Hälften gleichzeitig errichtet werden. Im Erdgeschoss ist ein zusätzlicher Raum vorgesehen, der als Büro, Gästezimmer oder Hobbyraum genutzt werden kann. Es besteht auch die Möglichkeit, ein Badezimmer mit Dusche im Erdgeschoss einzurichten, um das Wohnen auf einer Etage bei Krankheit oder im Alter zu ermöglichen. Der Wohn-, Ess- und Kochbereich ist mit vier großen Terrassentüren ausgestattet und bietet auf jeweils 39 m² bzw. 37 m² viel Platz für die Familie. Die gerade Treppe verleiht dem Haus Struktur und Modernität. Ein technischer Raum und eine Diele ergänzen das Raumangebot im Erdgeschoss. Im Obergeschoss befinden sich ein geräumiges Familienbad, zwei schöne Kinderzimmer und ein Elternbereich mit begehbarem Kleiderschrank.
Objekttyp: zweistöckige Doppelhaushälfte
Dachform: Walmdach
Größe des Hauses: 8,613 m x 9,955 m
Netto-Wohnfläche: 143 m²
STREIF-Jubiläums-Doppelhaushälfte zum 95-jährigen Jubiläum
Objekttyp: zweistöckige Doppelhaushälfte
Dachform: Walmdach
Größe des Hauses: 8,613 m x 9,955 m
Netto-Wohnfläche: 143 m²
STREIF-Jubiläums-Doppelhaushälfte zum 95-jährigen Jubiläum
Ausstattungsmerkmale
| Anzahl der Etagen im Haus | 2 |
| Küche | Offene Küche |
| Bad | 1 |
| Bad | Dusche, Wanne, Fenster |
STREIF-Energiespar-Häuser sind für die Effizienzhaus-Klasse 40 ausgestattet. Gegen Aufpreis kann eine Ökobilanz erstellt werden, die bescheinigt, dass Ihr STREIF-Haus den neuen KfW-Förderrichtlinien in der Stufe KFWG für den Klimafreundlichen Neubau (KFN) entspricht. Für das Erfüllen der Voraussetzungen zur KfW-Förderung ist eine Photovoltaikanlage mit Batteriespeicher erforderlich.
Folgende STREIF-Leistungen sind im Jubiläums-Feierpreis enthalten -
bei Ausbaustufe FASTFERTIG+:
20-monatige Fair- und Festpreisgarantie
Inklusive gedämmter Fundamentplatte
Inklusive STREIF-Luft-Luft-Wärmepumpen-Technologie, mit integrierter Lüftungsanlage mit Wärmerückgewinnung
Inklusive hochwertiger Holzhaustür von KERA
Inklusive Fenster von Porta/Kömmerling, Fenster innen und außen in Weiß
Inklusive Massivholz-Geschosstreppe aus eigener Produktion (außer Bungalow)
Inklusive Sanitärobjekten von Markenherstellern in Bad/WC
Inklusive Elektroinstallation u.v.m.
Inklusive Vorbereitung zur Installation einer Photovoltaik-Anlage
Inklusive individueller Grundrissgestaltung und Raumaufteilung | Die Position der Bäder, die Größe der Haustechnikräume und der Treppen sind bei den Jubiläumshäusern nicht veränderbar.
Die STREIF-Passiv-Außenwand und eine sparsame Heiztechnik mit integrierter Wohnraumlüftung und Wärmerückgewinnung garantieren einen geringen Energieverbrauch und ein fantastisches Raumklima, das insbesondere Allergiker aufatmen lässt.
Die hohe Wertigkeit und Langlebigkeit eines STREIF-Energiespar-Hauses werden durch zahlreiche Auszeichnungen, Qualitäts- und Gütesiegel unabhängiger Institute und Verbände dokumentiert.
Der Angebotspreis ist exklusive Grundstück und bezieht sich auf die Standard-Ausbaustufe Fast-Fertig-Plus. Ihre Eigenleistungen: Spachtel-, Tapezier- und Malerarbeiten, Bodenbeläge, Innentüren.
Baunebenkosten fallen zuzüglich an. Der Verkauf des Grundstücks erfolgt über einen unserer Netzwerkpartner. Bilder können evtl. Anbauteile, Carports, Balkone, Gauben usw. zeigen, die nicht im Angebotspreis enthalten sind. Änderungen und Irrtümer vorbehalten. Fragen Sie Ihre persönliche STREIF-Bauberatung.
Folgende STREIF-Leistungen sind im Jubiläums-Feierpreis enthalten -
bei Ausbaustufe FASTFERTIG+:
20-monatige Fair- und Festpreisgarantie
Inklusive gedämmter Fundamentplatte
Inklusive STREIF-Luft-Luft-Wärmepumpen-Technologie, mit integrierter Lüftungsanlage mit Wärmerückgewinnung
Inklusive hochwertiger Holzhaustür von KERA
Inklusive Fenster von Porta/Kömmerling, Fenster innen und außen in Weiß
Inklusive Massivholz-Geschosstreppe aus eigener Produktion (außer Bungalow)
Inklusive Sanitärobjekten von Markenherstellern in Bad/WC
Inklusive Elektroinstallation u.v.m.
Inklusive Vorbereitung zur Installation einer Photovoltaik-Anlage
Inklusive individueller Grundrissgestaltung und Raumaufteilung | Die Position der Bäder, die Größe der Haustechnikräume und der Treppen sind bei den Jubiläumshäusern nicht veränderbar.
Die STREIF-Passiv-Außenwand und eine sparsame Heiztechnik mit integrierter Wohnraumlüftung und Wärmerückgewinnung garantieren einen geringen Energieverbrauch und ein fantastisches Raumklima, das insbesondere Allergiker aufatmen lässt.
Die hohe Wertigkeit und Langlebigkeit eines STREIF-Energiespar-Hauses werden durch zahlreiche Auszeichnungen, Qualitäts- und Gütesiegel unabhängiger Institute und Verbände dokumentiert.
Der Angebotspreis ist exklusive Grundstück und bezieht sich auf die Standard-Ausbaustufe Fast-Fertig-Plus. Ihre Eigenleistungen: Spachtel-, Tapezier- und Malerarbeiten, Bodenbeläge, Innentüren.
Baunebenkosten fallen zuzüglich an. Der Verkauf des Grundstücks erfolgt über einen unserer Netzwerkpartner. Bilder können evtl. Anbauteile, Carports, Balkone, Gauben usw. zeigen, die nicht im Angebotspreis enthalten sind. Änderungen und Irrtümer vorbehalten. Fragen Sie Ihre persönliche STREIF-Bauberatung.
Sonstige Informationen
Sie brauchen einen kompetenten und verlässlichen Baupartner? Wir stehen Ihnen von Anfang an zur Seite und begleiten Sie auf dem Weg in Ihr Eigenheim.
Mit großem Engagement, Persönlichkeit und der Fachfirma STREIF mit immensen Bau-Know-how, die seit 1929 auf über 85.000 realisierte Wohnträume zurückblicken kann.
Jedes Haus von STREIF wird individuell als Energiesparhaus geplant und gebaut. Eine nachhaltige, ökologische und wohngesunde Bauweise, eine zertifizierte Ausführungsqualität und eine kurze Bauzeit, dafür stehen wir.
Gerne beraten wir Sie nach Vereinbarung im Beratungsbüro Dölau bei Greiz oder ganz unkompliziert bei Ihnen zu Hause und erstellen Ihnen ein Angebot mit einer realistisch ermittelten Aufstellung der Gesamt-Investition.
Wir freuen uns auf Ihren Anruf / Nachricht!
Ihr STREIF Fachberaterin
Nicole Bamberger
E-Mail: nicole.bamberger@streif.de
Mobil: 0151-10658277
Hinweis:
Vorverkauf und Irrtümer vorbehalten. Bilder können Sonderbauteile darstellen, die im Preis nicht enthalten sind und abweichend von textlichen Inhalten sein.
zzgl. Baunebenkosten.
Der Grundstückserwerb stellt keine STREIF Leistung dar.
Hinweis zu den gesetzlichen Pflichtangaben gemäß der EnEV 2016: Bei dem hier angebotenen Haus handelt es sich um ein Neubauprojekt.
Wir weisen darauf hin, dass zu diesem projektierten Haus noch kein Energieausweis vorliegt. Der Energieausweis wird Ihnen spätestens im Rahmen der Erstellung des Objektes ausgehändigt
Mit großem Engagement, Persönlichkeit und der Fachfirma STREIF mit immensen Bau-Know-how, die seit 1929 auf über 85.000 realisierte Wohnträume zurückblicken kann.
Jedes Haus von STREIF wird individuell als Energiesparhaus geplant und gebaut. Eine nachhaltige, ökologische und wohngesunde Bauweise, eine zertifizierte Ausführungsqualität und eine kurze Bauzeit, dafür stehen wir.
Gerne beraten wir Sie nach Vereinbarung im Beratungsbüro Dölau bei Greiz oder ganz unkompliziert bei Ihnen zu Hause und erstellen Ihnen ein Angebot mit einer realistisch ermittelten Aufstellung der Gesamt-Investition.
Wir freuen uns auf Ihren Anruf / Nachricht!
Ihr STREIF Fachberaterin
Nicole Bamberger
E-Mail: nicole.bamberger@streif.de
Mobil: 0151-10658277
Hinweis:
Vorverkauf und Irrtümer vorbehalten. Bilder können Sonderbauteile darstellen, die im Preis nicht enthalten sind und abweichend von textlichen Inhalten sein.
zzgl. Baunebenkosten.
Der Grundstückserwerb stellt keine STREIF Leistung dar.
Hinweis zu den gesetzlichen Pflichtangaben gemäß der EnEV 2016: Bei dem hier angebotenen Haus handelt es sich um ein Neubauprojekt.
Wir weisen darauf hin, dass zu diesem projektierten Haus noch kein Energieausweis vorliegt. Der Energieausweis wird Ihnen spätestens im Rahmen der Erstellung des Objektes ausgehändigt
Karte wird geladen...
Objektstandort
Leithen 11
08258 Markneukirchen
Lage & Infrastruktur
Objektstandort
Leithen 11
08258 Markneukirchen
Eingebettet in die reizvolle Mittelgebirgslandschaft mit herrlich
grünen Hängen und Tälern liegt das so wunderschöne
Markneukirchen, dort wo Instrumente geboren und die Musik
gelebt wird.
Die Stadt ist umgeben von den Ortsteilen Erlbach (Luftkurort),
Breitenfeld, Landwüst, Schönlind, Siebenbrunn und Wohlhausen
mit der berühmten Jacob`s Weihnachtswelt.
Markneukirchen bietet eine malerische Kulisse zum Wohnen und
Leben!
Das Baugrundstück befindet sich an der Straße Leithen 11
Markneukirchen und ist eine Lückenbebauung.
In Markneukirchen befinden sich eine Grundschule, Gymnasium,
Förderschule, Musikschule, Westsächsische Hochschule,
Arztpraxen und Einkaufsmöglichkeiten des täglichen Bedarfs.
Auch das Sportangebot kommt in Markneukirchen nicht zu kurz:
So gibt es hier eine Muskikhalle, Freibad, Tennisplätze,
Sporthallen, Modellflugplatz und einen Golfplatz in Luby
(Schönbach)
Markneukirchen liegt direkt an der B283 die von Adorf aus nach
Klingenthal durchs Erzgebirge nach Aue führt.
Verkehrsanbindung zur Autobahn: A72 AS 5 Plauen-Süd und AS 6
Pirk sind es 26km und A93 Regnitzlosau 27km
grünen Hängen und Tälern liegt das so wunderschöne
Markneukirchen, dort wo Instrumente geboren und die Musik
gelebt wird.
Die Stadt ist umgeben von den Ortsteilen Erlbach (Luftkurort),
Breitenfeld, Landwüst, Schönlind, Siebenbrunn und Wohlhausen
mit der berühmten Jacob`s Weihnachtswelt.
Markneukirchen bietet eine malerische Kulisse zum Wohnen und
Leben!
Das Baugrundstück befindet sich an der Straße Leithen 11
Markneukirchen und ist eine Lückenbebauung.
In Markneukirchen befinden sich eine Grundschule, Gymnasium,
Förderschule, Musikschule, Westsächsische Hochschule,
Arztpraxen und Einkaufsmöglichkeiten des täglichen Bedarfs.
Auch das Sportangebot kommt in Markneukirchen nicht zu kurz:
So gibt es hier eine Muskikhalle, Freibad, Tennisplätze,
Sporthallen, Modellflugplatz und einen Golfplatz in Luby
(Schönbach)
Markneukirchen liegt direkt an der B283 die von Adorf aus nach
Klingenthal durchs Erzgebirge nach Aue führt.
Verkehrsanbindung zur Autobahn: A72 AS 5 Plauen-Süd und AS 6
Pirk sind es 26km und A93 Regnitzlosau 27km
Kontaktanfrage senden
Über den Anbieter
STREIF Haus GmbH
Josef-Streif-Straße 1
54595 Weinsheim
Kontakt
| Telefon | 06551 12 00 |
| Mobil | +49 151 10658277 |
| Website | www.streif.de |
Ansprechpartner/in
Frau Nicole Bamberger