Zweifamilienhaus mit Weitblick - Pferdehaltung möglich
620.000 €
Kaufpreis
230 m²
Wohnfläche
7
Zimmer
immobilien.de Nr.: 9450585
Objektnummer: 329671
Dateien
Kaufpreis
| Kaufpreis | 620.000 € |
| Maklerprovision | keine Provision, courtagefrei |
Wohnfläche, Grundstück & Bausubstanz
| Wohnfläche | 230 m² |
| Grundstücksfläche | 996 m² |
| Zimmer | 7 |
| Verfügbar ab | nach Absprache |
| Zustand | Gepflegt |
Energie
| Heizungsart | Fußbodenheizung |
| Energieträger/Befeuerung | Elektro |
Beschreibung der Immobilie
In diesem herrlichen Zweifamilienhaus ist vieles möglich: Wohnen mit mehreren Generationen, wohnen und arbeiten, wohnen und vermieten oder, oder...
Das Objekt wurde 1978 als Massivbau errichtet. Die Heizungsanlage ist 2023 gem. den aktuell gültigen gesetzlichen Anforderungen komplett erneuert worden.
Als Eckhaus liegt die Immobilie mit der Front zur Hauptstraße und seitlich an einer Nebenstraße, die durch eine Zypressenhecke abgeschirmt ist.
Vom gesamten hinteren Bereich und der Terrasse aus hat man einen wunderschönen Blick auf Wiesen, wie er im gesamten Ort nur selten zu finden ist. Siehe hierzu auch eine Anmerkung unter "Ausstattung".
Das Grundstück ist komplett umzäunt und bietet neben zwei Einzelgaragen ferner einen Doppelcarport. Das zweiflügelige Hoftor ist wie die Garagensektionaltore elektrisch betrieben. Beide Garagen haben rückwärtig jeweils einen separaten Ausgang in den Gartenbereich.
Der Haupteingang ist dreiseitig vom Mauerwerk des Gebäudes sowie einer der Garagen umgeben und vollständig überdacht (ca. 7 qm).
Durch die Haupteingangstür gelangt man in den gemeinsamen Flurbereich, von dem aus eine Treppe zum Vorflur der oberen Wohnung führt, geradeaus befindet sich der Eingang in die Erdgeschosswohnung.
Beschreibung Erdgeschosswohnung:
Die Wohnung im Erdgeschoss bietet keinen Renovierungsstau und ist sowohl in Bezug auf Aufteilung wie auch Ausstattung ein echtes Highlight. Vom Eingang gelangt man in einen offenen Wohn-/Essbereich mit Küche sowie eine tieferliegende Kaminecke mit dekorativem offenen Kamin, die von einer gemauerten Umrandung mit Marmorauflage umgeben ist. An die Küche ist eine ca. 4 qm große Speisekammer, abgetrennt durch eine Glasschiebetür, angegliedert. Ein breiter und offener Durchgang führt ins Wohnzimmer, von dem aus ein großes Glasschiebetürelement auf die ca. 30 qm große, geflieste und überdachte Terrasse führt. Durch die insgesamt 3 großen bodentiefen Fenster, ist der gesamte vordere Bereich, in dem sich auch ein Gäste WC befindet, stets lichtdurchflutet.
Die große Fensterfront im Essbereich sowie die seitliche im Wohnzimmer sind mit elektrischen und zeitgesteuerten Innenrollos ausgestattet.
Duch eine Echtholztür mit Glasauschnitt gelangt man in den hinteren, privaten Wohnbereich. Hier befinden sich der Hauswirtschaftsraum mit Ausgang in den Gartenbereich (Glastür), ein Abstellraum, das Badezimmer mit Dusche, Vollbad und Fenster, sowie drei weitere Zimmer, die derzeit als Arbeits-, Schlaf- und Sportzimmer genutzt werden. Von einem der Zimmer aus gelangt man über eine neue doppelflügige Terrassentür ebenfalls auf die Terrasse. Die Wohnfläche nach DIN beträgt 127,75 qm. Die gesamte Erdgeschosswohnung wurde ständig modernisiert und bietet auch im Außenbereich einiges an Komfort, weitere Details hierzu unter Ausstattung.
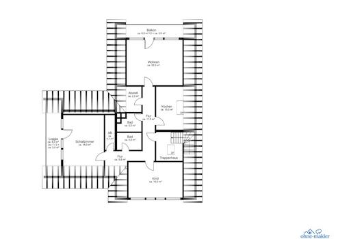
Beschreibung Wonhung im Obergeschoss:
Die Wohnung im Obergeschoss wurde bis ca. 1981 ausgebaut, wodurch die Wohnfläche mit ca. 105 qm angegeben werden kann. Sie verfügt über Küche mit großem Dachfenster, zwei innenliegende Badezimmer, davon eines mit Dusche und eines mit Vollbad, ein großzügiges Wohnzimmer mit Wintergarten, von dem aus eine Wendeltreppe in den Garten führt. Von den zwei weiteren großeren Zimmern ist eines mit großflächiger, bodentiefer Fensterfront und Balkon zu Seitenstraße gelegen. Das weitere Zimmer liegt zur Frontseite des Hauses. Zwei Abstellräume, von denen einer in der Vergangenheit als kleines Zimmer genutzt wurde, sowie eine kleine Abstellkammer runden die Aufteilung ab. Die Obergeschosswohnung wurde bis auf die vergangenen 4 Jahre ständig bewohnt und in Teilen modernisiert, bietet aber noch einiges an Renovierungsbedarf.
Der separate Heizungsraum ist neben den Garagen gelegen und hat vom Garten aus einen eigenen Eingang.
Das Objekt wurde 1978 als Massivbau errichtet. Die Heizungsanlage ist 2023 gem. den aktuell gültigen gesetzlichen Anforderungen komplett erneuert worden.
Als Eckhaus liegt die Immobilie mit der Front zur Hauptstraße und seitlich an einer Nebenstraße, die durch eine Zypressenhecke abgeschirmt ist.
Vom gesamten hinteren Bereich und der Terrasse aus hat man einen wunderschönen Blick auf Wiesen, wie er im gesamten Ort nur selten zu finden ist. Siehe hierzu auch eine Anmerkung unter "Ausstattung".
Das Grundstück ist komplett umzäunt und bietet neben zwei Einzelgaragen ferner einen Doppelcarport. Das zweiflügelige Hoftor ist wie die Garagensektionaltore elektrisch betrieben. Beide Garagen haben rückwärtig jeweils einen separaten Ausgang in den Gartenbereich.
Der Haupteingang ist dreiseitig vom Mauerwerk des Gebäudes sowie einer der Garagen umgeben und vollständig überdacht (ca. 7 qm).
Durch die Haupteingangstür gelangt man in den gemeinsamen Flurbereich, von dem aus eine Treppe zum Vorflur der oberen Wohnung führt, geradeaus befindet sich der Eingang in die Erdgeschosswohnung.
Beschreibung Erdgeschosswohnung:
Die Wohnung im Erdgeschoss bietet keinen Renovierungsstau und ist sowohl in Bezug auf Aufteilung wie auch Ausstattung ein echtes Highlight. Vom Eingang gelangt man in einen offenen Wohn-/Essbereich mit Küche sowie eine tieferliegende Kaminecke mit dekorativem offenen Kamin, die von einer gemauerten Umrandung mit Marmorauflage umgeben ist. An die Küche ist eine ca. 4 qm große Speisekammer, abgetrennt durch eine Glasschiebetür, angegliedert. Ein breiter und offener Durchgang führt ins Wohnzimmer, von dem aus ein großes Glasschiebetürelement auf die ca. 30 qm große, geflieste und überdachte Terrasse führt. Durch die insgesamt 3 großen bodentiefen Fenster, ist der gesamte vordere Bereich, in dem sich auch ein Gäste WC befindet, stets lichtdurchflutet.
Die große Fensterfront im Essbereich sowie die seitliche im Wohnzimmer sind mit elektrischen und zeitgesteuerten Innenrollos ausgestattet.
Duch eine Echtholztür mit Glasauschnitt gelangt man in den hinteren, privaten Wohnbereich. Hier befinden sich der Hauswirtschaftsraum mit Ausgang in den Gartenbereich (Glastür), ein Abstellraum, das Badezimmer mit Dusche, Vollbad und Fenster, sowie drei weitere Zimmer, die derzeit als Arbeits-, Schlaf- und Sportzimmer genutzt werden. Von einem der Zimmer aus gelangt man über eine neue doppelflügige Terrassentür ebenfalls auf die Terrasse. Die Wohnfläche nach DIN beträgt 127,75 qm. Die gesamte Erdgeschosswohnung wurde ständig modernisiert und bietet auch im Außenbereich einiges an Komfort, weitere Details hierzu unter Ausstattung.
Beschreibung Wonhung im Obergeschoss:
Die Wohnung im Obergeschoss wurde bis ca. 1981 ausgebaut, wodurch die Wohnfläche mit ca. 105 qm angegeben werden kann. Sie verfügt über Küche mit großem Dachfenster, zwei innenliegende Badezimmer, davon eines mit Dusche und eines mit Vollbad, ein großzügiges Wohnzimmer mit Wintergarten, von dem aus eine Wendeltreppe in den Garten führt. Von den zwei weiteren großeren Zimmern ist eines mit großflächiger, bodentiefer Fensterfront und Balkon zu Seitenstraße gelegen. Das weitere Zimmer liegt zur Frontseite des Hauses. Zwei Abstellräume, von denen einer in der Vergangenheit als kleines Zimmer genutzt wurde, sowie eine kleine Abstellkammer runden die Aufteilung ab. Die Obergeschosswohnung wurde bis auf die vergangenen 4 Jahre ständig bewohnt und in Teilen modernisiert, bietet aber noch einiges an Renovierungsbedarf.
Der separate Heizungsraum ist neben den Garagen gelegen und hat vom Garten aus einen eigenen Eingang.
Ausstattungsmerkmale
| Anzahl der Etagen im Haus | 2 |
| Küche | Einbauküche |
| Bad | Dusche, Wanne |
| Boden | Fliesen, Laminat |
| Balkone | 1 |
| Garten | |
| Terrassen | 1 |
| Garage/Stellplätze | 2 |
| Carport | 1 |
Balkon, Terrasse, Garten, Vollbad, Duschbad, Einbauküche, Gäste-WC, Kamin, Laminat, Fliesen
Bemerkungen:
- Fußbodenheizung im gesamten Haus
- Glasfaser
- Wärmepumpe neu 2023
- Photovoltaikanlage inkl. 10 kW Speicher neu 2023
- Küche im Erdgeschoss neu 2018, ausgestattet mit hochwertigen
Natursteinarbeitsplatten und großem Induktionskochfeld
- Wohnzimmer im Erdgeschoss komplett neu verfliest und renoviert mit Akustikdecke,
umlaufender Designbeleuchtung etc. in 2018
- Terrasse der Erdgeschosswohnung neu verfliest 2018,
große Glasüberdachung neu 2021
- Badezimmer im Erdgeschoss komplett erneuert in 2019, in diesem Zuge ebenfalls
komplette Neuverfliesung des hinteren Flurs
- Hauswirtschaftsraum im Erdgeschoss komplett neu verfliest und renoviert in 2020
- Brunnen mit Pumpe zur Bewäserung des Gartens
- in Teilen des Gartens im Rasen verlegtes Bewässerungssystem mit Sprengern
- Gartenhaus und zwei Gewächshäuser in Glas/Holzkonstruktion
- Terrasse der Erdgeschosswohnung in Süd/Westausrichtung
- Grundstück komplett umzäunt
- elektrisches Hoftor, 2 Garagen, Doppelcarport
- Boden des Dachgeschosses (erreichbar durch eine Dachluke vom Flur der oberen
Wohnung) mit Zellulose-Dämmstoff gedämmt 2020
Die direkt neben dem Grundstück liegende Wiese (ca. 2100 qm) ist nicht im Kaufpreis enthalten, kann jedoch optional mit erworben oder genutzt werden. Sie ist komplett umzäunt und bietet sowohl vom Grundstück als auch von der Seitenstraße her Zugang. Hier bietet sich beispielsweise Tierhaltung an.
Bemerkungen:
- Fußbodenheizung im gesamten Haus
- Glasfaser
- Wärmepumpe neu 2023
- Photovoltaikanlage inkl. 10 kW Speicher neu 2023
- Küche im Erdgeschoss neu 2018, ausgestattet mit hochwertigen
Natursteinarbeitsplatten und großem Induktionskochfeld
- Wohnzimmer im Erdgeschoss komplett neu verfliest und renoviert mit Akustikdecke,
umlaufender Designbeleuchtung etc. in 2018
- Terrasse der Erdgeschosswohnung neu verfliest 2018,
große Glasüberdachung neu 2021
- Badezimmer im Erdgeschoss komplett erneuert in 2019, in diesem Zuge ebenfalls
komplette Neuverfliesung des hinteren Flurs
- Hauswirtschaftsraum im Erdgeschoss komplett neu verfliest und renoviert in 2020
- Brunnen mit Pumpe zur Bewäserung des Gartens
- in Teilen des Gartens im Rasen verlegtes Bewässerungssystem mit Sprengern
- Gartenhaus und zwei Gewächshäuser in Glas/Holzkonstruktion
- Terrasse der Erdgeschosswohnung in Süd/Westausrichtung
- Grundstück komplett umzäunt
- elektrisches Hoftor, 2 Garagen, Doppelcarport
- Boden des Dachgeschosses (erreichbar durch eine Dachluke vom Flur der oberen
Wohnung) mit Zellulose-Dämmstoff gedämmt 2020
Die direkt neben dem Grundstück liegende Wiese (ca. 2100 qm) ist nicht im Kaufpreis enthalten, kann jedoch optional mit erworben oder genutzt werden. Sie ist komplett umzäunt und bietet sowohl vom Grundstück als auch von der Seitenstraße her Zugang. Hier bietet sich beispielsweise Tierhaltung an.
Sonstige Informationen
Heizungsart: Fußbodenheizung
Energieträger: Strom
Energieausweis nicht vorhanden
Das Objekt kann voraussichtlich ab ca. September 2025 übernommen werden.
Die Lage an der Bahnhofstraße erlaubt auch eine Gewerbeanmeldung (Mischgebiet).
Der Verkauf dieser Immobilie erfolgt privat.
Es werden nicht auf allen Immobilienportalen alle von uns inserierten Fotos veröffentlicht.
Die gesamten Fotos sehen Sie auf "ohne-makler.net"
ohne-makler (OM) ist weder Anbieter noch Vermittler der Immobilie. OM betreibt eine Plattform für Immobilieneigentümer, die unter anderem die gleichzeitige Veröffentlichung einzelner Inserate auf mehreren Immobilienportalen ermöglicht. Die Inhalte dieser Inserate werden ausschließlich von Dritten verantwortet. Für die Richtigkeit, Vollständigkeit oder Rechtmäßigkeit der Angaben übernimmt OM keine Haftung. Hinweise auf mögliche Rechtsverstöße können jederzeit gemeldet werden und werden nach Prüfung umgehend bearbeitet.
Energieträger: Strom
Energieausweis nicht vorhanden
Das Objekt kann voraussichtlich ab ca. September 2025 übernommen werden.
Die Lage an der Bahnhofstraße erlaubt auch eine Gewerbeanmeldung (Mischgebiet).
Der Verkauf dieser Immobilie erfolgt privat.
Es werden nicht auf allen Immobilienportalen alle von uns inserierten Fotos veröffentlicht.
Die gesamten Fotos sehen Sie auf "ohne-makler.net"
ohne-makler (OM) ist weder Anbieter noch Vermittler der Immobilie. OM betreibt eine Plattform für Immobilieneigentümer, die unter anderem die gleichzeitige Veröffentlichung einzelner Inserate auf mehreren Immobilienportalen ermöglicht. Die Inhalte dieser Inserate werden ausschließlich von Dritten verantwortet. Für die Richtigkeit, Vollständigkeit oder Rechtmäßigkeit der Angaben übernimmt OM keine Haftung. Hinweise auf mögliche Rechtsverstöße können jederzeit gemeldet werden und werden nach Prüfung umgehend bearbeitet.
Karte wird geladen...
Objektstandort
28790 Schwanewede
- Niedersachsen
Lage & Infrastruktur
Objektstandort
28790 Schwanewede
- Niedersachsen
Das Objekt befindet sich in Schwanewede im schönen Ortsteil Beckedorf, direkt vor den Toren Bremens und dennoch mit ländlichem Flair. Die Wohnumgebung kann als gehoben bezeichnet werden und ist geprägt von Ein- und Zweifamilienhäusern auf gewachsenen Grundstücken.
Direkt im Ort gibt es Kindergarten, Grundschule, Reitverein und ein Tenniscenter. Ferner eine alt eingesessene Gastronomie, in der Familienfeiern abgehalten werden können und das über die Ortsgrenze hinaus bekannte Schmiedemuseum.
Das Beckedorfer Feld, auf dem ein Teil der Dorfgemeinschaft das jährlich stattfindende Osterfeuer organisiert, lädt zu entspannten Speziergängen ein.
Durch die räumliche Nähe zu Bremen und zum Ortskern Schwanewedes gleichermaßen, sind nahezu alle Einrichtungen des täglichen Bedarfs schnell zu erreichen.
In ca. 2 km Entfernung befindet sich der Golfclub Bremer Schweiz, die nächsten Einkaufsmöglichkeiten (Supermärkte) liegen ebenfalls ca. 2 km entfernt. Ärztehaus, Banken und Apotheken, Fitnesscenter, Geschäfte für den Heimtierbedarf oder Restaurants liegen wie das Klinikum Bremen Nord ebenfalls nur 2-3 km entfernt.
Kurzum: Man genießt hier die Annehmlichkeiten der Stadt in einer dennoch ländlichen Umgebung.
Infrastruktur (im Umkreis von 5 km):
Apotheke, Lebensmittel-Discount, Allgemeinmediziner, Kindergarten, Grundschule, Öffentliche Verkehrsmittel
Direkt im Ort gibt es Kindergarten, Grundschule, Reitverein und ein Tenniscenter. Ferner eine alt eingesessene Gastronomie, in der Familienfeiern abgehalten werden können und das über die Ortsgrenze hinaus bekannte Schmiedemuseum.
Das Beckedorfer Feld, auf dem ein Teil der Dorfgemeinschaft das jährlich stattfindende Osterfeuer organisiert, lädt zu entspannten Speziergängen ein.
Durch die räumliche Nähe zu Bremen und zum Ortskern Schwanewedes gleichermaßen, sind nahezu alle Einrichtungen des täglichen Bedarfs schnell zu erreichen.
In ca. 2 km Entfernung befindet sich der Golfclub Bremer Schweiz, die nächsten Einkaufsmöglichkeiten (Supermärkte) liegen ebenfalls ca. 2 km entfernt. Ärztehaus, Banken und Apotheken, Fitnesscenter, Geschäfte für den Heimtierbedarf oder Restaurants liegen wie das Klinikum Bremen Nord ebenfalls nur 2-3 km entfernt.
Kurzum: Man genießt hier die Annehmlichkeiten der Stadt in einer dennoch ländlichen Umgebung.
Infrastruktur (im Umkreis von 5 km):
Apotheke, Lebensmittel-Discount, Allgemeinmediziner, Kindergarten, Grundschule, Öffentliche Verkehrsmittel