Erstbezug! 3‑Zimmer‑Wohnung mit Balkon & KfW40 QNG in Wiedenbrück – Wohnen auf neuem Niveau
1.195 €
Kaltmiete (netto)
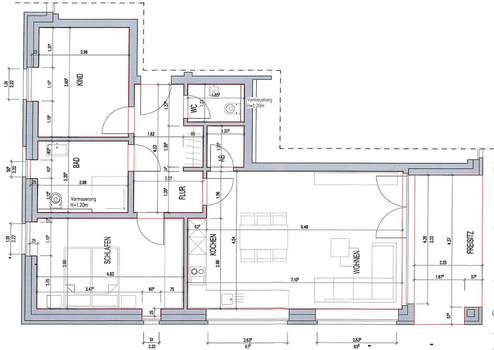
82,21 m²
Wohnfläche
3
Zimmer
immobilien.de Nr.: 9449805
Objektnummer: 424207
Mietpreis & Nebenkosten
| Kaltmiete (netto) | 1.195 € |
| Nebenkosten | 145 € |
| Heizkosten | 100 € |
| Kaution | 3.585 € |
| Stellplatz Freiplatz Miete} | 30 € |
Wohnfläche, Grundstück & Bausubstanz
| Wohnfläche | 82,21 m² |
| Zimmer | 3 |
| Baujahr | 2026 |
| Verfügbar ab | 01.03.2026 |
| Zustand | Erstbezug |
Energie
| Energieausweistyp | Bedarfsausweis |
| Energieeffizienzklasse | A+ |
| Endenergiebedarf | 12 |
| Heizungsart | Fußbodenheizung |
| Energieträger/Befeuerung | Erdwärme |
Beschreibung der Immobilie
Exklusives Wohnen im beliebten Ortsteil Wiedenbrück:
Diese hochwertige Neubauwohnung überzeugt durch ihre moderne Ausstattung, energieeffiziente Bauweise und eine ruhige Wohnlage. Die lichtdurchflutete 3‑Zimmer‑Wohnung bietet Ihnen ein komfortables Zuhause mit Süd-Balkon oder Terrasse – ideal für Paare oder kleine Familien, die Wert auf Wohnqualität und Nachhaltigkeit legen.
Die Wohnung befindet sich in einem energieeffizienten Neubau nach KfW40 QNG-Standard. Die Beheizung erfolgt nachhaltig über eine Luft‑Wasser‑Wärmepumpe in Kombination mit komfortabler Fußbodenheizung.
Ein Aufzug sorgt für bequemen Zugang zu allen Etagen.
Diese hochwertige Neubauwohnung überzeugt durch ihre moderne Ausstattung, energieeffiziente Bauweise und eine ruhige Wohnlage. Die lichtdurchflutete 3‑Zimmer‑Wohnung bietet Ihnen ein komfortables Zuhause mit Süd-Balkon oder Terrasse – ideal für Paare oder kleine Familien, die Wert auf Wohnqualität und Nachhaltigkeit legen.
Die Wohnung befindet sich in einem energieeffizienten Neubau nach KfW40 QNG-Standard. Die Beheizung erfolgt nachhaltig über eine Luft‑Wasser‑Wärmepumpe in Kombination mit komfortabler Fußbodenheizung.
Ein Aufzug sorgt für bequemen Zugang zu allen Etagen.
Ausstattungsmerkmale
| Anzahl der Etagen im Haus | 3 |
| Küche | Einbauküche |
| Bad | 1 |
| Bad | Dusche |
| Boden | Fliesen, Kunststoff |
| Balkone | 1 |
| Terrassen | 1 |
| Fahrstuhl | |
| Barrierefrei | |
| Keller |
Balkon, Terrasse, Keller, Fahrstuhl, Duschbad, Einbauküche, Barrierefrei, Fliesen
Bemerkungen:
✔ Aufzug im Haus
✔ Moderne Einbauküche in hellen Tönen (inkl.)
✔ Sonniger Balkon oder Terrasse
✔ Fußbodenheizung in der gesamten Wohnung
✔ Hochwertige Bodenbeläge
✔ Barrierearmes Bad mit bodengleicher Dusche
✔ Zusätzliches Gäste‑WC
✔ Elektrische Rollläden
✔ Video‑Sprechanlage
✔ Eigener Kellerraum mit Waschmaschinenanschluss
✔ Fahrradhaus
✔ Aufzug
✔ Außenstellplatz
Bezugsfertig ab März 2026
Bemerkungen:
✔ Aufzug im Haus
✔ Moderne Einbauküche in hellen Tönen (inkl.)
✔ Sonniger Balkon oder Terrasse
✔ Fußbodenheizung in der gesamten Wohnung
✔ Hochwertige Bodenbeläge
✔ Barrierearmes Bad mit bodengleicher Dusche
✔ Zusätzliches Gäste‑WC
✔ Elektrische Rollläden
✔ Video‑Sprechanlage
✔ Eigener Kellerraum mit Waschmaschinenanschluss
✔ Fahrradhaus
✔ Aufzug
✔ Außenstellplatz
Bezugsfertig ab März 2026
Sonstige Informationen
Heizungsart: Fußbodenheizung
Energieträger: Erdwärme
✅ Ideal für Paare oder kleine Familien, die Wert auf Komfort und Nachhaltigkeit legen.
Haustiere sind nicht erwünscht.
Bitte senden Sie uns Ihre Anfrage mit folgenden Angaben:
✔ Vor- und Nachname
✔ Telefonnummer
✔ aktuelle Berufs-/Einkommenssitutation
✔ mit wie vielen Personen möchten Sie einziehen
Makleranfragen nicht erwünscht. Nach § 7 UWG sind unaufgeforderte Kontaktaufnahmen durch Makler ohne ausdrückliche Einwilligung des Empfängers verboten!
ohne-makler (OM) ist weder Anbieter noch Vermittler der Immobilie. OM betreibt eine Plattform für Immobilieneigentümer, die unter anderem die gleichzeitige Veröffentlichung einzelner Inserate auf mehreren Immobilienportalen ermöglicht. Die Inhalte dieser Inserate werden ausschließlich von Dritten verantwortet. Für die Richtigkeit, Vollständigkeit oder Rechtmäßigkeit der Angaben übernimmt OM keine Haftung. Hinweise auf mögliche Rechtsverstöße können jederzeit gemeldet werden und werden nach Prüfung umgehend bearbeitet.
Energieträger: Erdwärme
✅ Ideal für Paare oder kleine Familien, die Wert auf Komfort und Nachhaltigkeit legen.
Haustiere sind nicht erwünscht.
Bitte senden Sie uns Ihre Anfrage mit folgenden Angaben:
✔ Vor- und Nachname
✔ Telefonnummer
✔ aktuelle Berufs-/Einkommenssitutation
✔ mit wie vielen Personen möchten Sie einziehen
Makleranfragen nicht erwünscht. Nach § 7 UWG sind unaufgeforderte Kontaktaufnahmen durch Makler ohne ausdrückliche Einwilligung des Empfängers verboten!
ohne-makler (OM) ist weder Anbieter noch Vermittler der Immobilie. OM betreibt eine Plattform für Immobilieneigentümer, die unter anderem die gleichzeitige Veröffentlichung einzelner Inserate auf mehreren Immobilienportalen ermöglicht. Die Inhalte dieser Inserate werden ausschließlich von Dritten verantwortet. Für die Richtigkeit, Vollständigkeit oder Rechtmäßigkeit der Angaben übernimmt OM keine Haftung. Hinweise auf mögliche Rechtsverstöße können jederzeit gemeldet werden und werden nach Prüfung umgehend bearbeitet.
Karte wird geladen...
Objektstandort
Am Triftbaum 12
33378 Rheda-Wiedenbrück
- Nordrhein-Westfalen
Lage & Infrastruktur
Objektstandort
Am Triftbaum 12
33378 Rheda-Wiedenbrück
- Nordrhein-Westfalen
Die Wohnung liegt in einer ruhigen Anliegerstraße Am Triftbaum im begehrten Wiedenbrück.
Einkaufsmöglichkeiten, Kindergarten und Bushaltestelle sind fußläufig erreichbar. Der Bahnhof ist ca. 3 km entfernt, die Anbindung an die A2 ist ideal.
Naherholung in direkter Nähe:
Der Flora-Westfalica-Park sowie die Ems-Promenade bieten Natur, Erholung und vielfältige Aktivitäten.
Infrastruktur (im Umkreis von 5 km):
Apotheke, Lebensmittel-Discount, Allgemeinmediziner, Kindergarten, Grundschule, Hauptschule, Realschule, Gymnasium, Gesamtschule, Öffentliche Verkehrsmittel
Einkaufsmöglichkeiten, Kindergarten und Bushaltestelle sind fußläufig erreichbar. Der Bahnhof ist ca. 3 km entfernt, die Anbindung an die A2 ist ideal.
Naherholung in direkter Nähe:
Der Flora-Westfalica-Park sowie die Ems-Promenade bieten Natur, Erholung und vielfältige Aktivitäten.
Infrastruktur (im Umkreis von 5 km):
Apotheke, Lebensmittel-Discount, Allgemeinmediziner, Kindergarten, Grundschule, Hauptschule, Realschule, Gymnasium, Gesamtschule, Öffentliche Verkehrsmittel