Wohne mit Concierge und Aufzug in gemütlicher Wohnung
350 €
Kaltmiete (netto)
525 €
Warmmiete
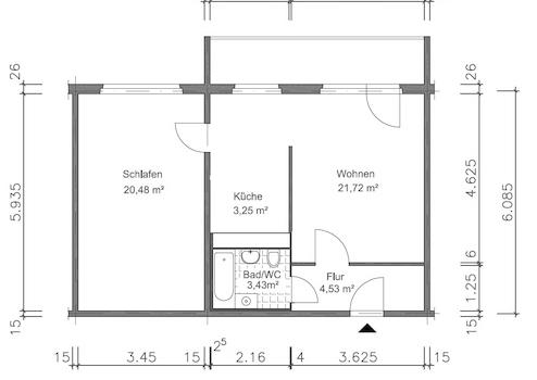
56,46 m²
Wohnfläche
56,46 m²
Nutzfläche
2
Zimmer
immobilien.de Nr.: 9448191
Objektnummer: 3027/21214/1034
Mietpreis & Nebenkosten
| Kaltmiete (netto) | 350 € |
| Warmmiete | 525 € |
| Nebenkosten | 75 € |
| Heizkosten | 100 € |
| Kaution | 1050,00€ |
Wohnfläche, Grundstück & Bausubstanz
| Wohnfläche | 56,46 m² |
| Nutzfläche | 56,46 m² |
| Zimmer | 2 |
| Baujahr | 1976 |
| Letzte Modernisierung | 2009 |
| Verfügbar ab | 22.01.2026 |
| Zustand | Gepflegt |
Energie
| Energieausweistyp | Verbrauch |
| Energieeffizienzklasse | D |
| Energieverbrauchkennwert | 102.20 kWh/(m²*a) |
| Heizungsart | Zentralheizung |
| Energieträger/Befeuerung | Fernwärme |
Beschreibung der Immobilie
Die Wohnung befindet sich in einem 6-geschossigen Mehrfamilienhauses mit Aufzug und Concierge. Der Aufzug hält auf jeder Etage und der Eingangsbereich ist ebenerdig, sodass ein stufenloser Zugang möglich ist. Stellplätze befinden sich ausreichend in unmittelbarer Umgebung.
Ausstattungsmerkmale
| Anzahl der Etagen im Haus | 6 |
| Inserat befindet sich im Stockwerk | 2 |
| Bad | 1 |
| Bad | Wanne |
| Balkone | 1 |
| Keller |
-gefliestes Bad mit Wanne
-Küche mit Fenster
-Balkon am Wohnzimmer
-großes Schlafzimmer
-Küche mit Fenster
-Balkon am Wohnzimmer
-großes Schlafzimmer
Sonstige Informationen
Finden Sie Ihr neues Zuhause unter www.tag-wohnen.de und vereinbaren Sie Ihren persönlichen Besichtigungstermin. Wir freuen uns auf Ihre Anfrage.
Profitieren Sie als TAG Wohnen-Mieter von unseren Partnerangeboten und sichern Sie sich viele Sonderrabatte und günstige Konditionen u.a. in den Bereichen Unterhaltung, Umzug, Ernährung und Mobilität.
Strom und Gas von lekker Energie – Sichern Sie sich Ihren exklusiven TAG Wohnen-Bonus unter www.lekker.de/kunden/tag-wohnen
Sichern Sie sich zudem einen entspannten Umzug mit unserem Partner Transporo und einem 10% Rabatt über folgenden Link: www.transporo.de/tag
Alle Angaben in diesem Exposé wurden sorgfältig getätigt. Fehlerhafte Angaben können nicht ausgeschlossen werden, daher sind die Angaben ohne Gewähr. Maßgeblich sind die im Mietvertrag geschlossenen Vereinbarungen.
Profitieren Sie als TAG Wohnen-Mieter von unseren Partnerangeboten und sichern Sie sich viele Sonderrabatte und günstige Konditionen u.a. in den Bereichen Unterhaltung, Umzug, Ernährung und Mobilität.
Strom und Gas von lekker Energie – Sichern Sie sich Ihren exklusiven TAG Wohnen-Bonus unter www.lekker.de/kunden/tag-wohnen
Sichern Sie sich zudem einen entspannten Umzug mit unserem Partner Transporo und einem 10% Rabatt über folgenden Link: www.transporo.de/tag
Alle Angaben in diesem Exposé wurden sorgfältig getätigt. Fehlerhafte Angaben können nicht ausgeschlossen werden, daher sind die Angaben ohne Gewähr. Maßgeblich sind die im Mietvertrag geschlossenen Vereinbarungen.
Karte wird geladen...
Objektstandort
Jenaer Straße 2
07549 Gera
Lage & Infrastruktur
Objektstandort
Jenaer Straße 2
07549 Gera
Lusan - ideal für Jung und Alt
- 5 Minuten zu Fuß zum Bäcker
- 9 Minuten zu Fuß bis zum Lusaner Einkaufspark
- gute Verkehrsanbindung an Straßenbahn ( 7 Minuten zu Fuß ), Busse und Bundesstraße B92
- Einkaufsmöglichkeiten für Lebensmittel und Dinge des täglichen Bedarfs
- Kindereinrichtungen & Spielplätze
- Schulen nahezu aller Schularten
- Sport- und Freizeitangebote
- verschiedene Fachärzte & Apotheken
- ambulante Pflegedienste vorhanden
- reichlich Spazierwege im grünen Brütetal
- 5 Minuten zu Fuß zum Bäcker
- 9 Minuten zu Fuß bis zum Lusaner Einkaufspark
- gute Verkehrsanbindung an Straßenbahn ( 7 Minuten zu Fuß ), Busse und Bundesstraße B92
- Einkaufsmöglichkeiten für Lebensmittel und Dinge des täglichen Bedarfs
- Kindereinrichtungen & Spielplätze
- Schulen nahezu aller Schularten
- Sport- und Freizeitangebote
- verschiedene Fachärzte & Apotheken
- ambulante Pflegedienste vorhanden
- reichlich Spazierwege im grünen Brütetal
Kontaktanfrage senden
Über den Anbieter
TAG Wohnen & Service GmbH
Steckelhörn 5
20457 Hamburg
Kontakt
| Telefon | +49 800 2903000 |
| Website | www.tag-wohnen.de |
Ansprechpartner/in
Frau Nicole Ebert