Großzügiges Einfamilienhaus auf parkähnlichem Grundstück !
440.000 €
Kaufpreis
154,45 m²
Wohnfläche
5
Zimmer
immobilien.de Nr.: 9448094
Objektnummer: 251090005PW05-260201
Kaufpreis
| Kaufpreis | 440.000 € |
| Stellplatz Garage Kaufpreis | 9.000 € |
Wohnfläche, Grundstück & Bausubstanz
| Wohnfläche | 154,45 m² |
| Grundstücksfläche | 845 m² |
| Zimmer | 5 |
| Baujahr | 2026 |
| Verfügbar ab | nach Vereinbarung |
| Zustand | Erstbezug |
Energie
| Energieausweistyp | Verbrauch |
| Baujahr (laut Energieausweis) | 2026 |
| Energieeffizienzklasse | A+ |
| Energietyp | Niedrigenergie, Neubaustandard, KfW-55 |
| Energieverbrauchkennwert | 43.00 kWh/(m²*a) |
| Heizungsart | Zentralheizung |
| Wesentlicher Energieträger | Strom |
| Energieträger/Befeuerung | Luft-Wärme-Pumpe |
Beschreibung der Immobilie
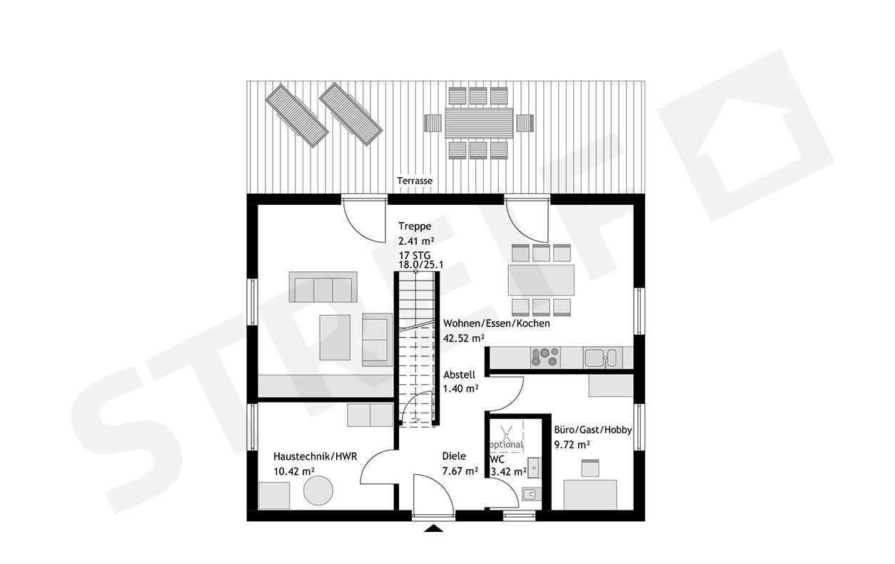
Das behagliche Haus mit Satteldach punktet mit einem gut durchdachten Grundriss. Der offen gestaltete Wohn-/Ess- und Kochbereich ist lichtdurchflutet. Ein praktischer Hauswirtschaftsraum ist direkt neben der Küche platziert. Komplettiert wird das Raumangebot im Erdgeschoss mit einem Gäste-WC, das optional auch als Duschbad ausgeführt werden kann, einer Diele und einem Haustechnikraum.
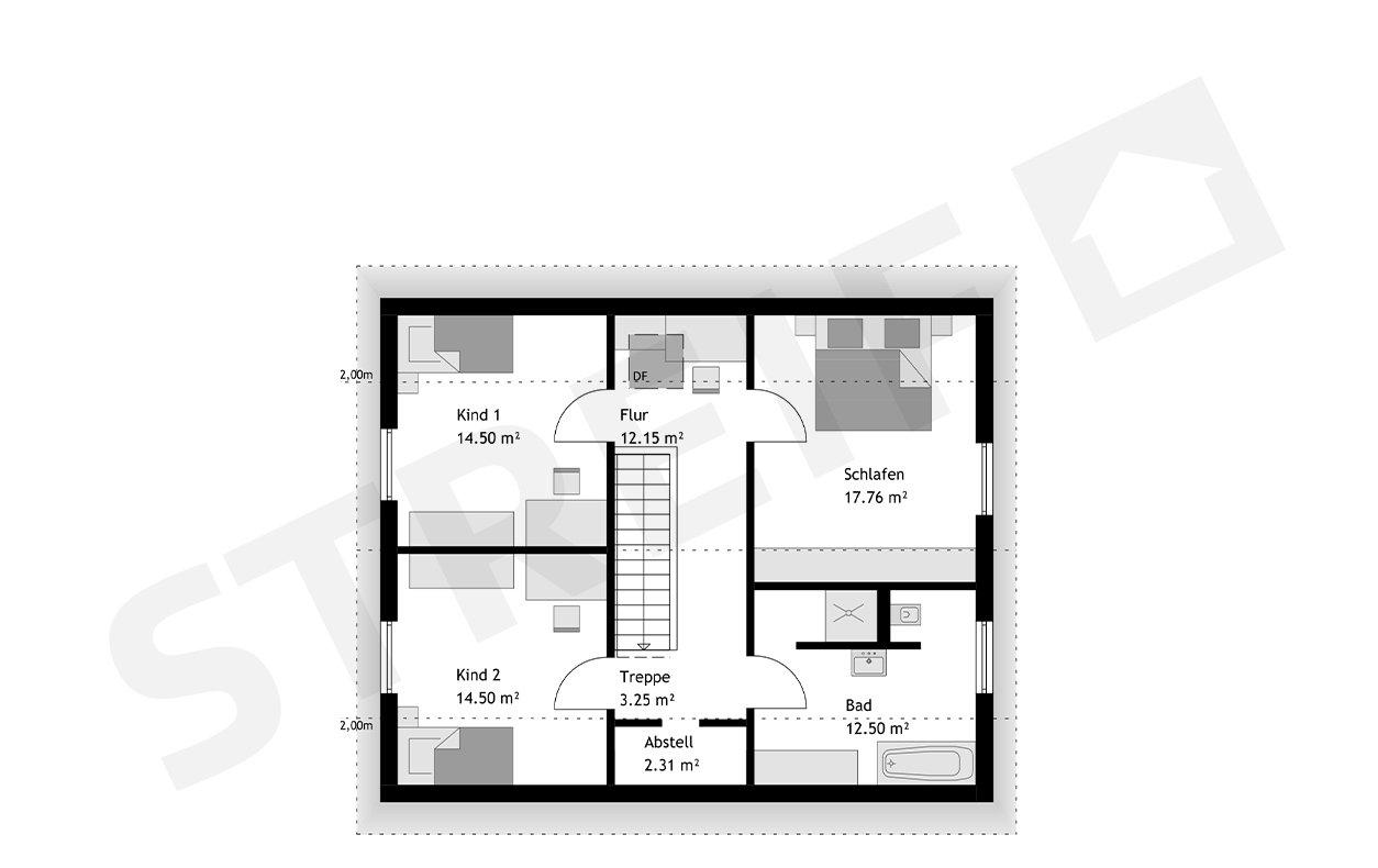
Im Dachgeschoss des Hauses sind zwei schöne Kinderzimmer, ein Elternschlafzimmer, ein Flur und ein Familienbad untergebracht. Die Lage der Treppe und des Haustechnikraumes sind fixiert.
Objektart: Einfamilienhaus, 1,5-geschossig
Dachform: Satteldach
Kniestock: 1,25m
Im Dachgeschoss des Hauses sind zwei schöne Kinderzimmer, ein Elternschlafzimmer, ein Flur und ein Familienbad untergebracht. Die Lage der Treppe und des Haustechnikraumes sind fixiert.
Objektart: Einfamilienhaus, 1,5-geschossig
Dachform: Satteldach
Kniestock: 1,25m
Ausstattungsmerkmale
| Anzahl der Etagen im Haus | 2 |
| Küche | Offene Küche |
| Bad | 1 |
| Bad | Dusche, Wanne, Fenster |
| Boden | Fliesen, Stein, Teppich, Parkett, Fertigparkett, Laminat, Dielen, Kunststoff, Linoleum, Marmor, Granit |
| Terrassen | 1 |
| Barrierefrei | |
| Garage/Stellplätze | 1 |
Unser Platzwunder begeistert durch ein ganz besonderes Extra, eine DESIGNKÜCHE von NOBILIA ist passend zum Grundriss bereits im besonders günstigen Aktionspreis enthalten.
Und selbstverständlich bekommen Sie von uns Ihr Haus fastfertig+
Das bedeutet, die komplette Technik und die Bäder inklusive der Montage der Sanitärobjekte sind von uns fertiggestellt.
Sie kümmern sich lediglich noch um die Malerarbeiten, die Bodenbeläge (außer Bäder) und die Innentüren.
Und wenn Sie wollen, können Sie diese Arbeiten stufenweise zu fairen Preisen auch noch bei uns beauftragen.
Fordern Sie uns, ich stehe unter 0160/7038141 oder thomas.heitz@streif zu Ihrer Verfügung.
Ich freue mich auf Sie !
Thomas Heitz
Und selbstverständlich bekommen Sie von uns Ihr Haus fastfertig+
Das bedeutet, die komplette Technik und die Bäder inklusive der Montage der Sanitärobjekte sind von uns fertiggestellt.
Sie kümmern sich lediglich noch um die Malerarbeiten, die Bodenbeläge (außer Bäder) und die Innentüren.
Und wenn Sie wollen, können Sie diese Arbeiten stufenweise zu fairen Preisen auch noch bei uns beauftragen.
Fordern Sie uns, ich stehe unter 0160/7038141 oder thomas.heitz@streif zu Ihrer Verfügung.
Ich freue mich auf Sie !
Thomas Heitz
Sonstige Informationen
Modernstes Heizsystem !
Heizen, Lüften und Warmwasser mit einem System
- STREIF-Luft-Luft-Wärmepumpen-Technologe (Basissystem), mit bis zu 85 Prozent Wärmerückgewinnung
- Integrierte Be- und Entlüftungsanlage
- Separate Trinkwasserwärmepumpe mit 300 L Warmwasserspeicher
- G4-Frischluftfilter zur Reduzierung von Staub und Pollen
Vorteile:
- Keine störenden Heizkörper
- Keine fossilen Brennstoffe wie Öl und Gas
- Kein Gasanschluss, kein Öl- oder Pelletslager
- Keine Erdbohrung
Thomas Heitz 0160 7038141 oder thomas.heitz@streif.de
Heizen, Lüften und Warmwasser mit einem System
- STREIF-Luft-Luft-Wärmepumpen-Technologe (Basissystem), mit bis zu 85 Prozent Wärmerückgewinnung
- Integrierte Be- und Entlüftungsanlage
- Separate Trinkwasserwärmepumpe mit 300 L Warmwasserspeicher
- G4-Frischluftfilter zur Reduzierung von Staub und Pollen
Vorteile:
- Keine störenden Heizkörper
- Keine fossilen Brennstoffe wie Öl und Gas
- Kein Gasanschluss, kein Öl- oder Pelletslager
- Keine Erdbohrung
Thomas Heitz 0160 7038141 oder thomas.heitz@streif.de
Karte wird geladen...
Objektstandort
66709 Weiskirchen
Lage & Infrastruktur
Objektstandort
66709 Weiskirchen
Das Grundstück liegt parkähnlich in zweiter Reihe sehr ruhig.
Das Haus ist auf einem realen Baugrundstück geplant oder auf einem Grundstück in einer Planungsphase. Das Grundstück erwerben Sie direkt vom Eigentümer. Der Preis des Grundstücks ist im Angebotspreis bereits eingerechnet.
Bitte haben Sie Verständnis dafür, dass wir ohne ein persönliches Gespräch keine Grundstücksdaten weiterleiten können.
Gern sind wir bei der Wahl Ihres Traumgrundstückes behilflich!
Natürlich können wir ihren Haustraum auch auf einem anderen Grundstück realisieren, lassen Sie sich dazu in einem unverbindlichen Gespräch zu Ihrem Bauvorhaben beraten.
Thomas Heitz 0160/7038141 oder thomas.heitz@streif.de
Das Haus ist auf einem realen Baugrundstück geplant oder auf einem Grundstück in einer Planungsphase. Das Grundstück erwerben Sie direkt vom Eigentümer. Der Preis des Grundstücks ist im Angebotspreis bereits eingerechnet.
Bitte haben Sie Verständnis dafür, dass wir ohne ein persönliches Gespräch keine Grundstücksdaten weiterleiten können.
Gern sind wir bei der Wahl Ihres Traumgrundstückes behilflich!
Natürlich können wir ihren Haustraum auch auf einem anderen Grundstück realisieren, lassen Sie sich dazu in einem unverbindlichen Gespräch zu Ihrem Bauvorhaben beraten.
Thomas Heitz 0160/7038141 oder thomas.heitz@streif.de
Kontaktanfrage senden
Über den Anbieter
STREIF Haus GmbH
Josef-Streif-Straße 1
54595 Weinsheim
Kontakt
| Telefon | +49 681 70947955 |
| Mobil | +49 160 7038141 |
| Website | www.streif.de |
Ansprechpartner/in
Herr Thomas Heitz