NEUBAU 3-Zimmer-Wohnung Souterrain mit großer Terrasse
452.500 €
Kaufpreis
86 m²
Wohnfläche
3
Zimmer
immobilien.de Nr.: 9448040
Objektnummer: 425276
Dateien
Kaufpreis
| Kaufpreis | 452.500 € |
| Maklerprovision | keine Provision, courtagefrei |
| Stellplatz Freiplatz Kaufpreis | 42.500 € |
| Stellplatz Garage Kaufpreis | 42.500 € |
Wohnfläche, Grundstück & Bausubstanz
| Wohnfläche | 86 m² |
| Zimmer | 3 |
| Baujahr | 2026 |
| Verfügbar ab | nach Absprache |
Energie
| Energieausweistyp | Bedarfsausweis |
| Energieeffizienzklasse | A+ |
| Endenergiebedarf | 19 |
| Energieträger/Befeuerung | Luft-Wärme-Pumpe |
Beschreibung der Immobilie
In einem Vier-Parteien Haus entsteht diese attraktive Souterrainwohnung. Die Fertigstellung ist für Juli 2026 geplant. Das gesamte Haus überzeugt durch seine energieeffiziente Bauweise, großzügig gestaltete Grundrisse sowie eine komfortable Ausstattung.
Die Beheizung erfolgt über eine Luft-Wasser-Wärmepumpe, die zu niedrigen Betriebskosten und einem umweltbewussten Wohnen beiträgt. Zudem gewährleistet die dezentrale Wohnraumlüftung mit Wärmerückgewinnung eine stetige Frischluftzufuhr bei gleichzeitiger Minimierung von Wärmeverlusten.
Bereits beim Betreten des Hauses auf der Nordseite wird die Verwendung hochwertiger Materialien spürbar. Im Treppenhaus werden großformatige Fliesen in eleganter Jurasteinoptik verlegt, die dem Eingangsbereich ein zeitloses und wertiges Erscheinungsbild verleihen. Alternativ lässt sich die Souterrainwohnung auch ganz bequem von der Südseite über die Terrasse direkt über den Wohnbereich betreten – ideal, wenn man z. B. von der Garage kommt und den kürzeren Weg nutzen möchte.
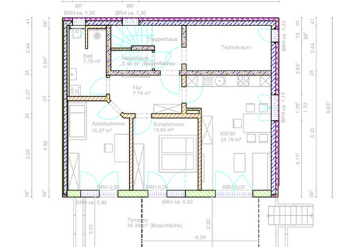
Bei dieser hellen Souterrainwohnung wurde besonders auf Details geachtet. Herzstück ist der offene Wohn-Ess-Kochbereich mit direktem Zugang zu einer ca. 35 m² großen Terrasse – ein großzügiger Außenbereich mit viel Platz, der den Wohnraum nach draußen erweitert und vielfältige Nutzungsmöglichkeiten bietet.
Ergänzt wird das Raumangebot durch ein Schlafzimmer sowie ein weiteres Zimmer, das sich ideal als Kinder- oder Arbeitszimmer nutzen lässt. Das Bad mit ebenerdiger Dusche und Regenbrause wird mit hellen, großformatigen Fliesen sowie Spots für eine angenehme, moderne Atmosphäre ausgestattet. Die Wohnräume werden mit einem Designbelag in Holzoptik Eiche ausgestattet, der sich ideal für Fußbodenheizung eignet und so zu einem angenehmen Wohnklima beiträgt.
Zur Wohnung gehören eine übergroße Garage mit 7 m x 3 m und elektrischem Garagentor sowie ein zusätzlicher Außenstellplatz. Die Garage ist bereits für den Anschluss einer Wallbox vorbereitet.
Garage und Stellplatz sind für zzgl. 42.500 € zum Kaufpreis der Wohnung zu erwerben.
Die Beheizung erfolgt über eine Luft-Wasser-Wärmepumpe, die zu niedrigen Betriebskosten und einem umweltbewussten Wohnen beiträgt. Zudem gewährleistet die dezentrale Wohnraumlüftung mit Wärmerückgewinnung eine stetige Frischluftzufuhr bei gleichzeitiger Minimierung von Wärmeverlusten.
Bereits beim Betreten des Hauses auf der Nordseite wird die Verwendung hochwertiger Materialien spürbar. Im Treppenhaus werden großformatige Fliesen in eleganter Jurasteinoptik verlegt, die dem Eingangsbereich ein zeitloses und wertiges Erscheinungsbild verleihen. Alternativ lässt sich die Souterrainwohnung auch ganz bequem von der Südseite über die Terrasse direkt über den Wohnbereich betreten – ideal, wenn man z. B. von der Garage kommt und den kürzeren Weg nutzen möchte.
Bei dieser hellen Souterrainwohnung wurde besonders auf Details geachtet. Herzstück ist der offene Wohn-Ess-Kochbereich mit direktem Zugang zu einer ca. 35 m² großen Terrasse – ein großzügiger Außenbereich mit viel Platz, der den Wohnraum nach draußen erweitert und vielfältige Nutzungsmöglichkeiten bietet.
Ergänzt wird das Raumangebot durch ein Schlafzimmer sowie ein weiteres Zimmer, das sich ideal als Kinder- oder Arbeitszimmer nutzen lässt. Das Bad mit ebenerdiger Dusche und Regenbrause wird mit hellen, großformatigen Fliesen sowie Spots für eine angenehme, moderne Atmosphäre ausgestattet. Die Wohnräume werden mit einem Designbelag in Holzoptik Eiche ausgestattet, der sich ideal für Fußbodenheizung eignet und so zu einem angenehmen Wohnklima beiträgt.
Zur Wohnung gehören eine übergroße Garage mit 7 m x 3 m und elektrischem Garagentor sowie ein zusätzlicher Außenstellplatz. Die Garage ist bereits für den Anschluss einer Wallbox vorbereitet.
Garage und Stellplatz sind für zzgl. 42.500 € zum Kaufpreis der Wohnung zu erwerben.
Ausstattungsmerkmale
| Anzahl der Etagen im Haus | 4 |
| Bad | 1 |
| Garage/Stellplätze | 1 |
Bemerkungen:
Großzügiger Grundriss, hochwertige Ausstattung.
Bad mit Fenster, ebenerdiger Dusche & Waschmaschinenanschluss.
Designbelag Holzoptik Eiche in den Wohnräumen.
Große Terrasse mit ca. 35 m² zur Südseite.
Kalkputz & diffusionsoffene Wände für gesundes Raumklima.
Alle Räume mit separat regelbarer Fußbodenheizung.
Dezentrale Wohnraumlüftung mit Wärmerückgewinnung.
3-fach verglaste, weiße Kunststofffenster.
Elektrische Rollläden.
Energieträger Luft-Wasser-Wärmepumpe.
Photovoltaikanlage für Allgemeinstrom.
Glasfaseranschluss.
Absperrbarer, überdachter Fahrradstellplatz.
Übergroße Garage (7m x 3m), elektrisches Garagentor, Vorbereitung für Wallboxanschluss + Außenstellplatz (zzgl. 42.500 €).
Sonstige Informationen
Energieträger: Luft-/Wasserwärme
Sie möchten sich die Wohnung vor Ort ansehen und sich selbst einen positiven Eindruck verschaffen oder haben noch Fragen? Dann melden Sie sich gerne – ich freue mich auf Ihre Anfrage!
Makleranfragen nicht erwünscht. Nach § 7 UWG sind unaufgeforderte Kontaktaufnahmen durch Makler ohne ausdrückliche Einwilligung des Empfängers verboten!
ohne-makler (OM) ist weder Anbieter noch Vermittler der Immobilie. OM betreibt eine Plattform für Immobilieneigentümer, die unter anderem die gleichzeitige Veröffentlichung einzelner Inserate auf mehreren Immobilienportalen ermöglicht. Die Inhalte dieser Inserate werden ausschließlich von Dritten verantwortet. Für die Richtigkeit, Vollständigkeit oder Rechtmäßigkeit der Angaben übernimmt OM keine Haftung. Hinweise auf mögliche Rechtsverstöße können jederzeit gemeldet werden und werden nach Prüfung umgehend bearbeitet.
Sie möchten sich die Wohnung vor Ort ansehen und sich selbst einen positiven Eindruck verschaffen oder haben noch Fragen? Dann melden Sie sich gerne – ich freue mich auf Ihre Anfrage!
Makleranfragen nicht erwünscht. Nach § 7 UWG sind unaufgeforderte Kontaktaufnahmen durch Makler ohne ausdrückliche Einwilligung des Empfängers verboten!
ohne-makler (OM) ist weder Anbieter noch Vermittler der Immobilie. OM betreibt eine Plattform für Immobilieneigentümer, die unter anderem die gleichzeitige Veröffentlichung einzelner Inserate auf mehreren Immobilienportalen ermöglicht. Die Inhalte dieser Inserate werden ausschließlich von Dritten verantwortet. Für die Richtigkeit, Vollständigkeit oder Rechtmäßigkeit der Angaben übernimmt OM keine Haftung. Hinweise auf mögliche Rechtsverstöße können jederzeit gemeldet werden und werden nach Prüfung umgehend bearbeitet.
Karte wird geladen...
Objektstandort
Römerstraße
85072 Eichstätt
- Bayern
Lage & Infrastruktur
Objektstandort
Römerstraße
85072 Eichstätt
- Bayern
Die Immobilie liegt in Eichstätt, einer charmanten kleinen Stadt mit hervorragender Lebensqualität, eingebettet in die Natur des Altmühltals.
Einkaufsmöglichkeiten, Schulen, Kindergarten und öffentliche Verkehrsmittel befinden sich in der Nähe des Hauses.
Zudem bietet die Stadt eine umfassende medizinische Versorgung mit verschiedenen Einrichtungen und Fachärzten.
Diverse Vereine bieten eine breite Palette an Aktivitäten und Möglichkeiten zur Teilnahme und zum Engagement in der Gemeinschaft von Eichstätt.
Ob Sport, Kultur, Soziales oder Natur – für jeden ist etwas dabei.
Infrastruktur (im Umkreis von 5 km):
Apotheke, Lebensmittel-Discount, Allgemeinmediziner, Kindergarten, Grundschule, Hauptschule, Realschule, Gymnasium, Öffentliche Verkehrsmittel
Einkaufsmöglichkeiten, Schulen, Kindergarten und öffentliche Verkehrsmittel befinden sich in der Nähe des Hauses.
Zudem bietet die Stadt eine umfassende medizinische Versorgung mit verschiedenen Einrichtungen und Fachärzten.
Diverse Vereine bieten eine breite Palette an Aktivitäten und Möglichkeiten zur Teilnahme und zum Engagement in der Gemeinschaft von Eichstätt.
Ob Sport, Kultur, Soziales oder Natur – für jeden ist etwas dabei.
Infrastruktur (im Umkreis von 5 km):
Apotheke, Lebensmittel-Discount, Allgemeinmediziner, Kindergarten, Grundschule, Hauptschule, Realschule, Gymnasium, Öffentliche Verkehrsmittel