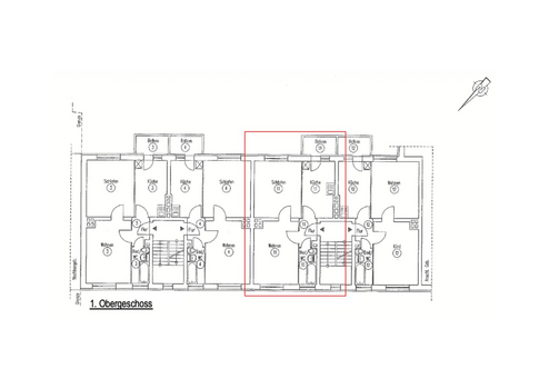
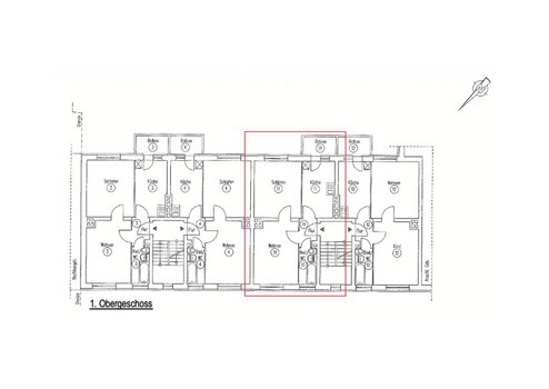
Helle 2-Zimmer Wohnung im 1. OG in Martinsviertel (Reserviert)
213.000 €
Kaufpreis
45,12 m²
Wohnfläche
2
Zimmer
immobilien.de Nr.: 9442958
Objektnummer: 410972
Kaufpreis
| Kaufpreis | 213.000 € |
| Hausgeld | 316 € |
| Maklerprovision | keine Provision, courtagefrei |
Wohnfläche, Grundstück & Bausubstanz
| Wohnfläche | 45,12 m² |
| Zimmer | 2 |
| Baujahr | 1933 |
| Verfügbar ab | nach Absprache |
| Zustand | Modernisiert |
Energie
| Energieausweistyp | Bedarfsausweis |
| Energieeffizienzklasse | F |
| Endenergiebedarf | 170 |
| Heizungsart | Zentralheizung |
| Energieträger/Befeuerung | Gas |
Beschreibung der Immobilie
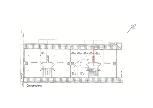
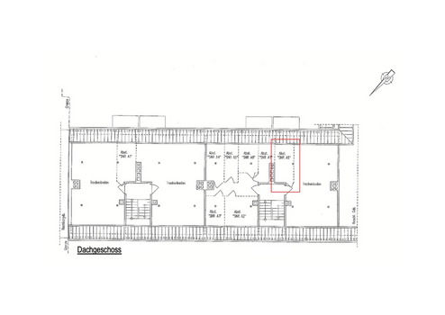
Diese helle 2-Zimmer-Wohnung mit ca. 45 m² Wohnfläche befindet sich im 1. Obergeschoss eines gepflegten Mehrfamilienhauses im beliebten Martinsviertel. Die Wohnung verfügt über ein Badezimmer und einen Balkon, der zum Entspannen einlädt. Ein Keller und ein Abstellraum im Dachgeschoss bieten zusätzlichen Stauraum.
Die Wohnanlage verfügt über einen Innenhof mit großzügiger Grünfläche.
Die Wohnung wird ab dem 1.1.2026 verfügbar sein.
Die Wohnanlage verfügt über einen Innenhof mit großzügiger Grünfläche.
Die Wohnung wird ab dem 1.1.2026 verfügbar sein.
Ausstattungsmerkmale
| Anzahl der Etagen im Haus | 1 |
| Inserat befindet sich im Stockwerk | 1 |
| Bad | 1 |
| Balkone | 1 |
| Terrassen | 0 |
| Keller |
Balkon, Keller, Sonstiges (s. Text)
Bemerkungen:
In Wohn- und Schlafzimmer und im Flur gibt es einen Holzdielenboden. Das Laminat im Wohnzimmer ist schwebend verlegt und wird auf Wunsch von Mieter entfernt.
Die Küche und das Bad verfügen über einen Fließenboden.
Der Zustand der Wohnung ist normal und bietet Potenzial für individuelle Gestaltung.
Das Hausgeld zurzeit in der Höhe von 316 €/Monat ist inklusive der Nebenkosten für Heizung, Warmwasser, Wasser, Abwasser- und Abfallentsorgung, Straßenreinigung, Hausmeister, Gebäudeversicherung, usw.
Die Küchenzeile kann vom Mieter übernommen werden.
Folgende Sanierungs- und Modernisierungsarbeiten wurden in den letzten drei Jahren durchgeführt:
- Erneuerung des Heizkessels
- Sanierung der Kalt-, Warm- und Abwasserleitungen sowie der Zirkulationsleitungen
- Erstellung eines neuen Müllplatzes
- Grundreinigung der Treppenhäuser
- Erneuerung Heizkörper und WC im Bad
Bemerkungen:
In Wohn- und Schlafzimmer und im Flur gibt es einen Holzdielenboden. Das Laminat im Wohnzimmer ist schwebend verlegt und wird auf Wunsch von Mieter entfernt.
Die Küche und das Bad verfügen über einen Fließenboden.
Der Zustand der Wohnung ist normal und bietet Potenzial für individuelle Gestaltung.
Das Hausgeld zurzeit in der Höhe von 316 €/Monat ist inklusive der Nebenkosten für Heizung, Warmwasser, Wasser, Abwasser- und Abfallentsorgung, Straßenreinigung, Hausmeister, Gebäudeversicherung, usw.
Die Küchenzeile kann vom Mieter übernommen werden.
Folgende Sanierungs- und Modernisierungsarbeiten wurden in den letzten drei Jahren durchgeführt:
- Erneuerung des Heizkessels
- Sanierung der Kalt-, Warm- und Abwasserleitungen sowie der Zirkulationsleitungen
- Erstellung eines neuen Müllplatzes
- Grundreinigung der Treppenhäuser
- Erneuerung Heizkörper und WC im Bad
Sonstige Informationen
Heizungsart: Zentralheizung
Energieträger: Gas
Makleranfragen nicht erwünscht. Nach § 7 UWG sind unaufgeforderte Kontaktaufnahmen durch Makler ohne ausdrückliche Einwilligung des Empfängers verboten!
ohne-makler (OM) ist weder Anbieter noch Vermittler der Immobilie. OM betreibt eine Plattform für Immobilieneigentümer, die unter anderem die gleichzeitige Veröffentlichung einzelner Inserate auf mehreren Immobilienportalen ermöglicht. Die Inhalte dieser Inserate werden ausschließlich von Dritten verantwortet. Für die Richtigkeit, Vollständigkeit oder Rechtmäßigkeit der Angaben übernimmt OM keine Haftung. Hinweise auf mögliche Rechtsverstöße können jederzeit gemeldet werden und werden nach Prüfung umgehend bearbeitet.
Energieträger: Gas
Makleranfragen nicht erwünscht. Nach § 7 UWG sind unaufgeforderte Kontaktaufnahmen durch Makler ohne ausdrückliche Einwilligung des Empfängers verboten!
ohne-makler (OM) ist weder Anbieter noch Vermittler der Immobilie. OM betreibt eine Plattform für Immobilieneigentümer, die unter anderem die gleichzeitige Veröffentlichung einzelner Inserate auf mehreren Immobilienportalen ermöglicht. Die Inhalte dieser Inserate werden ausschließlich von Dritten verantwortet. Für die Richtigkeit, Vollständigkeit oder Rechtmäßigkeit der Angaben übernimmt OM keine Haftung. Hinweise auf mögliche Rechtsverstöße können jederzeit gemeldet werden und werden nach Prüfung umgehend bearbeitet.
Karte wird geladen...
Objektstandort
64289 Darmstadt
- Hessen
Lage & Infrastruktur
Objektstandort
64289 Darmstadt
- Hessen
Die Wissenschaftsstadt Darmstadt ist eine Stadt mit höchster "Zukunftsfähigkeit". Durch die Präsenz wissenschaftlicher Einrichtungen wird auf hohem Niveau entwickelt und produziert. Die Wirtschaft der Stadt wird durch zahlreiche namhafte und weltweit agierende Unternehmen geprägt. Zur Attraktivität trägt die geographische und verkehrsgünstige Lage bei: Der Naturpark Bergstraße / Odenwald bietet einen hohen Freizeitwert. Die Umliegenden Städte Frankfurt, Wiesbaden, Mainz, Aschaffenburg und Heidelberg sind in ca. 30 Minuten erreichbar. Der Flughafen Frankfurt liegt ca. 20 Minuten entfernt. Darmstadt hat ca. 170.000 Einwohner.
Die Wohnung liegt ca. 400 Meter von der UNESCO Welterbe Mathildenhöhe entfernt. Die Rosenhöhe und der angrenzende Darmstädter Stadtwald sind in wenigen Minuten fußläufig erreichbar und bieten die Möglichkeit zum Spazierengehen und zur sportlichen Betätigung. Die Innenstadt befindet sich in einer Entfernung von ca. 1,4 Kilometer.
Der Martinsviertel in Darmstadt ist ein lebendiger Stadtteil mit moderater Bevölkerungsdichte und einer guten Mischung aus Wohn- und Gewerbegebieten. Die Anbindung an den öffentlichen Nahverkehr ist ausgezeichnet. Die Nachbarschaft gilt als sicher und bietet eine angenehme Atmosphäre für Studierende, junge Berufstätige und Rentner.
Infrastruktur (im Umkreis von 5 km):
Apotheke, Lebensmittel-Discount, Allgemeinmediziner, Kindergarten, Grundschule, Öffentliche Verkehrsmittel
Die Wohnung liegt ca. 400 Meter von der UNESCO Welterbe Mathildenhöhe entfernt. Die Rosenhöhe und der angrenzende Darmstädter Stadtwald sind in wenigen Minuten fußläufig erreichbar und bieten die Möglichkeit zum Spazierengehen und zur sportlichen Betätigung. Die Innenstadt befindet sich in einer Entfernung von ca. 1,4 Kilometer.
Der Martinsviertel in Darmstadt ist ein lebendiger Stadtteil mit moderater Bevölkerungsdichte und einer guten Mischung aus Wohn- und Gewerbegebieten. Die Anbindung an den öffentlichen Nahverkehr ist ausgezeichnet. Die Nachbarschaft gilt als sicher und bietet eine angenehme Atmosphäre für Studierende, junge Berufstätige und Rentner.
Infrastruktur (im Umkreis von 5 km):
Apotheke, Lebensmittel-Discount, Allgemeinmediziner, Kindergarten, Grundschule, Öffentliche Verkehrsmittel
Kontaktanfrage senden
Über den Anbieter
OM PropTech GmbH
Humboldtstraße 25a
21509 Glinde
Kontakt
| Telefon | - |
| Fax | - |
| Website | www.ohne-makler.net |
Ansprechpartner/in
Privat vom Eigentümer
Weitere Angebote des Anbieters
12
Top geschnittene Dachgeschosswohnung mit Balkon und ...
Wohnung
23578 Oldenburg
Diese sehr gut geschnittene Dachgeschosswohnung überzeugt durch ihre offene Wohnküche und ein helles Wohnzimmer mit Zugang zum Balkon. Hier genießen Sie einen direkten Blick in den Stadtpark - ideal zum Entspannen. Die ...
180.000 €
Kaufpreis
62 m²
Wohnfläche
2
Zimmer
8
Helle 2,5-Zimmer-Wohnung mit Dachterrasse zu vermieten ...
Wohnung
76676 Graben-Neudorf / Neudorf
Wir vermieten eine charmante Dachgeschosswohnung in einem Zweifamilienhaus in zentraler Lage von Graben-Neudorf (Ortsteil Neudorf). Ein Highlight der Wohnung ist die westorientierte, atmosphärische 10 m² Dachterrasse, ...
630 €
Kaltmiete (netto)
64 m²
Wohnfläche
2,5
Zimmer
29
Kernsaniertes Einfamilienhaus/Bauernhaus mit großem ...
Haus
90518 Altdorf b. Nürnberg
Provisionsfrei – Direkt vom Eigentümer! Willkommen in Ihrem neuen Zuhause! Dieses liebevoll 2023/2024 kernsanierte Einfamilienhaus/Bauernhaus verbindet modernen Wohnkomfort mit dem Charme des Landlebens – ideal für ...
399.000 €
Kaufpreis
137 m²
Wohnfläche
5
Zimmer
24
Ruhig gelegen und dennoch zentral – Charmantes ...
Haus
91126 Schwabach
Das Haus wurde 2000 renoviert, Versorgung und Entsorgung neu. Die Dachdämmung erfolgte 2009. Im EG befindet sich ein Duschbad und ein separates WC. Im OG befindet sich ein Bad mit Eckbadewanne und WC. Das DG ist zum ...
655.000 €
Kaufpreis
130 m²
Wohnfläche
7
Zimmer
7
Leerstehend & provisionsfrei: 2-Zimmer-Wohnung im ...
Wohnung
04155 Leipzig
Diese charmante 2-Zimmer-Wohnung im Innenhof der Kasseler Straße 12 überzeugt durch ihre ruhige Lage, solide Substanz und vielseitige Nutzungsmöglichkeiten. Die Wohnung verfügt über zwei gut geschnittene Zimmer und ...
129.000 €
Kaufpreis
44 m²
Wohnfläche
2
Zimmer