Neubau an der Waterkant / Nur mit passender Einkommensspanne (140-220) oder WBS bis 160/180/220 %
1.136,66 €
Kaltmiete (netto)
1.624,61 €
Warmmiete
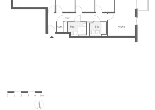
98,84 m²
Wohnfläche
5
Zimmer
immobilien.de Nr.: 9442802
Objektnummer: 0100/01036/0201/0137-VMS1
Dateien
Mietpreis & Nebenkosten
| Kaltmiete (netto) | 1.136,66 € |
| Warmmiete | 1.624,61 € |
| Nebenkosten | 247,1 € |
| Heizkosten | 240,85 € |
| Kaution | 3409,98 € |
Wohnfläche, Grundstück & Bausubstanz
| Wohnfläche | 98,84 m² |
| Zimmer | 5 |
| Baujahr | 2025 |
| Verfügbar ab | 01.01.2026 |
Energie
| Energieausweistyp | Bedarfsausweis |
| Energieeffizienzklasse | B |
| Endenergiebedarf | 51.00 |
| Heizungsart | Zentralheizung |
| Energieträger/Befeuerung | Block |
Beschreibung der Immobilie
Sie sind im Besitz eines gültigen WBS (bis 160, 180 oder 220 %) für fünf Räume oder liegen mit Ihrem Haushaltsnettoeinkommen in der entsprechenden Einkommensspanne? Dann sind Sie vielleicht der/ die zukünftige Mieter/ in dieser wunderschönen und hellen Wohnung in der Waterkant in Spandau. Diese Neubauwohnung im Erstbezug lässt kaum Wünsche offen und präsentiert sich mit strapazierfähigen Vinylboden in Holzoptik, Fußbodenheizung, hochwertigen Fenstern und einem modern gefliesten Duschbad. Erfreuen Sie sich an dem geräumigen Balkon, der viel Platz zum Entspannen bietet. Der offen gehaltene Wohn- und Küchenbereich lässt vielfältige Gestaltungsmöglichkeiten zu. Der Gebäudekomplex verfügt über keine Mieterkeller. Sie sind an einer Besichtigung interessiert? Dann senden Sie uns bitte eine einfache Anfrage über den entsprechenden Button ("Anbieter kontaktieren" oder "Anfrage senden"). Sollten Sie noch nicht im Besitz eines gültigen WBS sein, aber laut WBS Check ( https://www.gewobag.de/wbs-check/ ) einen erhalten, helfen wir Ihnen gerne nach Besichtigung mit einem persönlichen Angebot Diesen schneller zu bekommen.
Ausstattungsmerkmale
| Anzahl der Etagen im Haus | 5 |
| Inserat befindet sich im Stockwerk | 2 |
| Balkone | 1 |
| Fahrstuhl | |
| Barrierefrei | |
| Haustiere | |
| Keller |
Badewanne, bodengleiche Dusche, Rückkanalfähiger Breitbandkabelanschluss, Fernheizung/Zentralheizung, Fern-/Zentralwarmwasserversorgung, Wärmetauscher, Handtuchheizkörper, Fußbodenheizung, Barrierearme Wohnungsgestaltung
Sonstige Informationen
Hinweis zu Ihrem Schutz: Wir vermieten provisionsfrei gemäß § 2 WoVermG. Personen, die im Auftrag der Gewobag tätig sind, dürfen keine Provision von Ihnen verlangen.
Anbieter
Eigentümer/Vermieter oder Verwalter des jeweiligen Mietobjekts ist Gewobag Wohnungsbau-Aktien- gesellschaft Berlin. Die Gewobag MB Mieterberatungsgesellschaft mbH übernimmt den Vermietungsservice für diese Gesellschaft. Weitere Informationen finden Sie unter www.gewobag.de/datenschutz .
Anbieter
Eigentümer/Vermieter oder Verwalter des jeweiligen Mietobjekts ist Gewobag Wohnungsbau-Aktien- gesellschaft Berlin. Die Gewobag MB Mieterberatungsgesellschaft mbH übernimmt den Vermietungsservice für diese Gesellschaft. Weitere Informationen finden Sie unter www.gewobag.de/datenschutz .
Karte wird geladen...
Objektstandort
Daumstr. 76A
13599 Berlin
Lage & Infrastruktur
Objektstandort
Daumstr. 76A
13599 Berlin
Am östlichen Ufer der Oberhavel in Berlin Spandau entsteht ein modernes Wohnquartier - die Waterkant Berlin. Die natürliche Grenze im Westen bildet die Havel. Kitas, Schulen, ein Krankenhaus und die Nähe zur beliebten Einkaufsstraße der Altstadt Spandau machen diese naturnahe Lage besonders attraktiv.
Kontaktanfrage senden
Über den Anbieter
Gewobag Wohnungsbau-Aktiengesellschaft Berlin
Alt-Moabit 101 A
10559 Berlin
Kontakt
| Telefon | +49 30 47084000 |
| Website | www.gewobag.de |
Ansprechpartner/in
Gewobag MB Mieterberat.ges. mbH (Vermietungs-Service)