Wohnjuwel in der Brunnenstraße – Ihr neues Zuhause mit Herz & Aussicht
494 €
Kaltmiete (netto)
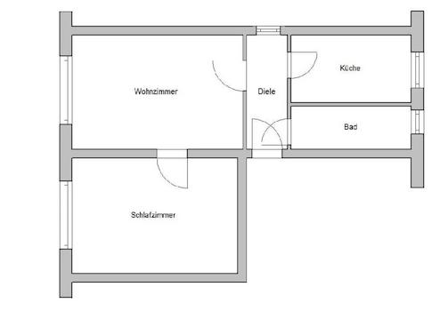
70,7 m²
Wohnfläche
4
Zimmer
immobilien.de Nr.: 9442560
Objektnummer: 424619
Mietpreis & Nebenkosten
| Kaltmiete (netto) | 494 € |
| Nebenkosten | 75 € |
| Heizkosten | 140 € |
| Kaution | 980 € |
| Stellplatz Freiplatz Miete} | 30 € |
Wohnfläche, Grundstück & Bausubstanz
| Wohnfläche | 70,7 m² |
| Zimmer | 4 |
| Baujahr | 1980 |
| Verfügbar ab | nach Absprache |
| Zustand | Teil Vollsaniert |
Energie
| Energieausweistyp | Verbrauch |
| Energieeffizienzklasse | F |
| Energieverbrauchkennwert | 190 kWh/(m²*a) |
| Heizungsart | Zentralheizung |
| Energieträger/Befeuerung | Gas |
Beschreibung der Immobilie
Erleben Sie entspanntes Wohnen in Bad Düben mit einem Rundum-Sorglos-Paket. Inmitten der Anlage erwartet Sie eine großzügige grüne Mitte, die zusammen mit dem hauseigenen Spielplatz einen perfekten Rückzugsort für Groß und Klein bietet.
Unsere Vision & Neuheiten ab dem 01.01.2026:
Mit dem Wechsel zur neuen Verwaltung beginnt ein neues Kapitel: Wir werden dieses Areal in den nächsten Jahren zu einem exklusiven Wohn-Ensemble in Bad Düben entwickeln. Unser Ziel ist ein Ort, an dem die Menschen langfristig zufrieden sind und sich rundum wohlfühlen.
Genießen Sie bereits jetzt erstklassige hauseigene Services: Ein zuverlässiger Hausmeisterdienst, der Winterdienst sowie schnelle, fachgerechte Hilfe bei allen baulichen Anliegen sind garantiert. Zudem legen wir Wert auf Flexibilität – Mietverträge werden bei uns individuell angepasst, um optimal auf Ihre Bedürfnisse einzugehen.
Ihre Vorteile auf einen Blick:
Vielfältiges Wohnangebot: Wir bieten attraktive 2-, 3- und 4-Raum-Wohnungen an – ideal für Singles, Paare oder Familien.
Wahlfreiheit: Entscheiden Sie sich ganz nach Wunsch für eine Wohnung mit oder ohne Balkon.
Malerischer Ausblick: Genießen Sie die Weite direkt aus Ihrem Fenster.
Eigene Parkplätze: Bequem direkt vor Ort anmietbar – Schluss mit der Parkplatzsuche.
Sichere Kellerabteile: Jede Wohnung verfügt über zusätzlichen Stauraum im eigenen Keller.
Bestens organisiert: Gepflegte Müllplätze und großzügige Flächen zum Wäschetrocknen im Freien.
Grüne Oase: Viel Platz auf der zentralen Wiese und ein sicherer Spielbereich für Kinder.
Preisbeispiel:
Unsere großzügigen 4-Raum-Wohnungen (ca. 70,7 m²) erhalten Sie bereits ab einer Kaltmiete von 494,– €.
Ein Ort, an dem Ordnung auf Idylle trifft und Service großgeschrieben wird. Werden Sie Teil unserer neuen Wohngemeinschaft!
Objektzustand: Erstbezug nach Sanierung
Unsere Vision & Neuheiten ab dem 01.01.2026:
Mit dem Wechsel zur neuen Verwaltung beginnt ein neues Kapitel: Wir werden dieses Areal in den nächsten Jahren zu einem exklusiven Wohn-Ensemble in Bad Düben entwickeln. Unser Ziel ist ein Ort, an dem die Menschen langfristig zufrieden sind und sich rundum wohlfühlen.
Genießen Sie bereits jetzt erstklassige hauseigene Services: Ein zuverlässiger Hausmeisterdienst, der Winterdienst sowie schnelle, fachgerechte Hilfe bei allen baulichen Anliegen sind garantiert. Zudem legen wir Wert auf Flexibilität – Mietverträge werden bei uns individuell angepasst, um optimal auf Ihre Bedürfnisse einzugehen.
Ihre Vorteile auf einen Blick:
Vielfältiges Wohnangebot: Wir bieten attraktive 2-, 3- und 4-Raum-Wohnungen an – ideal für Singles, Paare oder Familien.
Wahlfreiheit: Entscheiden Sie sich ganz nach Wunsch für eine Wohnung mit oder ohne Balkon.
Malerischer Ausblick: Genießen Sie die Weite direkt aus Ihrem Fenster.
Eigene Parkplätze: Bequem direkt vor Ort anmietbar – Schluss mit der Parkplatzsuche.
Sichere Kellerabteile: Jede Wohnung verfügt über zusätzlichen Stauraum im eigenen Keller.
Bestens organisiert: Gepflegte Müllplätze und großzügige Flächen zum Wäschetrocknen im Freien.
Grüne Oase: Viel Platz auf der zentralen Wiese und ein sicherer Spielbereich für Kinder.
Preisbeispiel:
Unsere großzügigen 4-Raum-Wohnungen (ca. 70,7 m²) erhalten Sie bereits ab einer Kaltmiete von 494,– €.
Ein Ort, an dem Ordnung auf Idylle trifft und Service großgeschrieben wird. Werden Sie Teil unserer neuen Wohngemeinschaft!
Objektzustand: Erstbezug nach Sanierung
Ausstattungsmerkmale
| Anzahl der Etagen im Haus | 1 |
| Bad | 1 |
| Boden | Laminat |
| Balkone | 1 |
| Terrassen | 0 |
Balkon, Laminat
Bemerkungen:
Modernisierter Standard für Ihren Komfort
Wir legen Wert auf Qualität und eine solide Basis, damit Sie sich in Ihren vier Wänden von Anfang an wohlfühlen. Jede Wohnung wird in einem gepflegten, teilmodernisierten Zustand übergeben:
Frische Optik: In den Wohnräumen wurde hochwertiges Laminat neu verlegt, das für ein modernes und gemütliches Ambiente sorgt.
Küche mit System: Alle notwendigen Anschlüsse sind vorhanden, inklusive installierter Eckventile. Ein klassischer Fliesenspiegel schützt die Wände und ist bereit für Ihre Traumküche.
Technik auf Stand: Die Elektrik ist fachgerecht vorbereitet – Sie müssen sich keine Sorgen um überlastete Leitungen oder fehlende Anschlüsse machen.
Details mit Charme: Die Innentüren erhalten einen frischen Lackanstrich, was der Wohnung zusätzliche Helligkeit und Sauberkeit verleiht.
Wände: Die Wände sind geweißt und können noch individuell Gestaltet werden.
Bemerkungen:
Modernisierter Standard für Ihren Komfort
Wir legen Wert auf Qualität und eine solide Basis, damit Sie sich in Ihren vier Wänden von Anfang an wohlfühlen. Jede Wohnung wird in einem gepflegten, teilmodernisierten Zustand übergeben:
Frische Optik: In den Wohnräumen wurde hochwertiges Laminat neu verlegt, das für ein modernes und gemütliches Ambiente sorgt.
Küche mit System: Alle notwendigen Anschlüsse sind vorhanden, inklusive installierter Eckventile. Ein klassischer Fliesenspiegel schützt die Wände und ist bereit für Ihre Traumküche.
Technik auf Stand: Die Elektrik ist fachgerecht vorbereitet – Sie müssen sich keine Sorgen um überlastete Leitungen oder fehlende Anschlüsse machen.
Details mit Charme: Die Innentüren erhalten einen frischen Lackanstrich, was der Wohnung zusätzliche Helligkeit und Sauberkeit verleiht.
Wände: Die Wände sind geweißt und können noch individuell Gestaltet werden.
Sonstige Informationen
Heizungsart: Zentralheizung
Energieträger: Gas
ImmoNatic GmbH
Georg-Schumann-Str. 294
04159 Leipzig
Geschäftsführer:
Christoph Kaubitzsch
Tobias Richter
Steuer Nr: 232/111/09327
Makleranfragen nicht erwünscht. Nach § 7 UWG sind unaufgeforderte Kontaktaufnahmen durch Makler ohne ausdrückliche Einwilligung des Empfängers verboten!
ohne-makler (OM) ist weder Anbieter noch Vermittler der Immobilie. OM betreibt eine Plattform für Immobilieneigentümer, die unter anderem die gleichzeitige Veröffentlichung einzelner Inserate auf mehreren Immobilienportalen ermöglicht. Die Inhalte dieser Inserate werden ausschließlich von Dritten verantwortet. Für die Richtigkeit, Vollständigkeit oder Rechtmäßigkeit der Angaben übernimmt OM keine Haftung. Hinweise auf mögliche Rechtsverstöße können jederzeit gemeldet werden und werden nach Prüfung umgehend bearbeitet.
Energieträger: Gas
ImmoNatic GmbH
Georg-Schumann-Str. 294
04159 Leipzig
Geschäftsführer:
Christoph Kaubitzsch
Tobias Richter
Steuer Nr: 232/111/09327
Makleranfragen nicht erwünscht. Nach § 7 UWG sind unaufgeforderte Kontaktaufnahmen durch Makler ohne ausdrückliche Einwilligung des Empfängers verboten!
ohne-makler (OM) ist weder Anbieter noch Vermittler der Immobilie. OM betreibt eine Plattform für Immobilieneigentümer, die unter anderem die gleichzeitige Veröffentlichung einzelner Inserate auf mehreren Immobilienportalen ermöglicht. Die Inhalte dieser Inserate werden ausschließlich von Dritten verantwortet. Für die Richtigkeit, Vollständigkeit oder Rechtmäßigkeit der Angaben übernimmt OM keine Haftung. Hinweise auf mögliche Rechtsverstöße können jederzeit gemeldet werden und werden nach Prüfung umgehend bearbeitet.
Karte wird geladen...
Objektstandort
Brunnenstraße 16
04849 Bad Düben
- Sachsen
Lage & Infrastruktur
Objektstandort
Brunnenstraße 16
04849 Bad Düben
- Sachsen
Im Herzen von Bad Düben – Alles vor der Haustür
Die Brunnenstraße besticht durch ihre zentrale Bestlage. Hier wohnen Sie genau in der Mitte von Bad Düben, was Ihnen kurze Wege und eine erstklassige Infrastruktur garantiert:
Einkaufen & Alltag: In nur wenigen Gehminuten erreichen Sie Supermärkte, Bäckereien und Geschäfte des täglichen Bedarfs.
Gesundheit & Kur: Die renommierte HELIOS Klinik sowie die weitläufigen Kuranlagen und das HEIDE SPA sind fast in Sichtweite – ideal für Spaziergänge oder zum Entspannen.
Natur & Freizeit: Die Dübener Heide beginnt praktisch direkt hinter der Anlage. Ob Wandern, Radfahren oder Joggen – die Natur ist Ihr direkter Nachbar.
Familie: Schulen und Kindergärten befinden sich im direkten Umkreis, was die Wohnlage besonders für Familien attraktiv macht.
Anbindung: Durch die zentrale Lage sind Sie schnell auf den Bundesstraßen Richtung Leipzig, Bitterfeld oder Torgau.
Hier wohnen Sie dort, wo andere Urlaub machen – zentral, grün und bestens angebunden.
Infrastruktur (im Umkreis von 5 km):
Apotheke, Lebensmittel-Discount, Allgemeinmediziner, Kindergarten, Grundschule, Hauptschule, Realschule, Gymnasium, Gesamtschule, Öffentliche Verkehrsmittel
Die Brunnenstraße besticht durch ihre zentrale Bestlage. Hier wohnen Sie genau in der Mitte von Bad Düben, was Ihnen kurze Wege und eine erstklassige Infrastruktur garantiert:
Einkaufen & Alltag: In nur wenigen Gehminuten erreichen Sie Supermärkte, Bäckereien und Geschäfte des täglichen Bedarfs.
Gesundheit & Kur: Die renommierte HELIOS Klinik sowie die weitläufigen Kuranlagen und das HEIDE SPA sind fast in Sichtweite – ideal für Spaziergänge oder zum Entspannen.
Natur & Freizeit: Die Dübener Heide beginnt praktisch direkt hinter der Anlage. Ob Wandern, Radfahren oder Joggen – die Natur ist Ihr direkter Nachbar.
Familie: Schulen und Kindergärten befinden sich im direkten Umkreis, was die Wohnlage besonders für Familien attraktiv macht.
Anbindung: Durch die zentrale Lage sind Sie schnell auf den Bundesstraßen Richtung Leipzig, Bitterfeld oder Torgau.
Hier wohnen Sie dort, wo andere Urlaub machen – zentral, grün und bestens angebunden.
Infrastruktur (im Umkreis von 5 km):
Apotheke, Lebensmittel-Discount, Allgemeinmediziner, Kindergarten, Grundschule, Hauptschule, Realschule, Gymnasium, Gesamtschule, Öffentliche Verkehrsmittel