BEZUGSFERTIGES REIHENHAUS: KERNSANIERT, 2 BÄDER, WÄRMEPUMPE - IN STÖCKHEIM
349.000 €
Kaufpreis
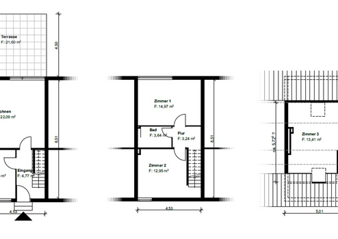
94,23 m²
Wohnfläche
4
Zimmer
immobilien.de Nr.: 9441956
Objektnummer: 424527
Kaufpreis
| Kaufpreis | 349.000 € |
| Maklerprovision | keine Provision, courtagefrei |
Wohnfläche, Grundstück & Bausubstanz
| Wohnfläche | 94,23 m² |
| Grundstücksfläche | 185 m² |
| Zimmer | 4 |
| Baujahr | 1959 |
| Verfügbar ab | sofort |
| Zustand | Teil Vollsaniert |
Energie
| Energieausweistyp | Bedarfsausweis |
| Energieeffizienzklasse | B |
| Endenergiebedarf | 59 |
| Heizungsart | Zentralheizung |
| Energieträger/Befeuerung | Luft-Wärme-Pumpe |
Beschreibung der Immobilie
Dieses attraktive Reihenmittelhaus in Braunschweig-Stöckheim bietet auf rund 94 m² Wohnfläche modernes Wohnen in einer ruhigen und beliebten Lage. Das 1959 erbaute Gebäude wurde im Jahr 2025 vollständig kernsaniert und energetisch auf den neuesten Standard gebracht.
Im Zuge der Sanierung wurde die alte Gasheizung durch eine effiziente Wärmepumpe ersetzt, wodurch das Energielabel von H auf B verbessert werden konnte. Alle Fenster, Türen, Leitungen und die Elektrik wurden erneuert, ebenso wurde das Badezimmer im 1. OG modern gestaltet. Die Wände sind hochwertig verspachtelt und geschliffen, wodurch ein zeitgemäßes Wohnambiente entsteht.
Weiterhin ist im UG ein komplett neues Badezimmer mit Badewanne entstanden.
Besonders hervorzuheben ist der neue Terrassenanbau mit großem Schiebeelement, der viel Licht in den Wohnbereich lässt und einen direkten Zugang zum Garten ermöglicht. Kaminanschlüsse im Wohnzimmer und im Dachgeschoss eröffnen zusätzliche Gestaltungsoptionen. Der Zugang zum Dachgeschoss erfolgt komfortabel direkt über das Schlafzimmer (Durchgangszimmer) und bietet kurze Wege sowie zusätzliche, flexibel nutzbare Fläche.
Auch der Außenbereich präsentiert sich in neuem Zustand: Der Vorgarten ist neu gepflastert, die Eingangstreppe und die Haustür wurden erneuert, die Außenwände gedämmt und verputzt, und das Dach wurde instandgesetzt. Die bestehende Bepflanzung sorgt für eine angenehme Atmosphäre und macht den Garten zu einem idealen Rückzugsort mit vielfältigen Gestaltungsmöglichkeiten.
Das Haus wird ohne Küche und Möbel verkauft, sodass viel Raum für die persönliche Einrichtung bleibt.
Optional kann eine Garage und ein Stellplatz 50 m vom Haus entfernt erworben werden (Preis auf Anfrage).
Dank der Kombination aus moderner Technik, hoher Energieeffizienz und durchdachter Raumaufteilung eignet sich dieses Haus besonders für junge Familien und Paare, die ein nachhaltiges und komfortables Zuhause suchen.
Objektzustand: Erstbezug nach Sanierung
Im Zuge der Sanierung wurde die alte Gasheizung durch eine effiziente Wärmepumpe ersetzt, wodurch das Energielabel von H auf B verbessert werden konnte. Alle Fenster, Türen, Leitungen und die Elektrik wurden erneuert, ebenso wurde das Badezimmer im 1. OG modern gestaltet. Die Wände sind hochwertig verspachtelt und geschliffen, wodurch ein zeitgemäßes Wohnambiente entsteht.
Weiterhin ist im UG ein komplett neues Badezimmer mit Badewanne entstanden.
Besonders hervorzuheben ist der neue Terrassenanbau mit großem Schiebeelement, der viel Licht in den Wohnbereich lässt und einen direkten Zugang zum Garten ermöglicht. Kaminanschlüsse im Wohnzimmer und im Dachgeschoss eröffnen zusätzliche Gestaltungsoptionen. Der Zugang zum Dachgeschoss erfolgt komfortabel direkt über das Schlafzimmer (Durchgangszimmer) und bietet kurze Wege sowie zusätzliche, flexibel nutzbare Fläche.
Auch der Außenbereich präsentiert sich in neuem Zustand: Der Vorgarten ist neu gepflastert, die Eingangstreppe und die Haustür wurden erneuert, die Außenwände gedämmt und verputzt, und das Dach wurde instandgesetzt. Die bestehende Bepflanzung sorgt für eine angenehme Atmosphäre und macht den Garten zu einem idealen Rückzugsort mit vielfältigen Gestaltungsmöglichkeiten.
Das Haus wird ohne Küche und Möbel verkauft, sodass viel Raum für die persönliche Einrichtung bleibt.
Optional kann eine Garage und ein Stellplatz 50 m vom Haus entfernt erworben werden (Preis auf Anfrage).
Dank der Kombination aus moderner Technik, hoher Energieeffizienz und durchdachter Raumaufteilung eignet sich dieses Haus besonders für junge Familien und Paare, die ein nachhaltiges und komfortables Zuhause suchen.
Objektzustand: Erstbezug nach Sanierung
Ausstattungsmerkmale
| Anzahl der Etagen im Haus | 2 |
| Bad | 2 |
| Bad | Dusche, Wanne |
| Balkone | 1 |
| Garten | |
| Terrassen | 1 |
| Garage/Stellplätze | 1 |
| Keller |
Balkon, Terrasse, Garten, Keller, Vollbad, Duschbad, Gäste-WC, Kamin
Bemerkungen:
Highlights der Sanierung:
- 2 neu sanierte Badezimmer (ebenerdige Dusche und Badewanne, jeweils mit WC)
- Energetische Aufwertung durch Dämmung und Wärmepumpe auf die Energieklasse B.
- Fenster & Türen vollständig erneuert
- Hochwertige Wandoberflächen
- Neuer Terrassenanbau mit großem ebenerdigen Schiebeelement zum Garten
- Option für Kaminanschlüsse im Wohnzimmer oder im Dachgeschoß
Außenbereich:
- Vorgarten: neu angelegte Pflasterfläche
- Hauseingangstreppe erneuert, neue Haustür
- Außenwände gedämmt & verputzt
- Garten aufbereitet und sofort nutzbar
Bemerkungen:
Highlights der Sanierung:
- 2 neu sanierte Badezimmer (ebenerdige Dusche und Badewanne, jeweils mit WC)
- Energetische Aufwertung durch Dämmung und Wärmepumpe auf die Energieklasse B.
- Fenster & Türen vollständig erneuert
- Hochwertige Wandoberflächen
- Neuer Terrassenanbau mit großem ebenerdigen Schiebeelement zum Garten
- Option für Kaminanschlüsse im Wohnzimmer oder im Dachgeschoß
Außenbereich:
- Vorgarten: neu angelegte Pflasterfläche
- Hauseingangstreppe erneuert, neue Haustür
- Außenwände gedämmt & verputzt
- Garten aufbereitet und sofort nutzbar
Sonstige Informationen
Heizungsart: Zentralheizung
Energieträger: Luft-/Wasserwärme
Makleranfragen unerwünscht! Nach § 7 UWG sind unaufgeforderte Kontaktaufnahmen durch Makler ohne ausdrückliche Einwilligung des Empfängers verboten!
Makleranfragen nicht erwünscht. Nach § 7 UWG sind unaufgeforderte Kontaktaufnahmen durch Makler ohne ausdrückliche Einwilligung des Empfängers verboten!
ohne-makler (OM) ist weder Anbieter noch Vermittler der Immobilie. OM betreibt eine Plattform für Immobilieneigentümer, die unter anderem die gleichzeitige Veröffentlichung einzelner Inserate auf mehreren Immobilienportalen ermöglicht. Die Inhalte dieser Inserate werden ausschließlich von Dritten verantwortet. Für die Richtigkeit, Vollständigkeit oder Rechtmäßigkeit der Angaben übernimmt OM keine Haftung. Hinweise auf mögliche Rechtsverstöße können jederzeit gemeldet werden und werden nach Prüfung umgehend bearbeitet.
Energieträger: Luft-/Wasserwärme
Makleranfragen unerwünscht! Nach § 7 UWG sind unaufgeforderte Kontaktaufnahmen durch Makler ohne ausdrückliche Einwilligung des Empfängers verboten!
Makleranfragen nicht erwünscht. Nach § 7 UWG sind unaufgeforderte Kontaktaufnahmen durch Makler ohne ausdrückliche Einwilligung des Empfängers verboten!
ohne-makler (OM) ist weder Anbieter noch Vermittler der Immobilie. OM betreibt eine Plattform für Immobilieneigentümer, die unter anderem die gleichzeitige Veröffentlichung einzelner Inserate auf mehreren Immobilienportalen ermöglicht. Die Inhalte dieser Inserate werden ausschließlich von Dritten verantwortet. Für die Richtigkeit, Vollständigkeit oder Rechtmäßigkeit der Angaben übernimmt OM keine Haftung. Hinweise auf mögliche Rechtsverstöße können jederzeit gemeldet werden und werden nach Prüfung umgehend bearbeitet.
Karte wird geladen...
Objektstandort
Hohe Wiese 71
38124 Braunschweig
- Niedersachsen
Lage & Infrastruktur
Das Reihenhaus befindet sich in Braunschweig-Stöckheim, einem der beliebtesten und familienfreundlichsten Stadtteile im Süden Braunschweigs. Die Lage verbindet ruhiges Wohnen im Grünen mit einer hervorragenden Infrastruktur.
Alle Einrichtungen des täglichen Bedarfs befinden sich in unmittelbarer Nähe: Supermärkte, Ärzte, Apotheken und Gastronomie sind schnell erreichbar.
Die Anbindung an den öffentlichen Nahverkehr ist sehr gut - mit Straßenbahn und Bus erreichen Sie die Braunschweiger Innenstadt in kurzer Zeit. Auch die Autobahn A39 und A36 sind schnell zu erreichen, was Pendlern eine optimale Mobilität bietet.
Stöckheim bietet zudem einen hohen Freizeitwert: zahlreiche Grünflächen, Sportvereine, die Nähe zur Oker sowie Rad- und Spazierwege machen den Stadtteil zu einem attraktivem Wohnort.
Ideal für junge Familien oder Paare, die Wert auf Qualität, Energieeffizienz und ein stimmiges Wohnumfeld legen.
Infrastruktur (im Umkreis von 5 km):
Apotheke, Lebensmittel-Discount, Allgemeinmediziner, Kindergarten, Grundschule, Hauptschule, Realschule, Gymnasium, Gesamtschule, Öffentliche Verkehrsmittel
Alle Einrichtungen des täglichen Bedarfs befinden sich in unmittelbarer Nähe: Supermärkte, Ärzte, Apotheken und Gastronomie sind schnell erreichbar.
Die Anbindung an den öffentlichen Nahverkehr ist sehr gut - mit Straßenbahn und Bus erreichen Sie die Braunschweiger Innenstadt in kurzer Zeit. Auch die Autobahn A39 und A36 sind schnell zu erreichen, was Pendlern eine optimale Mobilität bietet.
Stöckheim bietet zudem einen hohen Freizeitwert: zahlreiche Grünflächen, Sportvereine, die Nähe zur Oker sowie Rad- und Spazierwege machen den Stadtteil zu einem attraktivem Wohnort.
Ideal für junge Familien oder Paare, die Wert auf Qualität, Energieeffizienz und ein stimmiges Wohnumfeld legen.
Infrastruktur (im Umkreis von 5 km):
Apotheke, Lebensmittel-Discount, Allgemeinmediziner, Kindergarten, Grundschule, Hauptschule, Realschule, Gymnasium, Gesamtschule, Öffentliche Verkehrsmittel