Über 95 Jahre Erfahrung - Kompakt zusammengefasst
352.940 €
Kaufpreis
119 m²
Wohnfläche
5
Zimmer
immobilien.de Nr.: 9440574
Objektnummer: PW04Eckfeld1
Kaufpreis
| Kaufpreis | 352.940 € |
Wohnfläche, Grundstück & Bausubstanz
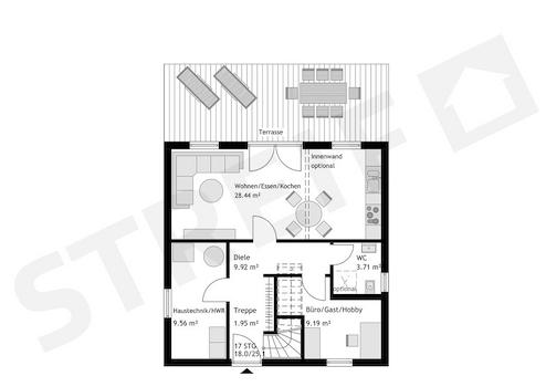
| Wohnfläche | 119 m² |
| Grundstücksfläche | 750 m² |
| Zimmer | 5 |
| Verfügbar ab | keine Angabe |
| Zustand | Projektiert |
Energie
| Energieträger/Befeuerung | Luft-Wärme-Pumpe |
Beschreibung der Immobilie
Stellen Sie sich vor, Sie schließen abends Ihre eigene Haustür auf. Der Eingang zu Ihrem Wohlfühlort. Kein Vermieter, keine Nachbarn über Ihnen, kein Gefühl mehr von "nur vorübergehend", sondern ankommen.
Dieses Einfamilienhaus mit modernem Satteldach ist genau für diesen Traum gedacht. Wohnlich, warm, vertraut.
Durch die 1,5-geschossige Bauweise entsteht im Obergeschoss ein voll nutzbarer Lebensbereich. Kinderzimmer mit Platz zum Wachsen. Ein ruhiges Schlafzimmer. Vielleicht ein kleines Büro oder Gästezimmer. Viel Stellfläche trotz Kniestock.
Große, durchdacht platzierte Fenster holen das Tageslicht ins Haus. Morgens Sonne in der Küche. Nachmittags Helligkeit im Wohnbereich. Abends ein warmes Gefühl, wenn draußen langsam Ruhe einkehrt. Das Haus arbeitet mit dem Licht, nicht dagegen.
Das Dach schützt nicht nur vor Wind und Wetter, sondern schafft zusätzlich Platz für alles, was man im Alltag braucht, aber nicht ständig sehen will. Koffer. Erinnerungen. Weihnachtskartons. Dinge, die ein Leben mit sich bringt.
Wichtig zu wissen: Dieses Haus ist kein fertiges Produkt. Es ist ein Anfang. Das Exposé zeigt eine mögliche Richtung. Größe, Grundriss, Optik und Ausbaustufe werden so geplant, dass sie zu Ihnen passen. Zu Ihrem Alltag. Zu Ihren Plänen. Zu Ihrem Budget.
Dieses Einfamilienhaus mit modernem Satteldach ist genau für diesen Traum gedacht. Wohnlich, warm, vertraut.
Durch die 1,5-geschossige Bauweise entsteht im Obergeschoss ein voll nutzbarer Lebensbereich. Kinderzimmer mit Platz zum Wachsen. Ein ruhiges Schlafzimmer. Vielleicht ein kleines Büro oder Gästezimmer. Viel Stellfläche trotz Kniestock.
Große, durchdacht platzierte Fenster holen das Tageslicht ins Haus. Morgens Sonne in der Küche. Nachmittags Helligkeit im Wohnbereich. Abends ein warmes Gefühl, wenn draußen langsam Ruhe einkehrt. Das Haus arbeitet mit dem Licht, nicht dagegen.
Das Dach schützt nicht nur vor Wind und Wetter, sondern schafft zusätzlich Platz für alles, was man im Alltag braucht, aber nicht ständig sehen will. Koffer. Erinnerungen. Weihnachtskartons. Dinge, die ein Leben mit sich bringt.
Wichtig zu wissen: Dieses Haus ist kein fertiges Produkt. Es ist ein Anfang. Das Exposé zeigt eine mögliche Richtung. Größe, Grundriss, Optik und Ausbaustufe werden so geplant, dass sie zu Ihnen passen. Zu Ihrem Alltag. Zu Ihren Plänen. Zu Ihrem Budget.
Ausstattungsmerkmale
| Anzahl der Etagen im Haus | 1 |
| Küche | Einbauküche |
| Bad | 1 |
Mit den STREIF "Platzwunder"-Häusern beginnt ein neues Kapitel: durchdachte, funktionale Einfamilienhäuser, die genau das bieten, was heute wichtig ist. Raum für Familie, Alltag und Rückzug. Ohne Schnickschnack, aber mit allem, was ein Zuhause braucht.
Jeder Entwurf ist so geplant, dass Wohnfläche, Raumfluss und Alltagstauglichkeit im Mittelpunkt stehen. Vom kompakten 107 m²-Stadtvilla-Konzept über familienfreundliche 119 m² und 154 m² Häuser bis hin zu großzügigen 167 m²-Grundrissen: hier findet jedes Leben seinen Raum.
Im Kern verbinden die Platzwunder klar strukturierte Grundrisse mit solider, energieeffizienter Bauweise und einer Ausstattung, die in dieser Klasse überzeugt. Das beginnt bei der hochwertigen Holzständerbauweise, die für angenehmes, gesundes Raumklima sorgt, und setzt sich fort in der modernen Haustechnik: eine STREIF-Luft-Luft-Wärmepumpe mit integrierter Wohnraumlüftung sorgt für frische Luft und niedrige Betriebskosten - schon in der Smartline-Basisversion.
Helle Kunststoff-Fenster mit 3-fach-Wärmeschutzverglasung und eine Vorbereitung für Photovoltaik-Installation sind inklusive. Im Hausinneren sind Bad/WC gefliest und mit Marken-Sanitärobjekten ausgestattet, die Elektroinstallation ist komplett geplant, und auf Wunsch gibt es eine Designküche direkt dazu.
Trotz des attraktiven Preisniveaus bleibt die Qualität nicht auf der Strecke: zahlreiche Auszeichnungen, Gütesiegel und unabhängige Prüfungen dokumentieren, dass STREIF-Häuser langlebig, energieeffizient und hochwertig gebaut werden.
Flexibilität bleibt erhalten: Mit dem Smart-Indi-Paket lassen sich Fenster verändern, Grundrisse spiegeln oder Anbauten planen (gegen Aufpreis). Die Speed-Lieferung innerhalb von circa acht Monaten macht den Weg ins eigene Haus planbar und verlässlich.
Das Ergebnis sind Häuser, die genau das tun, was man von einem Zuhause erwartet: sie bieten Raum, Komfort und Alltagstauglichkeit - ohne Kompromisse bei Technik und Bauqualität und zu einem Preis, der fair und nachvollziehbar ist.
Die gezeigten Bilder können Anbauteile zeigen, welche nicht im angegebenen Preis enthalten sind. Es besteht kein Rechtsanspruch.
Jeder Entwurf ist so geplant, dass Wohnfläche, Raumfluss und Alltagstauglichkeit im Mittelpunkt stehen. Vom kompakten 107 m²-Stadtvilla-Konzept über familienfreundliche 119 m² und 154 m² Häuser bis hin zu großzügigen 167 m²-Grundrissen: hier findet jedes Leben seinen Raum.
Im Kern verbinden die Platzwunder klar strukturierte Grundrisse mit solider, energieeffizienter Bauweise und einer Ausstattung, die in dieser Klasse überzeugt. Das beginnt bei der hochwertigen Holzständerbauweise, die für angenehmes, gesundes Raumklima sorgt, und setzt sich fort in der modernen Haustechnik: eine STREIF-Luft-Luft-Wärmepumpe mit integrierter Wohnraumlüftung sorgt für frische Luft und niedrige Betriebskosten - schon in der Smartline-Basisversion.
Helle Kunststoff-Fenster mit 3-fach-Wärmeschutzverglasung und eine Vorbereitung für Photovoltaik-Installation sind inklusive. Im Hausinneren sind Bad/WC gefliest und mit Marken-Sanitärobjekten ausgestattet, die Elektroinstallation ist komplett geplant, und auf Wunsch gibt es eine Designküche direkt dazu.
Trotz des attraktiven Preisniveaus bleibt die Qualität nicht auf der Strecke: zahlreiche Auszeichnungen, Gütesiegel und unabhängige Prüfungen dokumentieren, dass STREIF-Häuser langlebig, energieeffizient und hochwertig gebaut werden.
Flexibilität bleibt erhalten: Mit dem Smart-Indi-Paket lassen sich Fenster verändern, Grundrisse spiegeln oder Anbauten planen (gegen Aufpreis). Die Speed-Lieferung innerhalb von circa acht Monaten macht den Weg ins eigene Haus planbar und verlässlich.
Das Ergebnis sind Häuser, die genau das tun, was man von einem Zuhause erwartet: sie bieten Raum, Komfort und Alltagstauglichkeit - ohne Kompromisse bei Technik und Bauqualität und zu einem Preis, der fair und nachvollziehbar ist.
Die gezeigten Bilder können Anbauteile zeigen, welche nicht im angegebenen Preis enthalten sind. Es besteht kein Rechtsanspruch.
Sonstige Informationen
Wer ein Haus baut, baut nicht einfach nur vier Wände. Er schafft einen Ort, an dem Familie wächst, Ruhe einkehrt, Zukunft beginnt. So versteht Streif Hausbau!
Seit mehr als 95 Jahren realisiert Streif individuelle Häuser in nachhaltiger Holzständerbauweise. Fast 100.000 Bauvorhaben deutschlandweit, tausende davon hier in der Region. Produziert wird in Weinsheim bei Prüm, mitten in der Eifel. Regional, auf kurzem Weg zugänglich, kein anonymer Konzern.
Streif baut ausschließlich moderne Energiesparhäuser. Förderfähig, zinsvergünstigt, auf langfristige Kostenersparnis ausgelegt. Hochwertige Materialien, klare Abläufe, transparente Bauabwicklung. Von der ersten Skizze bis zur Schlüsselübergabe haben Sie einen festen Ansprechpartner vor Ort.
Durch die industrielle Vorfertigung im Werk entsteht Ihr Haus wetterunabhängig und auf den Millimeter genau. Auf Ihrem Bauplatz steht Ihr Zuhause innerhalb weniger Tage. Von Beginn an planbar, sauber & strukturiert. Streif tritt für Sie und Ihre Familie bei allen Gewerken in Vorleistung und steht zu verbindlichen Festpreis- und Terminzusagen. Das schafft Ihnen Sicherheit, bevor der erste Spatenstich erfolgt.
Ob Einfamilienhaus, Mehrfamilienhaus, Renditeobjekt oder gewerbliches Objekt, Streif plant individuell, modern und zukunftsorientiert. Auch als Ferien- oder Wochenendhaus. Sie können Ihr Haus aktiv mitgestalten, von der Architektur bis zur Ausstattung. Auf Wunsch schlüsselfertig oder mit Eigenleistung. Selbstverständlich auch mit Vorbemusterung und persönlichen Werkterminen.
Streif baut auf Vertrauen.
Wenn Sie nicht einfach nur bauen möchten, sondern sich auch gut aufgehoben wissen wollen, dann lassen Sie uns persönlich miteinander sprechen. Ein direktes Gespräch ist immer der beste Anfang.
Yannick Demmerath
0151 / 7050 7708 - yannick.demmerath@streif.de
Seit mehr als 95 Jahren realisiert Streif individuelle Häuser in nachhaltiger Holzständerbauweise. Fast 100.000 Bauvorhaben deutschlandweit, tausende davon hier in der Region. Produziert wird in Weinsheim bei Prüm, mitten in der Eifel. Regional, auf kurzem Weg zugänglich, kein anonymer Konzern.
Streif baut ausschließlich moderne Energiesparhäuser. Förderfähig, zinsvergünstigt, auf langfristige Kostenersparnis ausgelegt. Hochwertige Materialien, klare Abläufe, transparente Bauabwicklung. Von der ersten Skizze bis zur Schlüsselübergabe haben Sie einen festen Ansprechpartner vor Ort.
Durch die industrielle Vorfertigung im Werk entsteht Ihr Haus wetterunabhängig und auf den Millimeter genau. Auf Ihrem Bauplatz steht Ihr Zuhause innerhalb weniger Tage. Von Beginn an planbar, sauber & strukturiert. Streif tritt für Sie und Ihre Familie bei allen Gewerken in Vorleistung und steht zu verbindlichen Festpreis- und Terminzusagen. Das schafft Ihnen Sicherheit, bevor der erste Spatenstich erfolgt.
Ob Einfamilienhaus, Mehrfamilienhaus, Renditeobjekt oder gewerbliches Objekt, Streif plant individuell, modern und zukunftsorientiert. Auch als Ferien- oder Wochenendhaus. Sie können Ihr Haus aktiv mitgestalten, von der Architektur bis zur Ausstattung. Auf Wunsch schlüsselfertig oder mit Eigenleistung. Selbstverständlich auch mit Vorbemusterung und persönlichen Werkterminen.
Streif baut auf Vertrauen.
Wenn Sie nicht einfach nur bauen möchten, sondern sich auch gut aufgehoben wissen wollen, dann lassen Sie uns persönlich miteinander sprechen. Ein direktes Gespräch ist immer der beste Anfang.
Yannick Demmerath
0151 / 7050 7708 - yannick.demmerath@streif.de
Karte wird geladen...
Objektstandort
54531 Eckfeld
Lage & Infrastruktur
Objektstandort
54531 Eckfeld
Eckfeld liegt ruhig in der südlichen Vulkaneifel und verbindet naturnahes Wohnen mit guter Anbindung. Der Ort verfügt über Glasfaser-Internet, während größere Städte wie Wittlich, Daun oder Trier über die nahe Autobahn A1 und Landesstraße 64 schnell erreichbar sind. Zahlreiche Wander- und Radwege in der Umgebung laden zu Freizeitaktivitäten ein, sodass Eckfeld ländliche Ruhe und Lebensqualität ideal vereint.
Kontaktanfrage senden
Über den Anbieter
STREIF Haus GmbH
Josef-Streif-Straße 1
54595 Weinsheim
Kontakt
| Telefon | +49 151 70507708 |
| Mobil | +49 151 70507708 |
| Website | www.streif.de |
Ansprechpartner/in
Herr Yannick Demmerath