Das Stilvolle Highlight der Nachbarschaft
811.830 €
Kaufpreis
190 m²
Wohnfläche
5
Zimmer
immobilien.de Nr.: 9439581
Objektnummer: VillaXXLKonz1
Kaufpreis
| Kaufpreis | 811.830 € |
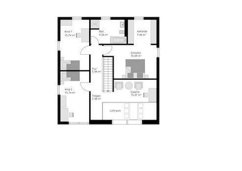
Wohnfläche, Grundstück & Bausubstanz
| Wohnfläche | 190 m² |
| Grundstücksfläche | 831 m² |
| Zimmer | 5 |
| Verfügbar ab | keine Angabe |
| Zustand | Projektiert |
Energie
| Energieträger/Befeuerung | Luft-Wärme-Pumpe |
Beschreibung der Immobilie
Diese Stadtvilla ist mehr als ein Haustyp. Sie ist ein Statement für Klarheit, Großzügigkeit und zeitlose Architektur.
Zwei vollwertige Geschosse schaffen ein Wohngefühl ohne Schrägen, ohne Kompromisse, ohne verschenkte Fläche. Die individuell wählbare Raumhöhe verstärkt dieses Gefühl von Weite und Eleganz und sorgt für eine Atmosphäre, die man nicht nur sieht, sondern spürt.
Die Architektur ist modern, klar und wertig. Große, auf das Wohnkonzept abgestimmte Fensterflächen durchfluten die Räume mit Tageslicht und verbinden Innen und Außen auf natürliche Weise. Jeder Raum wirkt offen, hell und ruhig.
Das gedämmte Dach (= Walm- & Satteldach) rundet die Stadtvilla nicht nur optisch ab, sondern schafft zusätzlich sinnvollen Stauraum. Technik, Koffer, Erinnerungen. Alles findet seinen Platz, ohne Ihren Wohnraum zu stören. Bei einer Flachdachvariante haben Sie den Vorteil, dass Sie die Photovoltaikanlage perfekt ausrichten können.
Diese Stadtvilla ist kein starres Konzept, sondern eine Basis. Grundriss, Architektur, Raumaufteilung und Ausstattung lassen sich individuell an Ihre Wünsche anpassen. Ob offener Wohnbereich, Homeoffice, Gästezimmer oder Ankleide. Ihr Leben bestimmt den Plan, nicht umgekehrt.
Bei diesem Exposé handelt es sich um eine Musterkalkulation. Sie dient als Orientierung und Inspiration. Architektur, Hausgröße, Ausstattung und Ausbaustufe werden gemeinsam so gestaltet, dass Ihr persönliches Zuhause entsteht.
Wenn Sie eine Stadtvilla suchen, die nicht von der Stange ist, sondern Haltung zeigt, dann ist dieses Konzept ein sehr guter Anfang.
Zwei vollwertige Geschosse schaffen ein Wohngefühl ohne Schrägen, ohne Kompromisse, ohne verschenkte Fläche. Die individuell wählbare Raumhöhe verstärkt dieses Gefühl von Weite und Eleganz und sorgt für eine Atmosphäre, die man nicht nur sieht, sondern spürt.
Die Architektur ist modern, klar und wertig. Große, auf das Wohnkonzept abgestimmte Fensterflächen durchfluten die Räume mit Tageslicht und verbinden Innen und Außen auf natürliche Weise. Jeder Raum wirkt offen, hell und ruhig.
Das gedämmte Dach (= Walm- & Satteldach) rundet die Stadtvilla nicht nur optisch ab, sondern schafft zusätzlich sinnvollen Stauraum. Technik, Koffer, Erinnerungen. Alles findet seinen Platz, ohne Ihren Wohnraum zu stören. Bei einer Flachdachvariante haben Sie den Vorteil, dass Sie die Photovoltaikanlage perfekt ausrichten können.
Diese Stadtvilla ist kein starres Konzept, sondern eine Basis. Grundriss, Architektur, Raumaufteilung und Ausstattung lassen sich individuell an Ihre Wünsche anpassen. Ob offener Wohnbereich, Homeoffice, Gästezimmer oder Ankleide. Ihr Leben bestimmt den Plan, nicht umgekehrt.
Bei diesem Exposé handelt es sich um eine Musterkalkulation. Sie dient als Orientierung und Inspiration. Architektur, Hausgröße, Ausstattung und Ausbaustufe werden gemeinsam so gestaltet, dass Ihr persönliches Zuhause entsteht.
Wenn Sie eine Stadtvilla suchen, die nicht von der Stange ist, sondern Haltung zeigt, dann ist dieses Konzept ein sehr guter Anfang.
Ausstattungsmerkmale
| Anzahl der Etagen im Haus | 2 |
| Küche | Einbauküche |
| Bad | 2 |
Ein Haus überzeugt nicht durch Prospekte. Es überzeugt morgens im Bad. Abends im Wohnzimmer. Im Raumklima. In den Nebenkosten. Im Gefühl, dass alles stimmig ist.
Ihr Streif Haus wird grundsätzlich als hocheffizientes KfW-40-Haus realisiert. Das bedeutet nicht nur niedrigen Energieverbrauch, sondern langfristige Sicherheit, Förderfähigkeit und echte Zukunftstauglichkeit. Modernste Wärmepumpentechnik, zentral gesteuerte Be- und Entlüftung mit Wärmerückgewinnung und auf Wunsch eine leistungsstarke Photovoltaikanlage mit Batteriespeicher und Wallbox. Technik, die leise im Hintergrund arbeitet und Ihren Alltag spürbar angenehmer macht.
Sie entscheiden, wie viel Sie selbst übernehmen möchten. Vom Ausbauhaus bis zur schlüsselfertigen Übergabe. Im Exposé in der Ausbaustufe Fast-Fertig-Plus kalkuliert, ist dieses technisch fertiggestellt inklusive Bäder. Ideal für alle, die Eigenleistung einbringen möchten, ohne auf Qualität und Planungssicherheit zu verzichten.
Auch bei der Ausstattung gibt es keine starren Linien. Mit verschiedenen Ausstattungspaketen von gehoben bis exklusiv gestalten Sie Ihr Zuhause nach Ihrem Anspruch. Hochwertige Materialien namhafter Markenhersteller, eine große Auswahl an Oberflächen, Sanitärobjekten, Türen, Treppen und technischen Lösungen. Dazu eine regionale Ausstellung, in der Sie sehen, fühlen und vergleichen können, statt nur zu blättern.
Gedämmte Bodenplatte mit Frostschürze ist bereits inklusive. Auf Wunsch realisieren wir Ihr Haus auch mit Nutz- oder Wohnkeller. Die Treppen entstehen in der hauseigenen Produktion in Weinsheim. Die Fassade gestalten Sie modern mit Putz, Holz oder Klinker, inklusive vollflächiger Gewebearmierung für dauerhafte Substanz.
Ob klare Architektur oder warme Wohnlichkeit. Ob technisch reduziert oder maximal ausgestattet. Ihr Haus entsteht so, wie es zu Ihrem Leben passt.
Wenn Sie ein Zuhause wollen, das heute begeistert und morgen noch überzeugt, dann lassen Sie uns über Ihre Ausstattung sprechen.
Ich berate Sie persönlich und transparent.
Die gezeigten Bilder können Anbauteile zeigen, welche nicht im angegebenen Preis enthalten sind. Es besteht kein Rechtsanspruch.
Ihr Streif Haus wird grundsätzlich als hocheffizientes KfW-40-Haus realisiert. Das bedeutet nicht nur niedrigen Energieverbrauch, sondern langfristige Sicherheit, Förderfähigkeit und echte Zukunftstauglichkeit. Modernste Wärmepumpentechnik, zentral gesteuerte Be- und Entlüftung mit Wärmerückgewinnung und auf Wunsch eine leistungsstarke Photovoltaikanlage mit Batteriespeicher und Wallbox. Technik, die leise im Hintergrund arbeitet und Ihren Alltag spürbar angenehmer macht.
Sie entscheiden, wie viel Sie selbst übernehmen möchten. Vom Ausbauhaus bis zur schlüsselfertigen Übergabe. Im Exposé in der Ausbaustufe Fast-Fertig-Plus kalkuliert, ist dieses technisch fertiggestellt inklusive Bäder. Ideal für alle, die Eigenleistung einbringen möchten, ohne auf Qualität und Planungssicherheit zu verzichten.
Auch bei der Ausstattung gibt es keine starren Linien. Mit verschiedenen Ausstattungspaketen von gehoben bis exklusiv gestalten Sie Ihr Zuhause nach Ihrem Anspruch. Hochwertige Materialien namhafter Markenhersteller, eine große Auswahl an Oberflächen, Sanitärobjekten, Türen, Treppen und technischen Lösungen. Dazu eine regionale Ausstellung, in der Sie sehen, fühlen und vergleichen können, statt nur zu blättern.
Gedämmte Bodenplatte mit Frostschürze ist bereits inklusive. Auf Wunsch realisieren wir Ihr Haus auch mit Nutz- oder Wohnkeller. Die Treppen entstehen in der hauseigenen Produktion in Weinsheim. Die Fassade gestalten Sie modern mit Putz, Holz oder Klinker, inklusive vollflächiger Gewebearmierung für dauerhafte Substanz.
Ob klare Architektur oder warme Wohnlichkeit. Ob technisch reduziert oder maximal ausgestattet. Ihr Haus entsteht so, wie es zu Ihrem Leben passt.
Wenn Sie ein Zuhause wollen, das heute begeistert und morgen noch überzeugt, dann lassen Sie uns über Ihre Ausstattung sprechen.
Ich berate Sie persönlich und transparent.
Die gezeigten Bilder können Anbauteile zeigen, welche nicht im angegebenen Preis enthalten sind. Es besteht kein Rechtsanspruch.
Sonstige Informationen
Wer ein Haus baut, baut nicht einfach nur vier Wände. Er schafft einen Ort, an dem Familie wächst, Ruhe einkehrt, Zukunft beginnt. So versteht Streif Hausbau!
Seit mehr als 95 Jahren realisiert Streif individuelle Häuser in nachhaltiger Holzständerbauweise. Fast 100.000 Bauvorhaben deutschlandweit, tausende davon hier in der Region. Produziert wird in Weinsheim bei Prüm, mitten in der Eifel. Regional, auf kurzem Weg zugänglich, kein anonymer Konzern.
Streif baut ausschließlich moderne Energiesparhäuser. Förderfähig, zinsvergünstigt, auf langfristige Kostenersparnis ausgelegt. Hochwertige Materialien, klare Abläufe, transparente Bauabwicklung. Von der ersten Skizze bis zur Schlüsselübergabe haben Sie einen festen Ansprechpartner vor Ort.
Durch die industrielle Vorfertigung im Werk entsteht Ihr Haus wetterunabhängig und auf den Millimeter genau. Auf Ihrem Bauplatz steht Ihr Zuhause innerhalb weniger Tage. Von Beginn an planbar, sauber & strukturiert. Streif tritt für Sie und Ihre Familie bei allen Gewerken in Vorleistung und steht zu verbindlichen Festpreis- und Terminzusagen. Das schafft Ihnen Sicherheit, bevor der erste Spatenstich erfolgt.
Ob Einfamilienhaus, Mehrfamilienhaus, Renditeobjekt oder gewerbliches Objekt, Streif plant individuell, modern und zukunftsorientiert. Auch als Ferien- oder Wochenendhaus. Sie können Ihr Haus aktiv mitgestalten, von der Architektur bis zur Ausstattung. Auf Wunsch schlüsselfertig oder mit Eigenleistung. Selbstverständlich auch mit Vorbemusterung und persönlichen Werkterminen.
Streif baut auf Vertrauen.
Wenn Sie nicht einfach nur bauen möchten, sondern sich auch gut aufgehoben wissen wollen, dann lassen Sie uns persönlich miteinander sprechen. Ein direktes Gespräch ist immer der beste Anfang.
Yannick Demmerath
0151 / 7050 7708 - yannick.demmerath@streif.de
Seit mehr als 95 Jahren realisiert Streif individuelle Häuser in nachhaltiger Holzständerbauweise. Fast 100.000 Bauvorhaben deutschlandweit, tausende davon hier in der Region. Produziert wird in Weinsheim bei Prüm, mitten in der Eifel. Regional, auf kurzem Weg zugänglich, kein anonymer Konzern.
Streif baut ausschließlich moderne Energiesparhäuser. Förderfähig, zinsvergünstigt, auf langfristige Kostenersparnis ausgelegt. Hochwertige Materialien, klare Abläufe, transparente Bauabwicklung. Von der ersten Skizze bis zur Schlüsselübergabe haben Sie einen festen Ansprechpartner vor Ort.
Durch die industrielle Vorfertigung im Werk entsteht Ihr Haus wetterunabhängig und auf den Millimeter genau. Auf Ihrem Bauplatz steht Ihr Zuhause innerhalb weniger Tage. Von Beginn an planbar, sauber & strukturiert. Streif tritt für Sie und Ihre Familie bei allen Gewerken in Vorleistung und steht zu verbindlichen Festpreis- und Terminzusagen. Das schafft Ihnen Sicherheit, bevor der erste Spatenstich erfolgt.
Ob Einfamilienhaus, Mehrfamilienhaus, Renditeobjekt oder gewerbliches Objekt, Streif plant individuell, modern und zukunftsorientiert. Auch als Ferien- oder Wochenendhaus. Sie können Ihr Haus aktiv mitgestalten, von der Architektur bis zur Ausstattung. Auf Wunsch schlüsselfertig oder mit Eigenleistung. Selbstverständlich auch mit Vorbemusterung und persönlichen Werkterminen.
Streif baut auf Vertrauen.
Wenn Sie nicht einfach nur bauen möchten, sondern sich auch gut aufgehoben wissen wollen, dann lassen Sie uns persönlich miteinander sprechen. Ein direktes Gespräch ist immer der beste Anfang.
Yannick Demmerath
0151 / 7050 7708 - yannick.demmerath@streif.de
Karte wird geladen...
Objektstandort
54329 Konz
Lage & Infrastruktur
Objektstandort
54329 Konz
Konz-Obermennig liegt ruhig und idyllisch im Grünen, nur wenige Minuten von der Stadt Konz entfernt. Der Ort verbindet ländliches Wohnen mit der Nähe zu städtischer Infrastruktur.
Perfekt für Familien und Paare, die Wert auf Ruhe und Natur legen, ohne auf Komfort zu verzichten. Durch den Glasfaserausbau ist Obermennig digital bestens angebunden. In Konz selbst finden sich Einkaufsmöglichkeiten, Schulen, Ärzte und ein vielfältiges Freizeitangebot, alles schnell erreichbar. So vereint Obermennig die Ruhe des Landlebens mit der Lebensqualität einer gut angebundenen Stadtlage.
Perfekt für Familien und Paare, die Wert auf Ruhe und Natur legen, ohne auf Komfort zu verzichten. Durch den Glasfaserausbau ist Obermennig digital bestens angebunden. In Konz selbst finden sich Einkaufsmöglichkeiten, Schulen, Ärzte und ein vielfältiges Freizeitangebot, alles schnell erreichbar. So vereint Obermennig die Ruhe des Landlebens mit der Lebensqualität einer gut angebundenen Stadtlage.
Kontaktanfrage senden
Über den Anbieter
STREIF Haus GmbH
Josef-Streif-Straße 1
54595 Weinsheim
Kontakt
| Telefon | +49 151 70507708 |
| Mobil | +49 151 70507708 |
| Website | www.streif.de |
Ansprechpartner/in
Herr Yannick Demmerath