Behagliches Wohnen auf einer Ebene mit vielseitigen Nutzungsreserven im Untergeschoss
475.000 €
Kaufpreis
197 m²
Wohnfläche
5
Zimmer
immobilien.de Nr.: 9439003
Objektnummer: 396951
Kaufpreis
| Kaufpreis | 475.000 € |
| Maklerprovision | keine Provision, courtagefrei |
Wohnfläche, Grundstück & Bausubstanz
| Wohnfläche | 197 m² |
| Grundstücksfläche | 390,6 m² |
| Zimmer | 5 |
| Baujahr | 1982 |
| Verfügbar ab | sofort |
| Zustand | Teil Vollrenovierungsbed |
Energie
| Energieausweistyp | Verbrauch |
| Energieeffizienzklasse | D |
| Energieverbrauchkennwert | 123 kWh/(m²*a) |
| Heizungsart | Zentralheizung |
| Energieträger/Befeuerung | Öl |
Beschreibung der Immobilie
Dieser großzügige Bungalow in Massivbauweise verbindet behagliches Wohnen auf einer Ebene mit vielseitigen Nutzungsmöglichkeiten im Untergeschoss. Auf rund 197 m² Wohnfläche und einem Grundstück von ca. 390 m² bietet das Haus ideale Bedingungen für Familien, Paare oder Menschen, die Wohnen und Arbeiten kombinieren möchten. Die ruhige Lage am Ortsrand von Bammental, eingebettet in eine gepflegte Nachbarschaft, verbindet naturnahes Wohnen mit hervorragender Anbindung an Heidelberg und die Metropolregion Rhein-Neckar.
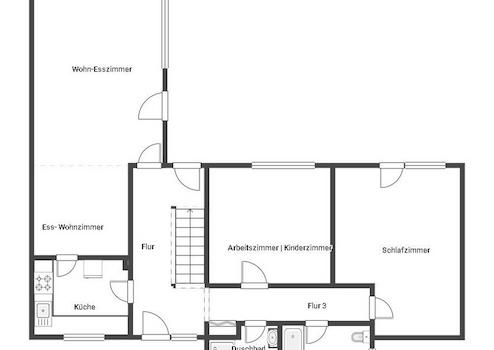
Wohnen auf einer Ebene
Das Erdgeschoss überzeugt durch einen durchdachten Grundriss mit kurzen Wegen, viel Tageslicht und direktem Zugang in den sonnigen Südgarten. Mittelpunkt des Hauses ist der großzügige Wohn- und Essbereich mit großen Fensterfronten und Zugang zur Terrasse – ideal für gesellige Abende oder entspannte Stunden im Grünen.
Die Küche (Einbauküche ohne Wertansatz) bietet Raum für Alltagskomfort und kreative Kochideen. Zwei Schlafzimmer lassen sich flexibel als Eltern-, Kinder- oder Arbeitszimmer nutzen; eines verfügt über einen direkten Gartenzugang. Zwei helle Tageslichtbäder – jeweils mit Badewanne oder Dusche – runden das Raumangebot ab und bieten Potenzial für moderne Wellnessbäder.
Flexibles Untergeschoss mit separatem Zugang
Das Untergeschoss eröffnet zahlreiche Möglichkeiten für Wohnen, Arbeiten oder Hobby. Zwei großzügige Zimmer mit Tageslicht bieten sich als Homeoffice, Gästezimmer oder Rückzugsbereich für Jugendliche an. Dank des separaten Eingangs lässt sich dieser Bereich auch teilweise unabhängig nutzen – etwa für freiberufliche Tätigkeiten oder ein Mehrgenerationenkonzept.
Ein vorbereitetes Badezimmer kann mit geringem Aufwand reaktiviert werden. Ergänzt wird die Etage durch praktische Nebenräume wie Heizungsraum, Vorrats- und Abstellflächen. Die gute Raumhöhe und Belichtung schaffen eine wohnliche Atmosphäre, die weit über typische Untergeschoßräume hinausgeht.
Sonniger Garten und große Terrasse
Der Außenbereich ist ein echtes Highlight: Die rund 44 m² große, windgeschützte Südterrasse schließt direkt an den Wohnbereich an und erweitert den Lebensraum ins Freie. Eine überdachte Teilfläche und zwei elektrische Markisen sorgen für Komfort bei jedem Wetter.
Der liebevoll angelegte Garten bietet Platz zum Entspannen, Spielen oder Feiern – eine private Oase mit idealer Südausrichtung und angenehmem Mikroklima. Ein Gartenhaus bietet zusätzlichen Stauraum für Geräte, Fahrräder oder Hobbys.
Fazit
Diese Immobilie überzeugt durch Lage, Substanz und Potenzial. Sie bietet großzügiges, barrierearmes Wohnen auf einer Ebene, verbunden mit flexiblen Erweiterungsmöglichkeiten im Untergeschoss. Mit überschaubarem Aufwand lässt sich hier ein modernes Zuhause schaffen, das individuelle Wohnträume wahr werden lässt.
Wohnen auf einer Ebene
Das Erdgeschoss überzeugt durch einen durchdachten Grundriss mit kurzen Wegen, viel Tageslicht und direktem Zugang in den sonnigen Südgarten. Mittelpunkt des Hauses ist der großzügige Wohn- und Essbereich mit großen Fensterfronten und Zugang zur Terrasse – ideal für gesellige Abende oder entspannte Stunden im Grünen.
Die Küche (Einbauküche ohne Wertansatz) bietet Raum für Alltagskomfort und kreative Kochideen. Zwei Schlafzimmer lassen sich flexibel als Eltern-, Kinder- oder Arbeitszimmer nutzen; eines verfügt über einen direkten Gartenzugang. Zwei helle Tageslichtbäder – jeweils mit Badewanne oder Dusche – runden das Raumangebot ab und bieten Potenzial für moderne Wellnessbäder.
Flexibles Untergeschoss mit separatem Zugang
Das Untergeschoss eröffnet zahlreiche Möglichkeiten für Wohnen, Arbeiten oder Hobby. Zwei großzügige Zimmer mit Tageslicht bieten sich als Homeoffice, Gästezimmer oder Rückzugsbereich für Jugendliche an. Dank des separaten Eingangs lässt sich dieser Bereich auch teilweise unabhängig nutzen – etwa für freiberufliche Tätigkeiten oder ein Mehrgenerationenkonzept.
Ein vorbereitetes Badezimmer kann mit geringem Aufwand reaktiviert werden. Ergänzt wird die Etage durch praktische Nebenräume wie Heizungsraum, Vorrats- und Abstellflächen. Die gute Raumhöhe und Belichtung schaffen eine wohnliche Atmosphäre, die weit über typische Untergeschoßräume hinausgeht.
Sonniger Garten und große Terrasse
Der Außenbereich ist ein echtes Highlight: Die rund 44 m² große, windgeschützte Südterrasse schließt direkt an den Wohnbereich an und erweitert den Lebensraum ins Freie. Eine überdachte Teilfläche und zwei elektrische Markisen sorgen für Komfort bei jedem Wetter.
Der liebevoll angelegte Garten bietet Platz zum Entspannen, Spielen oder Feiern – eine private Oase mit idealer Südausrichtung und angenehmem Mikroklima. Ein Gartenhaus bietet zusätzlichen Stauraum für Geräte, Fahrräder oder Hobbys.
Fazit
Diese Immobilie überzeugt durch Lage, Substanz und Potenzial. Sie bietet großzügiges, barrierearmes Wohnen auf einer Ebene, verbunden mit flexiblen Erweiterungsmöglichkeiten im Untergeschoss. Mit überschaubarem Aufwand lässt sich hier ein modernes Zuhause schaffen, das individuelle Wohnträume wahr werden lässt.
Ausstattungsmerkmale
| Anzahl der Etagen im Haus | 2 |
| Küche | Einbauküche |
| Bad | 3 |
| Bad | Dusche, Wanne |
| Boden | Fliesen |
| Balkone | 0 |
| Garten | |
| Terrassen | 1 |
| Garage/Stellplätze | 1 |
| Keller |
Terrasse, Garten, Keller, Vollbad, Duschbad, Einbauküche, Gäste-WC, Fliesen
Bemerkungen:
Die Immobilie ist mit einer Öl-Zentralheizung (Anlagentechnik 2017) ausgestattet. Der Energieausweis weist einen Verbrauchswert von 123,4 kWh/(m²·a) und die Energieeffizienzklasse D aus – solide Werte, die eine gute Basis für künftige Modernisierungen bieten.
Die Grundstücksfläche von insgesamt 390,6 m² gliedert sich in:
Hausgrundstück: ca. 325 m²
Garagengrundstück: ca. 36 m²
Anteil am Vorplatz der Garagen: ca. 29,6 m² (2/5 MEA)
Die Sanierungshistorie unterstreicht die laufende Pflege des Objekts:
1995: Garten eingefriedet durch gemauerte Umgrenzung
1999: Errichtung der Terrasse (Stahlbetonplatte) mit hochwertiger Porphyr-Belagung
2008: Dach neu belegt (ausgenommen Freisitzüberdachung)
2017: Heizungsanlage erneuert
Die Ausstattung überzeugt durch eine stabile Bausubstanz, funktionale Raumaufteilung und zahlreiche Gestaltungsmöglichkeiten. Mit ihrer Kombination aus großzügigen Wohnflächen, sonnigem Garten, praktischen Nebenräumen und moderner Heiztechnik bietet diese Immobilie alles, was ein komfortables Zuhause ausmacht – und zugleich Potenzial für individuelle Modernisierungswünsche.
Bemerkungen:
Die Immobilie ist mit einer Öl-Zentralheizung (Anlagentechnik 2017) ausgestattet. Der Energieausweis weist einen Verbrauchswert von 123,4 kWh/(m²·a) und die Energieeffizienzklasse D aus – solide Werte, die eine gute Basis für künftige Modernisierungen bieten.
Die Grundstücksfläche von insgesamt 390,6 m² gliedert sich in:
Hausgrundstück: ca. 325 m²
Garagengrundstück: ca. 36 m²
Anteil am Vorplatz der Garagen: ca. 29,6 m² (2/5 MEA)
Die Sanierungshistorie unterstreicht die laufende Pflege des Objekts:
1995: Garten eingefriedet durch gemauerte Umgrenzung
1999: Errichtung der Terrasse (Stahlbetonplatte) mit hochwertiger Porphyr-Belagung
2008: Dach neu belegt (ausgenommen Freisitzüberdachung)
2017: Heizungsanlage erneuert
Die Ausstattung überzeugt durch eine stabile Bausubstanz, funktionale Raumaufteilung und zahlreiche Gestaltungsmöglichkeiten. Mit ihrer Kombination aus großzügigen Wohnflächen, sonnigem Garten, praktischen Nebenräumen und moderner Heiztechnik bietet diese Immobilie alles, was ein komfortables Zuhause ausmacht – und zugleich Potenzial für individuelle Modernisierungswünsche.
Sonstige Informationen
Heizungsart: Zentralheizung
Energieträger: Öl
Makleranfragen nicht erwünscht. Nach § 7 UWG sind unaufgeforderte Kontaktaufnahmen durch Makler ohne ausdrückliche Einwilligung des Empfängers verboten!
ohne-makler (OM) ist weder Anbieter noch Vermittler der Immobilie. OM betreibt eine Plattform für Immobilieneigentümer, die unter anderem die gleichzeitige Veröffentlichung einzelner Inserate auf mehreren Immobilienportalen ermöglicht. Die Inhalte dieser Inserate werden ausschließlich von Dritten verantwortet. Für die Richtigkeit, Vollständigkeit oder Rechtmäßigkeit der Angaben übernimmt OM keine Haftung. Hinweise auf mögliche Rechtsverstöße können jederzeit gemeldet werden und werden nach Prüfung umgehend bearbeitet.
Energieträger: Öl
Makleranfragen nicht erwünscht. Nach § 7 UWG sind unaufgeforderte Kontaktaufnahmen durch Makler ohne ausdrückliche Einwilligung des Empfängers verboten!
ohne-makler (OM) ist weder Anbieter noch Vermittler der Immobilie. OM betreibt eine Plattform für Immobilieneigentümer, die unter anderem die gleichzeitige Veröffentlichung einzelner Inserate auf mehreren Immobilienportalen ermöglicht. Die Inhalte dieser Inserate werden ausschließlich von Dritten verantwortet. Für die Richtigkeit, Vollständigkeit oder Rechtmäßigkeit der Angaben übernimmt OM keine Haftung. Hinweise auf mögliche Rechtsverstöße können jederzeit gemeldet werden und werden nach Prüfung umgehend bearbeitet.
Karte wird geladen...
Objektstandort
69245 Bammental
- Baden-Württemberg
Lage & Infrastruktur
Objektstandort
69245 Bammental
- Baden-Württemberg
Die Immobilie befindet sich in der Lehárstraße am ruhigen Ortsrand von Bammental, einer besonders begehrten Wohnlage im südlichen Rhein-Neckar-Kreis. Hier verbindet sich die Idylle einer naturnahen Gemeinde mit der unmittelbaren Nähe zur Universitätsstadt Heidelberg, die nur wenige Fahrminuten entfernt liegt. Damit bietet der Standort das Beste aus zwei Welten: ein grünes, familienfreundliches Umfeld mit hoher Lebensqualität und zugleich eine exzellente Anbindung an die wirtschaftlich starke Metropolregion Rhein-Neckar.
Ruhiges Wohnen in idyllischer Umgebung
Die Lehárstraße ist eine verkehrsarme Sackgasse, geprägt von gepflegten Einfamilienhäusern und Gärten – ein Umfeld, das Sicherheit und Geborgenheit ausstrahlt. Hier lebt man in einer gewachsenen, sympathischen Nachbarschaft, in der sich Kinder unbeschwert bewegen können und Paare oder Berufstätige gleichermaßen Ruhe und Erholung finden.
Dank der Randlage genießen die Bewohner viel Privatsphäre, frische Luft und direkten Zugang zur Natur: Spazier- und Radwege führen in wenigen Schritten in den Naturpark Neckartal-Odenwald, der mit seinen Wäldern und Tälern ein Paradies für Naturliebhaber, Jogger und Radfahrer ist. Gleichzeitig liegt das Ortszentrum mit allen wichtigen Einrichtungen in angenehmer Nähe – eine seltene Kombination von Ruhe und Zentralität.
Beste Infrastruktur im Alltag
Trotz der ruhigen Lage ist die Versorgungsinfrastruktur hervorragend: Supermärkte wie Rewe, Edeka oder Netto, Bäckereien, Metzgereien, Apotheken, Ärzte, Restaurants und Cafés sind teils fußläufig erreichbar. Das Ortszentrum von Bammental ist nur etwa 870 Meter entfernt.
Familien profitieren von einem breiten Bildungsangebot direkt vor Ort: mehrere Kindergärten, die Elsenztalschule sowie das Gymnasium Bammental bieten kurze Wege und hohe pädagogische Qualität. Für internationale Ansprüche steht zudem das renommierte Kurpfalz-Internat zur Verfügung – ein Pluspunkt für Familien, die Wert auf Bildung und Betreuung legen.
Optimale Verkehrsanbindung
Pendler und Städter profitieren von einer ausgezeichneten Verkehrsanbindung: Der S-Bahn-Haltepunkt Reilsheim liegt in unmittelbarer Nähe und ermöglicht eine schnelle Verbindung nach Heidelberg in rund zehn Minuten. Auch Mannheim oder Sinsheim sind bequem erreichbar.
Für Autofahrer sind die Bundesstraße B45 sowie die Autobahnen A5 und A6 in 10–15 Minuten zu erreichen, wodurch sich sowohl berufliche als auch private Ziele in der Region flexibel ansteuern lassen. So verbindet Bammental ruhiges Wohnen im Grünen mit urbaner Mobilität – ideal für alle, die Stadt und Natur gleichermaßen schätzen.
Freizeit, Kultur und Lebensqualität
Neben der guten Anbindung überzeugt Bammental durch ein vielfältiges Freizeit- und Kulturangebot. Das idyllische Waldschwimmbad sorgt im Sommer für Erfrischung, und ein reges Vereinsleben schafft Gemeinschaft und Zusammenhalt.
Der nahe Naturpark Neckartal-Odenwald eröffnet unzählige Möglichkeiten zum Wandern, Radfahren und Entspannen in herrlicher Landschaft. Historische Städte wie Heidelberg, Neckargemünd und Sinsheim liegen in der Umgebung und bieten kulturelle Abwechslung, Museen, Theater, Konzerte und Gastronomie auf hohem Niveau.
Fazit
Die Lage vereint, was selten zusammenkommt: Ruhe, Natur und Nachbarschaftsqualität – verbunden mit bester Infrastruktur und kurzen Wegen in die Stadt. Ob Familie, Paar oder Berufspendler: Wer in der Lehárstraße in Bammental lebt, genießt ein Zuhause, das Geborgenheit, Komfort und Zukunftssicherheit vereint.
Infrastruktur (im Umkreis von 5 km):
Apotheke, Lebensmittel-Discount, Allgemeinmediziner, Kindergarten, Grundschule, Hauptschule, Realschule, Gymnasium, Gesamtschule, Öffentliche Verkehrsmittel
Ruhiges Wohnen in idyllischer Umgebung
Die Lehárstraße ist eine verkehrsarme Sackgasse, geprägt von gepflegten Einfamilienhäusern und Gärten – ein Umfeld, das Sicherheit und Geborgenheit ausstrahlt. Hier lebt man in einer gewachsenen, sympathischen Nachbarschaft, in der sich Kinder unbeschwert bewegen können und Paare oder Berufstätige gleichermaßen Ruhe und Erholung finden.
Dank der Randlage genießen die Bewohner viel Privatsphäre, frische Luft und direkten Zugang zur Natur: Spazier- und Radwege führen in wenigen Schritten in den Naturpark Neckartal-Odenwald, der mit seinen Wäldern und Tälern ein Paradies für Naturliebhaber, Jogger und Radfahrer ist. Gleichzeitig liegt das Ortszentrum mit allen wichtigen Einrichtungen in angenehmer Nähe – eine seltene Kombination von Ruhe und Zentralität.
Beste Infrastruktur im Alltag
Trotz der ruhigen Lage ist die Versorgungsinfrastruktur hervorragend: Supermärkte wie Rewe, Edeka oder Netto, Bäckereien, Metzgereien, Apotheken, Ärzte, Restaurants und Cafés sind teils fußläufig erreichbar. Das Ortszentrum von Bammental ist nur etwa 870 Meter entfernt.
Familien profitieren von einem breiten Bildungsangebot direkt vor Ort: mehrere Kindergärten, die Elsenztalschule sowie das Gymnasium Bammental bieten kurze Wege und hohe pädagogische Qualität. Für internationale Ansprüche steht zudem das renommierte Kurpfalz-Internat zur Verfügung – ein Pluspunkt für Familien, die Wert auf Bildung und Betreuung legen.
Optimale Verkehrsanbindung
Pendler und Städter profitieren von einer ausgezeichneten Verkehrsanbindung: Der S-Bahn-Haltepunkt Reilsheim liegt in unmittelbarer Nähe und ermöglicht eine schnelle Verbindung nach Heidelberg in rund zehn Minuten. Auch Mannheim oder Sinsheim sind bequem erreichbar.
Für Autofahrer sind die Bundesstraße B45 sowie die Autobahnen A5 und A6 in 10–15 Minuten zu erreichen, wodurch sich sowohl berufliche als auch private Ziele in der Region flexibel ansteuern lassen. So verbindet Bammental ruhiges Wohnen im Grünen mit urbaner Mobilität – ideal für alle, die Stadt und Natur gleichermaßen schätzen.
Freizeit, Kultur und Lebensqualität
Neben der guten Anbindung überzeugt Bammental durch ein vielfältiges Freizeit- und Kulturangebot. Das idyllische Waldschwimmbad sorgt im Sommer für Erfrischung, und ein reges Vereinsleben schafft Gemeinschaft und Zusammenhalt.
Der nahe Naturpark Neckartal-Odenwald eröffnet unzählige Möglichkeiten zum Wandern, Radfahren und Entspannen in herrlicher Landschaft. Historische Städte wie Heidelberg, Neckargemünd und Sinsheim liegen in der Umgebung und bieten kulturelle Abwechslung, Museen, Theater, Konzerte und Gastronomie auf hohem Niveau.
Fazit
Die Lage vereint, was selten zusammenkommt: Ruhe, Natur und Nachbarschaftsqualität – verbunden mit bester Infrastruktur und kurzen Wegen in die Stadt. Ob Familie, Paar oder Berufspendler: Wer in der Lehárstraße in Bammental lebt, genießt ein Zuhause, das Geborgenheit, Komfort und Zukunftssicherheit vereint.
Infrastruktur (im Umkreis von 5 km):
Apotheke, Lebensmittel-Discount, Allgemeinmediziner, Kindergarten, Grundschule, Hauptschule, Realschule, Gymnasium, Gesamtschule, Öffentliche Verkehrsmittel