Ein Ort zum durchatmen
457.970 €
Kaufpreis
117 m²
Wohnfläche
5
Zimmer
immobilien.de Nr.: 9438483
Objektnummer: FamLOsburg1
Kaufpreis
| Kaufpreis | 457.970 € |
Wohnfläche, Grundstück & Bausubstanz
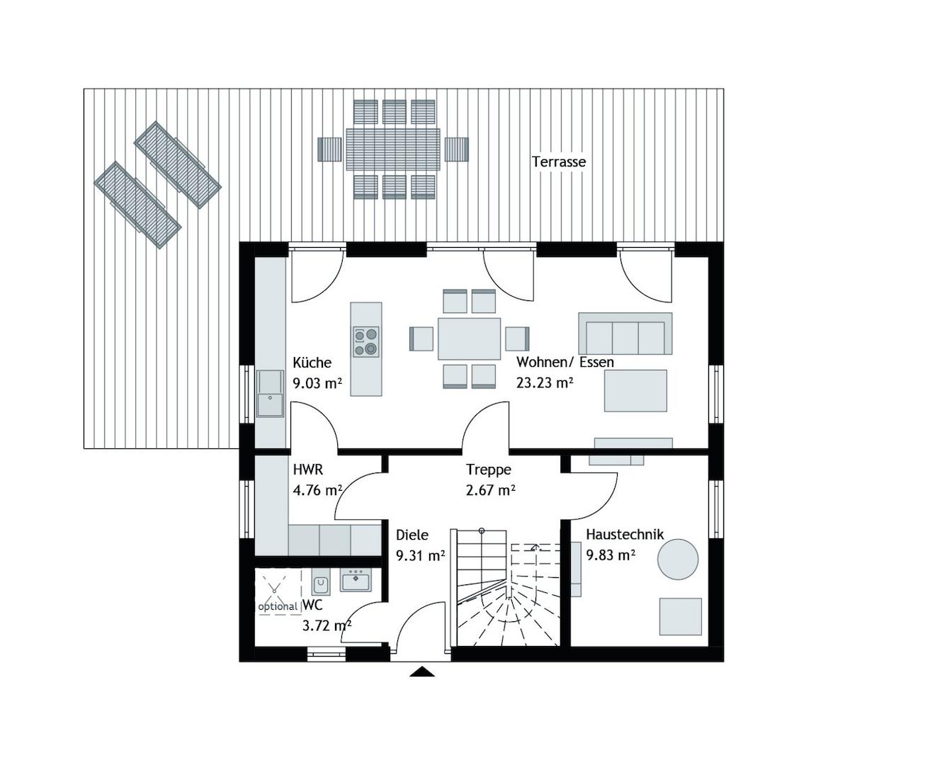
| Wohnfläche | 117 m² |
| Grundstücksfläche | 608 m² |
| Zimmer | 5 |
| Verfügbar ab | keine Angabe |
Energie
| Energieträger/Befeuerung | Luft-Wärme-Pumpe |
Beschreibung der Immobilie
Stellen Sie sich vor, Sie schließen abends Ihre eigene Haustür auf. Der Eingang zu Ihrem Wohlfühlort. Kein Vermieter, keine Nachbarn über Ihnen, kein Gefühl mehr von "nur vorübergehend", sondern ankommen.
Dieses Einfamilienhaus mit modernem Satteldach ist genau für diesen Traum gedacht. Wohnlich, warm, vertraut.
Durch die 1,5-geschossige Bauweise mit individuell planbarem Kniestock entsteht im Obergeschoss ein voll nutzbarer Lebensbereich. Kinderzimmer mit Platz zum Wachsen. Ein ruhiges Schlafzimmer. Vielleicht ein kleines Büro oder Gästezimmer. Viel Stellfläche trotz Kniestock.
Große, durchdacht platzierte Fenster holen das Tageslicht ins Haus. Morgens Sonne in der Küche. Nachmittags Helligkeit im Wohnbereich. Abends ein warmes Gefühl, wenn draußen langsam Ruhe einkehrt. Das Haus arbeitet mit dem Licht, nicht dagegen.
Das Dach schützt nicht nur vor Wind und Wetter, sondern schafft zusätzlich Platz für alles, was man im Alltag braucht, aber nicht ständig sehen will. Koffer. Erinnerungen. Weihnachtskartons. Dinge, die ein Leben mit sich bringt.
Wichtig zu wissen: Dieses Haus ist kein fertiges Produkt. Es ist ein Anfang. Das Exposé zeigt eine mögliche Richtung. Größe, Grundriss, Optik und Ausbaustufe werden so geplant, dass sie zu Ihnen passen. Zu Ihrem Alltag. Zu Ihren Plänen. Zu Ihrem Budget.
Dieses Einfamilienhaus mit modernem Satteldach ist genau für diesen Traum gedacht. Wohnlich, warm, vertraut.
Durch die 1,5-geschossige Bauweise mit individuell planbarem Kniestock entsteht im Obergeschoss ein voll nutzbarer Lebensbereich. Kinderzimmer mit Platz zum Wachsen. Ein ruhiges Schlafzimmer. Vielleicht ein kleines Büro oder Gästezimmer. Viel Stellfläche trotz Kniestock.
Große, durchdacht platzierte Fenster holen das Tageslicht ins Haus. Morgens Sonne in der Küche. Nachmittags Helligkeit im Wohnbereich. Abends ein warmes Gefühl, wenn draußen langsam Ruhe einkehrt. Das Haus arbeitet mit dem Licht, nicht dagegen.
Das Dach schützt nicht nur vor Wind und Wetter, sondern schafft zusätzlich Platz für alles, was man im Alltag braucht, aber nicht ständig sehen will. Koffer. Erinnerungen. Weihnachtskartons. Dinge, die ein Leben mit sich bringt.
Wichtig zu wissen: Dieses Haus ist kein fertiges Produkt. Es ist ein Anfang. Das Exposé zeigt eine mögliche Richtung. Größe, Grundriss, Optik und Ausbaustufe werden so geplant, dass sie zu Ihnen passen. Zu Ihrem Alltag. Zu Ihren Plänen. Zu Ihrem Budget.
Ausstattungsmerkmale
| Anzahl der Etagen im Haus | 1 |
| Küche | Einbauküche |
| Bad | 1 |
Ein Haus überzeugt nicht durch Prospekte. Es überzeugt morgens im Bad. Abends im Wohnzimmer. Im Raumklima. In den Nebenkosten. Im Gefühl, dass alles stimmig ist.
Ihr Streif Haus wird grundsätzlich als hocheffizientes KfW-40-Haus realisiert. Das bedeutet nicht nur niedrigen Energieverbrauch, sondern langfristige Sicherheit, Förderfähigkeit und echte Zukunftstauglichkeit. Modernste Wärmepumpentechnik, zentral gesteuerte Be- und Entlüftung mit Wärmerückgewinnung und auf Wunsch eine leistungsstarke Photovoltaikanlage mit Batteriespeicher und Wallbox. Technik, die leise im Hintergrund arbeitet und Ihren Alltag spürbar angenehmer macht.
Sie entscheiden, wie viel Sie selbst übernehmen möchten. Vom Ausbauhaus bis zur schlüsselfertigen Übergabe. Im Exposé in der Ausbaustufe Fast-Fertig-Plus kalkuliert, ist dieses technisch fertiggestellt inklusive Bäder. Ideal für alle, die Eigenleistung einbringen möchten, ohne auf Qualität und Planungssicherheit zu verzichten.
Auch bei der Ausstattung gibt es keine starren Linien. Mit verschiedenen Ausstattungspaketen von gehoben bis exklusiv gestalten Sie Ihr Zuhause nach Ihrem Anspruch. Hochwertige Materialien namhafter Markenhersteller, eine große Auswahl an Oberflächen, Sanitärobjekten, Türen, Treppen und technischen Lösungen. Dazu eine regionale Ausstellung, in der Sie sehen, fühlen und vergleichen können, statt nur zu blättern.
Gedämmte Bodenplatte mit Frostschürze ist bereits inklusive. Auf Wunsch realisieren wir Ihr Haus auch mit Nutz- oder Wohnkeller. Die Treppen entstehen in der hauseigenen Produktion in Weinsheim. Die Fassade gestalten Sie modern mit Putz, Holz oder Klinker, inklusive vollflächiger Gewebearmierung für dauerhafte Substanz.
Ob klare Architektur oder warme Wohnlichkeit. Ob technisch reduziert oder maximal ausgestattet. Ihr Haus entsteht so, wie es zu Ihrem Leben passt.
Wenn Sie ein Zuhause wollen, das heute begeistert und morgen noch überzeugt, dann lassen Sie uns über Ihre Ausstattung sprechen.
Ich berate Sie persönlich und transparent.
Die gezeigten Bilder können Anbauteile zeigen, welche nicht im angegebenen Preis enthalten sind. Es besteht kein Rechtsanspruch.
Ihr Streif Haus wird grundsätzlich als hocheffizientes KfW-40-Haus realisiert. Das bedeutet nicht nur niedrigen Energieverbrauch, sondern langfristige Sicherheit, Förderfähigkeit und echte Zukunftstauglichkeit. Modernste Wärmepumpentechnik, zentral gesteuerte Be- und Entlüftung mit Wärmerückgewinnung und auf Wunsch eine leistungsstarke Photovoltaikanlage mit Batteriespeicher und Wallbox. Technik, die leise im Hintergrund arbeitet und Ihren Alltag spürbar angenehmer macht.
Sie entscheiden, wie viel Sie selbst übernehmen möchten. Vom Ausbauhaus bis zur schlüsselfertigen Übergabe. Im Exposé in der Ausbaustufe Fast-Fertig-Plus kalkuliert, ist dieses technisch fertiggestellt inklusive Bäder. Ideal für alle, die Eigenleistung einbringen möchten, ohne auf Qualität und Planungssicherheit zu verzichten.
Auch bei der Ausstattung gibt es keine starren Linien. Mit verschiedenen Ausstattungspaketen von gehoben bis exklusiv gestalten Sie Ihr Zuhause nach Ihrem Anspruch. Hochwertige Materialien namhafter Markenhersteller, eine große Auswahl an Oberflächen, Sanitärobjekten, Türen, Treppen und technischen Lösungen. Dazu eine regionale Ausstellung, in der Sie sehen, fühlen und vergleichen können, statt nur zu blättern.
Gedämmte Bodenplatte mit Frostschürze ist bereits inklusive. Auf Wunsch realisieren wir Ihr Haus auch mit Nutz- oder Wohnkeller. Die Treppen entstehen in der hauseigenen Produktion in Weinsheim. Die Fassade gestalten Sie modern mit Putz, Holz oder Klinker, inklusive vollflächiger Gewebearmierung für dauerhafte Substanz.
Ob klare Architektur oder warme Wohnlichkeit. Ob technisch reduziert oder maximal ausgestattet. Ihr Haus entsteht so, wie es zu Ihrem Leben passt.
Wenn Sie ein Zuhause wollen, das heute begeistert und morgen noch überzeugt, dann lassen Sie uns über Ihre Ausstattung sprechen.
Ich berate Sie persönlich und transparent.
Die gezeigten Bilder können Anbauteile zeigen, welche nicht im angegebenen Preis enthalten sind. Es besteht kein Rechtsanspruch.
Sonstige Informationen
Wer ein Haus baut, baut nicht einfach nur vier Wände. Er schafft einen Ort, an dem Familie wächst, Ruhe einkehrt, Zukunft beginnt. So versteht Streif Hausbau!
Seit mehr als 95 Jahren realisiert Streif individuelle Häuser in nachhaltiger Holzständerbauweise. Fast 100.000 Bauvorhaben deutschlandweit, tausende davon hier in der Region. Produziert wird in Weinsheim bei Prüm, mitten in der Eifel. Regional, auf kurzem Weg zugänglich, kein anonymer Konzern.
Streif baut ausschließlich moderne Energiesparhäuser. Förderfähig, zinsvergünstigt, auf langfristige Kostenersparnis ausgelegt. Hochwertige Materialien, klare Abläufe, transparente Bauabwicklung. Von der ersten Skizze bis zur Schlüsselübergabe haben Sie einen festen Ansprechpartner vor Ort.
Durch die industrielle Vorfertigung im Werk entsteht Ihr Haus wetterunabhängig und auf den Millimeter genau. Auf Ihrem Bauplatz steht Ihr Zuhause innerhalb weniger Tage. Von Beginn an planbar, sauber & strukturiert. Streif tritt für Sie und Ihre Familie bei allen Gewerken in Vorleistung und steht zu verbindlichen Festpreis- und Terminzusagen. Das schafft Ihnen Sicherheit, bevor der erste Spatenstich erfolgt.
Ob Einfamilienhaus, Mehrfamilienhaus, Renditeobjekt oder gewerbliches Objekt, Streif plant individuell, modern und zukunftsorientiert. Auch als Ferien- oder Wochenendhaus. Sie können Ihr Haus aktiv mitgestalten, von der Architektur bis zur Ausstattung. Auf Wunsch schlüsselfertig oder mit Eigenleistung. Selbstverständlich auch mit Vorbemusterung und persönlichen Werkterminen.
Streif baut auf Vertrauen.
Wenn Sie nicht einfach nur bauen möchten, sondern sich auch gut aufgehoben wissen wollen, dann lassen Sie uns persönlich miteinander sprechen. Ein direktes Gespräch ist immer der beste Anfang.
Yannick Demmerath
0151 / 7050 7708 - yannick.demmerath@streif.de
Seit mehr als 95 Jahren realisiert Streif individuelle Häuser in nachhaltiger Holzständerbauweise. Fast 100.000 Bauvorhaben deutschlandweit, tausende davon hier in der Region. Produziert wird in Weinsheim bei Prüm, mitten in der Eifel. Regional, auf kurzem Weg zugänglich, kein anonymer Konzern.
Streif baut ausschließlich moderne Energiesparhäuser. Förderfähig, zinsvergünstigt, auf langfristige Kostenersparnis ausgelegt. Hochwertige Materialien, klare Abläufe, transparente Bauabwicklung. Von der ersten Skizze bis zur Schlüsselübergabe haben Sie einen festen Ansprechpartner vor Ort.
Durch die industrielle Vorfertigung im Werk entsteht Ihr Haus wetterunabhängig und auf den Millimeter genau. Auf Ihrem Bauplatz steht Ihr Zuhause innerhalb weniger Tage. Von Beginn an planbar, sauber & strukturiert. Streif tritt für Sie und Ihre Familie bei allen Gewerken in Vorleistung und steht zu verbindlichen Festpreis- und Terminzusagen. Das schafft Ihnen Sicherheit, bevor der erste Spatenstich erfolgt.
Ob Einfamilienhaus, Mehrfamilienhaus, Renditeobjekt oder gewerbliches Objekt, Streif plant individuell, modern und zukunftsorientiert. Auch als Ferien- oder Wochenendhaus. Sie können Ihr Haus aktiv mitgestalten, von der Architektur bis zur Ausstattung. Auf Wunsch schlüsselfertig oder mit Eigenleistung. Selbstverständlich auch mit Vorbemusterung und persönlichen Werkterminen.
Streif baut auf Vertrauen.
Wenn Sie nicht einfach nur bauen möchten, sondern sich auch gut aufgehoben wissen wollen, dann lassen Sie uns persönlich miteinander sprechen. Ein direktes Gespräch ist immer der beste Anfang.
Yannick Demmerath
0151 / 7050 7708 - yannick.demmerath@streif.de
Karte wird geladen...
Objektstandort
54317 Osburg
Lage & Infrastruktur
Objektstandort
54317 Osburg
Osburg verbindet ländliche Ruhe mit einer überraschend starken Infrastruktur. Der Ort bietet eine Grundschule mit Ganztagsbetreuung, eine moderne Kindertagesstätte und eine solide medizinische Grundversorgung. Supermarkt, Bank, Post, Handwerksbetriebe und Gastronomie sind im Ort vorhanden, was den Alltag unkompliziert macht.
Über die Landesstraßen L146, L149 und L151 ist Osburg gut an Trier und die umliegenden Gemeinden angebunden. Der Glasfaserausbau ist abgeschlossen, schnelles Internet ist flächendeckend verfügbar. Mit dem neuen Mitfahrerparkplatz und den Busverbindungen Richtung Trier ist auch für Pendler eine gute Erreichbarkeit gegeben. Dazu kommt die Lage mitten im Naturpark Saar-Hunsrück mit Wanderwegen, Vereinsleben und Platz zum durchatmen.
Osburg bietet also das, was viele suchen: ein voll ausgestattetes Dorf mit hoher Lebensqualität.
Über die Landesstraßen L146, L149 und L151 ist Osburg gut an Trier und die umliegenden Gemeinden angebunden. Der Glasfaserausbau ist abgeschlossen, schnelles Internet ist flächendeckend verfügbar. Mit dem neuen Mitfahrerparkplatz und den Busverbindungen Richtung Trier ist auch für Pendler eine gute Erreichbarkeit gegeben. Dazu kommt die Lage mitten im Naturpark Saar-Hunsrück mit Wanderwegen, Vereinsleben und Platz zum durchatmen.
Osburg bietet also das, was viele suchen: ein voll ausgestattetes Dorf mit hoher Lebensqualität.
Kontaktanfrage senden
Über den Anbieter
STREIF Haus GmbH
Josef-Streif-Straße 1
54595 Weinsheim
Kontakt
| Telefon | +49 151 70507708 |
| Mobil | +49 151 70507708 |
| Website | www.streif.de |
Ansprechpartner/in
Herr Yannick Demmerath