Terrassenwohnung in kernsanierter Villa in Detmold
299.000 €
Kaufpreis
84,3 m²
Wohnfläche
3
Zimmer
immobilien.de Nr.: 9438341
Objektnummer: 409080
Kaufpreis
| Kaufpreis | 299.000 € |
| Maklerprovision | keine Provision, courtagefrei |
| Stellplatz Freiplatz Kaufpreis | 15.000 € |
Wohnfläche, Grundstück & Bausubstanz
| Wohnfläche | 84,3 m² |
| Zimmer | 3 |
| Baujahr | 1905 |
| Verfügbar ab | nach Absprache |
| Zustand | Teil Vollsaniert |
Energie
| Energieausweistyp | Bedarfsausweis |
| Energieeffizienzklasse | B |
| Endenergiebedarf | 58 |
| Heizungsart | Fußbodenheizung |
| Energieträger/Befeuerung | Luft-Wärme-Pumpe |
Beschreibung der Immobilie
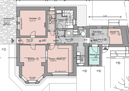
Angeboten wird eine ca. 85 qm große, barrierefreie 3-Zimmerwohnung mit eigenem Eingang und großer Terrasse von 26 qm in der exklusiven Villengegend Friedrichshöhe/Am Königsberg in Detmold-Heiligenkirchen.
Der bauliche Zustand des Gebäudes entspricht einem Neubau, denn sämtliche Leitungen, Böden, Wände, Decken, Bäder, Heizung und das Dach wurden erneuert.
Weitere Infos auch über die anderen Eigentumswohnungen in der Villa finden Sie unter www.villa-sonnenblick.com
Im Zuge der Kernsanierung der Villa "Sonnenblick" hat das Haus eine Energieeffizienklasse B erreicht. Die Villa mit Baujahr 1905 besticht durch Elemente aus der Bauzeit, verbunden mit neuester Technik.
Das Gemeinschaftsgrundstück hat eine Fläche von 802 qm.
Objektzustand: Erstbezug nach Sanierung
Der bauliche Zustand des Gebäudes entspricht einem Neubau, denn sämtliche Leitungen, Böden, Wände, Decken, Bäder, Heizung und das Dach wurden erneuert.
Weitere Infos auch über die anderen Eigentumswohnungen in der Villa finden Sie unter www.villa-sonnenblick.com
Im Zuge der Kernsanierung der Villa "Sonnenblick" hat das Haus eine Energieeffizienklasse B erreicht. Die Villa mit Baujahr 1905 besticht durch Elemente aus der Bauzeit, verbunden mit neuester Technik.
Das Gemeinschaftsgrundstück hat eine Fläche von 802 qm.
Objektzustand: Erstbezug nach Sanierung
Ausstattungsmerkmale
| Anzahl der Etagen im Haus | 3 |
| Küche | Einbauküche |
| Bad | 1 |
| Bad | Dusche |
| Boden | Fliesen |
| Balkone | 0 |
| Garten | |
| Terrassen | 1 |
| Barrierefrei | |
| Keller |
Terrasse, Garten, Keller, Duschbad, Einbauküche, Barrierefrei, Fliesen
Bemerkungen:
Die Wohnung hat eine Fußbodenheizung und Multimediaanschlüsse sowie eine Einbauküche der Fa. Häcker. Das Gebäude verfügt über eine hochmoderne Luftwärmepumpe mit zentraler Warmwasserversorung.
Zur Wohnung gehört eine große Terrasse von 26 qm zur exklusiven Nutzung.
Bemerkungen:
Die Wohnung hat eine Fußbodenheizung und Multimediaanschlüsse sowie eine Einbauküche der Fa. Häcker. Das Gebäude verfügt über eine hochmoderne Luftwärmepumpe mit zentraler Warmwasserversorung.
Zur Wohnung gehört eine große Terrasse von 26 qm zur exklusiven Nutzung.
Sonstige Informationen
Heizungsart: Fußbodenheizung
Energieträger: Luft-/Wasserwärme
Privatverkauf!!
Makleranfragen nicht erwünscht. Nach § 7 UWG sind unaufgeforderte Kontaktaufnahmen durch Makler ohne ausdrückliche Einwilligung des Empfängers verboten!
ohne-makler (OM) ist weder Anbieter noch Vermittler der Immobilie. OM betreibt eine Plattform für Immobilieneigentümer, die unter anderem die gleichzeitige Veröffentlichung einzelner Inserate auf mehreren Immobilienportalen ermöglicht. Die Inhalte dieser Inserate werden ausschließlich von Dritten verantwortet. Für die Richtigkeit, Vollständigkeit oder Rechtmäßigkeit der Angaben übernimmt OM keine Haftung. Hinweise auf mögliche Rechtsverstöße können jederzeit gemeldet werden und werden nach Prüfung umgehend bearbeitet.
Energieträger: Luft-/Wasserwärme
Privatverkauf!!
Makleranfragen nicht erwünscht. Nach § 7 UWG sind unaufgeforderte Kontaktaufnahmen durch Makler ohne ausdrückliche Einwilligung des Empfängers verboten!
ohne-makler (OM) ist weder Anbieter noch Vermittler der Immobilie. OM betreibt eine Plattform für Immobilieneigentümer, die unter anderem die gleichzeitige Veröffentlichung einzelner Inserate auf mehreren Immobilienportalen ermöglicht. Die Inhalte dieser Inserate werden ausschließlich von Dritten verantwortet. Für die Richtigkeit, Vollständigkeit oder Rechtmäßigkeit der Angaben übernimmt OM keine Haftung. Hinweise auf mögliche Rechtsverstöße können jederzeit gemeldet werden und werden nach Prüfung umgehend bearbeitet.
Karte wird geladen...
Objektstandort
Friedrich-Pieper-Str. 6
32760 Detmold
- Nordrhein-Westfalen
Lage & Infrastruktur
Objektstandort
Friedrich-Pieper-Str. 6
32760 Detmold
- Nordrhein-Westfalen
Die Wohnung zeichnet sich durch eine naturnahe, ruhige Wohnlage mit exklusiven Villen und Blick auf das Hermannsdenkmal aus. Auch das LWL Freilichtmuseum ist nur wenige Minuten entfernt.
Ganz besonders ist das familienfreundliche Wohnumfeld und die sehr gute Infrastruktur zu erwähnen. Die Buslinie 701 ist ca. 200 m entfernt, die schöne Innenstadt von Detmold erreicht man mit dem Fahrrad in 10 Minuten.
In Heiligenkirchen befinden sich alle Geschäfte/Einrichtungen für den täglichen Bedarf (Rewe, Apotheke, Ärzte, Post, Tankstelle, Kindergarten, Schulen usw.).
Infrastruktur (im Umkreis von 5 km):
Apotheke, Lebensmittel-Discount, Allgemeinmediziner, Kindergarten, Grundschule, Hauptschule, Realschule, Gymnasium, Gesamtschule, Öffentliche Verkehrsmittel
Ganz besonders ist das familienfreundliche Wohnumfeld und die sehr gute Infrastruktur zu erwähnen. Die Buslinie 701 ist ca. 200 m entfernt, die schöne Innenstadt von Detmold erreicht man mit dem Fahrrad in 10 Minuten.
In Heiligenkirchen befinden sich alle Geschäfte/Einrichtungen für den täglichen Bedarf (Rewe, Apotheke, Ärzte, Post, Tankstelle, Kindergarten, Schulen usw.).
Infrastruktur (im Umkreis von 5 km):
Apotheke, Lebensmittel-Discount, Allgemeinmediziner, Kindergarten, Grundschule, Hauptschule, Realschule, Gymnasium, Gesamtschule, Öffentliche Verkehrsmittel