Mehrfamilienhaus zum Kauf
250.000 €
Kaufpreis
228 m²
Wohnfläche
10
Zimmer
immobilien.de Nr.: 9437941
Objektnummer: 365320
Dateien
Kaufpreis
| Kaufpreis | 250.000 € |
| Maklerprovision | keine Provision, courtagefrei |
Wohnfläche, Grundstück & Bausubstanz
| Wohnfläche | 228 m² |
| Grundstücksfläche | 138 m² |
| Zimmer | 10 |
| Baujahr | 1910 |
| Verfügbar ab | nach Absprache |
| Zustand | Teil Vollrenovierungsbed |
Energie
| Energieausweistyp | Bedarfsausweis |
| Energieeffizienzklasse | H |
| Endenergiebedarf | 320 |
| Energieträger/Befeuerung | Gas |
Beschreibung der Immobilie
Zum Verkauf steht ein Mehrfamilienhaus aus dem Jahr 1910 mit insgesamt vier Wohneinheiten in zentraler Lage von Velbert-Neviges. Das Objekt wurde regelmäßig instandgehalten und befindet sich in einem insgesamt soliden Zustand mit Renovierungsbedarf.
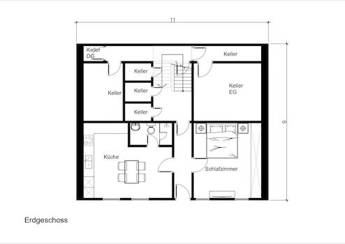
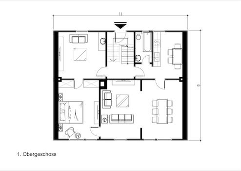
Die Gesamtwohnfläche beträgt ca. 228 m² und verteilt sich auf vier Etagen. Die Wohnungsgrößen sind sinnvoll aufgeteilt: Das Erdgeschoss bietet ca. 32 m², die Wohnungen im 1. und 2. Obergeschoss jeweils ca. 73 m², das Dachgeschoss rund 50 m². Die Grundrisse eignen sich ideal für Singles, Paare oder kleine Familien.
Drei der vier Wohnungen sind aktuell vermietet. Die Dachgeschosswohnung steht leer und bietet nach einer Renovierung die Möglichkeit zur Neuvermietung oder auch zur Eigennutzung. Die derzeitige Jahresnettokaltmiete beträgt ca. 10.000 €. Laut örtlichem Mietspiegel sind Mieteinnahmen von bis zu ca. 20.000 € jährlich realistisch, sodass sich hier ein attraktives Steigerungspotenzial ergibt.
Die Immobilie wird aus Altersgründen verkauft und eignet sich hervorragend als Kapitalanlage mit langfristiger Perspektive. Durch die kompakte Grundstücksfläche von ca. 138 m² ist der Pflegeaufwand gering.
Ein gültiger Energieausweis liegt vor und kann bei Interesse gerne zur Verfügung gestellt werden.
Insgesamt handelt es sich um ein solides, entwicklungsfähiges Anlageobjekt in gefragter Lage. Das Haus profitiert von einer hervorragenden Infrastruktur und der zentralen Lage in Velbert-Neviges – mit direkter Busanbindung vor der Tür sowie fußläufig erreichbarem Bahnhof. Die Städte Wuppertal, Essen und Düsseldorf sind in jeweils rund 30 Minuten mit Bahn oder Auto erreichbar. Ideal für Investoren mit Weitblick oder Käufer, die ein gepflegtes Mehrfamilienhaus mit Potenzial suchen.
Die Gesamtwohnfläche beträgt ca. 228 m² und verteilt sich auf vier Etagen. Die Wohnungsgrößen sind sinnvoll aufgeteilt: Das Erdgeschoss bietet ca. 32 m², die Wohnungen im 1. und 2. Obergeschoss jeweils ca. 73 m², das Dachgeschoss rund 50 m². Die Grundrisse eignen sich ideal für Singles, Paare oder kleine Familien.
Drei der vier Wohnungen sind aktuell vermietet. Die Dachgeschosswohnung steht leer und bietet nach einer Renovierung die Möglichkeit zur Neuvermietung oder auch zur Eigennutzung. Die derzeitige Jahresnettokaltmiete beträgt ca. 10.000 €. Laut örtlichem Mietspiegel sind Mieteinnahmen von bis zu ca. 20.000 € jährlich realistisch, sodass sich hier ein attraktives Steigerungspotenzial ergibt.
Die Immobilie wird aus Altersgründen verkauft und eignet sich hervorragend als Kapitalanlage mit langfristiger Perspektive. Durch die kompakte Grundstücksfläche von ca. 138 m² ist der Pflegeaufwand gering.
Ein gültiger Energieausweis liegt vor und kann bei Interesse gerne zur Verfügung gestellt werden.
Insgesamt handelt es sich um ein solides, entwicklungsfähiges Anlageobjekt in gefragter Lage. Das Haus profitiert von einer hervorragenden Infrastruktur und der zentralen Lage in Velbert-Neviges – mit direkter Busanbindung vor der Tür sowie fußläufig erreichbarem Bahnhof. Die Städte Wuppertal, Essen und Düsseldorf sind in jeweils rund 30 Minuten mit Bahn oder Auto erreichbar. Ideal für Investoren mit Weitblick oder Käufer, die ein gepflegtes Mehrfamilienhaus mit Potenzial suchen.
Ausstattungsmerkmale
| Anzahl der Etagen im Haus | 4 |
| Balkone | 0 |
| Terrassen | 1 |
Terrasse
Bemerkungen:
Das Haus verfügt über eine funktionale und solide Ausstattung ohne besonderen Luxus. Im Laufe der Jahre wurden regelmäßig notwendige Instandhaltungsmaßnahmen durchgeführt, sodass sich das Objekt insgesamt in einem angemessenen Zustand befindet. Es besteht jedoch stellenweise Modernisierungsbedarf.
Die Beheizung der einzelnen Wohneinheiten erfolgt über Etagen-Gasthermen, die regelmäßig gewartet wurden. Dies ermöglicht den Mietern eine individuelle Verbrauchssteuerung und bietet dem Eigentümer Kostentransparenz.
Die Dachgeschosswohnung steht aktuell leer und muss vor einer erneuten Vermietung renoviert werden. Da eine umfassende Sanierung vor dem Verkauf nicht mehr durchgeführt werden sollte, bleibt dem zukünftigen Eigentümer die Möglichkeit, hier individuell zu gestalten und eigene Vorstellungen umzusetzen.
Die Ausstattung entspricht in weiten Teilen dem einfachen bis mittleren Standard, bietet jedoch eine solide Grundlage für weiterführende Modernisierungen oder Anpassungen durch den Käufer.
Bemerkungen:
Das Haus verfügt über eine funktionale und solide Ausstattung ohne besonderen Luxus. Im Laufe der Jahre wurden regelmäßig notwendige Instandhaltungsmaßnahmen durchgeführt, sodass sich das Objekt insgesamt in einem angemessenen Zustand befindet. Es besteht jedoch stellenweise Modernisierungsbedarf.
Die Beheizung der einzelnen Wohneinheiten erfolgt über Etagen-Gasthermen, die regelmäßig gewartet wurden. Dies ermöglicht den Mietern eine individuelle Verbrauchssteuerung und bietet dem Eigentümer Kostentransparenz.
Die Dachgeschosswohnung steht aktuell leer und muss vor einer erneuten Vermietung renoviert werden. Da eine umfassende Sanierung vor dem Verkauf nicht mehr durchgeführt werden sollte, bleibt dem zukünftigen Eigentümer die Möglichkeit, hier individuell zu gestalten und eigene Vorstellungen umzusetzen.
Die Ausstattung entspricht in weiten Teilen dem einfachen bis mittleren Standard, bietet jedoch eine solide Grundlage für weiterführende Modernisierungen oder Anpassungen durch den Käufer.
Sonstige Informationen
Energieträger: Gas
Makleranfragen nicht erwünscht. Nach § 7 UWG sind unaufgeforderte Kontaktaufnahmen durch Makler ohne ausdrückliche Einwilligung des Empfängers verboten!
ohne-makler (OM) ist weder Anbieter noch Vermittler der Immobilie. OM betreibt eine Plattform für Immobilieneigentümer, die unter anderem die gleichzeitige Veröffentlichung einzelner Inserate auf mehreren Immobilienportalen ermöglicht. Die Inhalte dieser Inserate werden ausschließlich von Dritten verantwortet. Für die Richtigkeit, Vollständigkeit oder Rechtmäßigkeit der Angaben übernimmt OM keine Haftung. Hinweise auf mögliche Rechtsverstöße können jederzeit gemeldet werden und werden nach Prüfung umgehend bearbeitet.
Makleranfragen nicht erwünscht. Nach § 7 UWG sind unaufgeforderte Kontaktaufnahmen durch Makler ohne ausdrückliche Einwilligung des Empfängers verboten!
ohne-makler (OM) ist weder Anbieter noch Vermittler der Immobilie. OM betreibt eine Plattform für Immobilieneigentümer, die unter anderem die gleichzeitige Veröffentlichung einzelner Inserate auf mehreren Immobilienportalen ermöglicht. Die Inhalte dieser Inserate werden ausschließlich von Dritten verantwortet. Für die Richtigkeit, Vollständigkeit oder Rechtmäßigkeit der Angaben übernimmt OM keine Haftung. Hinweise auf mögliche Rechtsverstöße können jederzeit gemeldet werden und werden nach Prüfung umgehend bearbeitet.
Karte wird geladen...
Objektstandort
Wilhelmstr 71
42553 Velbert
- Nordrhein-Westfalen
Lage & Infrastruktur
Die Immobilie befindet sich in zentraler und verkehrsgünstiger Lage im beliebten Velberter Stadtteil Neviges. Das direkte Umfeld ist geprägt von gewachsener Wohnbebauung, kleinen Geschäften und einer guten sozialen Durchmischung.
Die Bushaltestelle liegt direkt vor der Tür, der S-Bahnhof Velbert-Neviges ist fußläufig in wenigen Minuten erreichbar. Von dort bestehen direkte Verbindungen nach Wuppertal, Essen und Düsseldorf. Alle drei Städte sind innerhalb von ca. 30 Minuten sowohl mit dem ÖPNV als auch mit dem Auto über die nahegelegene A535 bzw. A46 bequem erreichbar.
Im näheren Umkreis finden sich alle Einrichtungen des täglichen Bedarfs: Supermärkte, Bäcker, Apotheken, Ärzte, Restaurants und Cafés sind in wenigen Minuten zu Fuß erreichbar. Auch Kindergärten und Schulen sind in der Umgebung vorhanden und machen die Lage auch für Familien attraktiv.
Neviges ist darüber hinaus bekannt für seinen historischen Stadtkern, den beliebten Wallfahrtsdom Maria, Königin des Friedens, sowie schöne Grünanlagen und Wanderwege im Bergischen Land. Die Lage bietet somit eine gelungene Kombination aus Urbanität, guter Infrastruktur und Naherholung.
Insgesamt überzeugt die Lage durch ihre Zentralität, ihre hervorragende Anbindung und ihr lebendiges, doch angenehmes Wohnumfeld – sowohl für Eigennutzer als auch für Kapitalanleger eine gefragte Adresse
Infrastruktur (im Umkreis von 5 km):
Apotheke, Lebensmittel-Discount, Allgemeinmediziner, Kindergarten, Grundschule, Öffentliche Verkehrsmittel
Die Bushaltestelle liegt direkt vor der Tür, der S-Bahnhof Velbert-Neviges ist fußläufig in wenigen Minuten erreichbar. Von dort bestehen direkte Verbindungen nach Wuppertal, Essen und Düsseldorf. Alle drei Städte sind innerhalb von ca. 30 Minuten sowohl mit dem ÖPNV als auch mit dem Auto über die nahegelegene A535 bzw. A46 bequem erreichbar.
Im näheren Umkreis finden sich alle Einrichtungen des täglichen Bedarfs: Supermärkte, Bäcker, Apotheken, Ärzte, Restaurants und Cafés sind in wenigen Minuten zu Fuß erreichbar. Auch Kindergärten und Schulen sind in der Umgebung vorhanden und machen die Lage auch für Familien attraktiv.
Neviges ist darüber hinaus bekannt für seinen historischen Stadtkern, den beliebten Wallfahrtsdom Maria, Königin des Friedens, sowie schöne Grünanlagen und Wanderwege im Bergischen Land. Die Lage bietet somit eine gelungene Kombination aus Urbanität, guter Infrastruktur und Naherholung.
Insgesamt überzeugt die Lage durch ihre Zentralität, ihre hervorragende Anbindung und ihr lebendiges, doch angenehmes Wohnumfeld – sowohl für Eigennutzer als auch für Kapitalanleger eine gefragte Adresse
Infrastruktur (im Umkreis von 5 km):
Apotheke, Lebensmittel-Discount, Allgemeinmediziner, Kindergarten, Grundschule, Öffentliche Verkehrsmittel