Modernes Wohnen Energiesparhaus Trier-Kürenz - Achtung Anleger hohe Steuervorteile sichern
349.000 €
Kaufpreis
67,45 m²
Wohnfläche
2
Zimmer
immobilien.de Nr.: 9433526
Objektnummer: ETNBAVE3001
Kaufpreis
| Kaufpreis | 349.000 € |
Wohnfläche, Grundstück & Bausubstanz
| Wohnfläche | 67,45 m² |
| Fläche teilbar ab | 67,45 m² |
| Zimmer | 2 |
| Baujahr | 2026 |
| Verfügbar ab | Sommer 2026 |
| Zustand | Erstbezug |
Energie
| Energieausweistyp | Bedarfsausweis |
| Ausstellungsdatum | 20. 01. 2022 |
| Gültig bis | 19.01.2032 |
| Baujahr (laut Energieausweis) | 2024 |
| Energieeffizienzklasse | A+ |
| Energietyp | KfW-55 |
| Endenergiebedarf | 16,80 |
| Heizungsart | Fußbodenheizung |
| Wesentlicher Energieträger | Luft/wasser-Wärmepumpe |
| Energieträger/Befeuerung | Luft-Wärme-Pumpe |
Beschreibung der Immobilie
Modernes Wohnen in altersgerechter Ausführung im verkehrsberuhigten Innenbereich in Trier-Kürenz. Achtung Vermieter: Hohe Steuervorteile durch neue degressive Gebäudeabschreibung sichern ! In attraktiver Lage von Trier-Kürenz entstehen neue Eigentumswohnungen in altersgerech Ausführung mit moderner Technik (KfW 55 Standard Erneuerbare Energien), Aufzug und guter Ausstattung von ca. 67 bis ca. 130 m² mit moderner Technik in altersgerechter Ausführung. Es sind eine moderne Luftwärmepumpe, Fußbodenheizung, elektrische Rollläden, Aufzug, schöne Fliesen sowie attraktive Parkettböden vorgesehen. Sie können hier noch Ihre persönliche Note einbringen. Die Errichtung erfolgt unter Berücksichtigung moderner Energiestandards (KFW-Effizienzhaus 55) sowie einer guten Ausstattung. Die Kombination von moderner Technik und hochwertiger Isolierung führt zu sehr günstigen Heizkosten bzw. Nebenkosten. Alle Wohnungen verfügen über schöne Balkone, Terrassen oder Dachterrassen.
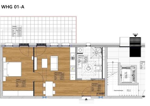
Das Angebot bezieht sich auf die Wohnung Nr. 1 - Gebäude A im Erdgeschoss
Die Wohnung besteht aus dem hellen Wohn/Essbereich von ca. 24 m² mit integrierter Küche. und Zugang auf die große Terrasse von ca. 23 m². An den Wohnbereich ist das Schlafzimmer von ca. 17 m², sowie das große Duschbad von ca. 10 m² mit Fenster angegliedert. Die gesamte Wohnfläche beträgt ca. 58 m². Die Wohnung wurde barrierefrei konzipiert.
Jeder Wohnung ist ein Abstell/Kellerraum im Untergeschoß zugeordnet.
Gleichermaßen befinden sich im Kellergeschoß die Tiefgarage sowie der Fahrradbereich
Es besteht die Möglichkeit Tiefgaragenstellplätze ab 27.000 EUR oder Doppelparker für 20.000 EUR zu erwerben.
Die Bezugsfertigkeit ist für Sommer 2026 geplant.
Steuerlicher Hinweis für Investoren : Die Wohnungen können bei einem Erwerb bis zum Jahr der Fertigstellung und einer Vermietung entsprechend den im Wachstumschanchengesetz aktuell beschlossenen Änderungen der degressiven Abschreibung nunmehr mit jährlich 5 %- bezogen auf den jeweiligen Buchwert/Restwert - abgeschrieben werden. Hierdurch können hohe Steuervorteile erzielt werden. Wir übernehmen keine steuerliche Beratung und keine Haftung für steuerliche Ziele. Hierzu informiert Sie Ihr Steuerberater umfassend.
Das Angebot bezieht sich auf die Wohnung Nr. 1 - Gebäude A im Erdgeschoss
Die Wohnung besteht aus dem hellen Wohn/Essbereich von ca. 24 m² mit integrierter Küche. und Zugang auf die große Terrasse von ca. 23 m². An den Wohnbereich ist das Schlafzimmer von ca. 17 m², sowie das große Duschbad von ca. 10 m² mit Fenster angegliedert. Die gesamte Wohnfläche beträgt ca. 58 m². Die Wohnung wurde barrierefrei konzipiert.
Jeder Wohnung ist ein Abstell/Kellerraum im Untergeschoß zugeordnet.
Gleichermaßen befinden sich im Kellergeschoß die Tiefgarage sowie der Fahrradbereich
Es besteht die Möglichkeit Tiefgaragenstellplätze ab 27.000 EUR oder Doppelparker für 20.000 EUR zu erwerben.
Die Bezugsfertigkeit ist für Sommer 2026 geplant.
Steuerlicher Hinweis für Investoren : Die Wohnungen können bei einem Erwerb bis zum Jahr der Fertigstellung und einer Vermietung entsprechend den im Wachstumschanchengesetz aktuell beschlossenen Änderungen der degressiven Abschreibung nunmehr mit jährlich 5 %- bezogen auf den jeweiligen Buchwert/Restwert - abgeschrieben werden. Hierdurch können hohe Steuervorteile erzielt werden. Wir übernehmen keine steuerliche Beratung und keine Haftung für steuerliche Ziele. Hierzu informiert Sie Ihr Steuerberater umfassend.
Ausstattungsmerkmale
| Bad | 1 |
| Bad | Dusche, Fenster |
| Boden | Fliesen, Parkett |
| Barrierefrei |
Modernes Wohnen in altersgerechter Ausführung im verkehrsberuhigten Innenbereich in Trier-Kürenz. Achtung Vermieter: Hohe Steuervorteile durch neue degressive Gebäudeabschreibung sichern ! In attraktiver Lage von Trier-Kürenz entstehen neue Eigentumswohnungen in altersgerech Ausführung mit moderner Technik (KfW 55 Standard Erneuerbare Energien), Aufzug und guter Ausstattung von ca. 67 bis ca. 130 m² mit moderner Technik in altersgerechter Ausführung. Es sind eine moderne Luftwärmepumpe, Fußbodenheizung, elektrische Rollläden, Aufzug, schöne Fliesen sowie attraktive Parkettböden vorgesehen. Sie können hier noch Ihre persönliche Note einbringen. Die Errichtung erfolgt unter Berücksichtigung moderner Energiestandards (KFW-Effizienzhaus 55) sowie einer guten Ausstattung. Die Kombination von moderner Technik und hochwertiger Isolierung führt zu sehr günstigen Heizkosten bzw. Nebenkosten. Alle Wohnungen verfügen über schöne Balkone, Terrassen oder Dachterrassen.
Das Angebot bezieht sich auf die Wohnung Nr. 1 - Gebäude A im Erdgeschoss
Die Wohnung besteht aus dem hellen Wohn/Essbereich von ca. 24 m² mit integrierter Küche. und Zugang auf die große Terrasse von ca. 23 m². An den Wohnbereich ist das Schlafzimmer von ca. 17 m², sowie das große Duschbad von ca. 10 m² mit Fenster angegliedert. Die gesamte Wohnfläche beträgt ca. 58 m². Die Wohnung wurde barrierefrei konzipiert.
Jeder Wohnung ist ein Abstell/Kellerraum im Untergeschoß zugeordnet.
Gleichermaßen befinden sich im Kellergeschoß die Tiefgarage sowie der Fahrradbereich
Es besteht die Möglichkeit Tiefgaragenstellplätze ab 27.000 EUR oder Doppelparker für 20.000 EUR zu erwerben.
Die Bezugsfertigkeit ist für Sommer 2026 geplant.
Steuerlicher Hinweis für Investoren : Die Wohnungen können bei einem Erwerb bis zum Jahr der Fertigstellung und einer Vermietung entsprechend den im Wachstumschanchengesetz aktuell beschlossenen Änderungen der degressiven Abschreibung nunmehr mit jährlich 5 %- bezogen auf den jeweiligen Buchwert/Restwert - abgeschrieben werden. Hierdurch können hohe Steuervorteile erzielt werden. Wir übernehmen keine steuerliche Beratung und keine Haftung für steuerliche Ziele. Hierzu informiert Sie Ihr Steuerberater umfassend.
Das Angebot bezieht sich auf die Wohnung Nr. 1 - Gebäude A im Erdgeschoss
Die Wohnung besteht aus dem hellen Wohn/Essbereich von ca. 24 m² mit integrierter Küche. und Zugang auf die große Terrasse von ca. 23 m². An den Wohnbereich ist das Schlafzimmer von ca. 17 m², sowie das große Duschbad von ca. 10 m² mit Fenster angegliedert. Die gesamte Wohnfläche beträgt ca. 58 m². Die Wohnung wurde barrierefrei konzipiert.
Jeder Wohnung ist ein Abstell/Kellerraum im Untergeschoß zugeordnet.
Gleichermaßen befinden sich im Kellergeschoß die Tiefgarage sowie der Fahrradbereich
Es besteht die Möglichkeit Tiefgaragenstellplätze ab 27.000 EUR oder Doppelparker für 20.000 EUR zu erwerben.
Die Bezugsfertigkeit ist für Sommer 2026 geplant.
Steuerlicher Hinweis für Investoren : Die Wohnungen können bei einem Erwerb bis zum Jahr der Fertigstellung und einer Vermietung entsprechend den im Wachstumschanchengesetz aktuell beschlossenen Änderungen der degressiven Abschreibung nunmehr mit jährlich 5 %- bezogen auf den jeweiligen Buchwert/Restwert - abgeschrieben werden. Hierdurch können hohe Steuervorteile erzielt werden. Wir übernehmen keine steuerliche Beratung und keine Haftung für steuerliche Ziele. Hierzu informiert Sie Ihr Steuerberater umfassend.
Sonstige Informationen
Vereinbaren Sie einen Beratungs bzw. Besichtigungstermin ! In Zusammenarbeit mit einem Finanzierungsvermittler sind wir Ihnen gerne bei der Gestaltung Ihrer Finanzierung behilflich. Auf Wunsch sowie bei entsprechender Bonität kann der Kaufpreis bis zu 100 % finanziert werden. Die Zinsen können z.B. auf die Dauer von 10 oder 15 Jahren festgeschrieben werden. Hierdurch können sich Ihre monatlichen Raten nicht verändern !
Weitere interessante Kauf- oder Mietangebote finden Sie unter www.scherf-immobilien.de
Weitere interessante Kauf- oder Mietangebote finden Sie unter www.scherf-immobilien.de
Karte wird geladen...
Objektstandort
54295 Trier
Lage & Infrastruktur
Objektstandort
54295 Trier
Trier- Stadtteil Kürenz - gefragter Wohnbereich zwischen Innenstadt und Universität. Die Wohnungen entstehen in einem modernen Mehrfamilienhaus, was als Energiesparhaus mit moderner Technik konzipiert wurde. Das Objekt wurde mit einem verkehrsberuhigten Innenbereich geplant.
Alle Einrichtungen des täglichen Bedarfs erreichen Sie auf kurzen Wegen. Ebenso ist eine gute Verkehrsanbindung in alle Richtungen gegeben. Den Hauptbahnhof erreichen Sie in ca. 10 Gehminuten.ebenso ist die Radachse Trier-Nordin unmittelbarer Nähe Der neue REWE Markt Schönbornstraße ist ebenfalls in wenigen Gehminuten erreichbar. Die Zufahrt zur Tiefgrage erfolgt von der Nellstraße.
Alle Einrichtungen des täglichen Bedarfs erreichen Sie auf kurzen Wegen. Ebenso ist eine gute Verkehrsanbindung in alle Richtungen gegeben. Den Hauptbahnhof erreichen Sie in ca. 10 Gehminuten.ebenso ist die Radachse Trier-Nordin unmittelbarer Nähe Der neue REWE Markt Schönbornstraße ist ebenfalls in wenigen Gehminuten erreichbar. Die Zufahrt zur Tiefgrage erfolgt von der Nellstraße.
Kontaktanfrage senden
Über den Anbieter
Scherf Profi Immobilienservice GmbH
Paulinstraße 104
54292 Trier
Kontakt
| Telefon | 0651 97878-0 |
| Fax | 0651 97878-78 |
| Website | www.scherf-immobilien.de |
Ansprechpartner/in
Herr Norbert Scherf
Weitere Angebote des Anbieters
18
Wohnen mit tollem Moselblick-Attraktive Penthousewohnun ...
Wohnung
54294 Trier
Wohnen mit besonderem Flair und tollem Moselblick - Attraktive Penthousewohnung mit eigenem Aufzugsausgang in gefragter Stadtlage Trier – unmittelbar an der Mosel. Helle sonnige Penthousewohnung mit tollem Moselblick ...
520.000 €
Kaufpreis
118 m²
Wohnfläche
3
Zimmer
9
Hohe Heizkosten ?- Nein Danke ! Vollständig sanierte ...
Wohnung
54294 Trier
Hohe Heizkosten - Nein Danke ! Vollständig sanierte Eigentumswohnungen mit moderner Heiztechnik und eigenen wohnungsbezogenen Wärmepumpen im Energiesparhaus in gefragter Wohnlage in Trier-Feyen. Umbau/Sanierung von 2 ...
1.220 €
Kaltmiete
90,16 m²
Wohnfläche
4
Zimmer
16
Schöne Wohnung mit Weitblick schöner Lage von ...
Wohnung
54292 Trier
Sofort beziehbar- Gemütliche gut aufgeteilte Wohnung in gepflegtem Mehrfamilienhaus in schöner ruhiger Lage von Trier-Ruwer mit viel Grün Schöne gut aufgeteilte Eigentumswohnung in gepflegtem Mehrfamilienhaus (Baujahr ...
199.000 €
Kaufpreis
68,5 m²
Wohnfläche
2
Zimmer
16
Gemütliche Wohnung mit eigenem Garten in schöner Lage ...
Wohnung
54292 Trier
Sofort beziehbar- Gemütliche gut aufgeteilte Wohnung mit eigenem Garten in gepflegtem Mehrfamilienhaus in schöner ruhiger Lage von Trier-Ruwer nit viel Grün Schöne gut aufgeteilte Eigentumswohnung in gepflegtem ...
199.000 €
Kaufpreis
69,5 m²
Wohnfläche
2
Zimmer
12
Penthousewohnung mit toller Dachterrasse und moderner ...
Wohnung
54338 Schweich
Hohe Heizkosten? – Nein Danke! Neue Penthousewohnung mit moderner Heiztechnik im KFW 70 Energiesparhaus in gefragter Wohnlage in Schweich-Stadtmitte. Sanierung und Umbau von 2 Gebäuden mit attraktiven Eigentumswohnungen ...
643.000 €
Kaufpreis
132,78 m²
Wohnfläche
5
Zimmer