Wohnen in bester Lage von Ebersberg
1.420.000 €
Kaufpreis
180 m²
Wohnfläche
5
Zimmer
immobilien.de Nr.: 9433385
Objektnummer: Ebersberg2
Kaufpreis
| Kaufpreis | 1.420.000 € |
Wohnfläche, Grundstück & Bausubstanz
| Wohnfläche | 180 m² |
| Grundstücksfläche | 620 m² |
| Zimmer | 5 |
| Verfügbar ab | keine Angabe |
| Zustand | Projektiert |
Energie
| Energieausweistyp | Bedarfsausweis |
| Energietyp | KfW-40 |
| Endenergiebedarf | 14.00 |
| Heizungsart | Fußbodenheizung |
| Wesentlicher Energieträger | Strom |
| Energieträger/Befeuerung | Luft-Wärme-Pumpe |
Beschreibung der Immobilie
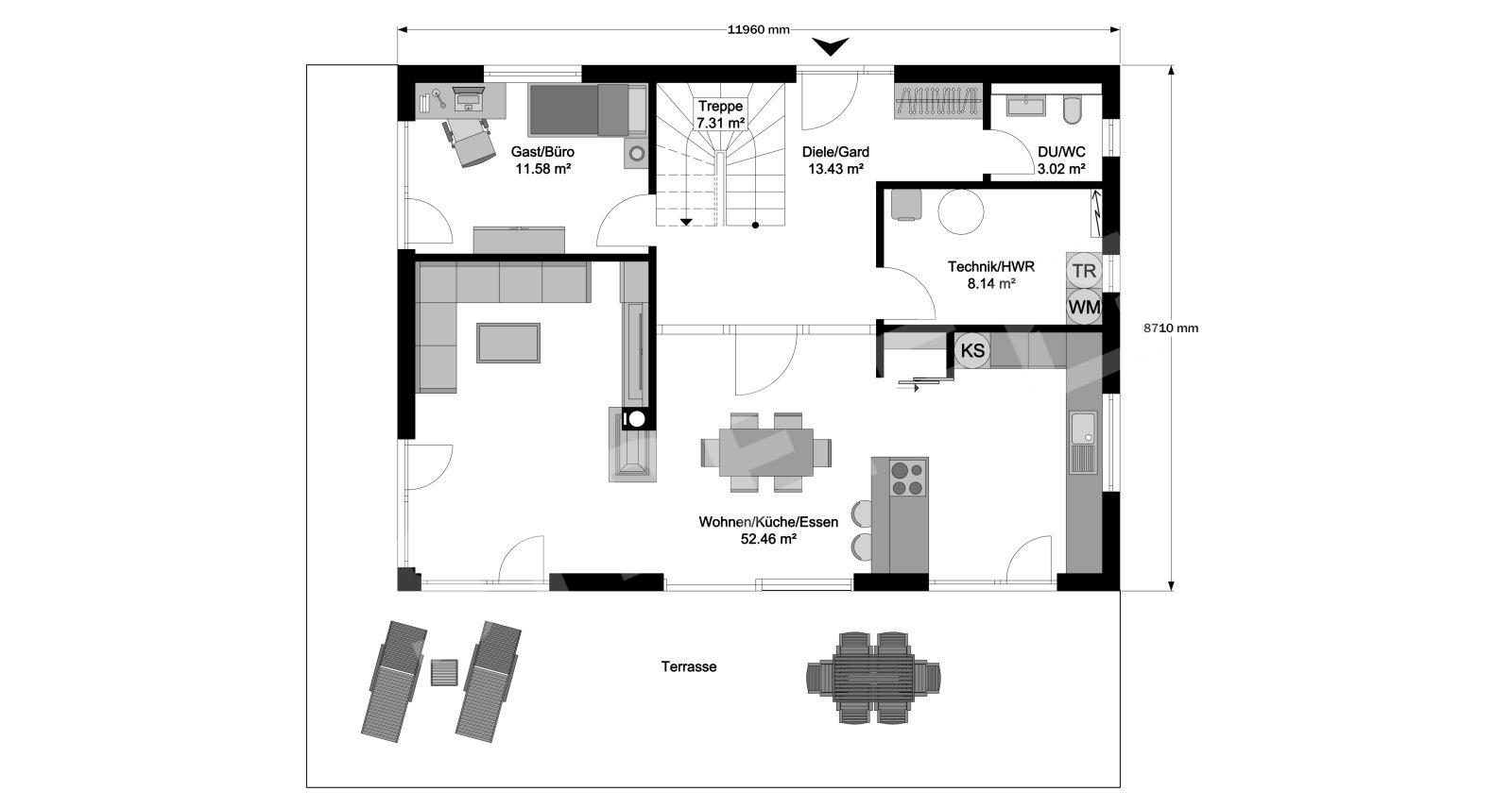
Willkommen in Ihrer zukünftigen Stadtvilla in Ebersberg. Dieses hochwertige Bauprojekt bietet Ihnen auf einer großzügigen Wohnfläche von 180 m² und einem Grundstück von 620 m² ausreichend Platz für Ihre Familie. Mit 5 Zimmern, inklusive 4 Schlafzimmern, 2 Badezimmern und einem zusätzlichen Gäste-WC, genießen Sie höchsten Wohnkomfort auf zwei Etagen. Das elegante Badezimmer, ausgestattet mit Dusche, Wanne und Fenster, sorgt für eine Wohlfühloase in Ihrem neuen Zuhause. Der Kamin in Ihrem Wohnbereich bietet nicht nur Wärme, sondern auch eine gemütliche Atmosphäre und wird zum Mittelpunkt Ihres Familienlebens. Die flexible Raumgestaltung ermöglicht es Ihnen, die Grundrisse ganz nach Ihren Bedürfnissen anzupassen - ob mit Keller oder Dachterrasse, alles ist möglich!
Ausstattungsmerkmale
| Anzahl der Etagen im Haus | 2 |
| Küche | Offene Küche |
| Bad | 2 |
| Bad | Dusche, Wanne, Fenster |
| Barrierefrei |
Die gehobene Ausstattung Ihrer Stadtvilla umfasst hochwertige Wand- und Bodenbeläge, die Sie nach Wunsch auswählen können. Diese ermöglichen nicht nur eine individuelle Gestaltung, sondern sorgen auch für ein angenehmes Wohnambiente. Die Verwendung einer modernen Wärmepumpe als Befeuerungsart garantiert Ihnen eine umweltfreundliche und kosteneffiziente Heizlösung. Zudem entspricht der Energietyp dem KFW40 Standard, was Ihnen langfristig Einsparungen bei den Energiekosten sichert und einen nachhaltigen Wohnstil fördert.
Sonstige Informationen
Für den Bau Ihrer Stadtvilla haben Sie die Wahl zwischen vier verschiedenen Ausbaustufen. Diese spezielle Stadtvilla wird in der Ausbaustufe Schlüsselfertig - realisiert, die bereits Wand- und Bodenbeläge sowie Zimmertüren beinhaltet. Wenn Sie alles aus einer Hand möchten und die Zeitvorteile unserer Bauweise optimal nutzen wollen, ist diese Ausbaustufe ideal für Sie. Zudem können Sie Eigenleistungen erbringen, um die Baukosten weiter zu senken. Lassen Sie uns gemeinsam Ihr Traumhaus verwirklichen!
Karte wird geladen...
Objektstandort
85560 Ebersberg
Lage & Infrastruktur
Objektstandort
85560 Ebersberg
Ihr neues Zuhause befindet sich in der attraktiven Ortslage von Ebersberg, einer Stadt, die durch ihre hervorragende Infrastruktur besticht. In unmittelbarer Nähe finden Sie eine Apotheke, den Bahnhof, Busverbindungen sowie zahlreiche Freizeitmöglichkeiten wie ein Fitnessstudio und einen Golfplatz. Bildungseinrichtungen wie Grundschule, Kindergarten und weiterführende Schule sind ebenfalls schnell erreichbar. Der angrenzende Wald lädt zu Spaziergängen und Erholung in der Natur ein, während ein Kino und Spielplätze für Unterhaltung sorgen.
Kontaktanfrage senden
Über den Anbieter
STREIF Haus GmbH
Josef-Streif-Straße 1
54595 Weinsheim
Kontakt
| Telefon | +49 (0) 65 51.12-00 |
| Mobil | +49 1590 1954233 |
| Website | www.streif.de |
Ansprechpartner/in
Herr Pascal Karbstein