Zweifamilien-Doppelhaushälfte in Stockstadt am Main
432.000 €
Kaufpreis
169 m²
Wohnfläche
9
Zimmer
immobilien.de Nr.: 9433119
Objektnummer: 376605
Kaufpreis
| Kaufpreis | 432.000 € |
| Maklerprovision | keine Provision, courtagefrei |
Wohnfläche, Grundstück & Bausubstanz
| Wohnfläche | 169 m² |
| Grundstücksfläche | 402 m² |
| Zimmer | 9 |
| Baujahr | 1961 |
| Verfügbar ab | nach Absprache |
| Zustand | Gepflegt |
Energie
| Energieausweistyp | Bedarfsausweis |
| Energieeffizienzklasse | H |
| Endenergiebedarf | 321 |
| Heizungsart | Zentralheizung |
| Energieträger/Befeuerung | Öl |
Beschreibung der Immobilie
Zweifamilien-Doppelhaushälfte in Stockstadt am Main, provisionsfrei (ohne Makler)
zum oben ausgewiesenen VB Preis zu erwerben.
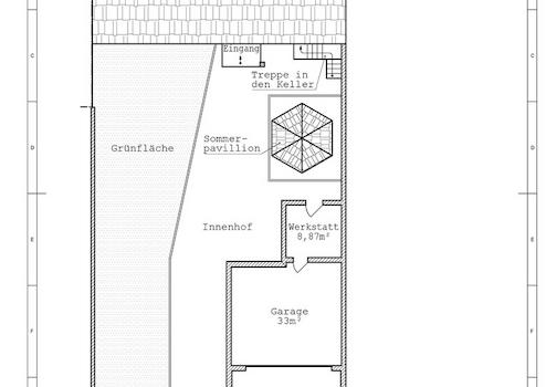
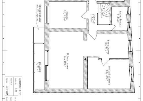
Das Ende 1963 fertiggestellte, teilunterkellerte Haus mit zwei Geschossen und ausbaufähigem Dachgeschoss hat eine Gesamtwohnfläche von 169 m², verteilt auf 9 Zimmer mit 2 Küchen und 2 Bädern, steht auf einem 402 m² Grundstück mit Doppelgarage, großem Garten mit Obstbäumen, Weinreben und geräumiger Gartenlaube.
Das Haus ist gepflegt und wurde im Laufe der Zeit mehrfach saniert.
1974 Fassadenänderung und Einbau der Wärme- und Schallschutzfenster,
1984 Sanierung und Wärmedämmung des Dachbodens,
1991 Sanierung der Heizung.
Die Lage könnte nicht besser sein! In unmittelbarer Nähe finden Sie die Haltestellen Am Dreispitz (363 m) und Am Sandnickel (395 m) für eine schnelle Anbindung an den öffentlichen Nahverkehr. Erledigen Sie Ihre Einkäufe im nahen REWE, Lidl, DM oder toom Baumarkt. Für die Kleinen gibt es den Kindergarten Franziskusheim in nur 780 m Entfernung. Der Park an den Mainwiesen lädt zum Spielen und Entspannen ein und ist nur 1600 m entfernt.
Diese Immobilie ist perfekt für große Familien oder zwei Generationen unter einem Dach, die Komfort und eine angenehme Nachbarschaft suchen. Zögern Sie nicht und vereinbaren Sie einen Besichtigungstermin! Ihr neues Zuhause wartet auf Sie!
zum oben ausgewiesenen VB Preis zu erwerben.
Das Ende 1963 fertiggestellte, teilunterkellerte Haus mit zwei Geschossen und ausbaufähigem Dachgeschoss hat eine Gesamtwohnfläche von 169 m², verteilt auf 9 Zimmer mit 2 Küchen und 2 Bädern, steht auf einem 402 m² Grundstück mit Doppelgarage, großem Garten mit Obstbäumen, Weinreben und geräumiger Gartenlaube.
Das Haus ist gepflegt und wurde im Laufe der Zeit mehrfach saniert.
1974 Fassadenänderung und Einbau der Wärme- und Schallschutzfenster,
1984 Sanierung und Wärmedämmung des Dachbodens,
1991 Sanierung der Heizung.
Die Lage könnte nicht besser sein! In unmittelbarer Nähe finden Sie die Haltestellen Am Dreispitz (363 m) und Am Sandnickel (395 m) für eine schnelle Anbindung an den öffentlichen Nahverkehr. Erledigen Sie Ihre Einkäufe im nahen REWE, Lidl, DM oder toom Baumarkt. Für die Kleinen gibt es den Kindergarten Franziskusheim in nur 780 m Entfernung. Der Park an den Mainwiesen lädt zum Spielen und Entspannen ein und ist nur 1600 m entfernt.
Diese Immobilie ist perfekt für große Familien oder zwei Generationen unter einem Dach, die Komfort und eine angenehme Nachbarschaft suchen. Zögern Sie nicht und vereinbaren Sie einen Besichtigungstermin! Ihr neues Zuhause wartet auf Sie!
Ausstattungsmerkmale
| Anzahl der Etagen im Haus | 2 |
| Küche | Einbauküche |
| Bad | 2 |
| Bad | Wanne |
| Boden | Fliesen, Kunststoff |
| Balkone | 1 |
| Garten | |
| Terrassen | 0 |
| Garage/Stellplätze | 2 |
| Keller |
Balkon, Garten, Keller, Vollbad, Einbauküche, Fliesen
Sonstige Informationen
Heizungsart: Zentralheizung
Energieträger: Öl
Makleranfragen nicht erwünscht. Nach § 7 UWG sind unaufgeforderte Kontaktaufnahmen durch Makler ohne ausdrückliche Einwilligung des Empfängers verboten!
ohne-makler (OM) ist weder Anbieter noch Vermittler der Immobilie. OM betreibt eine Plattform für Immobilieneigentümer, die unter anderem die gleichzeitige Veröffentlichung einzelner Inserate auf mehreren Immobilienportalen ermöglicht. Die Inhalte dieser Inserate werden ausschließlich von Dritten verantwortet. Für die Richtigkeit, Vollständigkeit oder Rechtmäßigkeit der Angaben übernimmt OM keine Haftung. Hinweise auf mögliche Rechtsverstöße können jederzeit gemeldet werden und werden nach Prüfung umgehend bearbeitet.
Energieträger: Öl
Makleranfragen nicht erwünscht. Nach § 7 UWG sind unaufgeforderte Kontaktaufnahmen durch Makler ohne ausdrückliche Einwilligung des Empfängers verboten!
ohne-makler (OM) ist weder Anbieter noch Vermittler der Immobilie. OM betreibt eine Plattform für Immobilieneigentümer, die unter anderem die gleichzeitige Veröffentlichung einzelner Inserate auf mehreren Immobilienportalen ermöglicht. Die Inhalte dieser Inserate werden ausschließlich von Dritten verantwortet. Für die Richtigkeit, Vollständigkeit oder Rechtmäßigkeit der Angaben übernimmt OM keine Haftung. Hinweise auf mögliche Rechtsverstöße können jederzeit gemeldet werden und werden nach Prüfung umgehend bearbeitet.
Karte wird geladen...
Objektstandort
63811 Stockstadt am Main
- Bayern
Lage & Infrastruktur
Objektstandort
63811 Stockstadt am Main
- Bayern
Infrastruktur (im Umkreis von 5 km):
Apotheke, Lebensmittel-Discount, Allgemeinmediziner, Kindergarten, Grundschule, Hauptschule, Realschule, Gymnasium, Öffentliche Verkehrsmittel
Kontaktanfrage senden
Über den Anbieter
OM PropTech GmbH
Humboldtstraße 25a
21509 Glinde
Kontakt
| Telefon | 01590 6604728 |
| Fax | - |
| Website | www.ohne-makler.net |
Ansprechpartner/in
Privat von Leonhard
Weitere Angebote des Anbieters
12
Top geschnittene Dachgeschosswohnung mit Balkon und ...
Wohnung
23578 Oldenburg
Diese sehr gut geschnittene Dachgeschosswohnung überzeugt durch ihre offene Wohnküche und ein helles Wohnzimmer mit Zugang zum Balkon. Hier genießen Sie einen direkten Blick in den Stadtpark - ideal zum Entspannen. Die ...
180.000 €
Kaufpreis
62 m²
Wohnfläche
2
Zimmer
8
Helle 2,5-Zimmer-Wohnung mit Dachterrasse zu vermieten ...
Wohnung
76676 Graben-Neudorf / Neudorf
Wir vermieten eine charmante Dachgeschosswohnung in einem Zweifamilienhaus in zentraler Lage von Graben-Neudorf (Ortsteil Neudorf). Ein Highlight der Wohnung ist die westorientierte, atmosphärische 10 m² Dachterrasse, ...
630 €
Kaltmiete (netto)
64 m²
Wohnfläche
2,5
Zimmer
29
Kernsaniertes Einfamilienhaus/Bauernhaus mit großem ...
Haus
90518 Altdorf b. Nürnberg
Provisionsfrei – Direkt vom Eigentümer! Willkommen in Ihrem neuen Zuhause! Dieses liebevoll 2023/2024 kernsanierte Einfamilienhaus/Bauernhaus verbindet modernen Wohnkomfort mit dem Charme des Landlebens – ideal für ...
399.000 €
Kaufpreis
137 m²
Wohnfläche
5
Zimmer
24
Ruhig gelegen und dennoch zentral – Charmantes ...
Haus
91126 Schwabach
Das Haus wurde 2000 renoviert, Versorgung und Entsorgung neu. Die Dachdämmung erfolgte 2009. Im EG befindet sich ein Duschbad und ein separates WC. Im OG befindet sich ein Bad mit Eckbadewanne und WC. Das DG ist zum ...
655.000 €
Kaufpreis
130 m²
Wohnfläche
7
Zimmer
7
Leerstehend & provisionsfrei: 2-Zimmer-Wohnung im ...
Wohnung
04155 Leipzig
Diese charmante 2-Zimmer-Wohnung im Innenhof der Kasseler Straße 12 überzeugt durch ihre ruhige Lage, solide Substanz und vielseitige Nutzungsmöglichkeiten. Die Wohnung verfügt über zwei gut geschnittene Zimmer und ...
129.000 €
Kaufpreis
44 m²
Wohnfläche
2
Zimmer