Bezugsfertiges EFH mit Grundstück & Seenähe: Sofort einziehen und später fertigstellen | Teilsaniert
249.000 €
Kaufpreis
137,38 m²
Wohnfläche
4
Zimmer
immobilien.de Nr.: 9432007
Objektnummer: 502432
Kaufpreis
| Kaufpreis | 249.000 € |
| Maklerprovision | 3,57% vom Kaufpreis (inkl. MwSt.) |
Wohnfläche, Grundstück & Bausubstanz
| Wohnfläche | 137,38 m² |
| Grundstücksfläche | 515 m² |
| Zimmer | 4 |
| Baujahr | 1930 |
| Letzte Modernisierung | 2023 |
| Verfügbar ab | keine Angabe |
| Zustand | Teil Saniert |
Energie
| Wesentlicher Energieträger | Gas |
| Energieträger/Befeuerung | Gas |
Beschreibung der Immobilie
Zum Verkauf steht dieses teilsanierte Einfamilienhaus in Zwenkau, welches viel Entwicklungsspielraum mit solider Substanz verbindet. Ideal für Mehrgenerationenwohnen, Familien oder handwerklich Begeisterte. Bereits erneuert wurden u. a. die Versorgungsleitungen (zuletzt in den letzten zwei Jahren) und die Heiztechnik: Im Nebengebäude befindet sich ein Heizraum mit moderner Brennwerttherme (2023). Der Schornstein ist saniert, drei Kamine sind anschließbar, für einen liegt eine Genehmigung vor. Warmwasser erfolgt derzeit elektrisch; ein Glasfaseranschluss ist vorhanden.
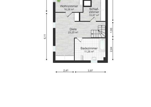
Im Erdgeschoss erwartet Sie eine zentrale Diele, zwei verbundene Zimmer sowie ein Bad im Ausbau. Die Grundrissanlage ermöglicht mit überschaubarem Aufwand die Realisierung einer Einliegerwohnung. Herzstück ist die ca. 18 m² große Wohnküche mit direktem Zugang zur großzügigen, windgeschützten Terrasse. Im Obergeschoss stehen ein helles Wohnzimmer, ein Schlafzimmer, ein großes Tageslichtbad und eine eindrucksvoll geräumige Diele (ca. 23 m²; ideal als Arbeits-, Spiel- oder Bibliotheksbereich) zur Verfügung. Unter dem Dach bietet eine Ausbaureserve von rund 68 m² zusätzliche Optionen – vom Atelier bis zu weiteren Schlafräumen.
Das weitläufige, sonnige Grundstück lädt mit Garten und Terrasse zu entspannten Stunden ein. Zugleich eröffnet die Grundstücksgröße die Möglichkeit einer zusätzlichen Bebauung und damit Perspektiven etwa für ein Mehrgenerationenprojekt. Eine große Garage mit Werkstatt sowie zusätzliche Stellflächen (auch für Wohnmobile) runden das Angebot ab.
Die Lage nahe Zwenkauer See, Grünflächen und Naturwegen bietet hohen Freizeitwert bei kurzer Distanz zur Stadt Leipzig – ein sofort beziehbares Zuhause mit moderner Technik und klarer Perspektive für individuelle Wohnideen.
Gerne nehmen wir Sie unabhängig davon als Suchkunden in unserer Datenbank auf. Füllen Sie hierfür bitte einfach das Suchkundenformular auf unserer Website aus: https://vvv-leipzig-immobilien.de/suchprofil-anlegen/. Dann bekommen Sie in Zukunft passende Angebote von uns noch vor deren Veröffentlichung.
Wenn Sie einen Besichtigungstermin wünschen, klicken Sie bitte auf den Button "Besichtigungstermin" und Sie erhalten zeitnah Terminvorschläge.
Im Erdgeschoss erwartet Sie eine zentrale Diele, zwei verbundene Zimmer sowie ein Bad im Ausbau. Die Grundrissanlage ermöglicht mit überschaubarem Aufwand die Realisierung einer Einliegerwohnung. Herzstück ist die ca. 18 m² große Wohnküche mit direktem Zugang zur großzügigen, windgeschützten Terrasse. Im Obergeschoss stehen ein helles Wohnzimmer, ein Schlafzimmer, ein großes Tageslichtbad und eine eindrucksvoll geräumige Diele (ca. 23 m²; ideal als Arbeits-, Spiel- oder Bibliotheksbereich) zur Verfügung. Unter dem Dach bietet eine Ausbaureserve von rund 68 m² zusätzliche Optionen – vom Atelier bis zu weiteren Schlafräumen.
Das weitläufige, sonnige Grundstück lädt mit Garten und Terrasse zu entspannten Stunden ein. Zugleich eröffnet die Grundstücksgröße die Möglichkeit einer zusätzlichen Bebauung und damit Perspektiven etwa für ein Mehrgenerationenprojekt. Eine große Garage mit Werkstatt sowie zusätzliche Stellflächen (auch für Wohnmobile) runden das Angebot ab.
Die Lage nahe Zwenkauer See, Grünflächen und Naturwegen bietet hohen Freizeitwert bei kurzer Distanz zur Stadt Leipzig – ein sofort beziehbares Zuhause mit moderner Technik und klarer Perspektive für individuelle Wohnideen.
Gerne nehmen wir Sie unabhängig davon als Suchkunden in unserer Datenbank auf. Füllen Sie hierfür bitte einfach das Suchkundenformular auf unserer Website aus: https://vvv-leipzig-immobilien.de/suchprofil-anlegen/. Dann bekommen Sie in Zukunft passende Angebote von uns noch vor deren Veröffentlichung.
Wenn Sie einen Besichtigungstermin wünschen, klicken Sie bitte auf den Button "Besichtigungstermin" und Sie erhalten zeitnah Terminvorschläge.
Ausstattungsmerkmale
| Anzahl der Etagen im Haus | 2 |
| Bad | 2 |
| Bad | Wanne, Fenster, Bidet |
| Boden | Laminat, Dielen |
| Balkone | 1 |
| Garten | |
| Keller |
* 515 m² - teilbar für späteren Neubau!
* Natur- und Großstadtnah
* Teilsaniert mit Fertigstellungsbedarf
* Heizung neu
* Alle Leitungen neu
* Schornstein saniert
* 4-5 Zimmer auf ca. 137,38 m² Wohnfläche
* 68 m² Ausbaureserve unter dem Dach
* Badezimmer mit Fenster, Badewanne und Bidet
* Weiteres Badezimmer im Bau
* Großer Garten
* Garage mit Werkstatt
* Natur- und Großstadtnah
* Teilsaniert mit Fertigstellungsbedarf
* Heizung neu
* Alle Leitungen neu
* Schornstein saniert
* 4-5 Zimmer auf ca. 137,38 m² Wohnfläche
* 68 m² Ausbaureserve unter dem Dach
* Badezimmer mit Fenster, Badewanne und Bidet
* Weiteres Badezimmer im Bau
* Großer Garten
* Garage mit Werkstatt
Sonstige Informationen
Hinweis zur Richtigkeit und Vollständigkeit der Angaben:
Der Makler weist darauf hin, dass die von ihm weitergegebenen Objektinformationen vom Verkäufer bzw. von einem vom Verkäufer beauftragten Dritten stammen und von ihm, dem Makler, auf ihre Richtigkeit nicht überprüft worden sind. Es ist Sache des Kunden, diese Angaben auf ihre Richtigkeit hin zu überprüfen. Der Makler, der diese Informationen nur weitergibt, übernimmt für die Richtigkeit keinerlei Haftung.
Der Makler weist darauf hin, dass die von ihm weitergegebenen Objektinformationen vom Verkäufer bzw. von einem vom Verkäufer beauftragten Dritten stammen und von ihm, dem Makler, auf ihre Richtigkeit nicht überprüft worden sind. Es ist Sache des Kunden, diese Angaben auf ihre Richtigkeit hin zu überprüfen. Der Makler, der diese Informationen nur weitergibt, übernimmt für die Richtigkeit keinerlei Haftung.
Karte wird geladen...
Objektstandort
04442 Zwenkau
- Sachsen
Lage & Infrastruktur
Objektstandort
04442 Zwenkau
- Sachsen
Zwenkau verbindet naturnahes Wohnen mit schneller Anbindung an die Leipziger Metropolregion. Das Einfamilienhaus liegt zentral in einer gewachsenen Wohngegend; Grundschule, Gymnasium und Kindergarten sind in ca. drei Minuten zu Fuß erreichbar. Ebenso befinden sich Freibad, Supermärkte, Bäckereien, Drogerien, kleinere Fachgeschäfte sowie Hausärzte, Apotheken und weitere medizinische Angebote bequem im fußläufigen Umfeld. Cafés und Restaurants runden die Versorgung vor Ort ab.
Der nahe Zwenkauer See lädt zu Spaziergängen, Radtouren und Tagen am Wasser ein; Wiesen, Felder und Waldwege bieten zusätzliche Erholungsmöglichkeiten direkt vor der Haustür. Leipzig erreicht man per Auto oder öffentlichen Verkehrsmitteln in etwa 20–30 Minuten – ideal für alle, die kurze Wege zu Arbeit, Kultur und Stadtleben mit der Ruhe eines grünen Wohnorts verbinden möchten.
In Summe bietet die Lage ein familienfreundliches Umfeld mit kurzen Alltagswegen und hohem Freizeitwert.
Der nahe Zwenkauer See lädt zu Spaziergängen, Radtouren und Tagen am Wasser ein; Wiesen, Felder und Waldwege bieten zusätzliche Erholungsmöglichkeiten direkt vor der Haustür. Leipzig erreicht man per Auto oder öffentlichen Verkehrsmitteln in etwa 20–30 Minuten – ideal für alle, die kurze Wege zu Arbeit, Kultur und Stadtleben mit der Ruhe eines grünen Wohnorts verbinden möchten.
In Summe bietet die Lage ein familienfreundliches Umfeld mit kurzen Alltagswegen und hohem Freizeitwert.
Kontaktanfrage senden
Über den Anbieter
Willuhn Immobilien e. K.
Scherlstraße 12
04103 Leipzig
Kontakt
| Telefon | 01520-2505830 |
| Fax | 0341 25327329 |
| Website | www.vvv-leipzig-immobilien.de |
Ansprechpartner/in
Shenja Schorina