Bezugsfreie Eigentumswohnung mit Balkon
148.000 €
Kaufpreis
89,85 m²
Wohnfläche
3
Zimmer
immobilien.de Nr.: 9431949
Objektnummer: 422832
Kaufpreis
| Kaufpreis | 148.000 € |
| Hausgeld | 376 € |
| Maklerprovision | keine Provision, courtagefrei |
Wohnfläche, Grundstück & Bausubstanz
| Wohnfläche | 89,85 m² |
| Zimmer | 3 |
| Baujahr | 1972 |
| Verfügbar ab | nach Absprache |
Energie
| Energieausweistyp | Verbrauch |
| Energieeffizienzklasse | C |
| Energieverbrauchkennwert | 89 kWh/(m²*a) |
| Energieträger/Befeuerung | Fernwärme |
Beschreibung der Immobilie
Die Wohnung eird derzeit saniert - die Fotos zeigen die unsanierte Wohnung.
Sanierung:
Es werden die Wände, Bodenbeläge und das Bad erneuert.
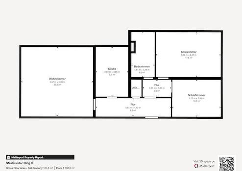
Die helle Wohnung befindet sich im 5. OG.
Das Haus hat 6 Etagen und umfasst 36 Einheiten und ist in einem gepflegtem Zustand.
Das großzügige Wohnzimmer bietet Zugang zum sonnigen Balkon.
Darüber hinaus gibt es zwei weitere Zimmer, die als Schlaf oder Arbeitszimmer genutzt werden können.
Das modernisierte Vollbad ist zeitgemäß ausgestattet.
Die Küche bietet ausreichend Platz zur Gestaltung.
Sanierung:
Es werden die Wände, Bodenbeläge und das Bad erneuert.
Die helle Wohnung befindet sich im 5. OG.
Das Haus hat 6 Etagen und umfasst 36 Einheiten und ist in einem gepflegtem Zustand.
Das großzügige Wohnzimmer bietet Zugang zum sonnigen Balkon.
Darüber hinaus gibt es zwei weitere Zimmer, die als Schlaf oder Arbeitszimmer genutzt werden können.
Das modernisierte Vollbad ist zeitgemäß ausgestattet.
Die Küche bietet ausreichend Platz zur Gestaltung.
Ausstattungsmerkmale
| Anzahl der Etagen im Haus | 6 |
| Inserat befindet sich im Stockwerk | 5 |
| Bad | 1 |
| Fahrstuhl |
Fahrstuhl, Sonstiges (s. Text)
Sonstige Informationen
Heizungsart: Sonstiges (s. Text)
Energieträger: Fernwärme
Impressum:
Bongart Immobilien
Schiffbauerdamm 40
Büro 5405
10117 Berlin
+49 (0) 177 412 22 68
Inhaber: Maximilian Bongart
USt-IdNr.: DE271204680
Gewerbeerlaubnis gem. §34c GewO wurde erteilt durch:
Bezirksamt Mitte von Berlin am 03.03.2009
Zuständige Aufsichtsbehörde:
Bezirksamt Mitte von Berlin, Abt. Wirtschaft
Immobilien und Ordnungsamt
Karl-Marx-Allee 31
10178 Berlin
Makleranfragen nicht erwünscht. Nach § 7 UWG sind unaufgeforderte Kontaktaufnahmen durch Makler ohne ausdrückliche Einwilligung des Empfängers verboten!
ohne-makler (OM) ist weder Anbieter noch Vermittler der Immobilie. OM betreibt eine Plattform für Immobilieneigentümer, die unter anderem die gleichzeitige Veröffentlichung einzelner Inserate auf mehreren Immobilienportalen ermöglicht. Die Inhalte dieser Inserate werden ausschließlich von Dritten verantwortet. Für die Richtigkeit, Vollständigkeit oder Rechtmäßigkeit der Angaben übernimmt OM keine Haftung. Hinweise auf mögliche Rechtsverstöße können jederzeit gemeldet werden und werden nach Prüfung umgehend bearbeitet.
Energieträger: Fernwärme
Impressum:
Bongart Immobilien
Schiffbauerdamm 40
Büro 5405
10117 Berlin
+49 (0) 177 412 22 68
Inhaber: Maximilian Bongart
USt-IdNr.: DE271204680
Gewerbeerlaubnis gem. §34c GewO wurde erteilt durch:
Bezirksamt Mitte von Berlin am 03.03.2009
Zuständige Aufsichtsbehörde:
Bezirksamt Mitte von Berlin, Abt. Wirtschaft
Immobilien und Ordnungsamt
Karl-Marx-Allee 31
10178 Berlin
Makleranfragen nicht erwünscht. Nach § 7 UWG sind unaufgeforderte Kontaktaufnahmen durch Makler ohne ausdrückliche Einwilligung des Empfängers verboten!
ohne-makler (OM) ist weder Anbieter noch Vermittler der Immobilie. OM betreibt eine Plattform für Immobilieneigentümer, die unter anderem die gleichzeitige Veröffentlichung einzelner Inserate auf mehreren Immobilienportalen ermöglicht. Die Inhalte dieser Inserate werden ausschließlich von Dritten verantwortet. Für die Richtigkeit, Vollständigkeit oder Rechtmäßigkeit der Angaben übernimmt OM keine Haftung. Hinweise auf mögliche Rechtsverstöße können jederzeit gemeldet werden und werden nach Prüfung umgehend bearbeitet.
Karte wird geladen...
Objektstandort
Strahlsunder Ring 8
38444 Wolfsburg
- Niedersachsen
Lage & Infrastruktur
Objektstandort
Strahlsunder Ring 8
38444 Wolfsburg
- Niedersachsen
Die Immobilie befindet sich im Stralsunder Ring im Stadtteil Westhagen der Stadt Wolfsburg. Das Wohngebiet ist geprägt von mehrgeschossiger Wohnbebauung, großzügigen Grünflächen und einer gewachsenen Infrastruktur.
Einkaufsmöglichkeiten des täglichen Bedarfs, Schulen, Kindergärten, Ärzte sowie weitere Dienstleistungsangebote sind fußläufig oder in kurzer Entfernung erreichbar. Auch Anbindungen an den öffentlichen Nahverkehr befinden sich in unmittelbarer Nähe und ermöglichen eine gute Verbindung in die Wolfsburger Innenstadt sowie zu weiteren Stadtteilen.
Westhagen bietet eine praktische Wohnlage mit kurzen Wegen, einem hohen Maß an Alltagskomfort und einer soliden Verkehrsanbindung – sowohl für Eigennutzer als auch für Kapitalanleger attraktiv.
Einkaufsmöglichkeiten des täglichen Bedarfs, Schulen, Kindergärten, Ärzte sowie weitere Dienstleistungsangebote sind fußläufig oder in kurzer Entfernung erreichbar. Auch Anbindungen an den öffentlichen Nahverkehr befinden sich in unmittelbarer Nähe und ermöglichen eine gute Verbindung in die Wolfsburger Innenstadt sowie zu weiteren Stadtteilen.
Westhagen bietet eine praktische Wohnlage mit kurzen Wegen, einem hohen Maß an Alltagskomfort und einer soliden Verkehrsanbindung – sowohl für Eigennutzer als auch für Kapitalanleger attraktiv.
Kontaktanfrage senden
Kontakt
| Telefon | - |
| Fax | - |
| Website | www.ohne-makler.net |
Ansprechpartner/in
Angebot von Maximilian Bongart