***Eleganz und Raffinesse: Stadtvilla in bester Wohnlage mit Kinkeraktion für Ihr Traumhaus!***
673.751 €
Kaufpreis
150,23 m²
Wohnfläche
25 m²
Nutzfläche
5
Zimmer
immobilien.de Nr.: 9431377
Objektnummer: KR260123_250AH
Kaufpreis
| Kaufpreis | 673.751 € |
Wohnfläche, Grundstück & Bausubstanz
| Wohnfläche | 150,23 m² |
| Nutzfläche | 25 m² |
| Grundstücksfläche | 664 m² |
| Zimmer | 5 |
| Baujahr | 2026 |
| Verfügbar ab | 2026 |
| Zustand | Projektiert |
Energie
| Energietyp | KfW-40 |
| Heizungsart | Zentralheizung |
| Energieträger/Befeuerung | Luft-Wärme-Pumpe |
Beschreibung der Immobilie
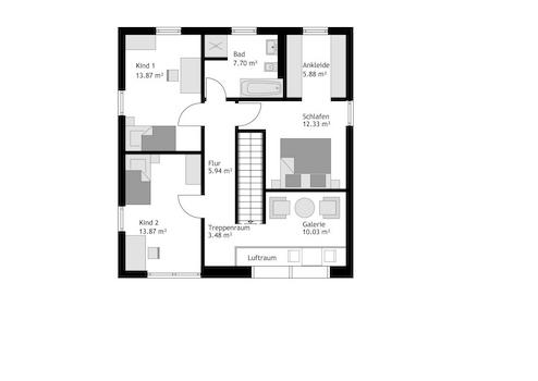
Erleben Sie das unvergleichliche Gefühl, in Ihrer eigenen Stadtvilla zu wohnen, die speziell nach Ihren Wünschen projektiert wurde. Inmitten eines charmanten Wohngebiets in Ahnsen/Immensen erwartet Sie auf einem großzügigen Grundstück von 664 m² diese traumhafte Villa, die mit einer Wohnfläche von 150,23 m² über zwei Etagen verteilt, höchsten Wohnkomfort bietet. Mit insgesamt fünf Zimmern, darunter drei Schlafzimmer und zwei luxuriöse Badezimmer - ausgestattet mit Dusche, Wanne und Fenstern - bietet dieses Haus ausreichend Platz für die ganze Familie und Gäste. Ein zusätzliches Gäste-WC sorgt für noch mehr Komfort. Ihr neues Zuhause zeichnet sich durch eine flexible Grundriss- und Raumgestaltung aus, die ganz auf Ihre individuellen Bedürfnisse abgestimmt werden kann.
Ausstattungsmerkmale
| Anzahl der Etagen im Haus | 2 |
| Küche | Offene Küche |
| Bad | 2 |
| Bad | Dusche, Wanne, Fenster |
| Boden | Fliesen |
| Terrassen | 1 |
| Barrierefrei |
Diese Stadtvilla besticht durch ihre luxuriöse Ausstattung und die Verwendung hochwertiger Materialien. Ausgestattet mit modernster Wärmepumpentechnologie als Befeuerungsart trifft Nachhaltigkeit auf Komfort und sorgt für ein angenehmes Wohnklima. Die Innenräume können ganz nach Ihrem Geschmack gestaltet werden - ob mit Flachdach oder Walmdach, in modernen bunten Farben oder klassisch dezent. Das Badezimmer überzeugt mit einer edlen Kombination aus Dusche, Wanne und Fenster für natürliche Belüftung.
Sonstige Informationen
Achtung: Klinkeraktion ist verlängert!
STREIF Haus - der Pionier der deutschen Fertighausbranche
Die langjährige Firmentradition des Unternehmens reicht bis in das Jahr 1929 zurück. In den 50er und 60er Jahren wurde in Deutschland schnell und viel Wohnraum für Familien benötigt, seitdem konzentrierte sich das Unternehmen auf die Entwicklung und Produktion von Fertighaustypen, die im Werk in großen Stückzahlen hergestellt werden konnten. So kann das Unternehmen auf 90.000 gebaute Hausobjekte zurückblicken und sich zu Recht als Pionier der deutschen Fertighausbranche bezeichnen.
Die neuen Energiesparhäuser - So baut man heute.
Unser Anspruch ist es, in enger Partnerschaft mit unseren Kunden langlebige Häuser zu bauen, mit einer hohen architektonischen Qualität, individuell geplant und dabei energieeffizient und ressourcenschonend. Jedes STREIF-Haus ist einzigartig und wird speziell für jeden Kunden "maßgeschneidert" und gebaut. Passend zu den persönlichen Wünschen, dem vorgegebenen Budget und dem vorhandenen Grundstück planen und bauen wir jedes Haus mit viel Liebe zum Detail.
STREIF Haus - der Pionier der deutschen Fertighausbranche
Die langjährige Firmentradition des Unternehmens reicht bis in das Jahr 1929 zurück. In den 50er und 60er Jahren wurde in Deutschland schnell und viel Wohnraum für Familien benötigt, seitdem konzentrierte sich das Unternehmen auf die Entwicklung und Produktion von Fertighaustypen, die im Werk in großen Stückzahlen hergestellt werden konnten. So kann das Unternehmen auf 90.000 gebaute Hausobjekte zurückblicken und sich zu Recht als Pionier der deutschen Fertighausbranche bezeichnen.
Die neuen Energiesparhäuser - So baut man heute.
Unser Anspruch ist es, in enger Partnerschaft mit unseren Kunden langlebige Häuser zu bauen, mit einer hohen architektonischen Qualität, individuell geplant und dabei energieeffizient und ressourcenschonend. Jedes STREIF-Haus ist einzigartig und wird speziell für jeden Kunden "maßgeschneidert" und gebaut. Passend zu den persönlichen Wünschen, dem vorgegebenen Budget und dem vorhandenen Grundstück planen und bauen wir jedes Haus mit viel Liebe zum Detail.
Karte wird geladen...
Objektstandort
31708 Ahnsen
Lage & Infrastruktur
Objektstandort
31708 Ahnsen
Ahnsen/Immensen bietet Ihnen eine ideale Kombination aus Ruhe und hervorragender Infrastruktur. Alles, was Sie im Alltag benötigen, befindet sich in unmittelbarer Nähe: Von Apotheken über Einkaufsmöglichkeiten bis hin zu Schulen und Kindergärten ist alles bequem erreichbar. Die Anbindung an öffentliche Verkehrsmittel wie Bahnhof und Bus ist hervorragend, sodass Sie schnell und unkompliziert Ihre Ziele erreichen können. Zudem lädt die Umgebung mit Spielplätzen und Parks zu Freizeitaktivitäten im Freien ein.
Kontaktanfrage senden
Über den Anbieter
STREIF Haus GmbH
Josef-Streif-Straße 1
54595 Weinsheim
Kontakt
| Telefon | 06551 12 00 |
| Mobil | +49 174 6403310 |
| Website | www.streif.de |
Ansprechpartner/in
Herr Andreas Maurer