Eigentumswohnung: Penthouse im Grünen – 4-Zimmer-Dachgeschosswohnung mit 144 m²
604.900 €
Kaufpreis
144 m²
Wohnfläche
4
Zimmer
immobilien.de Nr.: 9430430
Objektnummer: 422514
Kaufpreis
| Kaufpreis | 604.900 € |
| Maklerprovision | keine Provision, courtagefrei |
Wohnfläche, Grundstück & Bausubstanz
| Wohnfläche | 144 m² |
| Zimmer | 4 |
| Baujahr | 2025 |
| Verfügbar ab | 01.04.2026 |
| Zustand | Erstbezug |
Energie
| Heizungsart | Fußbodenheizung |
Beschreibung der Immobilie
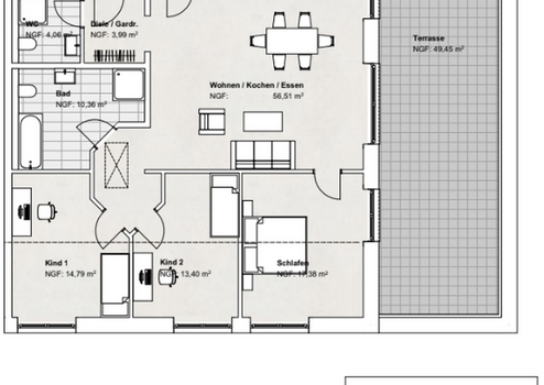
Wohnung 13 – großzügig, hell & hochwertig
Das Neubauprojekt bietet modernen Wohnraum mit hoher Aufenthaltsqualität. Jede Wohnung verfügt über einen offenen Wohn- und Essbereich mit angrenzender Küche, ein modernes Bad mit Dusche oder Badewanne sowie drei separate Schlafzimmer. Zusätzlich steht Ihnen ein praktischer Abstellraum innerhalb der Wohnung zur Verfügung – ein echtes Plus für Alltag und Ordnung.
Sie suchen das Besondere? Diese zwei 4-Zimmer-Dachgeschosswohnungen mit je rund 138 m² bieten Wohnkomfort auf höchstem Niveau. Großzügige Grundrisse, eine hochwertige Ausstattung und ein fantastischer Weitblick vom großen Balkon machen diese Wohnungen zu echten Highlights.
Dank der barrierearmen Gestaltung, des Aufzugs im Haus und der schwellenarmen Zugänge eignet sich das Objekt auch ideal für ältere Menschen oder Menschen mit eingeschränkter Mobilität. Die Ausstattung ist modern, pflegeleicht und auf ein angenehmes Wohnklima ausgerichtet.
Im Außenbereich sorgen gepflegte Wege, überwiegend überdachte Stellplätze mit einer vorbereiteten Infrastruktur für E-Mobilität für zusätzlichen Komfort und Nachhaltigkeit.
Das Neubauprojekt bietet modernen Wohnraum mit hoher Aufenthaltsqualität. Jede Wohnung verfügt über einen offenen Wohn- und Essbereich mit angrenzender Küche, ein modernes Bad mit Dusche oder Badewanne sowie drei separate Schlafzimmer. Zusätzlich steht Ihnen ein praktischer Abstellraum innerhalb der Wohnung zur Verfügung – ein echtes Plus für Alltag und Ordnung.
Sie suchen das Besondere? Diese zwei 4-Zimmer-Dachgeschosswohnungen mit je rund 138 m² bieten Wohnkomfort auf höchstem Niveau. Großzügige Grundrisse, eine hochwertige Ausstattung und ein fantastischer Weitblick vom großen Balkon machen diese Wohnungen zu echten Highlights.
Dank der barrierearmen Gestaltung, des Aufzugs im Haus und der schwellenarmen Zugänge eignet sich das Objekt auch ideal für ältere Menschen oder Menschen mit eingeschränkter Mobilität. Die Ausstattung ist modern, pflegeleicht und auf ein angenehmes Wohnklima ausgerichtet.
Im Außenbereich sorgen gepflegte Wege, überwiegend überdachte Stellplätze mit einer vorbereiteten Infrastruktur für E-Mobilität für zusätzlichen Komfort und Nachhaltigkeit.
Ausstattungsmerkmale
| Anzahl der Etagen im Haus | 4 |
| Inserat befindet sich im Stockwerk | 3 |
| Bad | 2 |
| Bad | Wanne |
| Boden | Fliesen, Kunststoff |
| Balkone | 1 |
| Terrassen | 0 |
| Fahrstuhl | |
| Barrierefrei | |
| Keller |
Keller, Dachterrasse, Fahrstuhl, Vollbad, Gäste-WC, Barrierefrei, Fliesen
Bemerkungen:
Helle Räume mit modernen Grundrissen
Barrierearme Zugänge und Aufzug im Haus
Zwei moderne Badezimmer mit Dusche oder Wanne
Abstellraum innerhalb der Wohnung
Erstbezug, hochwertige Boden- und Wandbeläge
Fußbodenheizung
Alle Fenster sind mit einer elektrischen Außenjalousie ausgestattet
Bemerkungen:
Helle Räume mit modernen Grundrissen
Barrierearme Zugänge und Aufzug im Haus
Zwei moderne Badezimmer mit Dusche oder Wanne
Abstellraum innerhalb der Wohnung
Erstbezug, hochwertige Boden- und Wandbeläge
Fußbodenheizung
Alle Fenster sind mit einer elektrischen Außenjalousie ausgestattet
Sonstige Informationen
Heizungsart: Fußbodenheizung
Energieausweis nicht vorhanden
Interessiert? Wir senden Ihnen gern ein ausführliches Exposé mit allen Informationen zu Wohnung, Grundriss und Kaufkonditionen zu – schreiben Sie uns einfach eine kurze Nachricht oder melden Sie sich telefonisch unter der folgenden Nummer: Herr Caner Mercan - 015111670994
Makleranfragen nicht erwünscht. Nach § 7 UWG sind unaufgeforderte Kontaktaufnahmen durch Makler ohne ausdrückliche Einwilligung des Empfängers verboten!
ohne-makler (OM) ist weder Anbieter noch Vermittler der Immobilie. OM betreibt eine Plattform für Immobilieneigentümer, die unter anderem die gleichzeitige Veröffentlichung einzelner Inserate auf mehreren Immobilienportalen ermöglicht. Die Inhalte dieser Inserate werden ausschließlich von Dritten verantwortet. Für die Richtigkeit, Vollständigkeit oder Rechtmäßigkeit der Angaben übernimmt OM keine Haftung. Hinweise auf mögliche Rechtsverstöße können jederzeit gemeldet werden und werden nach Prüfung umgehend bearbeitet.
Energieausweis nicht vorhanden
Interessiert? Wir senden Ihnen gern ein ausführliches Exposé mit allen Informationen zu Wohnung, Grundriss und Kaufkonditionen zu – schreiben Sie uns einfach eine kurze Nachricht oder melden Sie sich telefonisch unter der folgenden Nummer: Herr Caner Mercan - 015111670994
Makleranfragen nicht erwünscht. Nach § 7 UWG sind unaufgeforderte Kontaktaufnahmen durch Makler ohne ausdrückliche Einwilligung des Empfängers verboten!
ohne-makler (OM) ist weder Anbieter noch Vermittler der Immobilie. OM betreibt eine Plattform für Immobilieneigentümer, die unter anderem die gleichzeitige Veröffentlichung einzelner Inserate auf mehreren Immobilienportalen ermöglicht. Die Inhalte dieser Inserate werden ausschließlich von Dritten verantwortet. Für die Richtigkeit, Vollständigkeit oder Rechtmäßigkeit der Angaben übernimmt OM keine Haftung. Hinweise auf mögliche Rechtsverstöße können jederzeit gemeldet werden und werden nach Prüfung umgehend bearbeitet.
Karte wird geladen...
Objektstandort
Am Brüggeberge 14
38304 Wolfenbüttel
- Niedersachsen
Lage & Infrastruktur
Objektstandort
Am Brüggeberge 14
38304 Wolfenbüttel
- Niedersachsen
Fümmelse liegt nur wenige Fahrminuten vom Zentrum Wolfenbüttels entfernt und bietet gleichzeitig alle Vorteile eines ruhigen Wohnumfelds. Der Ort ist geprägt von Einfamilienhäusern, kleinen Mehrfamilienhäusern und einer freundlichen Nachbarschaft – optimal für Familien mit Kindern und für Menschen, die ihren Ruhestand in angenehmer Atmosphäre verbringen möchten.
Alle wichtigen Einrichtungen befinden sich in unmittelbarer Umgebung:
- Eine Grundschule ist in wenigen Gehminuten erreichbar
- Kindergarten und eine Tagespflegeeinrichtung des ASB befinden sich direkt in der Nachbarschaft
- Ein Spielplatz liegt gegenüber der Immobilie – perfekt für junge Familien
-Einkaufsmöglichkeiten, Ärzte und weitere Dienstleister sind schnell erreichbar
- Sehr gute Anbindung an die Innenstadt Wolfenbüttels und die B79
In Fümmelse finden Sie eine ruhige Wohnlage mit allen Vorzügen der Nähe zur Stadt – eingebettet in eine grüne Umgebung mit viel Lebensqualität.
Infrastruktur (im Umkreis von 5 km):
Apotheke, Lebensmittel-Discount, Allgemeinmediziner, Kindergarten, Grundschule, Realschule, Gesamtschule, Öffentliche Verkehrsmittel
Alle wichtigen Einrichtungen befinden sich in unmittelbarer Umgebung:
- Eine Grundschule ist in wenigen Gehminuten erreichbar
- Kindergarten und eine Tagespflegeeinrichtung des ASB befinden sich direkt in der Nachbarschaft
- Ein Spielplatz liegt gegenüber der Immobilie – perfekt für junge Familien
-Einkaufsmöglichkeiten, Ärzte und weitere Dienstleister sind schnell erreichbar
- Sehr gute Anbindung an die Innenstadt Wolfenbüttels und die B79
In Fümmelse finden Sie eine ruhige Wohnlage mit allen Vorzügen der Nähe zur Stadt – eingebettet in eine grüne Umgebung mit viel Lebensqualität.
Infrastruktur (im Umkreis von 5 km):
Apotheke, Lebensmittel-Discount, Allgemeinmediziner, Kindergarten, Grundschule, Realschule, Gesamtschule, Öffentliche Verkehrsmittel
Kontaktanfrage senden
Über den Anbieter
OM PropTech GmbH
Humboldtstraße 25a
21509 Glinde
Kontakt
| Telefon | - |
| Fax | - |
| Website | www.ohne-makler.net |
Ansprechpartner/in
Privat von Lena Kaiser
Weitere Angebote des Anbieters
24
Provisionsfrei Autowerkstatt/ Büro/ Bistroküche/ ...
Hallen / Lager / Produktion
4509 Krostitz
Zum Verkauf steht eine in 2020 errichtete Gewerbeanlage mit 5 Werkstattboxen a 2 KFZ, 30 Stellplätzen im Freien und 1 überdachter Platz. Zu dem sehr gepflegten Objekt gehört ein Bürokomplex, perfekt ausgestattet, mit ...
1.270.000 €
Kaufpreis
1582 m²
Gesamtfläche
16
Ruhige 4-Zimmer-Maisonette Whg in 2-Fam. Haus, ...
Wohnung
63303 Dreieich
An nettes Paar oder Einzelperson zu vermieten (1-2 Personen). Lichtdurchflutete, wunderschöne und klimatisierte 2-Etagenwohnung in gepflegtem 2-Familienhaus in ruhigem Wohngebiet. Die Wohnung ist insgesamt sehr hell ...
1.450 €
Kaltmiete (netto)
116 m²
Wohnfläche
4,5
Zimmer
10
2 WG Zimmer in Stuttgart Gerlingen zu mieten
Zimmer
70839 Gerlingen
Ich vermiete ab sofort 2 WG-Zimmer in einer schönen 3 Zimmer Wohnung in Stuttgart Gerlingen. Zimmer 1: Das Zimmer ist ca. 16 qm groß und gut und geräumig geschnitten. Das Zimmer wird unmöbiliert vermietet. Die ...
475 €
Kaltmiete (netto)
16 m²
Wohnfläche
1
Zimmer
9
Designvilla mit Pool, Lift und Glasarchitektur
Haus
24576 Bad Bramstedt
Exklusive moderne Villa mit Pool und beeindruckender Glasarchitektur Einladung: Sehr geehrte Damen und Herren, zum Verkauf steht hier unsere Familien-Villa, direkt in der erste Reihe zum Golfplatz in Bad Bramstedt-Bisse ...
2.150.000 €
Kaufpreis
373 m²
Wohnfläche
7
Zimmer
15
Neubau**Helle exclusive 3-Zi-Wohnung, KFW40 Plus, Süd ...
Wohnung
73326 Deggingen
Vermietet wird im 2022 Neubau eine helle exklusive 3 Zi-Wohnung mit Süd-Balkon in Aussichtslage, im modernen KFW40 Plus-Effizienzgebäude in ruhiger Ortsrandlage von Deggingen. Gebäude befindet sich in 2ter Reihe am ...
920 €
Kaltmiete (netto)
72 m²
Wohnfläche
3
Zimmer