Neuer Winkelbungalow in Altheim!

66440 Blieskastel
Frei ab: nach Vereinbarung
479.464 € Kaufpreis
Wohnfläche
117 m²
Zimmer
4
Offene Küche
Terrasse
Barrierefrei
Stellplatz

Kaufpreis

Kaufpreis 479.464 €
Stellplatz Garage Kaufpreis9.000 €

Wohnfläche, Grundstück & Bausubstanz

Wohnfläche117 m²
Nutzfläche127 m²
Grundstücksfläche500 m²
Zimmer4
Etagen1
Baujahr2026
Verfügbar ab nach Vereinbarung
ZustandErstbezug

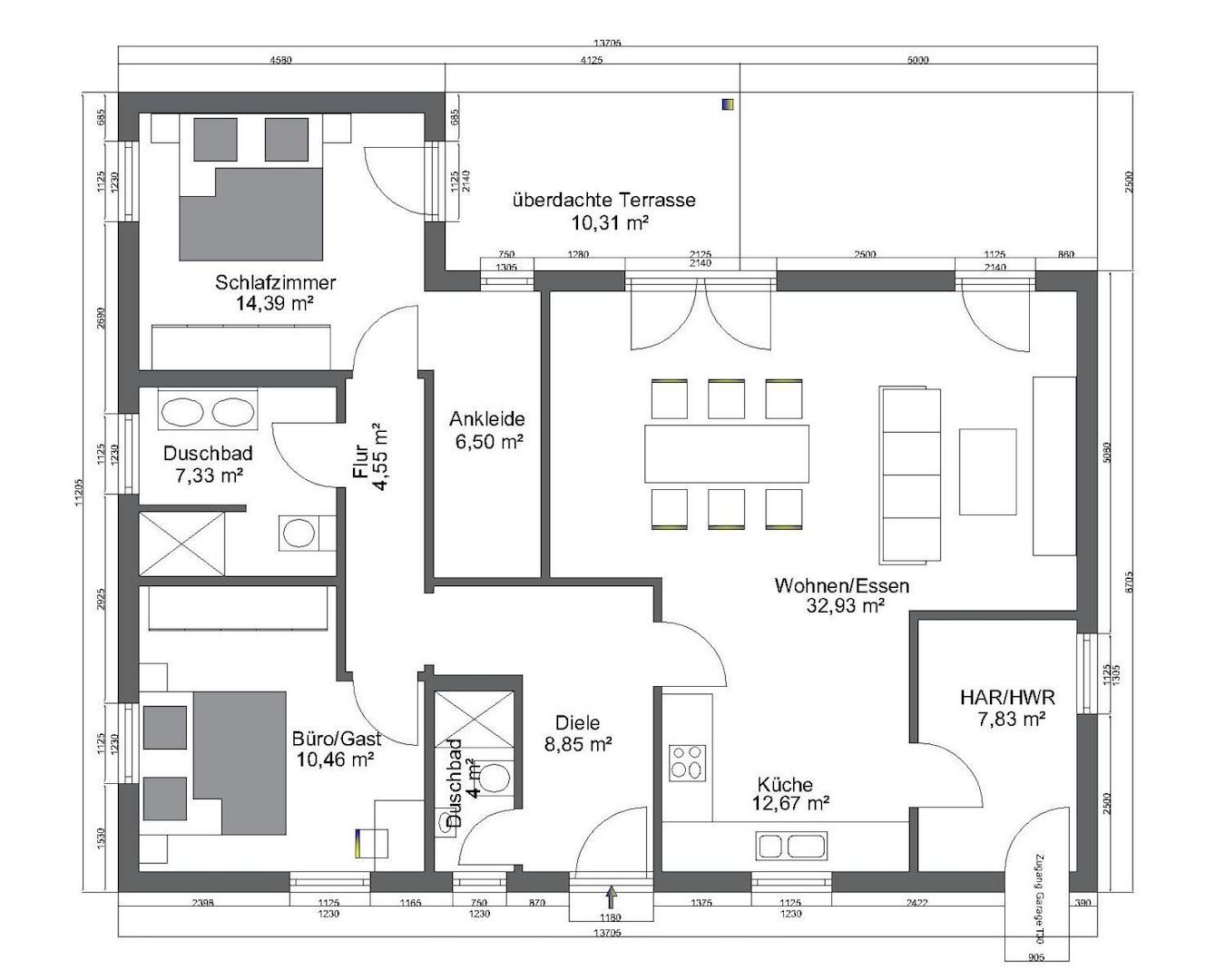
Beschreibung der Immobilie

Der Bungalow ist konzipiert für Paare und Singles. Neben einem großzügigen Wohn-/Ess- und Kochbereich bietet der Grundriss eine perfekte Raumaufteilung und einen zusätzlichen Raum, der als Home-Office, Gäste-/Hobbyraum genutzt werden kann. Der Bungalow ist barrierearm geplant und bietet größtmöglichen Wohnkomfort auf einer Ebene. Die Garage ist mit einem praktischen Nebeneingang in den Hauswirtschafts-/Haustechnikraum geplant.
Die Bungalow-Highlights:
- klassisch moderne Bungalow-Architektur mit Walmdach
- Bungalow praktischem Nebeneingang in den Hauswirtschafts-/Haustechnikraum
- zusätzlicher Raum, der als Home-Office, Gäste- oder Hobbyraum genutzt werden kann
- Zugang zum Garten von der Küche, dem Wohn-Essbereich und aus dem Schlafzimmer
- 2 Bäder mit Dusche
Der gezeigte Bungalow-Entwurf stellt eine Gestaltungsidee dar. STREIF baut alle Bungalows und Häuser individuell nach Ihren Wünschen und Anforderungen.
Thomas Heitz 0160 7038141 oder thomas.heitz@streif.de

Ausstattungsmerkmale

KücheOffene Küche
Bad2
Bad (Ausstattung)Dusche, Wanne, Fenster
BodenFliesen, Stein, Teppich, Parkett, Fertigparkett, Laminat, Dielen, Kunststoff, Linoleum, Marmor, Granit
Terrassen1
BarrierefreiJa
Garage/Stellplätze1
Bei Ihrem Besuch in unserem Ausstattungszentrum geht es um die Umsetzung Ihrer Wünsche bezüglich der technischen Ausstattung für Ihr neues Zuhause. Ihr persönlicher Ausstattungsberater empfängt Sie gut vorbereitet, denn er ist bestens mit Ihrem Bauvorhaben vertraut und kennt bereits die Punkte, die es noch festzulegen gilt. Dabei wird die Grundrissplanung des Architekten auf einem im Schreibtisch integrierten, überdimensionalen Tablet dargestellt. Diese moderne Technik erlaubt es Ihnen und ihrem Berater, mit Finger oder Stift mögliche Änderungen und Ergänzungen interaktiv direkt im Plan zu notieren.

Beim Rundgang durch die rund 800 m² große Ausstellung klären sie mit ihrem Ausstattungsberater gemeinsam die Details zur technischen Ausstattung und zum äußeren Erscheinungsbild Ihres Hauses. Sie entscheiden über die optische Gestaltung von Fassade, Dach, Fenster, Haustür, Innentüren und klären die Details zur Haustechnik.

Thomas Heitz 0160 7038141 oder thomas.heitz@streif.de

Energie

A+
Energieeffizienzklasse A+ · 33.00 kWh/(m²*a)
EnergieausweistypVerbrauch
Baujahr (laut Energieausweis)2026
EnergieeffizienzklasseA+
Energietyp Niedrigenergie, Neubaustandard, KfW-40
Energieverbrauchkennwert33.00 kWh/(m²*a)
Heizungsart Zentralheizung
Wesentlicher EnergieträgerStrom
Energieträger/Befeuerung Luft-Wärme-Pumpe

Karte wird geladen...
66440 Blieskastel

Lage & Infrastruktur

Das Grundstück liegt in ruhiger Wohnlage von Altheim.

Das Haus ist auf einem realen Baugrundstück geplant oder auf einem Grundstück in einer Planungsphase. Das Grundstück erwerben Sie über den beauftragten Immobilienmakler direkt vom Eigentümer. Der Preis des Grundstücks ist im Angebotspreis bereits eingerechnet.

Bitte haben Sie Verständnis dafür, dass wir ohne ein persönliches Gespräch keine Grundstücksdaten weiterleiten können.

Gern sind wir bei der Wahl Ihres Traumgrundstückes behilflich!

Natürlich können wir ihren Haustraum auch auf einem anderen Grundstück realisieren, lassen Sie sich dazu in einem unverbindlichen Gespräch zu Ihrem Bauvorhaben beraten.

Thomas Heitz 0160 7038141 oder thomas.heitz@streif.de

Sonstige Informationen

Der angegebene Preis bezieht sich auf die schlüsselfertige Übergabe, Sie müssen lediglich noch die Lampen anbringen und die Möbel ins Haus bringen. Und wenn Sie möchten, kann ich das natürlich für Sie organisieren.

Thomas Heitz 0160 7038141 oder thomas.heitz@streif.de
Ansprechpartner/in: Herr Thomas Heitz
STREIF Haus GmbH
Josef-Streif-Straße 1, 54595 Weinsheim

Weitere Angebote in Blieskastel