Ihr Familienhaus mit STREIF möglich !

66440 Blieskastel
Frei ab: nach Vereinbarung
269.347 € Kaufpreis
Wohnfläche
126 m²
Zimmer
5
Terrasse
Stellplatz

Kaufpreis

Kaufpreis 269.347 €
Stellplatz Garage Kaufpreis9.000 €

Wohnfläche, Grundstück & Bausubstanz

Wohnfläche126 m²
Grundstücksfläche500 m²
Zimmer5
Etagen2
Baujahr2026
Verfügbar ab nach Vereinbarung
ZustandErstbezug

Beschreibung der Immobilie

Mit dem Ausbauhauskonzept von STREIF in Verbindung mit Ihrer Eigenleistung kann das Ihr Familienhaus werden.
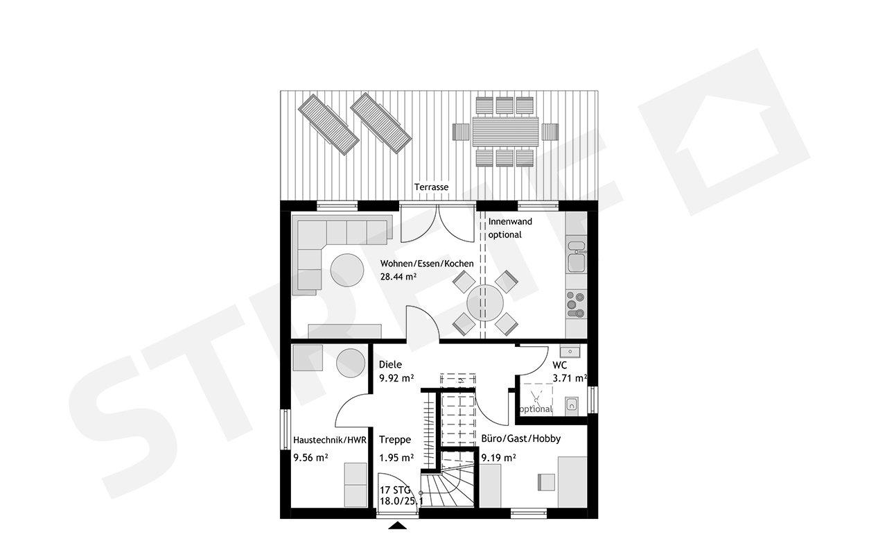
Das behagliche Haus mit Satteldach punktet mit einem gut durchdachten Grundriss. Der offen gestaltete Wohn-/Ess- und Kochbereich ist lichtdurchflutet. Ein praktischer Hauswirtschaftsraum ist direkt neben der Küche platziert. Komplettiert wird das Raumangebot im Erdgeschoss mit einem Gäste-WC, das optional auch als Duschbad ausgeführt werden kann, einer Diele und einem Haustechnikraum.
Im Dachgeschoss des Hauses sind zwei schöne Kinderzimmer, ein Elternschlafzimmer, ein Flur und ein Familienbad untergebracht. Die Lage der Treppe und des Haustechnikraumes sind fixiert.
Objektart: Einfamilienhaus, 1,5-geschossig
Dachform: Satteldach
Kniestock: 0,75m

Ausstattungsmerkmale

Bad1
Bad (Ausstattung)Dusche, Wanne, Fenster
Terrassen1
Garage/Stellplätze1
Das Ausbauhaus von STREIF !

Der genannte Preis bezieht sich auf die Übergabe des Hauses als Ausbauhaus, vorbereitet für eine Ausführung in KfW 55 inklusive der Fundamentplatte mit umlaufendem Fundamentstreifen 45x100 cm und dem Kanal unter der Fundamentplatte. Perimeterdämmungen in verschiedenen Ausführungen sind gegen Mehrpreis möglich und müssen je nach Anforderung definiert werden.
Die Massivholztreppe in Buche natur keilgezinkt ist bereits im Lieferumfang enthalten und eingebaut.
Ich erläutere in einem persönlichen Gespräch gerne, welche Möglichkeiten wir Ihnen bieten können, kontaktieren Sie mich einfach, damit wir einen Termin vereinbaren können.

Thomas Heitz 0160 7038141 oder thomas.heitz@streif.de

Energie

A+
Energieeffizienzklasse A+ · 33.00 kWh/(m²*a)
EnergieausweistypVerbrauch
Baujahr (laut Energieausweis)2026
EnergieeffizienzklasseA+
Energietyp Niedrigenergie, Neubaustandard, KfW-40
Energieverbrauchkennwert33.00 kWh/(m²*a)

Karte wird geladen...
66440 Blieskastel

Lage & Infrastruktur

Das Grundstück liegt in ruhiger Wohnlage von Altheim.

Das Haus ist auf einem realen Baugrundstück geplant oder auf einem Grundstück in einer Planungsphase. Das Grundstück erwerben Sie über den beauftragten Immobilienmakler direkt vom Eigentümer. Der Preis des Grundstücks ist im Angebotspreis bereits eingerechnet.

Bitte haben Sie Verständnis dafür, dass wir ohne ein persönliches Gespräch keine Grundstücksdaten weiterleiten können.

Gern sind wir bei der Wahl Ihres Traumgrundstückes behilflich!

Natürlich können wir ihren Haustraum auch auf einem anderen Grundstück realisieren, lassen Sie sich dazu in einem unverbindlichen Gespräch zu Ihrem Bauvorhaben beraten.

Thomas Heitz 0160 7038141 oder thomas.heitz@streif.de

Sonstige Informationen

Wahlweise kann Ihr Haus in den Ausbaustufen "AUSBAUFERTIG" oder "FASTFERTIG" oder FASTFERTIG PLUS" bis hin zu "SCHLÜSSELFERTIG" geplant werden.

Wir ermitteln in der Bedarfsanalyse gemeinsam mit Ihnen den gewünschten Fertigstellungsgrad und kalkulieren den entsprechenden Preis für Sie.

Abgesehen von den Ausbaustufen bestimmen Sie ebenso die technische und optische Ausstattung ganz nach Ihren Vorstellungen und Wünschen.

Diese ersten Gespräche und die Erstellung eines Angebotes sind für Sie kostenlos.

Ich freue mich schon jetzt auf unseren ersten gemeinsamen Termin damit wir mit den ersten Schritten beginnen können.

Thomas Heitz 0160 7038141 oder thomas.heitz@streif.de
Ansprechpartner/in: Herr Thomas Heitz
STREIF Haus GmbH
Josef-Streif-Straße 1, 54595 Weinsheim

Weitere Angebote in Blieskastel