Parkblick vorne, Garten-Idyll hinten: Freistehendes Haus provisionsfrei in Bestlage Neu-Harlaching
2.200.000 €
Kaufpreis
175 m²
Wohnfläche
7
Zimmer
immobilien.de Nr.: 9429884
Objektnummer: 422441
Kaufpreis
| Kaufpreis | 2.200.000 € |
| Maklerprovision | keine Provision, courtagefrei |
Wohnfläche, Grundstück & Bausubstanz
| Wohnfläche | 175 m² |
| Grundstücksfläche | 580 m² |
| Zimmer | 7 |
| Baujahr | 1956 |
| Verfügbar ab | nach Absprache |
| Zustand | Teil Vollrenovierungsbed |
Energie
| Energieausweistyp | Bedarfsausweis |
| Energieeffizienzklasse | H |
| Endenergiebedarf | 343 |
| Heizungsart | Zentralheizung |
| Energieträger/Befeuerung | Gas |
Beschreibung der Immobilie
Wo München besonders grün ist: Direkt gegenüber einer Parkanlage und nur wenige Schritte vom Perlacher Forst entfernt, wartet dieses freistehende Haus auf Ihre Ideen. Genießen Sie den freien Blick ins Grüne aus jedem Fenster – ohne vis-à-vis Nachbarn an der Frontseite. Ein Paradies für Familien und Individualisten, die das Besondere suchen. Verkauf von Privat – ohne Maklerprovision!
Ausstattungsmerkmale
| Anzahl der Etagen im Haus | 3 |
| Bad | Dusche |
| Boden | Laminat |
| Balkone | 1 |
| Garten | |
| Terrassen | 0 |
| Garage/Stellplätze | 2 |
| Keller |
Balkon, Garten, Keller, Duschbad, Laminat
Bemerkungen:
Das Haus – Viel Raum für Ihre Träume:
Das freistehende Mehrfamilienhaus bietet auf ca. 150 m² Wohnfläche (zzgl. ausgebautem Dachzimmer) enorme Entfaltungsmöglichkeiten. Ob als großzügiges Einfamilienhaus nach einer Kernsanierung, als wertbeständiges Anlageobjekt oder als Neubau. Das große Grundstück eignet sich auch hervorragend für den Bau zweier hochwertiger Doppelhaushälften.
Hausaufteilung:
Erdgeschoss: Wohnung mit ca. 75 m²
Obergeschoss: Wohnung mit ca. 75 m² und Balkon
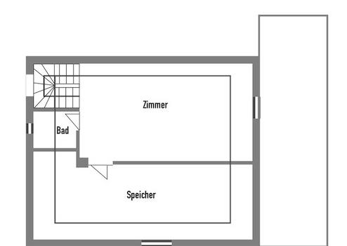
Dachgeschoss: als zusätzlicher Wohnraum nutzbar
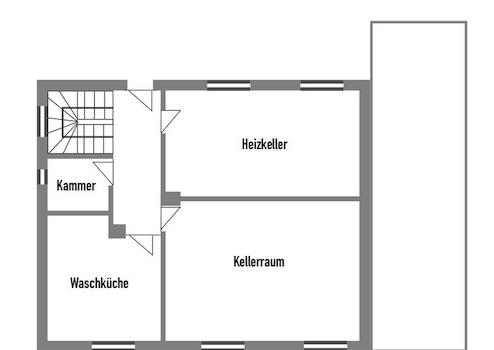
Keller: extra Platz für Stau- und Waschraum
Garten: 580 m² Grund – viel Platz für Terrasse, Pool oder Spielgeräte
Parken: 2 Garagen + 1 Stellplatz
Bemerkungen:
Das Haus – Viel Raum für Ihre Träume:
Das freistehende Mehrfamilienhaus bietet auf ca. 150 m² Wohnfläche (zzgl. ausgebautem Dachzimmer) enorme Entfaltungsmöglichkeiten. Ob als großzügiges Einfamilienhaus nach einer Kernsanierung, als wertbeständiges Anlageobjekt oder als Neubau. Das große Grundstück eignet sich auch hervorragend für den Bau zweier hochwertiger Doppelhaushälften.
Hausaufteilung:
Erdgeschoss: Wohnung mit ca. 75 m²
Obergeschoss: Wohnung mit ca. 75 m² und Balkon
Dachgeschoss: als zusätzlicher Wohnraum nutzbar
Keller: extra Platz für Stau- und Waschraum
Garten: 580 m² Grund – viel Platz für Terrasse, Pool oder Spielgeräte
Parken: 2 Garagen + 1 Stellplatz
Sonstige Informationen
Heizungsart: Zentralheizung
Energieträger: Gas
Infrastruktur & Freizeit:
U-Bahn: Nur 5 Gehminuten entfernt (in circa 10 Min. am Hauptbahnhof)
Natur: Der Perlacher Forst beginnt fast vor der Haustür
Alltag: Bäcker, Bank, Restaurants und Schulen sind bequem zu Fuß erreichbar
Wichtige Eckdaten für Käufer:
Das Objekt ist renovierungsbedürftig (inkl. Kanalsanierung ca. 5.000 €). Die Wohnungen sind vermietet, die Mieter sind jedoch informiert und suchen nach neuem Wohnraum – ideal für eine zeitnahe Eigennutzung.
Makleranfragen nicht erwünscht. Nach § 7 UWG sind unaufgeforderte Kontaktaufnahmen durch Makler ohne ausdrückliche Einwilligung des Empfängers verboten!
ohne-makler (OM) ist weder Anbieter noch Vermittler der Immobilie. OM betreibt eine Plattform für Immobilieneigentümer, die unter anderem die gleichzeitige Veröffentlichung einzelner Inserate auf mehreren Immobilienportalen ermöglicht. Die Inhalte dieser Inserate werden ausschließlich von Dritten verantwortet. Für die Richtigkeit, Vollständigkeit oder Rechtmäßigkeit der Angaben übernimmt OM keine Haftung. Hinweise auf mögliche Rechtsverstöße können jederzeit gemeldet werden und werden nach Prüfung umgehend bearbeitet.
Energieträger: Gas
Infrastruktur & Freizeit:
U-Bahn: Nur 5 Gehminuten entfernt (in circa 10 Min. am Hauptbahnhof)
Natur: Der Perlacher Forst beginnt fast vor der Haustür
Alltag: Bäcker, Bank, Restaurants und Schulen sind bequem zu Fuß erreichbar
Wichtige Eckdaten für Käufer:
Das Objekt ist renovierungsbedürftig (inkl. Kanalsanierung ca. 5.000 €). Die Wohnungen sind vermietet, die Mieter sind jedoch informiert und suchen nach neuem Wohnraum – ideal für eine zeitnahe Eigennutzung.
Makleranfragen nicht erwünscht. Nach § 7 UWG sind unaufgeforderte Kontaktaufnahmen durch Makler ohne ausdrückliche Einwilligung des Empfängers verboten!
ohne-makler (OM) ist weder Anbieter noch Vermittler der Immobilie. OM betreibt eine Plattform für Immobilieneigentümer, die unter anderem die gleichzeitige Veröffentlichung einzelner Inserate auf mehreren Immobilienportalen ermöglicht. Die Inhalte dieser Inserate werden ausschließlich von Dritten verantwortet. Für die Richtigkeit, Vollständigkeit oder Rechtmäßigkeit der Angaben übernimmt OM keine Haftung. Hinweise auf mögliche Rechtsverstöße können jederzeit gemeldet werden und werden nach Prüfung umgehend bearbeitet.
Karte wird geladen...
Objektstandort
81547 München
- Bayern
Lage & Infrastruktur
Objektstandort
81547 München
- Bayern
Lage, Lage, Lage – Ihr Logenplatz im Grünen: Dieses charmante Haus befindet sich in einer der exklusivsten Lagen von Neu-Harlaching. Das Besondere: Nur eine Straße trennt Ihr Grundstück vom gegenüberliegenden Park.
Vorne: Ein freier, entspannender Blick direkt in die Parkanlage (inkl. Spielplatz).
Hinten: Ihr privater, großer Garten mit altem Baumbestand und weitem Blick in die gepflegten Nachbargärten. Hier wohnen Sie buchstäblich „zwischen zwei Grünoasen“.
Infrastruktur (im Umkreis von 5 km):
Apotheke, Lebensmittel-Discount, Allgemeinmediziner, Kindergarten, Grundschule, Gymnasium, Öffentliche Verkehrsmittel
Vorne: Ein freier, entspannender Blick direkt in die Parkanlage (inkl. Spielplatz).
Hinten: Ihr privater, großer Garten mit altem Baumbestand und weitem Blick in die gepflegten Nachbargärten. Hier wohnen Sie buchstäblich „zwischen zwei Grünoasen“.
Infrastruktur (im Umkreis von 5 km):
Apotheke, Lebensmittel-Discount, Allgemeinmediziner, Kindergarten, Grundschule, Gymnasium, Öffentliche Verkehrsmittel