STREIF baut Euer perfektes Zuhause
534.180 €
Kaufpreis
140 m²
Wohnfläche
6
Zimmer
immobilien.de Nr.: 9429636
Objektnummer: AM74915013
Kaufpreis
| Kaufpreis | 534.180 € |
Wohnfläche, Grundstück & Bausubstanz
| Wohnfläche | 140 m² |
| Grundstücksfläche | 490 m² |
| Zimmer | 6 |
| Verfügbar ab | keine Angabe |
| Zustand | Erstbezug |
Energie
| Energietyp | KfW-40 |
| Heizungsart | Zentralheizung |
| Energieträger/Befeuerung | Luft-Wärme-Pumpe |
Beschreibung der Immobilie
STREIF-Doppelhausentwurf 1 - im Stadtvillenstil
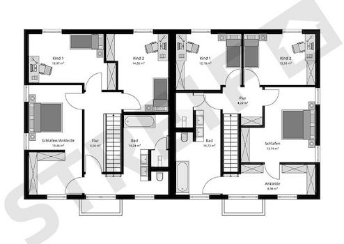
Die Architektur dieses Doppelhauses mit einem eleganten Walmdach strahlt zeitlose Modernität aus. Die Grundrisse sind so konzipiert, dass großzügige und komfortable Räume entstehen. Der offene Wohn-/Ess-/Kochbereich bietet mit seinen 39 m² viel Platz und Helligkeit, dank einer Panorama-Hebeschiebetür und einer doppelflügeligen Terrassentür. Im Erdgeschoss befindet sich ein zusätzliches Zimmer, das flexibel als Homeoffice, Gästezimmer oder Schlafzimmer genutzt werden kann. Das Badezimmer im Erdgeschoss kann optional mit einer Dusche ausgestattet werden, was in Kombination mit dem Zusatzzimmer ein ebenerdiges Wohnen ermöglicht. Im Obergeschoss finden Sie einen Elternbereich mit Ankleidezimmer, zwei Kinderzimmern und ein geräumiges Bad. Aufgrund der Bauweise dieses Doppelhausentwurfs mit Walmdach ist es erforderlich, beide Haushälften gleichzeitig zu errichten.
Preisangaben beziehen sich auf eine Doppelhaushälfte.
Die Architektur dieses Doppelhauses mit einem eleganten Walmdach strahlt zeitlose Modernität aus. Die Grundrisse sind so konzipiert, dass großzügige und komfortable Räume entstehen. Der offene Wohn-/Ess-/Kochbereich bietet mit seinen 39 m² viel Platz und Helligkeit, dank einer Panorama-Hebeschiebetür und einer doppelflügeligen Terrassentür. Im Erdgeschoss befindet sich ein zusätzliches Zimmer, das flexibel als Homeoffice, Gästezimmer oder Schlafzimmer genutzt werden kann. Das Badezimmer im Erdgeschoss kann optional mit einer Dusche ausgestattet werden, was in Kombination mit dem Zusatzzimmer ein ebenerdiges Wohnen ermöglicht. Im Obergeschoss finden Sie einen Elternbereich mit Ankleidezimmer, zwei Kinderzimmern und ein geräumiges Bad. Aufgrund der Bauweise dieses Doppelhausentwurfs mit Walmdach ist es erforderlich, beide Haushälften gleichzeitig zu errichten.
Preisangaben beziehen sich auf eine Doppelhaushälfte.
Ausstattungsmerkmale
| Anzahl der Etagen im Haus | 2 |
| Bad | 1 |
| Terrassen | 1 |
| Barrierefrei |
STREIF-Energiespar-Häuser sind für die Effizienzhaus-Klasse 40* vorbereitet. (*In Abhängigkeit von Gebäudestandort, Gebäudeausrichtung, Fensterflächenanteile, Haustechnik usw. können zusätzliche oder abweichende Leistungen erforderlich werden, die im Zuge der Bauantragsbewertung/-erstellung bewertet werden.)
Gegen Aufpreis erstellen wir eine Ökobilanzierung für Ihr Haus nach QNG durch. Für das Erreichen der Vorgaben des Qualitätssiegels Nachhaltiges Gebäude (QNG) für eine Ökobilanzierung wird zusätzlich eine Photovoltaik-Anlage mit Batteriespeicher benötigt. Mit dem Erfüllen dieser und weiterer Anforderungen wird Ihr Haus nach den neuen KfW-Förderrichtlinien für den Klimafreundlichen Neubau (KFN) förderfähig.
Die Außenwände im Passiv-Haus-Standard und eine sparsame Heiztechnik mit integrierter Wohnraumlüftung und Wärmerückgewinnung, garantieren einen geringen Energieverbrauch und ein fantastisches Raumklima, das insbesondere Allergiker aufatmen lässt.
STREIF Leistungen sind MEHR WERT - schon im Grundpreis enthalten!
- 16-monatige Festpreisgarantie
- Inkl. individuelle Grundrissgestaltung und Raumaufteilung
- Inkl. gedämmte Fundamentplatte
- Inkl. STREIF-Luft-Luft-Wärmepumpen-Technologie mit integrierter Lüftungsanlage mit Wärmerückgewinnung
- Inkl. Haustür von KERA und Fenster von Porta/Kömmerling
- Inkl. Sanitärobjekte von Markenherstellern
- Inkl. Massivholz-Geschosstreppe aus eigener Produktion (entfällt bei Bungalow)
- Inkl. Elektroinstallation u. v. m.
- Inkl. Photovoltaikanlage 7,12 KWP
- Inkl. Batteriespeicher mit 7,70 KWH
Die hohe Wertigkeit und Langlebigkeit eines STREIF-Energiespar-Hauses wird durch zahlreiche Auszeichnungen, Qualitäts- und Gütesiegel unabhängiger Institute und Verbände dokumentiert.
Der Angebotspreis ist inklusive Grundstück und bezieht sich auf die Standard-Ausbaustufe Fast-Fertig-Plus. Ihre Eigenleistungen: Spachtel-,Tapezier- und Malerarbeiten, Bodenbeläge, Innentüren.
Baunebenkosten fallen zuzüglich an.
Der Verkauf des Grundstücks erfolgt über einen unserer Netzwerkpartner.
Bilder können evtl. Anbauteile, Carports, Balkone, Gauben usw. zeigen, die nicht im Angebotspreis enthalten sind. Änderungen und Irrtümer vorbehalten.
Gegen Aufpreis erstellen wir eine Ökobilanzierung für Ihr Haus nach QNG durch. Für das Erreichen der Vorgaben des Qualitätssiegels Nachhaltiges Gebäude (QNG) für eine Ökobilanzierung wird zusätzlich eine Photovoltaik-Anlage mit Batteriespeicher benötigt. Mit dem Erfüllen dieser und weiterer Anforderungen wird Ihr Haus nach den neuen KfW-Förderrichtlinien für den Klimafreundlichen Neubau (KFN) förderfähig.
Die Außenwände im Passiv-Haus-Standard und eine sparsame Heiztechnik mit integrierter Wohnraumlüftung und Wärmerückgewinnung, garantieren einen geringen Energieverbrauch und ein fantastisches Raumklima, das insbesondere Allergiker aufatmen lässt.
STREIF Leistungen sind MEHR WERT - schon im Grundpreis enthalten!
- 16-monatige Festpreisgarantie
- Inkl. individuelle Grundrissgestaltung und Raumaufteilung
- Inkl. gedämmte Fundamentplatte
- Inkl. STREIF-Luft-Luft-Wärmepumpen-Technologie mit integrierter Lüftungsanlage mit Wärmerückgewinnung
- Inkl. Haustür von KERA und Fenster von Porta/Kömmerling
- Inkl. Sanitärobjekte von Markenherstellern
- Inkl. Massivholz-Geschosstreppe aus eigener Produktion (entfällt bei Bungalow)
- Inkl. Elektroinstallation u. v. m.
- Inkl. Photovoltaikanlage 7,12 KWP
- Inkl. Batteriespeicher mit 7,70 KWH
Die hohe Wertigkeit und Langlebigkeit eines STREIF-Energiespar-Hauses wird durch zahlreiche Auszeichnungen, Qualitäts- und Gütesiegel unabhängiger Institute und Verbände dokumentiert.
Der Angebotspreis ist inklusive Grundstück und bezieht sich auf die Standard-Ausbaustufe Fast-Fertig-Plus. Ihre Eigenleistungen: Spachtel-,Tapezier- und Malerarbeiten, Bodenbeläge, Innentüren.
Baunebenkosten fallen zuzüglich an.
Der Verkauf des Grundstücks erfolgt über einen unserer Netzwerkpartner.
Bilder können evtl. Anbauteile, Carports, Balkone, Gauben usw. zeigen, die nicht im Angebotspreis enthalten sind. Änderungen und Irrtümer vorbehalten.
Sonstige Informationen
Zur Realisierung des Bauvorhabens und zur Bezugsfertigkeit des Gebäudes kommen zzgl. noch Baunebenkosten und Fertigstellungskosten.
Karte wird geladen...
Objektstandort
74915 Waibstadt-Daisbach
Lage & Infrastruktur
Objektstandort
74915 Waibstadt-Daisbach
Waibstadt ist eine historische und ländlich geprägte Stadt im südöstlichen Rhein-Neckar-Kreis in Baden-Württemberg. Sie liegt idyllisch im Schwarzbachtal und ist eingebettet in die sanften Hügel an der Grenze zwischen dem Kraichgau und dem Kleinen Odenwald. Waibstadt blickt auf eine lange Geschichte zurück und pflegt ihre Fachwerk-Tradition. Zum Stadtgebiet gehören neben der Kernstadt die Ortsteile Daisbach und Neidenstein.
Die Bundesstraße B292 durchquert die Gemarkung und stellt die Verbindung zu den Mittelzentren Sinsheim und Mosbach sicher. Waibstadt verfügt über einen eigenen Bahnhof an der Schwarzbachtalbahn. Die S-Bahn Rhein-Neckar (Linie S51) verbindet die Stadt direkt mit Sinsheim, Heidelberg und Meckesheim.
Kindergärten und Kindertagesstätten gewährleisten die Betreuung der jüngsten Bürgerinnen und Bürger. Im schulischen Bereich sind eine Grundschule sowie eine Realschule vorhanden. Das Bildungsangebot wird durch die nahegelegenen Gymnasien in Sinsheim ergänzt, die über die S-Bahn erreichbar sind.
Die Innenstadt von Waibstadt zeichnet sich durch gut erhaltene Fachwerkhäuser aus. Das Alte Rathaus und die evangelische Kirche sind wichtige historische Bauwerke. Die malerische Burg Neidenstein im gleichnamigen Ortsteil ist ein bedeutendes Wahrzeichen der Region und ein beliebtes Ausflugsziel.
Ein aktives Vereinsleben mit Sport-, Musik- und Kulturvereinen ist die tragende Säule des sozialen Lebens. Die Waibstadter Kerwe (Kirchweih) ist ein zentrales jährliches Ereignis, das die Gemeinschaft zusammenbringt. Die Lage im Schwarzbachtal und im Kraichgau bietet gute Möglichkeiten für das Wandern und Radfahren.
Ein ruhiges Umfeld mit intakter Dorfgemeinschaft in ländlicher Idylle und die gute Anbindung an die Metropolregion machen Waibstadt zu einem geschätzten Wohnort im Kraichgau.
Die Bundesstraße B292 durchquert die Gemarkung und stellt die Verbindung zu den Mittelzentren Sinsheim und Mosbach sicher. Waibstadt verfügt über einen eigenen Bahnhof an der Schwarzbachtalbahn. Die S-Bahn Rhein-Neckar (Linie S51) verbindet die Stadt direkt mit Sinsheim, Heidelberg und Meckesheim.
Kindergärten und Kindertagesstätten gewährleisten die Betreuung der jüngsten Bürgerinnen und Bürger. Im schulischen Bereich sind eine Grundschule sowie eine Realschule vorhanden. Das Bildungsangebot wird durch die nahegelegenen Gymnasien in Sinsheim ergänzt, die über die S-Bahn erreichbar sind.
Die Innenstadt von Waibstadt zeichnet sich durch gut erhaltene Fachwerkhäuser aus. Das Alte Rathaus und die evangelische Kirche sind wichtige historische Bauwerke. Die malerische Burg Neidenstein im gleichnamigen Ortsteil ist ein bedeutendes Wahrzeichen der Region und ein beliebtes Ausflugsziel.
Ein aktives Vereinsleben mit Sport-, Musik- und Kulturvereinen ist die tragende Säule des sozialen Lebens. Die Waibstadter Kerwe (Kirchweih) ist ein zentrales jährliches Ereignis, das die Gemeinschaft zusammenbringt. Die Lage im Schwarzbachtal und im Kraichgau bietet gute Möglichkeiten für das Wandern und Radfahren.
Ein ruhiges Umfeld mit intakter Dorfgemeinschaft in ländlicher Idylle und die gute Anbindung an die Metropolregion machen Waibstadt zu einem geschätzten Wohnort im Kraichgau.
Kontaktanfrage senden
Über den Anbieter
STREIF Haus GmbH
Josef-Streif-Straße 1
54595 Weinsheim
Kontakt
| Telefon | +49 176 43417486 |
| Website | www.streif.de |
Ansprechpartner/in
Achim Machmeier