Wohnen in Bestlage: Ruhige 3-Zimmer-Wohnung mit Balkon & Blick ins Grüne Nähe Bismarckturm
479.000 €
Kaufpreis
85 m²
Wohnfläche
3
Zimmer
immobilien.de Nr.: 9428146
Objektnummer: 421645
Kaufpreis
| Kaufpreis | 479.000 € |
| Hausgeld | 454 € |
| Maklerprovision | keine Provision, courtagefrei |
| Stellplatz Carport Kaufpreis | 15.000 € |
Wohnfläche, Grundstück & Bausubstanz
| Wohnfläche | 85 m² |
| Zimmer | 3 |
| Baujahr | 1976 |
| Verfügbar ab | nach Absprache |
| Zustand | Gepflegt |
Energie
| Energieausweistyp | Verbrauch |
| Energieeffizienzklasse | D |
| Energieverbrauchkennwert | 177 kWh/(m²*a) |
| Heizungsart | Zentralheizung |
| Energieträger/Befeuerung | Öl |
Beschreibung der Immobilie
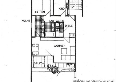
Diese schöne, gepflegte Hochparterre Wohnung zeichnet sich durch eine gehobene Innenausstattung aus. Neben drei hübschen Zimmern zählen zu der Wohnung einem Badezimmer sowie ein separates Duschbad mit WC. Ein aktueller Energieausweis liegt vor. Beachten Sie auch, dass sich auf dem Balkon wunderbar vom Alltag erholen lässt. Zur Verfügung stehen Ihnen außerdem eine Einbauküche sowie ein überdachter Stellplatz für Ihr Auto und zwei Kellerräume. Die Wohnung befindet sich in einer ruhigen 8 Parteiengemeinschaft.
Einbauküche, großer heller moderner 5m Einbauschrank im Schlafzimmer, Einbauschrank mit Gaderobe in der Diele und Einbauregal im Kinderzimmer. Einbauschrank im Bad und im Duschbad.
Badezimmer mit Badewanne, Waschbecken und Waschmaschinenanschluss.
Separates Duschbad mit WC.
Im Wohn- und Esszimmer ist eine deckenhohe Fensterfront von insgesamt ca. 8 Meter mit Blick ins Grüne eingebaut, große Glasschiebetür zum Balkon
In den Wohnräumen wurde Massivparkett diagonal verlegt.
Einbauküche, großer heller moderner 5m Einbauschrank im Schlafzimmer, Einbauschrank mit Gaderobe in der Diele und Einbauregal im Kinderzimmer. Einbauschrank im Bad und im Duschbad.
Badezimmer mit Badewanne, Waschbecken und Waschmaschinenanschluss.
Separates Duschbad mit WC.
Im Wohn- und Esszimmer ist eine deckenhohe Fensterfront von insgesamt ca. 8 Meter mit Blick ins Grüne eingebaut, große Glasschiebetür zum Balkon
In den Wohnräumen wurde Massivparkett diagonal verlegt.
Ausstattungsmerkmale
| Anzahl der Etagen im Haus | 3 |
| Inserat befindet sich im Stockwerk | 1 |
| Bad | 2 |
| Bad | Dusche |
| Boden | Fliesen, Parkett |
| Balkone | 1 |
| Garten | |
| Terrassen | 0 |
| Carport | 1 |
| Keller |
Balkon, Garten, Keller, Duschbad, Gäste-WC, Parkett, Fliesen
Sonstige Informationen
Heizungsart: Zentralheizung
Energieträger: Öl
Makleranfragen nicht erwünscht. Nach § 7 UWG sind unaufgeforderte Kontaktaufnahmen durch Makler ohne ausdrückliche Einwilligung des Empfängers verboten!
ohne-makler (OM) ist weder Anbieter noch Vermittler der Immobilie. OM betreibt eine Plattform für Immobilieneigentümer, die unter anderem die gleichzeitige Veröffentlichung einzelner Inserate auf mehreren Immobilienportalen ermöglicht. Die Inhalte dieser Inserate werden ausschließlich von Dritten verantwortet. Für die Richtigkeit, Vollständigkeit oder Rechtmäßigkeit der Angaben übernimmt OM keine Haftung. Hinweise auf mögliche Rechtsverstöße können jederzeit gemeldet werden und werden nach Prüfung umgehend bearbeitet.
Energieträger: Öl
Makleranfragen nicht erwünscht. Nach § 7 UWG sind unaufgeforderte Kontaktaufnahmen durch Makler ohne ausdrückliche Einwilligung des Empfängers verboten!
ohne-makler (OM) ist weder Anbieter noch Vermittler der Immobilie. OM betreibt eine Plattform für Immobilieneigentümer, die unter anderem die gleichzeitige Veröffentlichung einzelner Inserate auf mehreren Immobilienportalen ermöglicht. Die Inhalte dieser Inserate werden ausschließlich von Dritten verantwortet. Für die Richtigkeit, Vollständigkeit oder Rechtmäßigkeit der Angaben übernimmt OM keine Haftung. Hinweise auf mögliche Rechtsverstöße können jederzeit gemeldet werden und werden nach Prüfung umgehend bearbeitet.
Karte wird geladen...
Objektstandort
Schottstraße 6
70192 Stuttgart
- Baden-Württemberg
Lage & Infrastruktur
Objektstandort
Schottstraße 6
70192 Stuttgart
- Baden-Württemberg
Die Schottstraße gehört in der Halbhöhenlage unterhalb vom Bismarckturm zu einer der besten Adressen in Stuttgart.
Das moderne gepflegte Haus steht in sehr ruhiger Lage mit viel Grün, großem Garten und schöner Aussicht bis zum Fernsehturm auf der anderen Seite Stuttgart.
Die Bushaltestellen in die Stadt und zum Pragsattel über den Killesberg sind fußwegs ca. 3 Minuten enfernt.
Der Bus fährt alle 10 Minuten.
Die Königstrasse ist fußwegs in 25 Minuten zu erreichen.
Infrastruktur (im Umkreis von 5 km):
Apotheke, Lebensmittel-Discount, Allgemeinmediziner, Kindergarten, Grundschule, Hauptschule, Realschule, Gymnasium, Gesamtschule, Öffentliche Verkehrsmittel
Das moderne gepflegte Haus steht in sehr ruhiger Lage mit viel Grün, großem Garten und schöner Aussicht bis zum Fernsehturm auf der anderen Seite Stuttgart.
Die Bushaltestellen in die Stadt und zum Pragsattel über den Killesberg sind fußwegs ca. 3 Minuten enfernt.
Der Bus fährt alle 10 Minuten.
Die Königstrasse ist fußwegs in 25 Minuten zu erreichen.
Infrastruktur (im Umkreis von 5 km):
Apotheke, Lebensmittel-Discount, Allgemeinmediziner, Kindergarten, Grundschule, Hauptschule, Realschule, Gymnasium, Gesamtschule, Öffentliche Verkehrsmittel