Einfamilienhaus in Toplage von Burgsteinfurt mit eigenständigem Grundstück
358.000 €
Kaufpreis
107 m²
Wohnfläche
16,58 m²
Nutzfläche
5
Zimmer
immobilien.de Nr.: 9426625
Objektnummer: 3861
Kaufpreis
| Kaufpreis | 358.000 € |
| Maklerprovision | 3,57 |
| Stellplatz Garage Kaufpreis | 0 € |
Wohnfläche, Grundstück & Bausubstanz
| Wohnfläche | 107 m² |
| Nutzfläche | 16,58 m² |
| Grundstücksfläche | 733 m² |
| Zimmer | 5 |
| Baujahr | 1977 |
| Verfügbar ab | nach Vereinbarung |
| Zustand | Gepflegt |
Energie
| Energieträger/Befeuerung | Gas |
Beschreibung der Immobilie
Dieses gepflegte Einfamilienhaus aus dem Baujahr 1977 bietet eine durchdachte Raumaufteilung, großzügige Nutzflächen und ein familienfreundliches Wohnumfeld. Das Haus steht auf einem eingefriedeten Grundstück und eignet sich ideal für Familien, die Wert auf Platz, Funktionalität und eine ruhige Wohnlage legen.
Das Erdgeschoss bildet den zentralen Wohnbereich des Hauses. Hier befindet sich ein großzügiges Wohn und Esszimmer mit direktem Zugang zur Terrasse, die zu entspannten Stunden im Freien einlädt. Die separate Küche ist funktional geschnitten und bietet ausreichend Arbeits- und Stauraum. Ergänzt wird diese Ebene durch ein Badezimmer sowie einen praktischen Dielenbereich mit Garderobe.
Im Dachgeschoss stehen drei gut geschnittene Schlafzimmer zur Verfügung, darunter ein Elternschlafzimmer sowie zwei Kinderzimmer. Ein Tageslichtbad mit Badewanne komplettiert diese Etage und sorgt für eine angenehme Aufteilung für den Familienalltag.
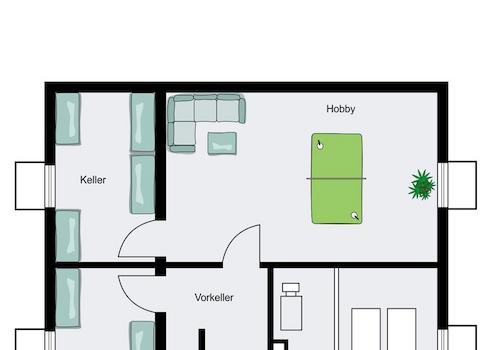
Das Haus ist vollständig unterkellert und bietet neben klassischen Abstell- und Vorratsräumen einen gefliesten Kellerbereich sowie einen großzügigen Hobbyraum, der flexibel als Freizeit, Arbeits- oder Fitnessraum genutzt werden kann. Der Heizungsraum befindet sich ebenfalls im Kellergeschoss. Das Dach ist auch gedämmt.
Abgerundet wird das Angebot durch einen überdachten Freisitz, eine Garage sowie ein vollständig eingezäuntes Grundstück, das insbesondere für Familien mit Kindern oder Haustieren attraktiv ist.
Die Lage überzeugt durch eine gute Infrastruktur: Ein Spielplatz befindet sich in unmittelbarer Nähe und Einkaufsmöglichkeiten wie ein Supermarkt sind fußläufig erreichbar.
Das Erdgeschoss bildet den zentralen Wohnbereich des Hauses. Hier befindet sich ein großzügiges Wohn und Esszimmer mit direktem Zugang zur Terrasse, die zu entspannten Stunden im Freien einlädt. Die separate Küche ist funktional geschnitten und bietet ausreichend Arbeits- und Stauraum. Ergänzt wird diese Ebene durch ein Badezimmer sowie einen praktischen Dielenbereich mit Garderobe.
Im Dachgeschoss stehen drei gut geschnittene Schlafzimmer zur Verfügung, darunter ein Elternschlafzimmer sowie zwei Kinderzimmer. Ein Tageslichtbad mit Badewanne komplettiert diese Etage und sorgt für eine angenehme Aufteilung für den Familienalltag.
Das Haus ist vollständig unterkellert und bietet neben klassischen Abstell- und Vorratsräumen einen gefliesten Kellerbereich sowie einen großzügigen Hobbyraum, der flexibel als Freizeit, Arbeits- oder Fitnessraum genutzt werden kann. Der Heizungsraum befindet sich ebenfalls im Kellergeschoss. Das Dach ist auch gedämmt.
Abgerundet wird das Angebot durch einen überdachten Freisitz, eine Garage sowie ein vollständig eingezäuntes Grundstück, das insbesondere für Familien mit Kindern oder Haustieren attraktiv ist.
Die Lage überzeugt durch eine gute Infrastruktur: Ein Spielplatz befindet sich in unmittelbarer Nähe und Einkaufsmöglichkeiten wie ein Supermarkt sind fußläufig erreichbar.
Ausstattungsmerkmale
| Bad | 2 |
| Terrassen | 1 |
| Garage/Stellplätze | 1 |
| Keller |
Die Immobilie überzeugt durch eine solide und funktionale Ausstattung, die sowohl den Anforderungen des täglichen Familienlebens als auch vielseitigen Nutzungsmöglichkeiten gerecht wird.
+ Einfamilienhaus mit durchdachter Raumaufteilung
+ Voll unterkellert
+ Gefliester Kellerbereich
+ Großzügiger Hobbyraum im Kellergeschoss
+ Separater Heizungsraum
+ Helles Wohn und Esszimmer mit Zugang zur Terrasse
+ Terrasse mit überdachtem Freisitz
+ Separate Küche (Einbauküche)
+ Gäste WC im Erdgeschoss
+ Tageslichtbad mit Badewanne im Dachgeschoss
+ Eingefriedetes Grundstück
+ Garage + Geräteschuppen
+ Ruhige und familienfreundliche Wohnlage
+ Spielplatz in unmittelbarer Nähe
+ Einfamilienhaus mit durchdachter Raumaufteilung
+ Voll unterkellert
+ Gefliester Kellerbereich
+ Großzügiger Hobbyraum im Kellergeschoss
+ Separater Heizungsraum
+ Helles Wohn und Esszimmer mit Zugang zur Terrasse
+ Terrasse mit überdachtem Freisitz
+ Separate Küche (Einbauküche)
+ Gäste WC im Erdgeschoss
+ Tageslichtbad mit Badewanne im Dachgeschoss
+ Eingefriedetes Grundstück
+ Garage + Geräteschuppen
+ Ruhige und familienfreundliche Wohnlage
+ Spielplatz in unmittelbarer Nähe
Sonstige Informationen
Eine attraktive Gelegenheit zur Verwirklichung des eigenen Wohntraums, die durch ihre Größe, die gute Lage und eine durchdachte Raumaufteilung überzeugt.
Ein aktueller Energieausweis liegt vor.
Für den Käufer ist bei Vertragsabschluss eine Maklerprovision von 3,57 % (inkl. UST) des beurkundeten Kaufpreises fällig. Auf Wunsch der Eigentümer bitten wir von der direkten Kontaktaufnahme abzusehen und Unterlagen zum Haus sowie Besichtigungstermine nur über uns, Matzker Immobilien, anzufordern.
Bitte haben Sie Verständnis, dass wir aufgrund der Nachweispflicht gegenüber dem Eigentümer und gesetzlicher Bestimmungen (Geldwäschegesetz) nur Anfragen mit vollständiger Nennung Ihres Namens, Ihrer Anschrift und einer Rückrufmöglichkeit bearbeiten können. Nachdem Sie uns Ihre Daten bekannt gegeben haben, übersenden wir Ihnen gerne ein Exposé oder vereinbaren mit Ihnen einen Besichtigungstermin.
Ein aktueller Energieausweis liegt vor.
Für den Käufer ist bei Vertragsabschluss eine Maklerprovision von 3,57 % (inkl. UST) des beurkundeten Kaufpreises fällig. Auf Wunsch der Eigentümer bitten wir von der direkten Kontaktaufnahme abzusehen und Unterlagen zum Haus sowie Besichtigungstermine nur über uns, Matzker Immobilien, anzufordern.
Bitte haben Sie Verständnis, dass wir aufgrund der Nachweispflicht gegenüber dem Eigentümer und gesetzlicher Bestimmungen (Geldwäschegesetz) nur Anfragen mit vollständiger Nennung Ihres Namens, Ihrer Anschrift und einer Rückrufmöglichkeit bearbeiten können. Nachdem Sie uns Ihre Daten bekannt gegeben haben, übersenden wir Ihnen gerne ein Exposé oder vereinbaren mit Ihnen einen Besichtigungstermin.
Karte wird geladen...
Objektstandort
48565 Steinfurt-Burgsteinfurt
Lage & Infrastruktur
Objektstandort
48565 Steinfurt-Burgsteinfurt
Das Einfamilienhaus befindet sich in einer beliebten und gewachsenen Wohnlage von Steinfurt Burgsteinfurt. Einrichtungen des täglichen Bedarfs sowie Kindergarten und Grundschule sind schnell erreichbar und teilweise fußläufig gelegen.
Burgsteinfurt ist der größte Stadtteil der Kreisstadt Steinfurt und zeichnet sich durch eine hohe Wohnqualität aus. Der historische Stadtkern mit dem Schloss Steinfurt, vielfältigen Einkaufsmöglichkeiten, Cafés und Restaurants verleiht dem Ort ein attraktives und lebendiges Flair. Zahlreiche Freizeit und Erholungsmöglichkeiten sowie Grünanlagen prägen das Stadtbild und bieten einen hohen Freizeitwert.
Die verkehrliche Anbindung ist gut ausgebaut. Über die Bundesstraße B54 sowie den Bahnhof Steinfurt Burgsteinfurt bestehen schnelle Verbindungen in Richtung Münster, Rheine und Enschede. Die Universitätsstadt Münster ist sowohl mit dem Auto als auch mit der Bahn gut erreichbar. Der Flughafen Münster Osnabrück liegt in etwa 30 Autominuten Entfernung.
Burgsteinfurt ist der größte Stadtteil der Kreisstadt Steinfurt und zeichnet sich durch eine hohe Wohnqualität aus. Der historische Stadtkern mit dem Schloss Steinfurt, vielfältigen Einkaufsmöglichkeiten, Cafés und Restaurants verleiht dem Ort ein attraktives und lebendiges Flair. Zahlreiche Freizeit und Erholungsmöglichkeiten sowie Grünanlagen prägen das Stadtbild und bieten einen hohen Freizeitwert.
Die verkehrliche Anbindung ist gut ausgebaut. Über die Bundesstraße B54 sowie den Bahnhof Steinfurt Burgsteinfurt bestehen schnelle Verbindungen in Richtung Münster, Rheine und Enschede. Die Universitätsstadt Münster ist sowohl mit dem Auto als auch mit der Bahn gut erreichbar. Der Flughafen Münster Osnabrück liegt in etwa 30 Autominuten Entfernung.
Kontaktanfrage senden
Kontakt
| Telefon | 0049257298425 |
| Website | www.matzker-immobilien.de |
Ansprechpartner/in
Frau Julianna Eisfeld