Reihenhäuser mit Grundstück in Lage-Billinghausen - Baustart März 2026
319.800 €
Kaufpreis
105 m²
Wohnfläche
5
Zimmer
immobilien.de Nr.: 9421426
Objektnummer: 395872
Kaufpreis
| Kaufpreis | 319.800 € |
| Maklerprovision | keine Provision, courtagefrei |
Wohnfläche, Grundstück & Bausubstanz
| Wohnfläche | 105 m² |
| Grundstücksfläche | 634 m² |
| Zimmer | 5 |
| Baujahr | 2026 |
| Verfügbar ab | 01.03.2027 |
| Zustand | Erstbezug |
Energie
| Heizungsart | Fußbodenheizung |
| Energieträger/Befeuerung | Elektro |
Beschreibung der Immobilie
Wir bieten 3 Reihenhäuser in einem Neubaugebiet in Lage-Billinghausen (Steinweg / Familie-Hammerschlag-Weg) schlüsselfertig zum Verkauf an. Die Häuser werden nach dem Effizienzhaus 40 Standard errichtet (KfW-Förderung möglich).
Baustart ist voraussichtlich im März 2026. Fertigstellung zu März 2027. Die Häuser werden von der Firma Kelle Konzept Bau GmbH errichtet.
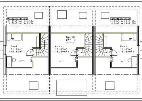
Die Wohnfläche beträgt jeweils ca. 105 m2.
Der Preis versteht sich inkl. des Grundstücks:
Haus 1 (links): € 349.800,-
Haus 2 (mitte): € 319.800,- (reserviert)
Haus 3 (rechts): € 342.900,-
Die genaue Lage der Grundstücke entnehmen Sie bitte den beigefügten Bildern und Dateien.
Wir freuen uns auf Ihre Kontaktaufnahme und stehen Ihnen für weitere Informationen gerne zur Verfügung.
Baustart ist voraussichtlich im März 2026. Fertigstellung zu März 2027. Die Häuser werden von der Firma Kelle Konzept Bau GmbH errichtet.
Die Wohnfläche beträgt jeweils ca. 105 m2.
Der Preis versteht sich inkl. des Grundstücks:
Haus 1 (links): € 349.800,-
Haus 2 (mitte): € 319.800,- (reserviert)
Haus 3 (rechts): € 342.900,-
Die genaue Lage der Grundstücke entnehmen Sie bitte den beigefügten Bildern und Dateien.
Wir freuen uns auf Ihre Kontaktaufnahme und stehen Ihnen für weitere Informationen gerne zur Verfügung.
Ausstattungsmerkmale
| Anzahl der Etagen im Haus | 3 |
| Bad | 2 |
| Bad | Dusche |
| Boden | Fliesen |
| Balkone | 0 |
| Garten | |
| Terrassen | 1 |
| Carport | 1 |
Terrasse, Garten, Duschbad, Gäste-WC, Fliesen
Sonstige Informationen
Heizungsart: Fußbodenheizung
Energieträger: Strom
Makleranfragen nicht erwünscht. Nach § 7 UWG sind unaufgeforderte Kontaktaufnahmen durch Makler ohne ausdrückliche Einwilligung des Empfängers verboten!
ohne-makler (OM) ist weder Anbieter noch Vermittler der Immobilie. OM betreibt eine Plattform für Immobilieneigentümer, die unter anderem die gleichzeitige Veröffentlichung einzelner Inserate auf mehreren Immobilienportalen ermöglicht. Die Inhalte dieser Inserate werden ausschließlich von Dritten verantwortet. Für die Richtigkeit, Vollständigkeit oder Rechtmäßigkeit der Angaben übernimmt OM keine Haftung. Hinweise auf mögliche Rechtsverstöße können jederzeit gemeldet werden und werden nach Prüfung umgehend bearbeitet.
Energieträger: Strom
Makleranfragen nicht erwünscht. Nach § 7 UWG sind unaufgeforderte Kontaktaufnahmen durch Makler ohne ausdrückliche Einwilligung des Empfängers verboten!
ohne-makler (OM) ist weder Anbieter noch Vermittler der Immobilie. OM betreibt eine Plattform für Immobilieneigentümer, die unter anderem die gleichzeitige Veröffentlichung einzelner Inserate auf mehreren Immobilienportalen ermöglicht. Die Inhalte dieser Inserate werden ausschließlich von Dritten verantwortet. Für die Richtigkeit, Vollständigkeit oder Rechtmäßigkeit der Angaben übernimmt OM keine Haftung. Hinweise auf mögliche Rechtsverstöße können jederzeit gemeldet werden und werden nach Prüfung umgehend bearbeitet.
Karte wird geladen...
Objektstandort
Steinweg
32791 Lage
- Nordrhein-Westfalen
Lage & Infrastruktur
Objektstandort
Steinweg
32791 Lage
- Nordrhein-Westfalen
Billinghausen ist ein Ortsteil der Stadt Lage im Kreis Lippe, Nordrhein-Westfalen, und liegt etwa 4,5 Kilometer südwestlich des Zentrums von Lage. Die Umgebung ist geprägt von einer harmonischen Mischung aus ländlicher Idylle und guter Infrastruktur. Mit rund 1.900 Einwohnern bietet Billinghausen eine ruhige, familienfreundliche Wohnlage mit dörflichem Charakter und einer gewachsenen Nachbarschaft.
Der Ortsteil ist von Feldern, kleinen Wäldern und typischer lippischer Landschaft umgeben. Die Bebauung besteht aus Ein- und Mehrfamilienhäusern, historischen Höfen sowie neueren Siedlungsgebieten, insbesondere in der Billinghauser Heide. Im Ortskern befinden sich einige alte Bauernhöfe, die auf eine lange Geschichte zurückblicken. Billinghausen ist verkehrstechnisch gut angebunden: Über die nahegelegene B66 und die B239 erreicht man schnell die umliegenden Städte wie Lage, Detmold, Lemgo oder Bad Salzuflen. Der öffentliche Nahverkehr verbindet Billinghausen regelmäßig mit dem Zentrum von Lage und anderen Ortsteilen.
Im Ort selbst gibt es einen Kindergarten, eine Grundschule sowie verschiedene Vereine, die das Gemeinschaftsleben prägen. Einkaufsmöglichkeiten, Ärzte, weiterführende Schulen und alle wichtigen Dienstleistungen finden sich im nahegelegenen Stadtzentrum von Lage. Die grüne Umgebung lädt zu Spaziergängen, Fahrradtouren und vielfältigen Freizeitaktivitäten ein.
Billinghausen verbindet die Vorteile einer naturnahen, ruhigen Wohnlage mit einer guten Erreichbarkeit urbaner Angebote – ideal für Familien, Naturliebhaber und alle, die ein entspanntes Wohnumfeld suchen.
Infrastruktur (im Umkreis von 5 km):
Apotheke, Lebensmittel-Discount, Allgemeinmediziner, Kindergarten, Grundschule, Hauptschule, Realschule, Gymnasium, Gesamtschule, Öffentliche Verkehrsmittel
Der Ortsteil ist von Feldern, kleinen Wäldern und typischer lippischer Landschaft umgeben. Die Bebauung besteht aus Ein- und Mehrfamilienhäusern, historischen Höfen sowie neueren Siedlungsgebieten, insbesondere in der Billinghauser Heide. Im Ortskern befinden sich einige alte Bauernhöfe, die auf eine lange Geschichte zurückblicken. Billinghausen ist verkehrstechnisch gut angebunden: Über die nahegelegene B66 und die B239 erreicht man schnell die umliegenden Städte wie Lage, Detmold, Lemgo oder Bad Salzuflen. Der öffentliche Nahverkehr verbindet Billinghausen regelmäßig mit dem Zentrum von Lage und anderen Ortsteilen.
Im Ort selbst gibt es einen Kindergarten, eine Grundschule sowie verschiedene Vereine, die das Gemeinschaftsleben prägen. Einkaufsmöglichkeiten, Ärzte, weiterführende Schulen und alle wichtigen Dienstleistungen finden sich im nahegelegenen Stadtzentrum von Lage. Die grüne Umgebung lädt zu Spaziergängen, Fahrradtouren und vielfältigen Freizeitaktivitäten ein.
Billinghausen verbindet die Vorteile einer naturnahen, ruhigen Wohnlage mit einer guten Erreichbarkeit urbaner Angebote – ideal für Familien, Naturliebhaber und alle, die ein entspanntes Wohnumfeld suchen.
Infrastruktur (im Umkreis von 5 km):
Apotheke, Lebensmittel-Discount, Allgemeinmediziner, Kindergarten, Grundschule, Hauptschule, Realschule, Gymnasium, Gesamtschule, Öffentliche Verkehrsmittel