Doppelhaushälfte als KfW40PLUS - inkl. Baugrundstück Vellmar
496.500 €
Kaufpreis
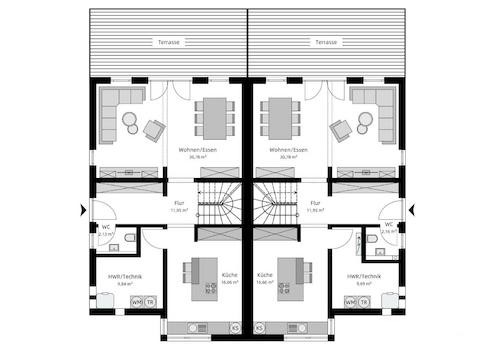
140 m²
Wohnfläche
5
Zimmer
immobilien.de Nr.: 9420890
Objektnummer: 49BKDoppelhaus_Family_IdA_Vellmar
Kaufpreis
| Kaufpreis | 496.500 € |
Wohnfläche, Grundstück & Bausubstanz
| Wohnfläche | 140 m² |
| Grundstücksfläche | 463 m² |
| Zimmer | 5 |
| Baujahr | 2026 |
| Verfügbar ab | keine Angabe |
| Zustand | Erstbezug |
Energie
| Energietyp | Niedrigenergie, KfW-40 |
| Heizungsart | Zentralheizung, Fußbodenheizung |
| Energieträger/Befeuerung | Luft-Wärme-Pumpe |
Beschreibung der Immobilie
Das hier angebotene Haus hat eine Netto-Raumfläche von insgesamt ca. 140 m², Effizienzhaus-Klasse 40 plus, inkl. Photovoltaikanlage und Batteriespeicher.
Der Haustyp DOPPELHAUS - so baut man heute.
In vielen Neubaugebieten werden vermehrt Grundstücke für eine Doppelhausbebauung ausgeschrieben. Damit Sie hier die vollen Synergien nutzen können, planen und bauen wir für Sie Ihr Doppelhaus ganz nach Ihren Wünschen und Vorstellungen - auf kleinstem Raum mit größtmöglicher Platzausnutzung. Sie haben für den Bau Ihrer Doppelhaushälfte eine große Auswahl an Möglichkeiten, wie der Stil Ihres Hauses innen und außen gestaltet sein soll.
STREIF-Energiespar-Häuser sind für die Effizienzhaus-Klasse 40 plus ausgestattet. Auf Wunsch erstellen wir eine Ökobilanz (KFWG), die bescheinigt, dass Ihr STREIF-Haus den neuen KfW-Förderrichtlinien für den Klimafreundlichen Neubau (KFN) entspricht. So sichern Sie sich bis zu 100.000,00 EUR zinsgünstiges Darlehen. Ergänzend kann auch die Nachhaltigkeitszertifizierung nach QNG (KFWG-Q) (bei Ausbaustufe fast fertig plus und schlüsselfertig) angeboten werden.
Die abgebildeten Hausentwürfe sind Gestaltungsvorschläge. Eine Vielzahl individueller Anpassungen wie z. B. Hausgröße, Dachgeometrie, Fenstergrößen und deren Position sind möglich. Änderungen und Irrtümer vorbehalten.
Wir beraten Sie gerne beim Hauskauf!
Der Haustyp DOPPELHAUS - so baut man heute.
In vielen Neubaugebieten werden vermehrt Grundstücke für eine Doppelhausbebauung ausgeschrieben. Damit Sie hier die vollen Synergien nutzen können, planen und bauen wir für Sie Ihr Doppelhaus ganz nach Ihren Wünschen und Vorstellungen - auf kleinstem Raum mit größtmöglicher Platzausnutzung. Sie haben für den Bau Ihrer Doppelhaushälfte eine große Auswahl an Möglichkeiten, wie der Stil Ihres Hauses innen und außen gestaltet sein soll.
STREIF-Energiespar-Häuser sind für die Effizienzhaus-Klasse 40 plus ausgestattet. Auf Wunsch erstellen wir eine Ökobilanz (KFWG), die bescheinigt, dass Ihr STREIF-Haus den neuen KfW-Förderrichtlinien für den Klimafreundlichen Neubau (KFN) entspricht. So sichern Sie sich bis zu 100.000,00 EUR zinsgünstiges Darlehen. Ergänzend kann auch die Nachhaltigkeitszertifizierung nach QNG (KFWG-Q) (bei Ausbaustufe fast fertig plus und schlüsselfertig) angeboten werden.
Die abgebildeten Hausentwürfe sind Gestaltungsvorschläge. Eine Vielzahl individueller Anpassungen wie z. B. Hausgröße, Dachgeometrie, Fenstergrößen und deren Position sind möglich. Änderungen und Irrtümer vorbehalten.
Wir beraten Sie gerne beim Hauskauf!
Ausstattungsmerkmale
| Anzahl der Etagen im Haus | 2 |
| Küche | Offene Küche |
| Bad | 2 |
| Bad | Dusche, Wanne, Fenster |
| Terrassen | 1 |
STREIF-Häuser erfüllen bereits im Standard die Effizienzhaus-Klasse KfW40PLUS.
Die STREIF-Passiv-Haus-Wände, eine effiziente Heiztechnik mit integrierter Wohnraumlüftung und Wärmerückgewinnung garantieren einen geringen Energieverbrauch und ein fantastisches Raumklima, das insbesondere Allergiker aufatmen lässt.
STREIF Leistungen sind MEHR WERT - schon im Grundpreis enthalten!
- 16-monatige Festpreisgarantie
- inkl. individuelle Grundrissgestaltung und Raumaufteilung
- inkl. gedämmte Fundamentplatte
- inkl. Wärmepumpen-Technologie mit integrierter
Lüftungsanlage mit Wärmerückgewinnung
- inkl. Haustür von KERA und Fenster von Porta/Kömmerling
- inkl. Massivholz-Geschosstreppe aus eigener Produktion
- inkl. Sanitärobjekte von Markenherstellern
- inkl. Elektroinstallation
- inkl. Gütesiegel vom TÜV Rheinland- (schadstoffgeprüfte Materialien)
- inkl.. KfW-Berechnungen, Nachweise & Anträge
Was wir Ihnen sonst noch bieten:
- Kostenlose Bauberatung inkl. Grundrissplanung
- Ermittlung der Gesamt-Investition Ihres Bauvorhabens
- Finanzierungs - & Fördermittelberatung
Die hohe Wertigkeit und Langlebigkeit eines STREIF-Energiespar-Hauses wird durch zahlreiche Auszeichnungen, Qualitäts- und Gütesiegel unabhängiger Institute und Verbände dokumentiert.
Der Angebotspreis ist inklusive Grundstück und bezieht sich auf die Standard-Ausbaustufe Fast-Fertig-Plus (Technikfertig inkl. Bäder). Somit wären Ihre Eigenleistungen: Malerarbeiten, Bodenbeläge und die Innentüren. Selbstverständlich können wir Ihr Haus auch schlüsselfertig / bezugsfertig errichten.
Wir beraten Sie gerne beim Hauskauf! Sprechen Sie uns an: 0176-34990349
Die STREIF-Passiv-Haus-Wände, eine effiziente Heiztechnik mit integrierter Wohnraumlüftung und Wärmerückgewinnung garantieren einen geringen Energieverbrauch und ein fantastisches Raumklima, das insbesondere Allergiker aufatmen lässt.
STREIF Leistungen sind MEHR WERT - schon im Grundpreis enthalten!
- 16-monatige Festpreisgarantie
- inkl. individuelle Grundrissgestaltung und Raumaufteilung
- inkl. gedämmte Fundamentplatte
- inkl. Wärmepumpen-Technologie mit integrierter
Lüftungsanlage mit Wärmerückgewinnung
- inkl. Haustür von KERA und Fenster von Porta/Kömmerling
- inkl. Massivholz-Geschosstreppe aus eigener Produktion
- inkl. Sanitärobjekte von Markenherstellern
- inkl. Elektroinstallation
- inkl. Gütesiegel vom TÜV Rheinland- (schadstoffgeprüfte Materialien)
- inkl.. KfW-Berechnungen, Nachweise & Anträge
Was wir Ihnen sonst noch bieten:
- Kostenlose Bauberatung inkl. Grundrissplanung
- Ermittlung der Gesamt-Investition Ihres Bauvorhabens
- Finanzierungs - & Fördermittelberatung
Die hohe Wertigkeit und Langlebigkeit eines STREIF-Energiespar-Hauses wird durch zahlreiche Auszeichnungen, Qualitäts- und Gütesiegel unabhängiger Institute und Verbände dokumentiert.
Der Angebotspreis ist inklusive Grundstück und bezieht sich auf die Standard-Ausbaustufe Fast-Fertig-Plus (Technikfertig inkl. Bäder). Somit wären Ihre Eigenleistungen: Malerarbeiten, Bodenbeläge und die Innentüren. Selbstverständlich können wir Ihr Haus auch schlüsselfertig / bezugsfertig errichten.
Wir beraten Sie gerne beim Hauskauf! Sprechen Sie uns an: 0176-34990349
Sonstige Informationen
Sie brauchen einen kompetenten und verlässlichen Baupartner? Wir stehen Ihnen von Anfang an zur Seite & begleiten Sie auf dem Weg in Ihr Eigenheim:
Mit großem Engagement, Persönlichkeit und einer Fachfirma STREIF mit immensen Bau-Know-how, die seit 1929 auf über 85.000 realisierte Wohnträume zurückblicken kann.
Jedes Haus von STREIF wird individuell als Energiesparhaus geplant und gebaut. Eine nachhaltige, ökologische und wohngesunde Bauweise, eine zertifizierte Ausführungsqualität und eine kurze Bauzeit, dafür stehen wir.
Gerne beraten wir Sie nach Vereinbarung in unserem Musterhaus in Kassel/Fuldabrück und erstellen Ihnen ein Angebot mit einer detaillierten & realistisch ermittelten Aufstellung der Gesamt-Investition.
Wir freuen uns auf Ihren Anruf / Nachricht!
Ihr STREIF Fachberater, Björn Kipphen
www.dr-haus-kassel.de
Mobil: 0176-34990349
E-Mail: bjoern.kipphen@streif.de
Hinweis:
Vorverkauf und Irrtümer vorbehalten.Bilder können Sonderbauteile darstellen, die im Preis nicht enthalten sind und abweichend von textlichen Inhalten sein.
zzgl. Baunebenkosten.
Der Grundstückserwerb stellt keine STREIF Leistung dar.
Hinweis zu den gesetzlichen Pflichtangaben gemäß der EnEV 2016: Bei dem hier angebotenen Haus handelt es sich um ein Neubauprojekt.
Wir weisen darauf hin, dass zu diesem projektierten Haus noch kein Energieausweis vorliegt. Der Energieausweis wird Ihnen spätestens im Rahmen der Erstellung des Objektes ausgehändigt
Mit großem Engagement, Persönlichkeit und einer Fachfirma STREIF mit immensen Bau-Know-how, die seit 1929 auf über 85.000 realisierte Wohnträume zurückblicken kann.
Jedes Haus von STREIF wird individuell als Energiesparhaus geplant und gebaut. Eine nachhaltige, ökologische und wohngesunde Bauweise, eine zertifizierte Ausführungsqualität und eine kurze Bauzeit, dafür stehen wir.
Gerne beraten wir Sie nach Vereinbarung in unserem Musterhaus in Kassel/Fuldabrück und erstellen Ihnen ein Angebot mit einer detaillierten & realistisch ermittelten Aufstellung der Gesamt-Investition.
Wir freuen uns auf Ihren Anruf / Nachricht!
Ihr STREIF Fachberater, Björn Kipphen
www.dr-haus-kassel.de
Mobil: 0176-34990349
E-Mail: bjoern.kipphen@streif.de
Hinweis:
Vorverkauf und Irrtümer vorbehalten.Bilder können Sonderbauteile darstellen, die im Preis nicht enthalten sind und abweichend von textlichen Inhalten sein.
zzgl. Baunebenkosten.
Der Grundstückserwerb stellt keine STREIF Leistung dar.
Hinweis zu den gesetzlichen Pflichtangaben gemäß der EnEV 2016: Bei dem hier angebotenen Haus handelt es sich um ein Neubauprojekt.
Wir weisen darauf hin, dass zu diesem projektierten Haus noch kein Energieausweis vorliegt. Der Energieausweis wird Ihnen spätestens im Rahmen der Erstellung des Objektes ausgehändigt
Karte wird geladen...
Objektstandort
34246 Vellmar
Lage & Infrastruktur
Objektstandort
34246 Vellmar
Tolles Baugrundstück mit Süd-/Westausrichtung in 34246 Vellmar. Das Grundstück hat eine Größe von insgesamt 926qm und wird in zwei Grundstücke (ca. 463qm geteilt)
Das Grundstück befindet sich in einem ruhigen Wohngebiet und toller Ausrichtung mit Feldrandlage. Ideal mit einem Doppelhaus oder Villa zu bebauen. Die Bebauung richtet sich nach §34HBO "Nachbarschaftsbebauung".
Wer es ruhig, beschaulich und mit viel Natur mag, ist in Vellmar super aufgehoben. Vellmar besticht durch eine gute Infrastruktur und schneller Erreichung der Stadt Kassel. Neben Einkaufsmöglichkeiten, Arzt, Kindergarten, Grundschule und diversen Vereinsaktivitäten hat Vellmar viel zu bieten und ist ein gefragter Ort, besonders für junge Familien.
Sie besitzen bereits ein Grundstück?
Gerne realisieren wir Ihr Wunschhaus auch auf Ihrem Grundstück.
Sie suchen noch Ihr Wunschgrundstück?
Mithilfe unserer starken regionalen Vernetzung finden sicherlich auch Sie für Ihr Bauvorhaben das passende Grundstück. Die Grundstücksakquise wird durch unsere Netzwerkpartner übernommen und ist ein Service, der nur unseren Auftragskunden zur Verfügung steht. Wir bitten um Verständnis dafür, dass Informationen zu den vorhandenen Bauplätzen erst nach Bestätigung der Widerrufsbelehrung erfolgen dürfen.
Die von uns gemachten Informationen beruhen auf Angaben des Verkäufers bzw. der Verkäuferin. Für die Richtigkeit und Vollständigkeit der Angaben kann keine Gewähr bzw. Haftung übernommen werden. Ein Zwischenverkauf und Irrtümer sind vorbehalten.
Das Grundstück befindet sich in einem ruhigen Wohngebiet und toller Ausrichtung mit Feldrandlage. Ideal mit einem Doppelhaus oder Villa zu bebauen. Die Bebauung richtet sich nach §34HBO "Nachbarschaftsbebauung".
Wer es ruhig, beschaulich und mit viel Natur mag, ist in Vellmar super aufgehoben. Vellmar besticht durch eine gute Infrastruktur und schneller Erreichung der Stadt Kassel. Neben Einkaufsmöglichkeiten, Arzt, Kindergarten, Grundschule und diversen Vereinsaktivitäten hat Vellmar viel zu bieten und ist ein gefragter Ort, besonders für junge Familien.
Sie besitzen bereits ein Grundstück?
Gerne realisieren wir Ihr Wunschhaus auch auf Ihrem Grundstück.
Sie suchen noch Ihr Wunschgrundstück?
Mithilfe unserer starken regionalen Vernetzung finden sicherlich auch Sie für Ihr Bauvorhaben das passende Grundstück. Die Grundstücksakquise wird durch unsere Netzwerkpartner übernommen und ist ein Service, der nur unseren Auftragskunden zur Verfügung steht. Wir bitten um Verständnis dafür, dass Informationen zu den vorhandenen Bauplätzen erst nach Bestätigung der Widerrufsbelehrung erfolgen dürfen.
Die von uns gemachten Informationen beruhen auf Angaben des Verkäufers bzw. der Verkäuferin. Für die Richtigkeit und Vollständigkeit der Angaben kann keine Gewähr bzw. Haftung übernommen werden. Ein Zwischenverkauf und Irrtümer sind vorbehalten.
Kontaktanfrage senden
Über den Anbieter
STREIF Haus GmbH
Josef-Streif-Straße 1
54595 Weinsheim
Kontakt
| Telefon | +49 561 50049470 |
| Website | www.streif.de |
Ansprechpartner/in
Herr Björn Kipphen
Weitere Angebote des Anbieters
31
**Luxuriöses Wohnen: Entdecken Sie die Stadtvilla ...
Haus
38176 Wendeburg
Willkommen in Ihrer zukünftigen Traumstadtvilla in Wendeburg/ Neubrück, die mit STREIF nach Ihren individuellen Wünschen projektiert wird. Diese exklusive Residenz bietet Ihnen auf 190,29 m² Wohnfläche ein geräumiges ...
713.782,2 €
Kaufpreis
190,29 m²
Wohnfläche
6
Zimmer
35
**Endlich raus aus der Miete - jetzt starten mit ...
Haus
31688 Nienstädt
Willkommen in Ihrem Traumhaus! Dieses Einfamilienhaus, projektiert nach Ihren individuellen Wünschen, bietet Ihnen die perfekte Kombination aus modernem Design und höchstem Wohnkomfort. Mit einer großzügigen Wohnfläche ...
481.229 €
Kaufpreis
143,84 m²
Wohnfläche
4
Zimmer
32
**Familienfreundlicher Bungalow mit perfekter ...
Haus
31226 Peine
Tauchen Sie ein in die Welt des modernen Wohnens mit unserem projektierten Bungalow, der individuell nach Ihren Wünschen gestaltet wird. Auf einer großzügigen Wohnfläche von 93,51 m² verteilen sich geschmackvoll 3,0 ...
495.050 €
Kaufpreis
93,51 m²
Wohnfläche
3
Zimmer
9
Vorankündigung - Wohnen next Level by STREIF DHH
Haus
53844 Troisdorf
Hochwertiges Effizienzhaus-40-PLUS >> Planung nach modernsten Wohnkriterien.
649.800 €
Kaufpreis
149 m²
Wohnfläche
6
Zimmer
8
-inkl. Grundstück-Ihre neue STREIF Doppelhaushälfte in ...
Haus
38108 Braunschweig
Der Preis bezieht sich auf das Haus inkl. Baunebenkosten und einschließlich Grundstück. Die Grunderwerbsteuer fällt nur auf die Grundstückskosten an. Herzlich willkommen bei STREIF, Ihrem zuverlässigen Partner für den ...
620.000 €
Kaufpreis
140 m²
Wohnfläche
4
Zimmer