"Perfekt für Eltern, die Beruf und Familie flexibel verbinden möchten am Bodensee mit Alpenblick!"
1.195.000 €
Kaufpreis
253 m²
Wohnfläche
9,5
Zimmer
immobilien.de Nr.: 9420274
Objektnummer: 421062
Kaufpreis
| Kaufpreis | 1.195.000 € |
| Maklerprovision | keine Provision, courtagefrei |
Wohnfläche, Grundstück & Bausubstanz
| Wohnfläche | 253 m² |
| Grundstücksfläche | 820 m² |
| Zimmer | 9,5 |
| Baujahr | 2005 |
| Verfügbar ab | nach Absprache |
| Zustand | Gepflegt |
Energie
| Energieausweistyp | Verbrauch |
| Energieeffizienzklasse | C |
| Energieverbrauchkennwert | 76 kWh/(m²*a) |
| Energieträger/Befeuerung | Gas |
Beschreibung der Immobilie
Großzügiges Wohn-/Geschäftshaus in zentraler Lage von Langenargen – perfekt für Familien & kleines Unternehmen, ideal für Kosmetikstudio, Nagelstudio, Praxis oder Büro, Selbstnutzer, Unternehmer, Freiberufler, Kanzlei, Praxis, Agentur – exklusives Arbeiten & Wohnen unter einem Dach.Mit individuellem Gestaltungspotenzial.
Abgeschlossene Gewerbeeinheit + separate private Räume – ideal für Familie & kleines Unternehmen.
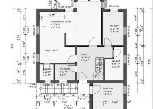
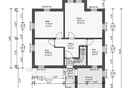
Ca. 253 m² Wohnfläche, Dachgeschoss-Einliegerwohnung/Büro, zwei Süd-West-Terrassen, Jacuzzi/Infinity-Pool, Carport-Lounge, mediterraner Garten. Ideal für Selbstnutzer, Unternehmer oder Freiberufler – Arbeiten & Wohnen unter einem Dach, nur 1,3 km zum Bodensee, Alpenblick inklusive.
Abgeschlossene Gewerbeeinheit + separate private Räume – ideal für Familie & kleines Unternehmen.
Ca. 253 m² Wohnfläche, Dachgeschoss-Einliegerwohnung/Büro, zwei Süd-West-Terrassen, Jacuzzi/Infinity-Pool, Carport-Lounge, mediterraner Garten. Ideal für Selbstnutzer, Unternehmer oder Freiberufler – Arbeiten & Wohnen unter einem Dach, nur 1,3 km zum Bodensee, Alpenblick inklusive.
Ausstattungsmerkmale
| Anzahl der Etagen im Haus | 3 |
| Küche | Einbauküche |
| Bad | 3 |
| Bad | Dusche |
| Boden | Fliesen, Teppich |
| Balkone | 1 |
| Garten | |
| Terrassen | 1 |
| Carport | 1 |
Balkon, Terrasse, Garten, Duschbad, Pool · Schwimmbad, Einbauküche, Teppichboden, Fliesen
Bemerkungen:
Highlights:
- Objektart: Wohn- und Geschäftshaus
- individuelles Gestaltungspotenzial
- Abgeschlossene Gewerbeeinheit für Publikumsverkehr
- Separate private Räume: Rückzug für Familie, keine Kundenstörung
- Baujahr: 2005 – hochwertig gepflegt
- Grundstück: ca. 820 m²
- Wohnfläche: ca. 253 m² auf 3 Etagen
- Einheiten: 1 Wohneinheit, 1 Geschäftseinheit, Dachgeschoss-Einliegerwohnung/Büros
- Ausstattung: Mediterraner Stil, Fußbodenheizung EG + Bad OG, hochwertige Materialien, Echtholzfurniertüren, Fliesen im EG & DG, Landhausküche + Teeküche
- Außenbereich: Zwei Süd-West-Terrassen (20 + 30 m²), Jacuzzi/Infinity-Pool, Carport-Lounge, gepflegter Garten, Carport und Stellplätze 3+
- Besonderheiten: Photovoltaikanlage 9,9 kWp, Alpenblick aus dem Dachgeschoss, separate Außentreppe für Dachgeschoss, abgeschlepptes Dach, lichtdurchflutete Räume
Preis: 1.195.000 € (Verhandlungsbasis)
Vereinbaren Sie jetzt Ihre Besichtigung und entdecken Sie die Möglichkeiten!
Bemerkungen:
Highlights:
- Objektart: Wohn- und Geschäftshaus
- individuelles Gestaltungspotenzial
- Abgeschlossene Gewerbeeinheit für Publikumsverkehr
- Separate private Räume: Rückzug für Familie, keine Kundenstörung
- Baujahr: 2005 – hochwertig gepflegt
- Grundstück: ca. 820 m²
- Wohnfläche: ca. 253 m² auf 3 Etagen
- Einheiten: 1 Wohneinheit, 1 Geschäftseinheit, Dachgeschoss-Einliegerwohnung/Büros
- Ausstattung: Mediterraner Stil, Fußbodenheizung EG + Bad OG, hochwertige Materialien, Echtholzfurniertüren, Fliesen im EG & DG, Landhausküche + Teeküche
- Außenbereich: Zwei Süd-West-Terrassen (20 + 30 m²), Jacuzzi/Infinity-Pool, Carport-Lounge, gepflegter Garten, Carport und Stellplätze 3+
- Besonderheiten: Photovoltaikanlage 9,9 kWp, Alpenblick aus dem Dachgeschoss, separate Außentreppe für Dachgeschoss, abgeschlepptes Dach, lichtdurchflutete Räume
Preis: 1.195.000 € (Verhandlungsbasis)
Vereinbaren Sie jetzt Ihre Besichtigung und entdecken Sie die Möglichkeiten!
Sonstige Informationen
Heizungsart: Sonstiges (s. Text)
Energieträger: Gas
Makleranfragen nicht erwünscht. Nach § 7 UWG sind unaufgeforderte Kontaktaufnahmen durch Makler ohne ausdrückliche Einwilligung des Empfängers verboten!
ohne-makler (OM) ist weder Anbieter noch Vermittler der Immobilie. OM betreibt eine Plattform für Immobilieneigentümer, die unter anderem die gleichzeitige Veröffentlichung einzelner Inserate auf mehreren Immobilienportalen ermöglicht. Die Inhalte dieser Inserate werden ausschließlich von Dritten verantwortet. Für die Richtigkeit, Vollständigkeit oder Rechtmäßigkeit der Angaben übernimmt OM keine Haftung. Hinweise auf mögliche Rechtsverstöße können jederzeit gemeldet werden und werden nach Prüfung umgehend bearbeitet.
Energieträger: Gas
Makleranfragen nicht erwünscht. Nach § 7 UWG sind unaufgeforderte Kontaktaufnahmen durch Makler ohne ausdrückliche Einwilligung des Empfängers verboten!
ohne-makler (OM) ist weder Anbieter noch Vermittler der Immobilie. OM betreibt eine Plattform für Immobilieneigentümer, die unter anderem die gleichzeitige Veröffentlichung einzelner Inserate auf mehreren Immobilienportalen ermöglicht. Die Inhalte dieser Inserate werden ausschließlich von Dritten verantwortet. Für die Richtigkeit, Vollständigkeit oder Rechtmäßigkeit der Angaben übernimmt OM keine Haftung. Hinweise auf mögliche Rechtsverstöße können jederzeit gemeldet werden und werden nach Prüfung umgehend bearbeitet.
Karte wird geladen...
Objektstandort
88085 Langenargen
- Baden-Württemberg
Lage & Infrastruktur
Objektstandort
88085 Langenargen
- Baden-Württemberg
Lage:
•Ruhiges Gewerbegebiet in privater Anliegerstraße, nur ca. 1,3 km zum Bodensee, Einkaufsmöglichkeiten, Schulen, Ärzte fußläufig
•Ideal für: Ideal für Familie & kleines Unternehmen, ideal für Kosmetikstudio, Nagelstudio, Praxis oder Büro, Selbstnutzer, Unternehmer, Freiberufler, Kanzlei, Praxis, Agentur – exklusives Arbeiten & Wohnen unter einem Dach
Infrastruktur (im Umkreis von 5 km):
Apotheke, Lebensmittel-Discount, Allgemeinmediziner, Kindergarten, Grundschule, Hauptschule, Öffentliche Verkehrsmittel
•Ruhiges Gewerbegebiet in privater Anliegerstraße, nur ca. 1,3 km zum Bodensee, Einkaufsmöglichkeiten, Schulen, Ärzte fußläufig
•Ideal für: Ideal für Familie & kleines Unternehmen, ideal für Kosmetikstudio, Nagelstudio, Praxis oder Büro, Selbstnutzer, Unternehmer, Freiberufler, Kanzlei, Praxis, Agentur – exklusives Arbeiten & Wohnen unter einem Dach
Infrastruktur (im Umkreis von 5 km):
Apotheke, Lebensmittel-Discount, Allgemeinmediziner, Kindergarten, Grundschule, Hauptschule, Öffentliche Verkehrsmittel
Kontaktanfrage senden
Über den Anbieter
OM PropTech GmbH
Humboldtstraße 25a
21509 Glinde
Kontakt
| Telefon | - |
| Fax | - |
| Website | www.ohne-makler.net |
Ansprechpartner/in
Angebot vom Eigentümer
Weitere Angebote des Anbieters
1
Baugrundstück Reiserdorf
Grundstück
92721 Störnstein
Das Grundstück befindet sich im Baugebiet Gramleite II in Reiserdorf, gehörend zur Gemeinde Störnstein und ist bereits voll erschlossen, sodass Sie mit Ihren Bauplänen zeitnah starten könnten. Aufgrund der Lage in der ...
95.000 €
Kaufpreis
632 m²
Grundstücksfläche
12
Exklusive 2-Zimmer-Neubau-Eigentumswohnung mit großem ...
Wohnung
14467 Potsdam
Willkommen in der Berliner Vorstadt, ein exklusives Neubauprojekt erwartet Sie! Diese beeindruckende Wohnanlage besteht aus sechs Eigentumswohnungen, die sich über drei Etagen erstrecken und sich in unmittelbarer Nähe ...
470.000 €
Kaufpreis
62,32 m²
Wohnfläche
2
Zimmer
5
Gemütliche 1,5 Zimmer Dachgeschosswohnung mit 33m² in ...
Wohnung
61169 Friedberg
Objektbeschreibung Sie suchen ein gemütliches Zuhause mit modernem Flair? Diese frisch renovierte Dachgeschosswohnung in der Engelsgasse 16 verbindet charmantes Wohnen unter Schrägen mit einer erstklassigen Ausstattung ...
650 €
Kaltmiete (netto)
33 m²
Wohnfläche
1,5
Zimmer
11
Attraktive Gewerbefläche in Dortmund Brackel, TOP Lage! ...
Büro / Praxen
44309 Dortmund
Attraktive Gewerbefläche in Dortmund Brackel Es handelt sich um einen Raum mit 23 m² sowie Parkplatzmöglichkeiten Eine Gemeinschaftsnutzung komplett ausgestattete Küche und Toilette Anteilig 11,33 m² bei Interesse oder ...
365 €
Kaltmiete (netto)
34,33 m²
Gesamtfläche
6
Stilvolle 45 m² Altbauwohnung – saniert 2025 mit ...
Wohnung
68305 Mannheim
Stilvolle Erdgeschosswohnung – kernsaniert mit hochwertiger Ausstattung Diese hochwertig kernsanierte Erdgeschosswohnung vereint modernen Wohnkomfort mit klassischem Charme. Die stilvollen Echtholzdielen und die hohen ...
590 €
Kaltmiete (netto)
45 m²
Wohnfläche
2
Zimmer