Vermietete 2-Zimmer-Wohnung in zentraler Lage von Kriftel/Ts.
229.000 €
Kaufpreis
60 m²
Wohnfläche
2
Zimmer
immobilien.de Nr.: 9418918
Objektnummer: 280334
Kaufpreis
| Kaufpreis | 229.000 € |
| Hausgeld | 380 € |
| Maklerprovision | keine Provision, courtagefrei |
Wohnfläche, Grundstück & Bausubstanz
| Wohnfläche | 60 m² |
| Zimmer | 2 |
| Baujahr | 1975 |
| Verfügbar ab | nach Absprache |
| Zustand | Gepflegt |
Energie
| Energieausweistyp | Verbrauch |
| Energieeffizienzklasse | E |
| Energieverbrauchkennwert | 145 kWh/(m²*a) |
| Heizungsart | Zentralheizung |
| Energieträger/Befeuerung | Gas |
Beschreibung der Immobilie
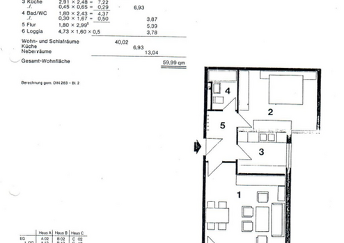
Zum Verkauf steht eine ca. 60 qm gut vermietete 2-Zimmer-Wohnung mit Balkon. Die Wohnung liegt im 2. OG eines gepflegten Mehrfamilienhauses.
Das Haus wurde ca. 1975 erbaut. Es ist Bestandteil von insgesamt 3 Häusern mit 141 Eigentumswohnungen. Davon sind im Haus in der sich die Wohnung befindet 48 Wohneinheiten auf 11 Etagen verteilt.
Nach betreten der Wohnung gelangen Sie über den rechteckigen Flur in alle Zimmer. Das Wannenbad wurde 2022 komplett saniert. Die Küche ist mit einer Einbauküche ausgestattet. Das Wohn- und Schlafzimmer verfügt über eine ausreichende Größe. Der sehr große Balkon liegt in Süd/West Ausrichtung.
Der separate Keller ist ca. 6 qm groß und verfügt über einen eigenen Stromanschluss.
Das Haus wurde ca. 1975 erbaut. Es ist Bestandteil von insgesamt 3 Häusern mit 141 Eigentumswohnungen. Davon sind im Haus in der sich die Wohnung befindet 48 Wohneinheiten auf 11 Etagen verteilt.
Nach betreten der Wohnung gelangen Sie über den rechteckigen Flur in alle Zimmer. Das Wannenbad wurde 2022 komplett saniert. Die Küche ist mit einer Einbauküche ausgestattet. Das Wohn- und Schlafzimmer verfügt über eine ausreichende Größe. Der sehr große Balkon liegt in Süd/West Ausrichtung.
Der separate Keller ist ca. 6 qm groß und verfügt über einen eigenen Stromanschluss.
Ausstattungsmerkmale
| Anzahl der Etagen im Haus | 11 |
| Inserat befindet sich im Stockwerk | 2 |
| Küche | Einbauküche |
| Bad | 1 |
| Bad | Wanne |
| Boden | Laminat |
| Balkone | 1 |
| Terrassen | 0 |
| Fahrstuhl | |
| Keller |
Balkon, Keller, Fahrstuhl, Vollbad, Einbauküche, Laminat
Bemerkungen:
-60 qm Wohnfläche
-2 Zimmer
-innen liegendes Badezimmer mit Wanne
-Balkon (Süd-Westausrichtung)
-Gegensprechanlage
-3-fach verglasten Fenster (Baujahr 2020)
-Keller (eigener Stromanschluss)
-Waschkeller mit Münzwaschmaschine
-Trockenraum
-Fahrradkeller
-Personenaufzug (2012 modernisiert)
-Fassadensanierung in 2020
Bemerkungen:
-60 qm Wohnfläche
-2 Zimmer
-innen liegendes Badezimmer mit Wanne
-Balkon (Süd-Westausrichtung)
-Gegensprechanlage
-3-fach verglasten Fenster (Baujahr 2020)
-Keller (eigener Stromanschluss)
-Waschkeller mit Münzwaschmaschine
-Trockenraum
-Fahrradkeller
-Personenaufzug (2012 modernisiert)
-Fassadensanierung in 2020
Sonstige Informationen
Heizungsart: Zentralheizung
Energieträger: Gas
- Die Wohnung ist seit 1995 vermietet.
- Nettomiete 650,-€ / 290,-€ NBK.
- Besichtigungen nach Rücksprache möglich
- Keine Makler !!!!
Makleranfragen nicht erwünscht. Nach § 7 UWG sind unaufgeforderte Kontaktaufnahmen durch Makler ohne ausdrückliche Einwilligung des Empfängers verboten!
ohne-makler (OM) ist weder Anbieter noch Vermittler der Immobilie. OM betreibt eine Plattform für Immobilieneigentümer, die unter anderem die gleichzeitige Veröffentlichung einzelner Inserate auf mehreren Immobilienportalen ermöglicht. Die Inhalte dieser Inserate werden ausschließlich von Dritten verantwortet. Für die Richtigkeit, Vollständigkeit oder Rechtmäßigkeit der Angaben übernimmt OM keine Haftung. Hinweise auf mögliche Rechtsverstöße können jederzeit gemeldet werden und werden nach Prüfung umgehend bearbeitet.
Energieträger: Gas
- Die Wohnung ist seit 1995 vermietet.
- Nettomiete 650,-€ / 290,-€ NBK.
- Besichtigungen nach Rücksprache möglich
- Keine Makler !!!!
Makleranfragen nicht erwünscht. Nach § 7 UWG sind unaufgeforderte Kontaktaufnahmen durch Makler ohne ausdrückliche Einwilligung des Empfängers verboten!
ohne-makler (OM) ist weder Anbieter noch Vermittler der Immobilie. OM betreibt eine Plattform für Immobilieneigentümer, die unter anderem die gleichzeitige Veröffentlichung einzelner Inserate auf mehreren Immobilienportalen ermöglicht. Die Inhalte dieser Inserate werden ausschließlich von Dritten verantwortet. Für die Richtigkeit, Vollständigkeit oder Rechtmäßigkeit der Angaben übernimmt OM keine Haftung. Hinweise auf mögliche Rechtsverstöße können jederzeit gemeldet werden und werden nach Prüfung umgehend bearbeitet.
Karte wird geladen...
Objektstandort
65830 Kriftel
- Hessen
Lage & Infrastruktur
Objektstandort
65830 Kriftel
- Hessen
Die Wohnung befindet sich in Kriftel in unmittelbarer Nähe von Frankfurt am Main und Wiesbaden. Sie ist durch eine zentrale Lage sowohl mit dem Auto als auch mit den öffentlichen Verkehrsmitteln zu erreichen.
Durch die direkte Anbindung an die A66 und die A3 ist das gesamte Rhein-Main Gebiet gut zu erreichen. Auch der Frankfurter Flughafen ist in 10 Minuten mit dem PKW erreichbar.
Für die Nutzung der öffentlichen Verkehrsmittel verfügt Kriftel über einen S-Bahnhof, von dem aus in regelmäßigen Abständen Verbindungen zum Beispiel nach Frankfurt am Main, Wiesbaden, Mainz bzw. Frankfurt Flughafen besteht. Buslinien ergänzen das Angebot und sorgen für eine gute Vernetzung innerhalb der Gemeinde und zu den umliegenden Orten.
In unmittelbarer Nähe befinden sich alle Geschäfte des täglichen Bedarfs, sowie Kindergärten und Schulen.
Infrastruktur (im Umkreis von 5 km):
Apotheke, Lebensmittel-Discount, Allgemeinmediziner, Kindergarten, Grundschule, Gymnasium, Gesamtschule, Öffentliche Verkehrsmittel
Durch die direkte Anbindung an die A66 und die A3 ist das gesamte Rhein-Main Gebiet gut zu erreichen. Auch der Frankfurter Flughafen ist in 10 Minuten mit dem PKW erreichbar.
Für die Nutzung der öffentlichen Verkehrsmittel verfügt Kriftel über einen S-Bahnhof, von dem aus in regelmäßigen Abständen Verbindungen zum Beispiel nach Frankfurt am Main, Wiesbaden, Mainz bzw. Frankfurt Flughafen besteht. Buslinien ergänzen das Angebot und sorgen für eine gute Vernetzung innerhalb der Gemeinde und zu den umliegenden Orten.
In unmittelbarer Nähe befinden sich alle Geschäfte des täglichen Bedarfs, sowie Kindergärten und Schulen.
Infrastruktur (im Umkreis von 5 km):
Apotheke, Lebensmittel-Discount, Allgemeinmediziner, Kindergarten, Grundschule, Gymnasium, Gesamtschule, Öffentliche Verkehrsmittel