Penthousewohnung mit großer Dachterrasse Trier-Kürenz - Achtung Anleger hohe Steuervorteile sichern
359.000 €
Kaufpreis
72,43 m²
Wohnfläche
2
Zimmer
immobilien.de Nr.: 9417192
Objektnummer: ETNBKAV325J
Kaufpreis
| Kaufpreis | 359.000 € |
Wohnfläche, Grundstück & Bausubstanz
| Wohnfläche | 72,43 m² |
| Fläche teilbar ab | 72,43 m² |
| Zimmer | 2 |
| Baujahr | 2026 |
| Verfügbar ab | Sommer 2026 |
| Zustand | Erstbezug |
Energie
| Energieausweistyp | Bedarfsausweis |
| Ausstellungsdatum | 20. 01. 2022 |
| Gültig bis | 19.01.2032 |
| Baujahr (laut Energieausweis) | 2022 |
| Energieeffizienzklasse | A+ |
| Energietyp | KfW-55 |
| Endenergiebedarf | 16,80 |
| Heizungsart | Fußbodenheizung |
| Wesentlicher Energieträger | Luft/wasser-Wärmepumpe |
| Energieträger/Befeuerung | Luft-Wärme-Pumpe |
Beschreibung der Immobilie
Modernes Wohnen in altersgerechter Ausführung im verkehrsberuhigten Innenbereich in Trier-Kürenz. Schöne Penthousewohnung mit großer sonniger Dachterrasse - Achtung Vermieter: Sichern Sie sich hohe Steuervorteile durch die neue degressive Abschreibung von Gebäuden.
Moderne Eigentumswohnungen in altengerechter Ausführung im Energiesparhaus in Trier-Kürenz im verkehrsberuhigten Innenbereich .
In attraktiver Lage von Trier-Kürenz entstehen neue Eigentumswohnungen in altersgerechter Ausführung mit moderner Technik (KfW 55 Standard Erneuerbare Energien ), Aufzug und guter Ausstattung.In dieser exponierten Lage entstehen attraktive Eigentumswohnungen von ca. 68 bis ca. 130 m² mit moderner Technik in altersgerechter Ausführung. Es sind eine moderne Luftwärmepumpe, Fußbodenheizung, elektrische Rollläden, Aufzug, schöne Fliesen sowie attraktive Parkettböden vorgesehen. Sie können hier noch Ihre persönliche Note einbringen.
Die Errichtung erfolgt unter Berücksichtigung moderner Energiestandards (KFW-Effizienzhaus 55 Erneuerbare Energien) sowie einer guten Ausstattung. Die Kombination von moderner Technik und hochwertiger Isolierung führt zu sehr günstigen Heizkosten bzw. Nebenkosten.
Alle Wohnungen verfügen über schöne Balkone, Terrassen oder Dachterrassen.
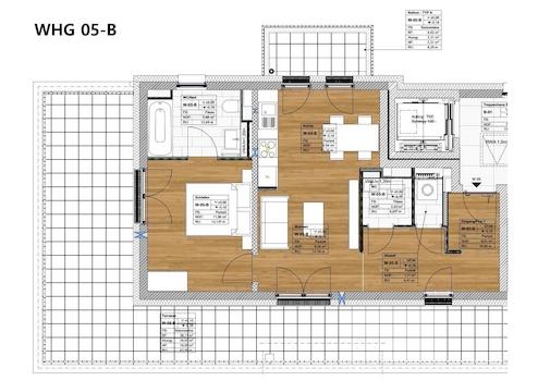
Das Angebot bezieht sich auf die Wohnung Nr. 5 - Gebäude B im Dachgeschoß
Die Wohnung besteht aus dem hellen Wohn/Essbereich von ca. 19 m² mit integrierter Küche und Zugang auf die tolle Dachterrasse von ca. 40 m². An den Wohnbereich ist das Gäste-WC sowie der Abstellraum mit Waschmaschinenanschluß angegliedert. Der schöne Schlafraum mit Zugang zur großen Dachterrasse und in das schöne Bad mit Fenster vervollständigen das Angebot. Die gesamte Wohnfläche beträgt unter Berücksichtigung der Dachterasse mit 50 % ca. 72 m².
Jeder Wohnung ist ein Abstell/Kellerraum im Untergeschoß zugeordnet.
Gleichermaßen befinden sich im Kellergeschoß die Tiefgarage sowie der Fahrradbereich
Es besteht die Möglichkeit Tiefgaragenstellplätze ab 27.000 EUR oder Doppelparker für 20.000 EUR zu erwerben.
Derzeit ist der Innenausbau in Arbeit. Die Bezugsfertigkeit ist für Sommer 2026 geplant.
Steuerlicher Hinweis für Investoren : Die Wohnungen können bei einem Erwerb bis zum Jahr der Fertigstellung und einer Vermietung entsprechend den im Wachstumschanchengesetz aktuell beschlossenen Änderungen der degressiven Abschreibung nunmehr mit jährlich 5 %- bezogen auf den jeweiligen Buchwert/Restwert - abgeschrieben werden. Hierdurch können hohe Steuervorteile erzielt werden. Wir übernehmen keine steuerliche Beratung und keine Haftung für steuerliche Ziele. Hierzu informiert Sie Ihr Steuerberater umfassend.
Moderne Eigentumswohnungen in altengerechter Ausführung im Energiesparhaus in Trier-Kürenz im verkehrsberuhigten Innenbereich .
In attraktiver Lage von Trier-Kürenz entstehen neue Eigentumswohnungen in altersgerechter Ausführung mit moderner Technik (KfW 55 Standard Erneuerbare Energien ), Aufzug und guter Ausstattung.In dieser exponierten Lage entstehen attraktive Eigentumswohnungen von ca. 68 bis ca. 130 m² mit moderner Technik in altersgerechter Ausführung. Es sind eine moderne Luftwärmepumpe, Fußbodenheizung, elektrische Rollläden, Aufzug, schöne Fliesen sowie attraktive Parkettböden vorgesehen. Sie können hier noch Ihre persönliche Note einbringen.
Die Errichtung erfolgt unter Berücksichtigung moderner Energiestandards (KFW-Effizienzhaus 55 Erneuerbare Energien) sowie einer guten Ausstattung. Die Kombination von moderner Technik und hochwertiger Isolierung führt zu sehr günstigen Heizkosten bzw. Nebenkosten.
Alle Wohnungen verfügen über schöne Balkone, Terrassen oder Dachterrassen.
Das Angebot bezieht sich auf die Wohnung Nr. 5 - Gebäude B im Dachgeschoß
Die Wohnung besteht aus dem hellen Wohn/Essbereich von ca. 19 m² mit integrierter Küche und Zugang auf die tolle Dachterrasse von ca. 40 m². An den Wohnbereich ist das Gäste-WC sowie der Abstellraum mit Waschmaschinenanschluß angegliedert. Der schöne Schlafraum mit Zugang zur großen Dachterrasse und in das schöne Bad mit Fenster vervollständigen das Angebot. Die gesamte Wohnfläche beträgt unter Berücksichtigung der Dachterasse mit 50 % ca. 72 m².
Jeder Wohnung ist ein Abstell/Kellerraum im Untergeschoß zugeordnet.
Gleichermaßen befinden sich im Kellergeschoß die Tiefgarage sowie der Fahrradbereich
Es besteht die Möglichkeit Tiefgaragenstellplätze ab 27.000 EUR oder Doppelparker für 20.000 EUR zu erwerben.
Derzeit ist der Innenausbau in Arbeit. Die Bezugsfertigkeit ist für Sommer 2026 geplant.
Steuerlicher Hinweis für Investoren : Die Wohnungen können bei einem Erwerb bis zum Jahr der Fertigstellung und einer Vermietung entsprechend den im Wachstumschanchengesetz aktuell beschlossenen Änderungen der degressiven Abschreibung nunmehr mit jährlich 5 %- bezogen auf den jeweiligen Buchwert/Restwert - abgeschrieben werden. Hierdurch können hohe Steuervorteile erzielt werden. Wir übernehmen keine steuerliche Beratung und keine Haftung für steuerliche Ziele. Hierzu informiert Sie Ihr Steuerberater umfassend.
Ausstattungsmerkmale
| Bad | 1 |
| Bad | Wanne, Fenster |
| Boden | Fliesen, Parkett, Estrich |
Modernes Wohnen in altersgerechter Ausführung im verkehrsberuhigten Innenbereich in Trier-Kürenz. Schöne Penthousewohnung mit großer sonniger Dachterrasse - Achtung Vermieter: Sichern Sie sich hohe Steuervorteile durch die neue degressive Abschreibung von Gebäuden.
Moderne Eigentumswohnungen in altengerechter Ausführung im Energiesparhaus in Trier-Kürenz im verkehrsberuhigten Innenbereich .
In attraktiver Lage von Trier-Kürenz entstehen neue Eigentumswohnungen in altersgerechter Ausführung mit moderner Technik (KfW 55 Standard Erneuerbare Energien ), Aufzug und guter Ausstattung.In dieser exponierten Lage entstehen attraktive Eigentumswohnungen von ca. 68 bis ca. 130 m² mit moderner Technik in altersgerechter Ausführung. Es sind eine moderne Luftwärmepumpe, Fußbodenheizung, elektrische Rollläden, Aufzug, schöne Fliesen sowie attraktive Parkettböden vorgesehen. Sie können hier noch Ihre persönliche Note einbringen.
Die Errichtung erfolgt unter Berücksichtigung moderner Energiestandards (KFW-Effizienzhaus 55 Erneuerbare Energien) sowie einer guten Ausstattung. Die Kombination von moderner Technik und hochwertiger Isolierung führt zu sehr günstigen Heizkosten bzw. Nebenkosten.
Alle Wohnungen verfügen über schöne Balkone, Terrassen oder Dachterrassen.
Das Angebot bezieht sich auf die Wohnung Nr. 5 - Gebäude B im Dachgeschoß
Die Wohnung besteht aus dem hellen Wohn/Essbereich von ca. 19 m² mit integrierter Küche und Zugang auf die tolle Dachterrasse von ca. 40 m². An den Wohnbereich ist das Gäste-WC sowie der Abstellraum mit Waschmaschinenanschluß angegliedert. Der schöne Schlafraum mit Zugang zur großen Dachterrasse und in das schöne Bad mit Fenster vervollständigen das Angebot. Die gesamte Wohnfläche beträgt unter Berücksichtigung der Dachterasse mit 50 % ca. 72 m².
Jeder Wohnung ist ein Abstell/Kellerraum im Untergeschoß zugeordnet.
Gleichermaßen befinden sich im Kellergeschoß die Tiefgarage sowie der Fahrradbereich
Es besteht die Möglichkeit Tiefgaragenstellplätze ab 27.000 EUR oder Doppelparker für 20.000 EUR zu erwerben.
Derzeit ist der Innenausbau in Arbeit. Die Bezugsfertigkeit ist für Sommer 2026 geplant.
Steuerlicher Hinweis für Investoren : Die Wohnungen können bei einem Erwerb bis zum Jahr der Fertigstellung und einer Vermietung entsprechend den im Wachstumschanchengesetz aktuell beschlossenen Änderungen der degressiven Abschreibung nunmehr mit jährlich 5 %- bezogen auf den jeweiligen Buchwert/Restwert - abgeschrieben werden. Hierdurch können hohe Steuervorteile erzielt werden. Wir übernehmen keine steuerliche Beratung und keine Haftung für steuerliche Ziele. Hierzu informiert Sie Ihr Steuerberater umfassend.
Moderne Eigentumswohnungen in altengerechter Ausführung im Energiesparhaus in Trier-Kürenz im verkehrsberuhigten Innenbereich .
In attraktiver Lage von Trier-Kürenz entstehen neue Eigentumswohnungen in altersgerechter Ausführung mit moderner Technik (KfW 55 Standard Erneuerbare Energien ), Aufzug und guter Ausstattung.In dieser exponierten Lage entstehen attraktive Eigentumswohnungen von ca. 68 bis ca. 130 m² mit moderner Technik in altersgerechter Ausführung. Es sind eine moderne Luftwärmepumpe, Fußbodenheizung, elektrische Rollläden, Aufzug, schöne Fliesen sowie attraktive Parkettböden vorgesehen. Sie können hier noch Ihre persönliche Note einbringen.
Die Errichtung erfolgt unter Berücksichtigung moderner Energiestandards (KFW-Effizienzhaus 55 Erneuerbare Energien) sowie einer guten Ausstattung. Die Kombination von moderner Technik und hochwertiger Isolierung führt zu sehr günstigen Heizkosten bzw. Nebenkosten.
Alle Wohnungen verfügen über schöne Balkone, Terrassen oder Dachterrassen.
Das Angebot bezieht sich auf die Wohnung Nr. 5 - Gebäude B im Dachgeschoß
Die Wohnung besteht aus dem hellen Wohn/Essbereich von ca. 19 m² mit integrierter Küche und Zugang auf die tolle Dachterrasse von ca. 40 m². An den Wohnbereich ist das Gäste-WC sowie der Abstellraum mit Waschmaschinenanschluß angegliedert. Der schöne Schlafraum mit Zugang zur großen Dachterrasse und in das schöne Bad mit Fenster vervollständigen das Angebot. Die gesamte Wohnfläche beträgt unter Berücksichtigung der Dachterasse mit 50 % ca. 72 m².
Jeder Wohnung ist ein Abstell/Kellerraum im Untergeschoß zugeordnet.
Gleichermaßen befinden sich im Kellergeschoß die Tiefgarage sowie der Fahrradbereich
Es besteht die Möglichkeit Tiefgaragenstellplätze ab 27.000 EUR oder Doppelparker für 20.000 EUR zu erwerben.
Derzeit ist der Innenausbau in Arbeit. Die Bezugsfertigkeit ist für Sommer 2026 geplant.
Steuerlicher Hinweis für Investoren : Die Wohnungen können bei einem Erwerb bis zum Jahr der Fertigstellung und einer Vermietung entsprechend den im Wachstumschanchengesetz aktuell beschlossenen Änderungen der degressiven Abschreibung nunmehr mit jährlich 5 %- bezogen auf den jeweiligen Buchwert/Restwert - abgeschrieben werden. Hierdurch können hohe Steuervorteile erzielt werden. Wir übernehmen keine steuerliche Beratung und keine Haftung für steuerliche Ziele. Hierzu informiert Sie Ihr Steuerberater umfassend.
Sonstige Informationen
Der Energieausweis liegt vor.
Dieser wird dem Interessenten vor dem Besichtigungstermin mit dem Exposé zur Verfügung gestellt.
Vereinbaren Sie einen Beratungs bzw. Besichtigungstermin ! In Zusammenarbeit mit einem Finanzierungsvermittler sind wir Ihnen gerne bei der Gestaltung Ihrer Finanzierung behilflich. Auf Wunsch sowie bei entsprechender Bonität kann der Kaufpreis bis zu 100 % finanziert werden. Die Zinsen können z.B. auf die Dauer von 10 oder 15 Jahren festgeschrieben werden. Hierdurch können sich Ihre monatlichen Raten nicht verändern !
Weitere interessante Kauf- oder Mietangebote finden Sie unter www.scherf-immobilien.de
Dieser wird dem Interessenten vor dem Besichtigungstermin mit dem Exposé zur Verfügung gestellt.
Vereinbaren Sie einen Beratungs bzw. Besichtigungstermin ! In Zusammenarbeit mit einem Finanzierungsvermittler sind wir Ihnen gerne bei der Gestaltung Ihrer Finanzierung behilflich. Auf Wunsch sowie bei entsprechender Bonität kann der Kaufpreis bis zu 100 % finanziert werden. Die Zinsen können z.B. auf die Dauer von 10 oder 15 Jahren festgeschrieben werden. Hierdurch können sich Ihre monatlichen Raten nicht verändern !
Weitere interessante Kauf- oder Mietangebote finden Sie unter www.scherf-immobilien.de
Karte wird geladen...
Objektstandort
54295 Trier
Lage & Infrastruktur
Objektstandort
54295 Trier
Trier- Stadtteil Kürenz - gefragter Wohnbereich zwischen Innenstadt und Universität. Die Wohnungen entstehen in einem modernen Mehrfamilienhaus, was als Energiesparhaus mit moderner Technik konzipiert wurde. Das Objekt wurde mit einem verkehrsberuhigten Innenbereich geplant.
Alle Einrichtungen des täglichen Bedarfs erreichen Sie auf kurzen Wegen. Ebenso ist eine gute Verkehrsanbindung in alle Richtungen gegeben. Den Hauptbahnhof erreichen Sie in ca. 10 Gehminuten.ebenso ist die Radachse Trier-Nordin unmittelbarer Nähe Der neue REWE Markt Schönbornstraße ist ebenfalls in wenigen Gehminuten erreichbar. Die Zufahrt zur Tiefgrage erfolgt von der Nellstraße.
Alle Einrichtungen des täglichen Bedarfs erreichen Sie auf kurzen Wegen. Ebenso ist eine gute Verkehrsanbindung in alle Richtungen gegeben. Den Hauptbahnhof erreichen Sie in ca. 10 Gehminuten.ebenso ist die Radachse Trier-Nordin unmittelbarer Nähe Der neue REWE Markt Schönbornstraße ist ebenfalls in wenigen Gehminuten erreichbar. Die Zufahrt zur Tiefgrage erfolgt von der Nellstraße.
Kontaktanfrage senden
Über den Anbieter
Scherf Profi Immobilienservice GmbH
Paulinstraße 104
54292 Trier
Kontakt
| Telefon | 0651 97878-0 |
| Fax | 0651 97878-78 |
| Website | www.scherf-immobilien.de |
Ansprechpartner/in
Herr Norbert Scherf
Weitere Angebote des Anbieters
20
Gut aufgeteilte 4 Zimmerwohnung in gefragter Lage Am ...
Wohnung
54296 Trier
Gut aufgeteilte 4- Zimmerwohnung mit optionaler Garage in gefragter Wohnlage Trier, Am Trimmelter Hof - Trier Nähe Universität. Die Wohnung befindet sich im 3. Obergeschoß (oberstes Geschoß) ohne Aufzug eines ...
260.000 €
Kaufpreis
93,3 m²
Wohnfläche
4
Zimmer
15
Moderne helle Wohnung mit Garten im KFW 40 ...
Wohnung
54292 Trier
Helle Erdgeschoßwohnung mit Terrasse und eigenem Garten im Energiesparhaus mit nur 7 Wohneinheiten und viel Grün in gefragter Lage in Trier, Maarviertel zwischen Innenstadt und Mosel. Moderne Eigentumswohnungen in ...
699.000 €
Kaufpreis
113,14 m²
Wohnfläche
4
Zimmer
13
Neue großzügige attraktive Energiesparhäuser in bester ...
Haus
54295 Trier
Viel Platz - Neue helle attraktive KFW 40 Energiesparhäuser in bester Lage in Trier-Olewig mit viel Grün. Neue großzügige Einfamilienhäuser in bester Lage von Trier-Olewig. Hier entstehen 4 moderne helle Wohnhäuser in ...
790.000 €
Kaufpreis
154 m²
Wohnfläche
6
Zimmer
15
Neues KFW 40 Eckhaus Tarforster Höhe mit schöner ...
Haus
54296 Trier
Top Wohnlage Tarforster Höhe - Neues Reiheneckhaus mit Keller, schöner Dachterrasse mit herrlicher Sicht und schönem Garten im Passivhausstandard mit Top Energiekonzept - Darlehen Familienförderung ab 0,01 % möglich ...
792.500 €
Kaufpreis
134 m²
Wohnfläche
5
Zimmer
16
Tarforster Höhe-Passivhäuser mit schöner Dachterrasse, ...
Haus
54296 Trier
Top Wohnlage Tarforster Höhe - Neue gut aufgeteilte Einfamilienreihenhäuser mit Keller und schöner Dachterrasse mit herrliche Sicht im Passivhausstandard mit Top Energiekonzept im Standard KFW 40 - Familienförderung ...
749.600 €
Kaufpreis
144,72 m²
Wohnfläche
5
Zimmer