Grundstück mit Bestand & genehmigungsfähigem Anbau in Waldrandlage
365.000 €
Kaufpreis
immobilien.de Nr.: 9416172
Objektnummer: 6445#avj4U
Dateien
Kaufpreis
| Kaufpreis | 365.000 € |
| Maklerprovision | 3,57% |
Wohnfläche, Grundstück & Bausubstanz
| Grundstücksfläche | 782 m² |
| Verfügbar ab | auf Anfrage |
Beschreibung der Immobilie
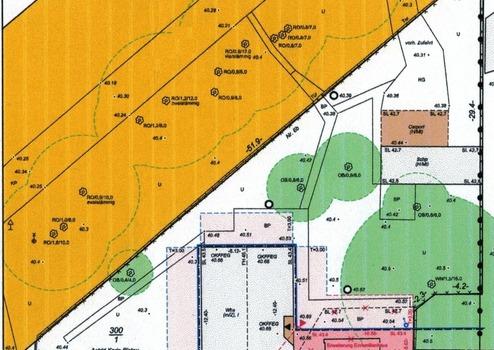
Zum Verkauf steht ein ca. 784 m² großes Grundstück in begehrter, ruhiger Waldrandlage von Erkner bei Berlin.
Das Grundstück ist mit einem modernisierten, eingeschossigen Bungalow (Baujahr 1999) bebaut, der aktuell ca. 80 m² Wohnfläche bietet und sofort nutzbar ist.
Besonderes Highlight:
Für das Grundstück liegt eine positive Bauvoranfrage zur Erweiterung der bestehenden Bebauung vor. Dadurch kann die Wohnfläche um ca. 48 m² erhöht werden, sodass eine Gesamtwohnfläche von ca. 125–130 m² mit bis zu 4–6 Zimmern realisierbar ist.
Dieses Angebot richtet sich an Käufer, die ein attraktives Grundstück mit sofort nutzbarem Bestand und klarer Entwicklungsperspektive suchen.
AKTUELLE BEBAUUNG (BESTAND)
Auf dem Grundstück befindet sich ein eingeschossiger Bungalow aus dem Jahr 1999, der 2025 umfassend modernisiert wurde.
- Wohnfläche: ca. 80 m²
- 3 Zimmer
- Wohnküche mit Essbereich
- Hauswirtschaftsraum
- Duschbad mit Fenster
- Fußbodenheizung
- Terrasse mit Gartenzugang
Der Bestand ist sofort bewohnbar und kann entweder weiter genutzt oder perspektivisch im Zuge der Erweiterung angepasst werden
Das Grundstück ist mit einem modernisierten, eingeschossigen Bungalow (Baujahr 1999) bebaut, der aktuell ca. 80 m² Wohnfläche bietet und sofort nutzbar ist.
Besonderes Highlight:
Für das Grundstück liegt eine positive Bauvoranfrage zur Erweiterung der bestehenden Bebauung vor. Dadurch kann die Wohnfläche um ca. 48 m² erhöht werden, sodass eine Gesamtwohnfläche von ca. 125–130 m² mit bis zu 4–6 Zimmern realisierbar ist.
Dieses Angebot richtet sich an Käufer, die ein attraktives Grundstück mit sofort nutzbarem Bestand und klarer Entwicklungsperspektive suchen.
AKTUELLE BEBAUUNG (BESTAND)
Auf dem Grundstück befindet sich ein eingeschossiger Bungalow aus dem Jahr 1999, der 2025 umfassend modernisiert wurde.
- Wohnfläche: ca. 80 m²
- 3 Zimmer
- Wohnküche mit Essbereich
- Hauswirtschaftsraum
- Duschbad mit Fenster
- Fußbodenheizung
- Terrasse mit Gartenzugang
Der Bestand ist sofort bewohnbar und kann entweder weiter genutzt oder perspektivisch im Zuge der Erweiterung angepasst werden
Sonstige Informationen
Fazit:
Ein seltenes Angebot:
Ein großzügiges Grundstück in gefragter Waldrandlage mit sofort nutzbarem Wohnbestand und klar definierter Ausbau- und Entwicklungsmöglichkeit. Ideal für Käufer, die Wert auf Grundstücksqualität legen und ihre Wohnfläche flexibel erweitern möchten.
Allgemeines:
Vertrauen und Fachwissen: Diese Prinzipien stehen für uns bei BIS Immobilien an oberster Stelle. Seit 1990 füllen wir unseren Erfahrungsschatz mit Ihren individuellen Bedürfnissen und Wünschen, lernen dabei jeden Tag hinzu und wachsen an unseren Aufgaben. Dabei ist das Gebot unserer Arbeit klar: Wir schaffen Vertrauen durch klare Transparenz, geben Orientierung durch fundiertes Fachwissen – und sehen uns dabei als Ihre persönlichen Berater. Ob beim Kauf oder Verkauf von Immobilien: Mit unserer Erfahrung, unserer Expertise und unserem Netzwerk begleiten wir Sie bei jedem Schritt – vom ersten Gespräch bis zur Vertragsunterschrift. Rufen Sie uns an oder schreiben Sie eine E-Mail: Wir haben immer ein offenes Ohr und freuen uns darauf, Sie zu unterstützen.
Ein seltenes Angebot:
Ein großzügiges Grundstück in gefragter Waldrandlage mit sofort nutzbarem Wohnbestand und klar definierter Ausbau- und Entwicklungsmöglichkeit. Ideal für Käufer, die Wert auf Grundstücksqualität legen und ihre Wohnfläche flexibel erweitern möchten.
Allgemeines:
Vertrauen und Fachwissen: Diese Prinzipien stehen für uns bei BIS Immobilien an oberster Stelle. Seit 1990 füllen wir unseren Erfahrungsschatz mit Ihren individuellen Bedürfnissen und Wünschen, lernen dabei jeden Tag hinzu und wachsen an unseren Aufgaben. Dabei ist das Gebot unserer Arbeit klar: Wir schaffen Vertrauen durch klare Transparenz, geben Orientierung durch fundiertes Fachwissen – und sehen uns dabei als Ihre persönlichen Berater. Ob beim Kauf oder Verkauf von Immobilien: Mit unserer Erfahrung, unserer Expertise und unserem Netzwerk begleiten wir Sie bei jedem Schritt – vom ersten Gespräch bis zur Vertragsunterschrift. Rufen Sie uns an oder schreiben Sie eine E-Mail: Wir haben immer ein offenes Ohr und freuen uns darauf, Sie zu unterstützen.
Karte wird geladen...
Objektstandort
15537 Erkner
Lage & Infrastruktur
Objektstandort
15537 Erkner
Das Grundstück befindet sich in Erkner bei Berlin, einer beliebten Wohnlage im Berliner Umland. Einkaufsmöglichkeiten, Schulen, Kitas und öffentliche Verkehrsmittel sind gut erreichbar. Die direkte Waldrandlage bietet ein hohes Maß an Lebensqualität und Ruhe, ohne auf die Nähe zur Stadt verzichten zu müssen.
Kontaktanfrage senden
Kontakt
| Mobil | +49 177 3921663 |
| Website | www.berliner-immoservice.de |
Ansprechpartner/in
Herr Martin Ristau